Beaucoup de "boiseux" non professionnels se lancent dans l'aventure de faire à titre personnel des travaux de charpente (auvent, car-port, habitation, garage , atelier,etc.)
Certains sont très studieux et se renseignent sérieusement pour œuvrer correctement !
En revanche, d'autres se lancent dans des travaux très aléatoires, qui peuvent nuire gravement aux bâtis et aux personnes par fautes/mal-façons!
J'ai, ces derniers temps, visualisé plusieurs vidéos sur le net traitant de ce sujet, pour certaines très professionnelles et belles à regarder :(ex mathieudavid , Maillien Michael); par contre, avec d'autres vidéos ou tutoriels, on ne sait pas s'il faut pleurer ou rire!
Je trouve cela personnellement inconscient, voire même dangereux, de se servir de soit disant tutos véhiculant des aberrations, et de plus découvrir que certaines d'entre-elles ont des dizaines de milliers de vues avec des commentaires admiratifs ...pendant que de très bonnes vidéos de savoir-faire ont seulement 2000 vues.
Je ne suis que menuisier à la base. Mais avec 10 ans d'expérience en charpente dans l'ombre d'un Maître aujourd’hui disparu, ce n'est que lui faire honneur que de transmettre à mon tour les bases de l'art du charpentier, pour servir la collectivité, et aiguiller les personnes qui désireraient œuvrer des gros bois .
Evidemment, ce pas à pas ne sera pas un traité, mais une vulgarisation des bases du métier pour des travaux courants, et une invitation aux personnes qui ont ce genre de projets à trouver des références et des liens pour leurs études d'ouvrages sur l' Air du Bois.
Tout charpentier professionnel ici présent peut évidemment éventuellement me corriger ou commenter !
Liste des articles
- Présentation du pas à pas notions et bases de la charpente
- Notions physiques , mécaniques et géométriques de bases appliquées en charpente
- Physionomie générale et termes courants de charpente
- Différents types de fermes en charpente
- Les différents assemblages de charpente .
- Analyse des pièces de charpente partie 1- propriétés physiques générales et les poteaux
- Analyse des pièces de charpente partie 2- Les entraits
- Analyse des pièces de charpente partie 3- Les arbalétriers et les poinçons
- Analyse des pièces de charpente partie 4- Les contrefiches ,liens, jambes ,aisseliers, goussets
- Analyse des pièces de charpente partie 5- Les pannes, chevrons, volige et solivage,
- Etablissement, marquages et signes des bois de charpente
- Etablissement pratique des bois de charpente
- Les bois de charpente
- Présentation du chantier de charpente
- La prise de cotes des charpentes
- Le dessin de charpente dit le trait ou l'art du trait : Chapitre 1
- Le dessin de charpente dit le trait ou l'art du trait : Chapitre 2
- Le dessin de charpente dit le trait ou l'art du trait : Chapitre 3
Présentation du pas à pas notions et bases de la charpente
Introduction
Ce pas à pas détaillera tout ce qui est nécessaire de connaitre pour parachever un ouvrage réfléchi facilement et dans les règles de l'art.
Notions et bases abordées :
Physiques mécaniques et géométrie de charpente.
Physionomie générale et termes de charpente.
Type de charpentes.
Les différents assemblages de charpente.
Les différentes pièces de charpentes
Bois de charpente.
Prendre les mesures d une charpente.
Art du trait de charpenterie .
Etudes par dessins de charpente.
Etablissement avec signes conventionnels de charpente.
Tracés d épures de charpente .
Les outils spécifiques de charpente.
Tracés des bois depuis l épure.
Taille d une charpente.
Pose d une charpente.
Art du trait de base en charpente (fermes, arêtiers, noues, etc.)
Des exercices d apprentissages.
+Diverses rubriques ou commentaires qui pourraient être utiles ou initiés par des "boiseux" du site!
Petit historique de la charpente:
Depuis la préhistoire, l'homme dès qu'il quitte les abris naturels, se bâtit pratiquement chaque fois un "toit" sur la tète!
En tipi ou muni de bois en fourche, d'une faîtière sur laquelle il appuie des perches visant à soutenir une étanchéité aux éléments pour s'en protéger (peaux, feuillages, etc.): le principe de charpente était né!
Les premiers habitats "en dur" étaient souvent munis de simples bois utilisés en pannes scellées d'un mur à l'autre, puis les surfaces s'agrandirent et le besoin de soutènements comme des poteaux entrèrent dans la conception.
Petit à petit, on s'émancipe de diverses façons plus ou moins aventureuses des poteaux pour des fermes autoportantes.
Une constante reste presque naturellement depuis la nuit des temps, c'est la triangulation ou ferme triangulée, gage d'équilibre naturel des forces et de pentes pour l'écoulements des eaux, tout en protégeant les habitants.
Au cours des siècles, les techniques se perfectionnent et se modernisent:(sciage, machinisme, lamellé collé, etc.), ainsi que l architecture, donnant un éventail sans limite de styles, formes traditionnelles ou contemporaines de charpentes.
Le métier de charpentier représente la genèse des métiers du bois, et développera l'art du trait jusqu'à son paroxysme: L'art du trait de charpente est reconnu patrimoine culturel par l''Unesco en 2009.
Il faut une quinzaine d années pour devenir un Maître charpentier (que je ne suis pas) en travaillant sans cesse et reculant chaque fois un peu plus les difficultés, ce qui laisse peu de place à certaines improvisations que j'ai découvert ça et là sur la toile.
Notions physiques , mécaniques et géométriques de bases appliquées en charpente
Les notions de physiques élémentaires en charpente
Celles ci sont principalement les poussées en pression verticales et latérales .
Elles sont enfantines à assimiler, mais doivent être réfléchies en permanence dans le métier de charpentier; en effet, elles seront chaque fois présentes, et donc à contrebalancer partout dans un ouvrage .
Les illustrations ci-dessous situent bien à quoi nous avons à faire!
Une pression verticale (poids de la couverture, neige, etc.)sur des bois jointés au sommet et reposant sur des murs , exerce une poussée oblique le long des pièces, communiquant à leur tour une poussée latérale sur le haut de ces murs vers l'extérieur, par conséquent occasionnant leurs basculements simultanément, ainsi que l'écroulement du sommet vers le sol.
Pour palier à ce désordre, il convient de rediriger les forces obliques et latérales verticalement vers le sol par ajout de moyens physiques!
1/ Construire un pignon sur lequel repose tout le poids de la couverture "diluant" ainsi les poussées dans le volume de celui-ci !
Cette solution serait la plus efficace, si elle n'occultait pas une grande partie de la surface utile au sol. (Fig 1)
2/ Fixer un poteau ou une colonne sous le sommet permet efficacement de diriger la poussée verticale directement au sol!
Cette solution, qui fut très souvent utilisée, libère une grande partie de l'espace libre utile au sol, mais crée quand même un encombrement qui peut être gênant dans certaines fonctions du bâtit. (Fig 2)
3/ Fixer une pièce ou un lien reliant les deux bases des bois, ce qui annule les poussées obliques par étirement horizontal en opposition,transmettant ainsi la poussée d'origine verticalement sur les murs .
Ici nous venons de créer une triangulation, d'une efficacité remarquable autoportante, tout en libérant totalement le vide utile au sol. (Fig 3)
Notions mécaniques de charpente
Malgré la création d'une triangulation qui a déjà expliqué son efficacité, les paramètres de forces contenus dans une charpente agissent sur les matériaux dont elle est constituée, et peuvent créer ici aussi des désordres conséquents et néfastes sur le bâtit et les usages!
Notre triangulation va en effet subir des déformations internes qu'il faut contrebalancer par un réseau secondaire pour sa pérennité!
Conséquence mécanique de triangulation simple :
La poussée verticale de pression au sommet, bien que redirigée en verticale des murs, crée un fléchissement vers le sol des bois en transformant la poussée oblique linéaire annulée par le tirant en pression perpendiculaire, occasionnant par la même un affaissement du sommet .
Si l'action n'est pas contrebalancée , il y a risques de déformations majeures de l'ensemble, affaiblissement des assemblage, voire rupture des pièces. (fig 1-2)
Conséquence mécanique de triangulation avec soutènement central :
En ajoutant un pilier central sur la triangulation simple, placée sous sommet et reposant sur l élément horizontal, nous diminuons nettement le fléchissement des bois obliques!
Même s'il y a diminution des efforts, la compression du pilier redirige la pression verticalement au centre de l'élément horizontal, le faisant fléchir à son tour.
Si l'action n est pas contrebalancée, il peut se produire des déformations préjudiciables à la toiture, ainsi qu'aux éléments intérieurs; par contre le risque de rupture est endigué. (fig 3-4)
Conséquence mécanique de triangulation avec soutènement central et jambes de forces :
A notre triangulation avec poteau central, nous ajoutons des "Contrefiches et jambes de forces" pour contrebalancer les derniers fléchissements!
Les novices en charpente font pratiquement tous la même erreur, à savoir fixer ces jambes perpendiculairement aux bois obliques et reposant sur le bois de liaison horizontal!
En effet, on pourrais dire qu'il se produit une triangulation secondaire, mais avec ce principe, toutes les forces vont converger vers un même point central, occasionnant une logique d'affaissement général de l ensemble, sans toutefois s'écrouler.
Cette construction dans le temps peut conduire à des déformations de la couverture et des éléments intérieurs.(fig 1-2)
L'aboutissement d'une construction pratiquement indéformable, c'est ce que l'on nomme une "ferme", constituée d'un appareillage de bois d assemblages formant une géométrie pérenne dans le temps!
Ici, les jambes de force sont placées judicieusement de manière à reporter toutes les forces en traction opposées sur l'élément horizontal .
Pour cela, il faut que le poteau central maintenant appelé "poinçon" soit enserré par assemblages aux bois obliques appelés "arbalétriers"; ce principe en effet empêche le poinçon de s'affaisser par compression des coupes des arbalétriers sur celui-ci .
Les jambes supérieures désormais appelées "contrefiches", retiennent le fléchissement des arbalétriers en s'appuyant sur le poinçon, créant ainsi un "étirement" bénéfique de celui-ci. (fig 2 bis)
Si la portée des arbalétriers est plus grande, on applique des "jambes de forces" de leur vrai nom "jambettes" suivant les régions, fixées sous ceux-ci et reposant sur le bois horizontal appelé maintenant "entrait ou tirant", dans une position oblique vers l'extérieur, donnant encore ici une logique d'étirement en opposition.
Cette géométrie ainsi conçue, donne à la triangulation principale 6 triangulations secondaires, annulant toutes les forces mécaniques contenues dans une ferme, ne laissant que la force principale verticale de pression partir au sol depuis les aplombs des murs.(fig 3-4)
En réaction du risque de confusions soulevées par Kentaro, tous les schémas ci-dessous ne sont ici que pour visualiser les principes, leurs physionomies sont non contractuelles!
Notion géométrique ancestrale de charpente
Compte tenu des effets mécaniques et physiques à contrebalancer dans une ferme de charpente, assez rapidement les charpentiers antiques inventeront la ferme triangulée (En l'occurrence la ferme latine par les romains)!
Le principe de base est très simple : il suffit de diviser en 4 parties égales au niveau de l'entrait, et de diviser en 2 parties la hauteur au poinçon.
Cette construction géométrique seule ne suffit pas à rendre "indéformable" une ferme de charpente, il faut lui apporter des positions de bois appropriées, et des assemblages performants!
Le schéma ci-dessous indique les forces en présence dans une triangulation géométrique d'une ferme latine.
Toute la logique physique, mécanique et géométrique de ce chapitre doit être absolument apprise et comprise dans le métier de charpentier,elle sera appliquée de fait tout au long de sa carrière, gage d'un travail bien fait et pérenne dans le temps.
Physionomie générale et termes courants de charpente
Une charpente est, par définition, un assemblage ou appareillage de plusieurs pièces de bois, dévolues à supporter une toiture, des éléments d'architecture (ex. planchers), des coffrages et moules divers porteurs (maçonnerie et taille de pierre), construction navale ,entre autres.
Nous parlerons essentiellement de bâtits sur sol!
Ici l'ensemble d un ouvrage de charpente destiné à couvrir toute la surface d'un bâtiment se nomme généralement comble!
Il est coutume de visualiser les points généraux majeurs en charpente ainsi que de les nommer avant d'entrer en matière plus technique , et ce pour que les explications futures nous apparaissent plus facilement à l'esprit en trois dimensions!
Pour les personnes déjà expérimentées en menuiserie ou ébénisterie, qui aimeraient découvrir ou appliquer le métier de charpentier, il faut absolument se détacher des automatismes applicables à vos professions respectives , car je le répète ici, même s'il semble y avoir des similitudes, la démarche et la logique de construire une charpente est vraiment singulière.
Un œil exercé saura immédiatement si une charpente a été faite par un professionnel ou non, et pourra même vous dire aisément : "charpente de maçon", "charpente de couvreur" ,"charpente de menuisier ou d'ébéniste" etc!
Charpente traditionnelle simple
Le modèle de charpente traditionnelle dans le plus simple appareil, réside dans la pose d'éléments primaires (pannes et chevrons) sur maçonnerie , d'un mur à l'autre sur un pan (garage ,dépendance, atelier ...).
Ce travail est souvent exécuté directement sur le chantier par les couvreurs ou les maçons!
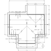
Pour les apprentis charpentiers et les novices, c'est un exercice intéressant, car il permet de découvrir en visualisant les logiques de sa profession in situ (prise de cotes, taille, pose, finitions, levage/manutention, sécurité, etc.), d'en faire l étude au 1/50 sur un panneau et de produire les premiers calculs (longueurs, surface, portée, débit de bois, etc.). (fig 1)
Sur deux pans, nous sommes sur ce que l'on nomme de la "pannes sur pignons" , c'est-à-dire que les bois portent sur des pignons maçonnés de formes triangulaires: ici les calculs, la taille etc .. se complexifient mais les bois restent principalement monoxyles!(fig 2)
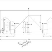
Sur deux pans, mais avec un pignon intérieur intermédiaire maçonné pour agrandir le bâtiment, nécessite déjà de l'expérience; en effet les bois doivent être combinés en plusieurs pièces pour obtenir la longueur nécessaire de couverture.
Toutefois, ce travail peut être exécuté directement sur le chantier car il ne comporte pas de façonnages compliqués qui seraient à faire dans le confort d'un atelier ou l'on a accès facilement aux outillages. (fig 3)
Le bon charpentier préférera toujours, si cela est possible, préparer tous ses bois en atelier (taille, teinte de protection,etc.), et n'avoir que du calage et du clouage à faire sur le chantier!
Sur une charpente viennent s'appuyer différents éléments secondaires:
Ces éléments de second- oeuvre de charpente sont destinés à la finition d'un ouvrage, et servir de supports aux travaux de couvertures futurs.
Les finitions des sorties de chevrons et de pannes (frisette/volige, teinte, bandeaux, planche à chenaux, etc.)
Les travaux de lattages et de sous toiture pour mettre le chantier "hors d'eau" sont généralement dévolus aux couvreurs, mais le charpentier parfois fait le travail basique du couvreur.
La mesure d'une sortie de chevron prise de niveau depuis le mur se nomme "le forget".
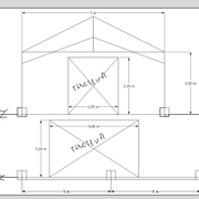
Physionomie d'une ferme de charpente
Quand il n'y a pas de pignon intérieur, et que le projet de bâtit doit garder toute sa surface au sol libre, on doit construire une ferme de charpente pour supporter la toiture .
Cette ferme doit être aussi solide mécaniquement que le pignon qu'elle remplace!
Elle est constituée de plusieurs pièces de bois assemblées, que l'on retrouvera pratiquement dans tous les autres types de fermes!
Par contre, plus la complexité de la toiture finale sera, plus la charpente de fait se compliquera et se garnira d'éléments spécifiques que nous découvrirons plus tard!
Tout d'abord, visualisons les détails d une ferme traditionnelle, très commune à une majorité de bâtîts!
Une ferme est construite à la base, d'un entrait sur lequel viennent s'assembler un poinçon vertical et deux arbalétriers, et parfois quand la portée l'exige, des jambes de force ou jambettes.
Entre les arbalétriers et le poinçon, s'assemblent des contrefiches.
Au dessus de la ferme viennent s'appuyer les pannes sablières, pannes intermédiaires ou ventrières avec échantignolles, et une panne faîtière sous laquelle on trouve des liens de faîtage reliés au poinçon .
Enfin, sur le tout, viendront s'appuyer les chevrons et les éléments de toiture et finitions.
Sur l' entrait, on peut trouver des éléments destinés supporter un plancher,soutenir un plafond, ou les deux à la fois constitués de solivettes ou de solives raidies par des étrésillons, selon les cas.
Détails généraux autour d'une ferme
Détails au faîtage : On trouve le lien, c'est-à-dire l'assemblage de la ferme perpendiculairement avec les pannes faîtières, qui produit un enchevêtrement de pièces pensées pour une bonne cohésion de l'ensemble. (fig 1)
Toujours au faîtage, on aperçoit la jonction des chevrons des deux pans de toit!
Il existe plusieurs façons d'effectuer cette liaison que nous découvrirons plus tard!
Le détail nous renseigne que parfois, on installe une planche verticale coincée aux coupes d'aplombs des chevrons pour pouvoir fixer les tuiles faîtières, ou une zinguerie par clouage/vissage.(fig 2)
Détails à l'entrait traditionnel: Nous apercevons le détail d'un étrier métallique destiné à soutenir l'entrait par suspension depuis le poinçon.
Ce dernier a un jeu de 2 cm aux arasements, accentuant les effet de triangulation, surtout en cas de précipitation neigeuses conséquente.(fig 3)
Détails à l entrait moisé: Depuis le début du 19ème siècle, les techniques de sciage des bois et de boulonnerie ont apporté une amélioration majeure dans la conception des fermes de charpente et ainsi agrandissant les champs de possibilités de portées, à savoir le moisage ou moisement !
Le principe est simple mais d'une efficacité remarquable: il consiste à enserrer "en sandwich" entre deux pièces de bois (moises) les pièces verticales ou obliques par compression boulonnée.
Il y a le moisage simple (les moises sont entaillées et les pièces centrales restent à vif) ,et le moisage double, ou ici les moises et les pièces centrales, sont simultanément entaillées.(fig 4)
Détail au pied de ferme: Ici nous découvrons un petit aperçu des éléments secondaires que l'on trouve sur un travail de charpente, ce sont les travaux de finitions des débords et d'égouts.
C'est un vaste champs d'actions qui méritera plus tard un chapitre à part entière dans ce pas à pas! (fig 5)
Ci-joint le lien vers le lexique de charpente Wikipedia qui est assez complet!
fr.wikipedia.o...de_la_charpente
Une précision soulevée par Nicoel, les différentes textures de bois apportées aux dessins d'illustrations, ne sont ici que pour différencier facilement les éléments, le sens du fil du bois logique n'est parfois pas respecté dans le bon sens!
Les différentes physionomies de toitures:
La construction de charpentes s'élabore en fonction d'une multitude critères de toitures différentes.
(Styles architecturaux et régionaux, usage du bâtiment, restauration, design, etc.)
Ci-dessous les principales que l on peu rencontrer!
1/ Toiture cintrée en berceau (à simple courbure convexe)
2/ Toiture à 3 pans (une croupe et deux longs pans)
3/ Toiture à 4 pans (deux croupes et deux longs pans)
4/ Toiture cintrée à simple courbure concave
5/ Toiture à demi-croupe normande
6/ Toiture à demi-croupe, croupe champenoise
7/ Toiture à demi-croupe débordante
8/ Toiture à demi-croupe alsacienne
9/ Toiture pavillon (pyramidale à 4 pans)
10/ Toit terrasse
11/ Toiture papillon
12/ Toiture en L (avec une noue et un arêtier)
13/ Toiture à 2 pans ou 2 versants
14/ Toiture en T (avec 2 noues)
15/ Toiture à double courbure (section de tore avec un rayon de cintrage et deux rayons de giration)
16/ Toit monopente, à pupitre ou en appentis
17/ Toiture shed, à redans partiels ou en dents de scie
18/ Toiture à la Mansart avec terrasson, brisis et ligne de bris
19/ Toiture à coyers ou coyaux
20/ Tourelle conique à base circulaire
21/ Tourelle à pans à base hexagonale
22/ Toiture en dôme ou coupole
Incidences du profil de toiture sur la charpente
Comme nous l'avons vu plus haut, il existe différents profils de toitures: en effet ceux-ci vont forcément agir sur la conception de charpente en fonction du plan architectural (fermes, arêtiers , noues, etc.), d'où la complexité du métier de charpentier!
Ci-dessous, des schémas du comportement de profils en fonction de plans d'architecture les plus courants.
Différents types de fermes en charpente
La ferme latine
Ce type de ferme de charpente nous arrive tout droit de l antiquité ,inventée par les romains d ou son appellation ,elle fut l aboutissement de simplicité et de solidité ! Par contre elle est destinée à des combles "perdu" non aménageables.
Composée de triangles qui reprennent toutes flexions , l agencement est fait d un entrait sur lequel s assemblent un poinçon et deux arbalétriers !
Ces derniers enserrent le poinçon au faîtage ,lequel reçois à sa base deux contrefiches reprenant la pression des arbalétriers .
Ce type ne permet pas d aller au delà de 8 m en autoportant de façonnage traditionnel !
Toutefois , en moisant l entrait et en y apportant des éléments en réseau secondaire ,lui permettent des portées plus longues .
la ferme à entrait retroussé
Ce type de ferme peut être agencé en comble habitable par le principe de l entrait retroussé !
En effet celui ci est remonté à la hauteur de dégagement désirée depuis le plancher ,il travaille en tirant comme dans la ferme classique latine .
Ses pieds d arbalétriers sont alors posés sur des semelles ou corbeaux .
Raisonnablement , les arbalétriers dépassants sous la ferme ne doivent pas dépasser le tiers total de leur longueur , après il faut passer en doubles entraits ou blochets .
la ferme à doubles entraits
Ce type de ferme est conçue pour laisser les combles habitable , elle comporte un "Faux entrait" au sommet qui travail en pression , et un entrait tirant à sa base !
Elle est très souvent nantie de jambes de force destinées à soulager la flexion des arbalétriers ,cette construction très équilibrée ne nécessite généralement pas de bois de sections importantes .
La portée des fermes à doubles entraits peut aller de 10 à 12 mètres en taille traditionnelle , toutefois ,si l entrait au plancher est porteur , il est préférable d y apporter un appuis central (mur ou poteau) ,ou de transformer cette ferme en type Palladio (voir plus bas) .
L entrait inférieur , est parfois remplacé par des semelles aux pieds des arbalétriers , ceux ci reliés l un a l autre par un fort tirant métallique caché sous le plancher tout dépend évidemment de l agencement de l habitation) !
La ferme à-la palladio
Ce type de ferme est peu utilisé , et pourtant le principe est efficace , tirant son nom d un architecte italien du XVI eme siecle ,elle est conçue pour supporter par suspensions le plancher sur l entrait inférieur .
A la base c est une ferme à entrait retroussé ,sur lequel on assembles deux bois suspendu au faux entrait et fixés à l entrait inférieur pour endiguer son fléchissement naturel !
Les suspentes peuvent aussi recevoir des contrefiches soulageant ainsi les arbalétrier par un travail d étirement .
Des portées de 16 à 18 mètres sont tolérées grâce au moisement , souvent utilisée naguère pour du bâtiment agricole ou industriel .
La ferme sur blochet
Le type sur blochet sont apparentées au type à entrait retroussé.
La grande différence , c est que les pieds des arbalétriers ne provoques pas de poussées sur les murs ,car ils sont nantis de "blochet" reposant sur le plancher (souvent une dalle de béton de nos jours) .
Ce système fonctionne en deux articulations à la façon d’une ferme posée sur des poteau dont la flexion de l’arbalétrier est reprise par les blochets.
Elle est très utilisée en comble habitable et permet d en tirer des éléments décoratifs apparent si les blochets sont taillés proprement !
La portée de ce type de ferme dépasse rarement les 12 mètres .
Deux conceptions différentes sur l illustration ci dessous !
La Ferme à la Mansart (ou Mansard à cause de la "mansarde")
Jules Hardouin-Mansart qui fut le premier architecte du roi Louis XIV , voulut optimiser les surfaces habitables dans les grandes agglomérations ,devant une demande de logements croissante !
De ce fait il inventa une ferme de charpente de combles aménageables en appartements ,avec des fenêtres ou balconnets facilement intégrable à la toiture.
Ce type de ferme ,est en fait une ferme latine nommée le "terrasson" , montée sur un portique aux poteaux biais nommé "Le brisis" .
La difficulté est de maintenir la cohésion de l ensemble sans toutefois dépasser trop en structures assemblées dans l espace aménageable .
Les portées moyennes sont de 8 mètres sans contreventer outre mesures , mais on peu facilement atteindre les 12 mètres par des contreventements réfléchis!
La ferme boiteuse
Ce type de ferme se nomme quand les pans de toitures on des pentes différentes ,ou que les murs avant et arrière du bâtis sont de niveaux différents.
Par conséquent , les pieds de ferme seront décalés sur des supports différents ,ce qui induit d agencer les bois avec réflexions , les poussées étant asymétriques .
La grande pente du toit doit être inférieur à 70° ou supérieur à 35° , et la petite pente pas moins du minimum DTU des matériaux utilisé en couverture sur le bâtiment .
La Ferme en berceau
Tout droit arrivée du moyen age , on retrouve ce type de ferme surtout dans des ouvrages historiques ou monumentaux!
Le principe fut repris souvent en plus petites taille au début du 20 eme siecle avec les construction en néoclassique à la mode à cette époque (ex Style "Cabourg") .
La ferme en berceau est très intéressante à réaliser ,elle fonctionne par reprise des force jusqu' en verticale des murs par des aisseliers s' arque-boutants sur des jambes de forces ,le tout inscrit à la base dans un arc de cercle en voûte (Principe issu de la taille de pierre) .
Par contre elle nécessite beaucoup de bois ,de préférence en chêne ,donnant des pièces en bois de brin déjà cintrées naturellement par la nature .
Les portées moyennes sont de 8 mètres .
Deux conceptions différentes sur l illustration ci dessous !
La Demi ferme
Comme son nom l indique ce type de ferme ne comporte qu une pente et reçoit qu un seul pan de toiture ,on la retrouve très souvent dans tout types de bâtis ,la plupart du temps hangar , atelier , appentis, auvent ,etc..
Elles peuvent être de très grande taille (12 mètres et plus construction composites) avec des résaux secondaires d appuis .
Le principe est un entrait et un arbalétrier , reliés par une grande contrefiche qui fonctionne comme un second arbalétrier sur l entrait , recréant par la même , un travail d extension tirant ,transformant la force de pression en flexion de la toiture ,en pression d aplomb sur les murs .
Les schémas ci dessus ,ne donnent pas de renseignement en termes de longueurs et sections de bois admissibles , il faut toujours garder à l esprit que chaque projet de charpente est singulier et par conséquent s étudie et se calcule !!
Les différents assemblages de charpente .
La charpente dite traditionnelle est constituée de divers ensembles de pièces assemblées en un réseau solide et stable dans le temps !
Avant d étudier en détail chaque pièce ,il faut apprendre et comprendre le moyen de les joindre entre elles fermement ,autrement dit , visualiser le large éventail d assemblages courants traditionnels utilisés en charpente !
Notions physiques et mécaniques sur les assemblages
En avant propos , nous allons ici découvrir les notions physiques que doivent subir les assemblages dans la construction bois.
Dans le domaine charpentier ,on doit adapter la taille d un assemblage en fonction de sa destination et pratiquement d instinct professionnel on saura appliquer la meilleur solution solide et pérenne, connaissant les principes physiques auquel ils seront confrontés .
Les contraintes sur les assemblages sont majoritairement exercées sur la surface de liaison des deux pièces de bois que ceux ci relient .
1/ La Compression :
La compression est une contrainte mécanique équivalente à l'action d'une force qui exerce une pression à chaque extrémité d'un corps solide !
les effets sur des assemblages sont principalement : l'écrasement ,l'éclatement, la rupture, le glissement et ripage ,le cisaillement.
2/ La traction ou tension :
La traction, ou tension, est une sollicitation qui consiste à tirer sur une poutre droite. Le contraire de la traction est la compression !
les effets sur des assemblages sont principalement : l arrachement, la rupture, le glissement et ripage ,le cisaillement ,
3/ La torsion : la torsion est la sollicitation subie par un corps soumis à l'action d'un couple de forces opposées agissant dans des plans parallèles et dont l'élément de réduction est un moment de force agissant dans l'axe de la poutre.
les effets sur des assemblages sont principalement: l éclatement ,glissement ,arrachement, écartement.
4/ Les poussées latérales horizontales et verticales :
la poussée dans le cas qui nous intéresse , se traduit par une pression latérale horizontale ou verticale sur les assemblages , d avant en arrière , de droite à gauche ,ou de bas en haut .
les effets sur des assemblages sont principalement: L'éclatement, le basculement, l écartement, le glissement, le cisaillement, l arrachement, la rupture .
Les schémas ci dessous , nous permettrons de visualiser plus facilement plus tard les divers assemblages de charpente ,et leurs physionomie réfléchies ,visant à contrebalancer les effets physiques mécaniques auquel ils sont confrontés.
Assemblage tenon/mortaise
C est l assemblage ancestral par excellence , il est chaque fois présent dans le cadre de la charpenterie traditionnelle ! (fig 1)
Il n est pas à comparer au tenon/mortaise de menuiserie/ébénisterie même s il adopte les mêmes caractéristiques , il sert surtout de liaison, mais il est flottant, et peut être soumis à des contraintes mécaniques sur ses appuis (abouts-arasements) .
Je met ici le lien vers le beau travail d'explication de Maillien Michael !
Le tenon en charpente:
Il fait une épaisseur de 29 mm d épaisseur (tracé à 30 mm (= jauge de charpentier) , mais usiné avec du jeu) et une longueur de 5 mm de moins que sa mortaise ,majoritairement placé en axe du champs de la pièce de bois, il peut contenir un épaulement central en cas de grande longueur d arasement .
ses arasements sont soit parallèles à la pièce de bois , soit nantis d embrèvements pour des raison de renforcement au ripage .
En charpente , le tenon est tracé au piquage avec un désabout de propreté ,qui permet d avoir une arête perpendiculaire de niveau ,même si ce tenon se situe sur du bois gauche faisant varier le parallélisme de ses arasements , tout en évitant d avoir des pointes de bois fragiles .(fig 2)
Il peut comporter un petit épaulement à l arrière , permettant de masquer la mortaise dans des ouvrages vus !(fig 3)
Le trous de cheville se percera après le démontage de l essai à blanc de l assemblage ,et devra être biaisé pour le "chevillage à tire" .
La mortaise en charpente:
Elle fait 30 mm (= jauge de charpentier) d épaisseur pour une profondeur de 100 mm est tracée en axe avec la pièce , dans sa largeur ,les bords sont souvent verticaux (mortaiseuse) , mais on peut aussi biaiser selon la pente de la pièce à assembler (fig 3-4).
La mortaise de charpente , comporte très souvent un embrèvement (à couvert ou découvert selon les cas) qui renforce les contraintes dont il peut être est soumis ! (fig 5)
Dans de très grosses pièces de charpente , l assemblage tenon/mortaise peut être double !
Le trou de cheville est percé avant le montage à blanc ,pour pouvoir ensuite repérer le trou sur le tenon une fois monté à blanc .
La cheville de charpente :
Elle est réalisée dans du bois dur (chêne, robinier) .
Il faut les débiter dans du bois fendu ,ce qui permet d avoir un fil parfaitement droit !
On réalise des carrelets de 18 x 18 mm ,puis on fait un quart de rond toupillé , ou l on fait au rabot des chanfreins afin de la rendre de section octogonale .
Les chevilles doivent être solides pour résister au principe du tire !
A la pose , on trempe les chevilles dans de l huile , puis on les enfonce au marteau sans s arrêter avant d être complètement plantées sinon elles risquent d éclater !
Tenons/mortaises particuliers
Le tenon/mortaise débouchant à clef :
C est un tenon/mortaise surtout destiné à bloquer l assemblage quand il est soumis à une traction , il est plus long à mettre en oeuvre .
Dans le cas ou il serait apparent il est très décoratif !
Le tenon/mortaise "mordane" ou "bec de canard" :
C est un assemblage tenon/mortaise destiné principalement au pièces de plancher (solivage, chevêtre, linçoir) , il permet de renforcer le tenon par ajout de bois par tracé à l arasement supérieur dans sa conception .
Il peut être chevillé dans une mortaise borgne , ou débouchant nantis d une clé .
Le tenons/mortaises "à chaperon" et à "paume" :
C est un assemblage tenon/mortaise qui à la particularité d avoir un (ou les) arasement qui épouse le profil du flache présent sur l arête de la pièce mortaisée ,le tracé se matérialise au piquage , il permet de rectifier l' appuis de l arasement .
A ne pas confondre avec la "paume" :, qui elle est réalisée volontairement pour renforcer un assemblage de solivage.
Le faux tenon :
Le faux tenon est aussi appelé «pigeon». Il permet de relier deux pièces coupées d’onglet ou droites parallèles.
Il peut être débouchant ou borgne, chevillé ou à clefs .
Le tenon dit « "oulice" :
Souvent employé dans les maisons à colombage (Alsace, Normandie, ...) dans le cadre de bois verticaux coupés par un pièce oblique appelée décharge !
les pièces de bois portant un tenon à « oulice» (l’about du tenon est coupé d’équerre par rapport à la face de la pièce et non à l’arasement).
la pièce portant un assemblage à oulice se nomme tournisse il peut y avoir embrèvement !
Cet assemblage est le plus souvent chevillé à "tire" .
Assemblages par embrèvements
Les embrèvements consistent à pratiquer une (ou des) entailles d abouts dans la pièce de bois réceptrice ,pour accueillir l autre pièce taillée en profil inverse ,dans le but de contrebalancer et renforcer les fortes contraintes de cisaillement dues au glissement ,et ripage par compressions (souvent vu entre l'arbalétrier et l'entrait).(fig 1)
La surface qui se trouve devant l about se nomme le talon , il faut que celui ci soit assez long pour contenir la poussée du ripage !
L about est généralement taillé a la bissectrice de l angle des deux pièces sollicitées , par contre souvent les charpentiers le scie d équerre pour gagner du temps .
Personnellement je faisait l about par bissectrice pour les arbalétrier , les autres d équerres .
Ils peuvent etre "a vifs" , boulonnés (vissés ou cloués dans les petit travaux à faibles contrainte (ferme de lucarne)) , bridés métalliquement (fig 5) , ou la plupart du temps associés de tenons/mortaises (voir plus haut) .
L about décalé il est employé généralement quand le talon est insuffisant (fig2).
Quand l about supposé à très peu de talon ou inexistant , on pratique un embrèvement "en gorge" ,qui permet d avoir la même force mécanique d appuis (fig 3).
On utilise les embrèvements doubles en gorge et en about lorsque les assemblages sont très sollicités (fig 4).
L embrèvement couvert, est entaillé à l empreinte du repos (travaux apparents) ,et l embrèvement découvert , est façonné à la scie d une face à l autre par gain de temps (dans les combles perdu ou greniers) .
On les trouvent souvent dans les poinçons .(fig 1-2)
En gorge à pleine section, on l'utilise généralement pour une pente de toit inférieure à 45% en tête d’arbalétrier (ce qui donne un effet queue d aronde) .
En about on utilise généralement pour une pente de toit supérieure à 45° en tête d’arbalétrier. (fig 3)
Les assemblages par entures
C est l assemblage ou la liaison de deux pièces de bois linéairement .
Les entures de compressions :
Elles servent à joindre deux pièces en verticale d aplomb , on les retrouves le plus souvent en restauration par rapport à des poteaux .
L enture la plus banale , est simplement usinée de deux coupes d équerre reposant l une sur l autre ,et tenues par des moises boulonnées ou clouées .
Dans des travaux de monuments historiques ou apparents en habitations , on pratique par quartiers mi-bois , ou enture de compression oblique à mi-bois ,plus compliqués mais plus esthétiques (fig 1) !
Les entures de continuités :
Elles servent généralement à joindre des pièces de bois horizontales passantes (pannes) , ces assemblages doivent être placés en repos (murs , sol , poinçon, etc ..) car ils consistent surtout à produire plus de surface aux liaisons de pièces , sauf dans le cas de l enture à trait de Jupiter qui peut être dans certains cas placée au dessus du vide (fig 2).
L enture de continuité à mi-bois :
On la trouve souvent dans les liaison de sablières en repos sur les murs et de fausses sorties de pannes .
L enture de continuité à sifflet et à sifflet désabouté :
Elles sont généralement utilisées pour les pièces passantes (sablières sur poteaux, les pannes, les faîtages et les chevrons).
L enture à trait de Jupiter :
Emblématique assemblage de charpentier , son nom viens de sa forme en éclair de foudre , il est rarement utilisé mais toujours très esthétique en plus de reprendre les efforts de tension !
On l utilise en restauration de monuments historiques généralement .
Les assemblages à queues d arondes ,par enfourchements et à mi bois
Les assemblages par queues d arondes :
Ils sont destinés a des liaisons travaillant en tension ou en traction , ils peuvent être entures ou en perpendiculaire .(fig 1)
Les assemblages par enfourchements :
Ils sont destinés dans certains cas à des assemblages verticaux , linéaires , ou horizontaux (fig 1) .
Les assemblages à mi-bois :
On les retrouves souvent dans le colombage et le solivage (fig 2)
le moisement ou moisage
Le principe est bien connu en charpente , il consiste à jumeler deux pièces appelées "moises" enserrant une troisième ,le tout étant boulonné .
Cet appareillage est très résistant , et pratiquement toujours utilisé pour les grands entraits ,entraits retroussé , et les blochet .
Le principe révolutionna le domaine de la charpente depuis la fin du 18 eme siècle par l arrivée des sciages mécaniques et de la boulonnerie .
Attention des entailles mal considérées peuvent diminuer la résistance de la pièce ! il faudra veiller à l étude de bien agencer la structure .
La profondeur des entailles de boisage est généralement de 15 mm (lame de mètre pliant comme jauge) .
Le moisement lisse :
Le principe réside en ce que les pièces de bois sont simplement enserrées par un boulon les traversant , celui ci recevant toute la force de cisaillement .
Il doit être utilisé que dans le cadre de liaisons sans contraintes majeures (fortement déconseillé dans le treillage mécanique d une ferme) .(fig 1)
Le moisement à une entaille :
Le principe étant que les pièces passantes entre les moises ,sont plaquées dans une entaille recevant leurs profil à vif ,puis le tout traversé par des boulons de serrage , le résultat quand il est pratiqué de façon réfléchie sur les bonnes pièces est d une remarquable résistance aux compressions tout en sollicitant minimement le boulon au cisaillement .(fig 2)
Le moisement à double entailles :
C est le même principe que ci dessus , sauf que les bois passants sont eux même entaillés , leurs attribuant ainsi des arasements qui accentuent un peu plus le contrebalancement des contraintes . (fig 3)
Le double moisement :
Quand cela est nécessaire et possible , le principe fait que toute la surface de coupe d un arbalétrier peu reposer sur un mur , tout en conservant une entaille en désabout , et la possibilité d un double boulonnage . (fig 4)
Les poteaux moisés :
Comme le nom l indique , il s agit de poteaux constitués d un assemblage linéaire moisé , ils sont très solides est résistants ,
Le principe est d enserrer des entretoises de fil vertical ,et de boulonner le tout , ils sont très décoratifs en intérieur dans le style industriel à la mode en ces temps .
En extérieur , ils ne doivent servir que pour des bâtis de préférence démontables ou provisoires (ex .stand, moules support pour tailleur de pierre) , car ils sont sensibles aux intempéries (fig 5).
Les divers renforts d assemblages de charpente et les liaison métalliques
Eléments divers :
Il s agit de tout éléments bois ou métalliques visant à renforcer les assemblages ou faisant obstacles aux assemblages de pièces parallèles en friction , certains sont dévolus à la restauration ou à la modification de charpentes .
Pour en citer quelques uns , comme les étriers ,les boulons (de charpentes) ,les flasques (moises ou fers plat), les crampons (clefs en bois traversantes), les brides , équerre entaillées etc .... (fig 1).
Les assemblages par connecteurs métalliques :
Tout droit venu D Amérique il y a quelques décennies , les agents de liaisons préfabriqués métalliques ont fait leurs preuves, mais ne sont pas très aimés des charpentiers en général ,car ils ont un peu fait de l ombre à leur profession .
On appelle dans le métier ,de la "charpente de meccano" , c est très pratique mais peu esthétique !
Ils sont solides et résistant si ils sont bien considérés à leurs usages , et à condition que les supports auxquels ils sont fixés soient porteurs bien évidemment !! (fig 2-3)
ci dessous le lien des liaisons les plus utilisées
Ici des liens intéressant d ingénierie et calculs sur les assemblages de charpentes .ip51.icomos.or...assemblages.pdf
codifab.fr/sit...ls_dec_2015.pdf
Analyse des pièces de charpente partie 1- propriétés physiques générales et les poteaux
La charpente dite traditionnelle est constituée de fermes, de pannes et de chevrons.
Une ferme est composée par l’assemblage de plusieurs pièces de bois massif. Les arbalétriers, l’entrait et le poinçon forment le réseau principal tandis que les contrefiches, les jambes de force, diagonales et potelets forment le réseau secondaire d’une ferme.
Puis viennent les pièces passantes ,sablières sur poteaux, les pannes, les faîtages, et enfin le chevronnage .
Nous allons présenter chacune d elles et leurs diverses conceptions , pour de la charpente traditionnelle de base !
Certaines pièces nouvelles seront abordées dans le cadre de l arêtier (ex pièces d enrayure) ou de travaux particuliers .
Une règle d'or à respecter toujours, c'est de placer logiquement tout ce qui est poteaux ou poinçons verticalement dans le sens de pousse de l'arbre d'ou il proviens !
Ci dessous , une très belle charpente de auvent sur poteau parfaitement conçue et réalisée ,qui nous permet de visualiser presque toutes les pièces que nous allons détailler .
Notions physiques et mécaniques dans les pièces de charpente
Nous avons présenté plus haut les forces en présences dans les assemblages , ici elles sont les mêmes mais appliquées au pièces de bois en elles même !
Il faut évidemment les assimiler pour pouvoir se poser les bonnes questions dans une réalisation !
Le contrebalancement des effets seront détaillés dans un prochain chapitre lié à l étude et calculs sur une charpente .
La compression :
En charpente , deux critères Généraux nous intéresse :
la compression axiale (linéaire) sur une pièce (ex poteaux, jambes de force, ...) et perpendiculaire ou transversale sur une pièce en appuis (ex une solive, pannes, chevrons, ...)!
La compression axiale , va avoir tendance à éclater (fentes) ou plier (flambement) jusqu à la rupture une pièce sous la charge en fonction du fil du bois ,par exemple un poteau sous dimensionné (fig 1).
La compression perpendiculaire ou transversale , vas elle faire fléchir, rompre ou basculer une pièce , par exemple une solive ou un chevron sous dimensionné ou mal positionné (fig 3) .
La traction ou tension :
C est le contraire de la compression ! En charpente , deux critères Généraux nous intéresse :
La traction axiale linéaire , dans l absolu risque de rompre la pièce !
Une pièce saine ,ne rompra jamais en charpente , les capacités mécaniques en traction du bois sont énormes , par contre une pièce qui contiendrait des défauts du bois majeurs (gros nœuds, fil tranché, pourrissement, etc ..) ou des assemblages trop invasifs ,peuvent crées des faiblesses en amorce de rupture , par exemple sur un entrait (fig 2) .
La traction perpendiculaire ou transversale ,qui commet les mêmes effets que pour la compression perpendiculaire ou transversale (fig 3) .
La flexion et le fluage :
La flexion en charpente dont les causes sont expliquées ci dessus , amène à une déformation sensible sur des pièces comme les solives ,pannes, chevrons , etc ... , qui tend à les cintrer mécaniquement dans le même sens que les charges qui leurs sont appliquées (fig 4) .
la corde, représente l arête de la pièce droite initiale .
La flèche, représente la plus grande distance qui s éloigne de la corde initiale .
L arc, représente la courbure provoquée par le fléchissement .
Le fluage en charpente, est l action des charges sur une pièce pendant une durée prolongée, accentuant la déformation par flexion .
Un bois sec chargé se déformera moins qu un bois chargé humide !
Par exemple un solivage posé sec ou l on entrepose des matériaux lourds pendant un an , auras tendance a reprendre sa place !
Par contre si le solivage était en bois "vert", au bout d un mois avec la même charge de matériaux entreposés , il gardera une grande partie de la déformation de flexion auquel il aura été soumis!
Enfin dans la flexion d un porte à faux ou console , la déformation se fait sur l appuis du support en étirant les fibres au dessus de la pièce et comprimant les fibres au dessous .
Les effets sont la flexion en bascule jusqu à la rupture .
La torsion :
Il est rare en charpente de retrouver cette contrainte mécanique à évaluer sur les bois de conception d un ouvrage (ex un arbre de moulin à vent ou de roue hydraulique ) .
Par contre , il y a souvent torsion et gauchement naturel des pièces , qu il faudra agencer en considération du défaut (risques de déformations sur la structure , ou d affaiblissement d assemblages, de repos) (fig 5) .
Le glissement (cisaillement) :
En charpente ,ce qui nous intéresse, c est le glissement de deux pièces de bois l une par rapport à l autre quand une seules de leurs faces respectives sont alignées !
L effet donné par compression ou traction se nomme le cisaillement (lames de ciseaux) linéaire et perpendiculaire aux fibres , c est le cas par exemple dans le moisage lisse ,ou le travail au cisaillement peut être important et dommageable . (fig 6)
Nous allons maintenant détailler chaque pièces présentes dans une charpente depuis le sol jusqu au faîtage !
Nous étudierons : Sa définition, sa situation et sa fonction, ses contraintes , ses conceptions et assemblages ,dans le but de bien les connaitre , ce qui nous permettra plus tard de comprendre quels calculs et études nous devrons appliquer sur chacune !
Les poteaux, piliers, colonnes, potelets
Les poteaux et assimilés sont très peu abordés dans tout ce qu j ai put chercher sur le web , il s avère que c est une partie très complexe et que peux osent s y aventurer !
Je vais donc essayer de développer le sujet pour que les lecteurs puissent se poser les bonnes questions dans leurs projets .
En charpente , un poteau est une pièce de bois en position verticale de forte section carrée sur laquelle se concentre tout ou parties des forces de descente de charges depuis son sommet jusqu au sol .
Un poteau de section rectangulaire allongée ou assemblé se nomme un pilier .
un poteau de section circulaire se nomme une colonne .
un poteau de section carrée ou approchant s appelle aussi poutre .
un poteau court de section carrée, rectangulaire ,circulaire, se nomme potelet ou chandelle .
La force auquel il est majoritairement confronté est la compression .
Ci dessous quelques exemples .
Situations et fonctions générales des poteaux de charpente
Les poteaux de auvents :
Ce sont les plus connus, ils sont présents dans tous les travaux de charpentes donnant sur l extérieur "au vent" (halles, lavoirs, auvents, car-ports préau, appentis, etc ...) !
Ces poteaux doivent affronter les intempéries , c est pour cela que l on cherche toujours à les isoler du contact avec le sol , et il est préférables de les façonner en chêne .
Ils sont toujours assemblés avec les fermes dont ils reprennent les charges, et avec les sablières passantes, le tout généralement contreventés .
Les poteaux centraux :
On les trouvent généralement au centre des fermes de grandes portées, servant même parfois de poinçon !
Leurs fonctions sont surtout de soulager l entrait de ferme quand il doit supporter un solivage important (granges, bâtiments industriel ou collectif, etc ...) . On peu le dissimuler facilement dans du cloisonnement intérieur .
Les poteaux de soutènements :
Comme le nom l indiquent ils servent à soutenir généralement des entraits ou des pièces horizontales recevant une charge .
Les demi-poteaux :
Comme le nom l indique, se sont des poteaux de section rectangulaire , les petits cotés de valeur d un demi de la face .
Ils sont placés contre un mur ,pour soulager celui ci de la pression du pied de ferme ou soulager les bois du pied de ferme ! (souvent utilisé en restauration ) .
Les poteaux de colombages :
Ils sont placés comme porteurs dans l assemblage des éléments de murs à colombages (Alsace, Normandie, etc ...) , ils restent apparent en extérieurs, le poteau placé à l angle d un bâtis se nomme "poteau cornier" .
Les poteaux biais (Mansart) :
Ils sont présent dans les charpentes de types Mansart, ou ils ont un double emploi !
Ils supportent la charpente du terrasson en portique , et ils accueillent les pannes et chevrons du brisis .
La pente d un poteau biais Mansart accuse une pente entre 60° et 80° ,donné par l arc de cercle divisé du tracé initial d un comble mansardé entre le terrasson et le brisis .
Les poteaux jambages :
Ils sont destinés aux assemblages de façade des lucarnes et autres baies placées dans la toiture !
Les potelets :
Ce sont des très petits poteaux , destinés à supporter des pièces de bois horizontales comme la double sablière de coyaux, ou en demi potelet pour servir de liaison dans les blochets !
Les contraintes des poteaux de charpente
La résistance mécanique :
En premier lieu, un poteau de charpente doit être récepteur d une grande quantité de pression due au poids de la portion de toiture qui lui est destiné.
C est ce que l on appelle sa part de" descente de charge" que nous approfondirons concrètement plus tard !
Pour le situer un poteau dans un ouvrage ,sa résistance doit être égale ou de préférence supérieur en fonction de sa section, de sa longueur, de l'essence ,défauts du bois, auxquels s ajoutent des notions de physiques comme des coefficient d articulation (comment est il fixé) , de flambement (un poteau sous dimensionné ,ploie sous la charge +/- par rapport à sa longueur ).
La compression se calcule normalement en décanewton qui est l unité de force .
On a la chance d avoir le kilogramme force (kgf) à peu prés équivalent au décanewton
( 1 daN = 1,02 kgf ) ce qui simplifie un peu notre travail ,étant habitué à compter en kg et tonnes .
Dimensionnement des poteaux :
Hors calculs de bureaux d études pour des ouvrages du génie civil et les calculs très précis et assez compliqués, la partie qui nous intéresse ici ce sont les capacités attribuées aux poteaux et colonnes dans des ouvrages lambdas en charpenterie traditionnelle !
Deux catégorie de poteaux nous seront utiles , les poteaux et assimilés courts "trapus" (potelets) et les poteaux assimilés "longs"!
1/ les poteaux et colonnes courts (trapus ou potelets) , sont de sections carrées ou parallélépipédiques ,voir en colonnes de sections circulaires ou polygonales qui ont pour longueur un maximum de 5 x la longueur la plus grande de leurs sections, ou 1/4 de leurs circonférences ou facettes .
Leurs résistances mécaniques à la compression en charpente sont très grande ,car elles ne comportent pratiquement pas de "flambement" .
Exemples : Un poteau trapus de section 20 cm x 20 cm = longueur maximum =1 mètre . Un poteau de section 20 cm x 15 cm = longueur maximum 1 mètre . Une colonne de diamètre 20 cm = longueur maximum (20 cm x 3.14 /4) x 5 = 75 cm . Une colonne octogonale depuis un une section carrée = (total des largeurs de facettes/4) x 5
2/ Les poteaux longs et assimilés (colonne ou pilier) sont arbitrairement ce qui dépasse un potelet, avec des sensibilités au flambement ,qui vont générer des baisses capacités de compression .
On considère en général que le flambement doit être pris en compte à partir du moment ou la longueur d un poteau et assimilés dépassent de 10 fois la plus grande longueur de la section !
Exemples : Un poteau long de section 20 cm x 20 cm = longueur maximum sans flambement significatif =2 mètres
. Un poteau de section 20 cm x 15 cm = longueur maximum sans flambement significatif 2 mètres . Une colonne de diamètre 20 cm = longueur maximum sans flambement significatif (20 cm x 3.14 /4) x 10 = 1,57 mètres . Une colonne octogonale depuis un une section carrée = (total des largeurs de facettes/4) x 10
Ci dessous deux liens vers les eurocodes en vigueur ,pour les méthodes et formules de calculs techniques des poteaux et flambements !
geniecvl.com/c...omprimees-cb71/
geniecvl.com/i...materiau-suite/
Parfois il faut calculer un poteau ,ne serai ce que pour valider sa solidité dans un ouvrage de charpente .
Toutefois il est très rare d avoir à le faire de façon très techniques avec les formules adéquat dans un projet lambda car le bois a des capacités extrêmes, et que les cas ou il dépasserait plus de 35% de la charge admissible son rares !
De plus les cas que j'ai découvert au cours de ma vie professionnelle ,étaient surtout des erreurs de jugements ou de personnes Étrangères au métier de charpentier .
Exemple : Soit une charpente de auvent en chêne sur 4 poteaux de 4 mètres parfaitement répartit de 20 x 20 cm contreventés et articulés (fixé au pied et à la tète).
La vue en plan de la toiture est 9 mètres coté fermes et 8 mètres coté pannes (maxi en massif débords compris) en deux pans, accuse un poids total de descente de charge de +/-15 tonnes !
(fermes + pannes/chevrons + tuiles , lattes , sous-toiture ,et voliges de charges permanentes) + (charges temporaires ( climatiques, neige) et d exploitation (poids d une personne de 80 kg) )) au mètre carré x surface des deux pans additionnés .
15 tonnes / 4 poteaux = 3,75 t = on arrondit à 4 tonnes supportées par chacun des poteaux pour sécurité supplémentaire .
la charge admissible du chêne catégorie moyenne est de 136 bars
1 bars = 1 kg/f au cm2 , donc le chêne accepte avant rupture en bois de bout 136 kg de pression au cm 2 .
Nos poteaux on une section de 20 cm x 20 cm = 400 cm 2
Donc charge admissible maximum 400 cm2 x 136 = 54400 kg = 54,4 tonnes théoriques .
En atelier hors bureau d étude , il existe une astuce pour voir si nos poteaux sont compatibles sans flambements .(Ceci n est qu une estimation très générale sur poteaux de section carrée) .
On calcule un élancement arbitraire géométrique !
Pour cela, on estime qu'il n y a pas de risque de flambement à prendre en compte, à partir du moment ou le ratio longueur du poteau et sa section ne dépasse pas 35 .
1/ Dans notre exemple 400 cm (longueur de poteau) / 20 cm = 20
20 étant inférieur à 35 , il n'y a aucuns de risque de flambement
2/ Avec un poteau de 15 cm x 15 cm d une hauteur de 8 mètres = 800 cm / 15 cm = 53,33
53,33 étant supérieur à 35 , il y aura du flambement à contrebalancer , ou augmenter les sections .
Pour notre auvent , un poteau de 20 cm x 20 cm d une auteur de 4 mètres est très largement suffisant !
Sauf que des coefficients de réduction viennent diminuer cette capacité (articulation, élancement ,flambement ,assemblages , densité des bois , défauts etc ...) et la liste est longue .
Il ne faut pas que la charge réelle d un poteau soit en moyenne supérieur à plus de 35% de la capacité maximum calculée de la pièce de bois dont il est constitué .
Pour des travaux lambda on peut évaluer logiquement le travail d'un poteau sans avoir à passer par un bureau d 'étude !
Notre poteau évalué plus haut reçoit un poids de travail de 4 tonnes , et sachant que la valeur théorique de notre poteau 20 cm x 20 cm chêne en charge maximum admissible théorique est de 54.4 tonnes , le ratio de travail utilisé dans ce poteau n est que de (4T x 100%) / 54,4T = 7,35% , ce qui est dérisoire .
2/ Imaginons un cas illogique :
un poteau chêne de 10 cm x 10 cm x 5 m qui ne supporterais que 136 x 100 cm2 = 13,6 tonnes théoriques admissibles.
500 cm / 10 cm = 50 , cela dépasse les 35 donc flambement élevé avéré !! la section ne conviens pas .
(4T x 100%) /13,6T = 29,41 % de sollicitation .
ici on prendrais d énormes risques, le poteau ploierais sous la charge et finirait par céder !
3/ Évaluons la section de poteau minimum sans flambement :
(400 cm2 x 35 %) / 100 % = 140 soit une section de 14 cm x 14 cm minimum pour 4 mètres sans flambement
Charge admissible théorique 196 x (14 cm x 14 cm ) = 31,3 t
(4T x 100%) / 31,3 T = 12,7 % de sollicitation , ce qui est acceptable , par contre les appuis des assemblages , charge au vent , et autres paramètres seront eux aussi à évaluer .
Dans ce dernier cas un charpentier ne prendra pas de risques , et passera directement à des poteaux de 20 cm x 20 cm .
Enfin , dans le cadre d une étude d un projet , le plan papier ou le dessin 3d logiciel, nous démontrera visuellement si un poteau est logique ou pas dans son ensemble !
Un poteau doit être au final équilibré , voir sur évaluer si des charges futurs pourraient lui être apportées (ex solivage chargé d un atelier en plus de la couverture)
Un poteau sous évalué , sera visuellement dans le dessin pas adapté et les estimations plus haut le confirmeront !.
Si des charpentiers pros ici étaient en possessions de abaques de poteaux tout calculés récentes ou de fichier excel de calcul , j aimerais si c est possible avoir les exemples ci dessus en réel calculés pour visualiser les différences entre réel et approximations d atelier !
A chaque ouvrages de charpente son poteau !
Le but de ce pas à pas je le rappelle ici est de se poser les bonnes questions ,et d intégrer des bases de charpentes utiles dans les projets particuliers .
Le dimensionnement des poteaux est une question récurrente sur les forums , ci dessous nous allons explorer celui ci sur quelques exemples courants .
Les charpentiers adaptent les sections de poteaux à leurs ouvrages en fonction des bois standards 8 x 8 cm jusquu à 30 x 30 cm , ou ils doivent faire un débit sur liste si des configurations spéciales le demandent .
Les poteaux de 8 x 8 cm à 10 x 10 cm :
Ces sections de poteaux légers sont surtout pour des menus ouvrages du types pergolas , auvents , bûchers ,poulaillers , petite remises ou cabanes de jardin , tonnelles ,etc ..
Il faut qu il soient un minimum contreventés ,et ne doivent pas accueillir des matériaux de couvertures lourds .
Il faut veiller à bien les fixer au sol (isolé du sol) pour que des bourrasques de vents ne viennent pas abattre les constructions .
une longueur de poteau de 2.50 m doit être un maximum .
Les poteaux de 12 x 12 cm à 15 x 15 cm :
Ici nous arrivons à des poteaux d ouvrages accueillant une couverture fixe ,solide , légère .
Si il y a des tuiles , ce ne peut etre que pour des ouvrages de peu de surface .
Auvents accolés , terrasses couvertes, cars port ,abris de piscines , chalets de jardin , cabanes d enfants etc ..
Des longueurs de poteaux de 3 mètres sont possibles , et plus si accolés et fixés aux murs !
Ils doivent bien sur être contrevventés traditionnellement et articulés (assemblés) en téte et au pied (isolé du sol)
Les poteaux de 15 x 15 cm à 20 x 20 cm :
Ce sont les plus utilisés en charpentes , ils permettent de réaliser des travaux conséquents ! Ils sont destinés aux projets contenant une couverture traditionnelle sur une grande surface de toiture , (voir à supporter des aménagements de charpentes intérieurs (mezzanines , reprises d escaliers, etc ...)).
Auvents, préaux ,habitats à ossatures bois ,ateliers , petits hangars , garage , etc ...
Ils doivent obligatoirement être fixés solidement au sol ,(isoler du sol si placés en extérieurs) ,et être solidement articulés (assemblés) en tète , et comporter un contreventement en fonction .
Les poteaux de 20 x 20 cm et plus :
Ici on arrive dans le monumental , l industriel , ou le design architectural !
On doit par conséquent ici généralement faire des études et calculs techniques , au moins pour vérifier les structures .
Les configurations de poteaux ,piliers et autres que standards
Les piliers assemblés :
Dans des ouvrages qui sortent du traditionnel ,pour des raisons design architecturaux ou génie civil,les éléments porteurs sont parfois assemblés de plusieurs pièces de bois ou "moulés" en lamellé collés .
Ces éléments sont alors à étudier et à calculer en particulier (Photos 1-2-3).
Les colonnes carrées ,circulaires ,sculptée :
Ce sont à la base des poteaux , que l on façonnent sur des critères antiques pour des monuments ou de la décoration particulière.
Pour le calcul ,on part d un poteau carré ,auquel il conviens d ajouter parfois le bois en plus pour le façonnage .(Photos 4-5-6) .
Notions d articulations des poteaux
Il existe une quantité de moyens de lier les poteaux en tète et au sol , ci dessous les plus communs qui peuvent être déclinés suivant les besoins et les ouvrages (Schémas ci dessous 1-2)
Enfin un élément porteur ne doit jamais être en contact direct avec le sol ,surtout en extérieur , les deux exemples ci dessous (3-4) le prouvent .
En charpente intérieur , au sol le poteau doit être minimum fixé sur une semelle en bois dur (ex poteau de mezzanine) ou fixés avec un dé en pierre ou béton (il faut que eux même , acceptent la même charges que les poteaux vont leurs communiquer ) pour des éléments très porteurs .
A suivre , les entraits
Analyse des pièces de charpente partie 2- Les entraits
L'entrait (ou tirant)
En terme de charpente c' est un élément d une ferme.
L entrait est une pièce de bois horizontale qui sert à réunir les arbalétriers et qui est posée à ses extrémités sur les murs extérieurs ou poteaux .
L'entrait sert à empêcher l'écartement des arbalétriers, il travaille à la traction et représente la pièce principale qui régit l équilibre des poussées obliques de la toiture les transformants en appuis verticaux ,évitant ainsi le basculement des murs vers l extérieur .
Il est appelé aussi très souvent un tirant , définissant par son seul nom sa fonction .
Situations et fonctions générales des entraits de charpente
L'entrait traditionnel :
C est le plus connus ,il se présente en une seule pièce de bois ,qui peut être forte suivant la portée , il est assemblé par tenons/mortaises associées à des embrèvements .
Il peut être autoporteur d un solivage jusque à 8 mètres à condition de le munir d un étrier à la liaison flottante au poinçon et associé à de plus fortes sections .
A plus de 8 mètres de portée , il est souhaitable qu il y ait un mur ou un poteau central de soutènement en cas de solivage porteur .
L'entrait moisé :
Très utilisé de nos jours , il permet de jumeler l entrait en deux pièces appelées moises , celles ci sont entaillées pour recevoir le poinçon, les arbalétriers et réseaux secondaires ,puis boulonnés .
Il est autoporteur jusqu à +/- 8 mètres en fonction de la destination du solivage , au delà il est préférable qu il y ait un soutien central .
Ici le poinçon n est pas flottant il est boulonné et sert de suspente . Si il est situé dans une ferme à double entrait de grande portée , on peut lui ajouter des suspentes pour le soutenir en cas de solivage depuis le faux entrait (Ferme à la Palladio) .
L’entrait retroussé ou relevé :
Il constitue pas la base du triangle de la ferme, mais il est placé un plus haut sur les arbalétriers !
C est surtout le cas quand il faut ménager un passage sous combles . Dans ce cas il peut etre assemblé par tenons/mortaises traditionnels ou le plus souvent moisé de nos jours .
Il travaille en tirant ,sauf que les pieds d arbalétriers sont un peu plus bas sur blochets ,corbeaux ou sur des semelles .
Le faux entrait :
Il est présent sur les fermes à doubles entraits ou sur blochets , il est assemblé moisé en haut de ferme comme l entrait retroussé ,reprenant les arbalétriers ainsi que le poinçon , sauf qu il travaille en compression .
Dans certains cas ,il permet de supprimer le poinçon (ex fermes à très faible pentes) .
Le tirant métallique :
Il se présente sous forme de câbles, de tiges métallique de fort diamètre ou de fers plats , repris en direct aux pieds d arbalétriers ou associé à des étriers .
Sa fonction est de s émanciper d un entrait traditionnel et être donc moins invasif ou caché dans l architecture tout en assurant le travail en traction entre les arbalétriers.
Quant il est apparent , il peut être associe à une "aiguille" suspendue depuis le poinçon pour retenir son fléchissement .
Le demi entrait :
Présent surtout dans les auvents adossé à un mur et les demi fermes d arêtiers ou fermes de croupe , il travaille aussi en tirant grâce à l agencement réfléchi des contrefiches et jambes de forces .
On peut le tailler en une pièce traditionnelle ou le moiser .
Les petits entraits :
On les situent principalement dans le cas de petite fermes de croupe "a l Alsacienne" ou dans les lucarnes .
Ils sont rarement en force de travail tirant ,mais on leurs apportes des petits arbalétriers depuis le poinçon pour les soulager .
Les contraintes et dimensionnement des entraits de charpente
La résistance mécanique :
L entrait est souvent de grande dimension dans une charpente, de plus il reprend tout le poids de la descente de charge de la toiture pour transformer la compression oblique générée en compression verticale sur les murs ou poteaux ,ce qui en fait un élément à ne surtout pas négliger dans le choix qualitatif du bois ,de sa section , des assemblages aux pieds d arbalétriers et poinçon .
Comme nous l avons déjà cité plus haut ,un entrait travaille à la traction , donc sa résistance mécanique en ce sens doit être supérieure aux poids des forces auquel il est contraint !
De plus il doit supporter le fléchissement de son propre poids en plus d éventuels solivages qui lui sont apposés .
Hors bureau d étude , les charpentiers connaissent d instinct la forte résistance en traction du bois "saint" d un entrait (minimum égale en section aux arbalétriers), ils sont généralement plus attachés à ce que cet entrait va supporter dans le temps.
Je m explique : Un entrait dans l architecture suivant l endroit ou il se trouvera placé , doit souvent en plus de son travail initial être porteur un solivage de plafond ,un solivage de plancher , ou les deux réunis !
Donc les bonnes questions que les charpentiers se posent sont surtout sa résistance en flexion en le considérant comme une grosse solive !
Nota : nous étudierons le calcul approfondis des solivages dans l étude de charpentes.
La force de traction se calcule normalement en décanewton qui est l unité de force .
On a la chance d avoir le kilogramme force (kgf) à peu prés équivalent au décanewton
( 1 daN = 1,02 kgf ) ce qui simplifie un peu notre travail ,étant habitué à compter en kg et tonnes .
les résineux en moyenne résiste en traction à +/- 180 kg par cm2
le chêne en moyenne résiste en traction à +/- 200 kg par cm2
En théorie , un entrait de section 22cm x 10 cm résiste à (22 x 10) x 180 = 39,6 tonnes maximum de traction pour du résineux et (22 x 10) x 200 = 44 tonnes maximum de traction pour du chêne .
Sachant que pour une ferme chargée lambda il arrive par les deux arbalétriers environ +/- 15 tonnes de traction ,la marge est grande .
Raisonnablement , les charpentiers augmentent leurs sections ou moisent dès qu'il y a dépassement de plus 50% de l admissible !
Dimensionnement des entraits :
1/ Pour une ferme latine traditionnelle en comble perdu (Fig 1) , on considère que l entrait (muni d un étrier au poinçon ) jusqu à 8 mètres maximum de portée doit être égal ou supérieur (si besoin) en section aux arbalétriers ! (ex . des arbalétriers de 22 cm x 10 cm ,l entrait 22cm x 10 cm) , car il n accueillera qu un solivage léger pour soutenir le plafond dessous et un plancher léger de service dessus (ramonage ,couvreur, ...)
L entrait soulagé par l étrier fixé au poinçon donne en fait l équivalent de deux solives de portée de 4 mètres .
Enfin, si cet entrait doit être chargé (remise, atelier,etc...) on augmente sa section ou on moise ,et on lui ajoute des jambes de force ou poteaux dessous !
Pour un entrait retroussé moisé ,on applique les mêmes règles .
2/ Pour une ferme à deux entraits en combles aménageables (Fig 2) , il y a un "faux entrait" qui triangule la partie haute ,et un entrait en partie basse qui travaille en traction .
Ce dernier est souvent de grande longueur (jusqu à 12 mètres), pour cette raison traditionnellement en une pièce , on augmente sa section du double des entraits (en cm2) ,et il doit être soutenu par un poteau ou un mur (parfois décalé en fonction des besoins) pourvu que la longueur entre deux points d appuis n excède pas 5 mètres .
Si toutefois on désire un libre accès libre sous la ferme , il faut lui ajouter des suspentes bois ou métalliques reprisent en dessous du faux entrait .
De nos jours , l entrait est moisé ce qui double automatiquement sa résistance ,mais on doit néanmoins respecter les point d appuis à 5 mètres maximum et augmenter les sections et le réseau secondaire (poteaux , jambes de forces ,murs ) en fonction de charges supplémentaires non domestiques .
Les suspentes Palladio (peux connues) sont très peut utilisées malgré leurs grandes qualités de raidissement et la facilités d assemblages aux moises (queues d arondes).
3/ Pour une demi ferme (fig 3) l entrait traditionnel en combles perdus (libre ou solivettes plus plafond) doit être équivalent en section à son arbalétrier ,et ne pas dépasser une portée de 5 mètres .
Si toutefois on doit le charger , il faut augmenter la section ou le moiser (voire installer un réseau secondaire poteaux ou jambes de forces) .
Jusqu à 12 mètres de portée , il doit être moisé , les sections augmentées (non porteur) , et enfin si il doit être chargé , la règle des 5 mètres entre appuis s applique par poteaux , murs , jambes ,etc ...
4/ Les tirants métalliques (fig 4) ,sont utilisés souvent en cas de modification de ferme de charpente ,principalement pour éliminer un entrait entier ou partiellement quand celui ci gène à l agencement habitable .
Ils sont en tiges métalliques , câbles , fers plats , solidement ancrés aux extrémités (plaques , sabots , etrier ,etc ...) .
Le boulonnage se fait aux extrémités , ou central suivant les besoins .
Le dimensionnement se calcul alors en rapport avec l exercice de traction aux pieds des arbalétriers .
Suivant ou on les place , ils peuvent être cachés dans le plancher , ou apparents pour des effet design .
Evidemment on ne les charges pas et parfois on leurs ajoutes des aiguilles depuis le poinçon pour éviter la flexion !!!
Pour des tes grandes fermes (portée 12 mètres), on utilise des diamètres de tiges allant jusqu à de 40 mm de diamètre , deux câbles jumelés de 20 mm de diamètre , ou deux fers plats boulonnés de 80 x 10 mm qui peuvent aussi servir à renforcer un entrait "fatigué" .
Si l entrait recoupé était en portée libre , il faut ajouter un poteau , un blochet ou un murs sous les parties restantes en plus du tirant métallique !
5/ Les petits entraits (fig 5) , pour croupes ou lucarnes sont réalisés avec des bois similaires aux pannes ,ils sont solides du fait de leurs courtes longueur ,mais on leur ajoutes généralement de petits arbalétriers cloués pour soutenir l équerrage et rejeter un peu la compression d aplomb vers les porteurs .
L illustration (fig 6) donne un petit résumé en image de dimensionnements lambda valable en un ou deux pans pour vos projets (plus que 12 mètres on passe en lamellé collés généralement) !
Les schémas ci dessous sont sans réseaux secondaires pour la lisibilité !
A chaque ouvrages de charpente son entrait !
1/ Les tout petits entraits ou en sections très fines peuvent être placé dans des cabanes ,remises de jardin ,etc ...!
On peut les assembler par vissage avec un petit embrèvement si on charge un peu le toit (couverture hors tuiles) .
Le principe d agencement des pièces reste le même que pour des gros ouvrage .
chevrons ou solivettes peuvent être utilisées sans jamais dépasser 2.50 mètres environ .
On peut s amuser en moisant et faire de jolis effet (cabane de "princesse") . (fig 1)
2/ Les entraits en porte à faux , doivent être étudiés avant de les placer dans un ouvrages , mais ils donnent de beaux résultats dans des ouvrages apparents .
On peut avoir à mettre un entrait en porte à faux dans une habitations ,dans ce cas , il faut faire coïncider la jambe de force avec le mur .(fig 2)
3/ Les entraits en lamellés collés , apportent de la solidité pour de très grandes longueurs , ils sont aussi utilisés (sur évalués) pour de la déco design (fig 3) .
4/ Les entraits en rondins bruts , sont utilisés souvent ou le résineux est rois (alpages , Vosges ,etc ...), ils demandent plus de temps à tailler car il faut tabletter les arasements d assemblages .
Leurs calculs de sections sont basés sur les surfaces circulaires évidemment !(fig 4)
5/ Les entraits en bois anciens de réemplois ,doivent être choisis judicieusement ,et scrutés pour détecter les défauts du bois cachés .
Un bois qui a cintré par flexion longue (fluage) , ne doit jamais être retourné ! (fig 5)
6/ Les entraits de tourelles , sont "noyés dans l enrayure , un seul est traversant , les autres viennent s assembler au poinçon et aux "goussets" .(fig 6)
A suivre , les arbalétriers
Analyse des pièces de charpente partie 3- Les arbalétriers et les poinçons
L’arbalétrier
Un arbalétrier est la pièce maîtresse de bois entrant dans la composition de la ferme de toiture ou de comble. Les arbalétriers donnent l'inclinaison, la pente du toit et supportent la couverture comme les pannes sur lesquelles sont appliqués les chevrons.
L'arbalétrier s'assemble à sa partie supérieure dans le poinçon, à sa partie inférieure dans l'entrait.
Son nom vient de sa forme en arbalète.
L’arbalétrier représente la pièce de charpente ancestrale par excellence, du fait de sa position oblique destinée à recevoir une couverture à l image des perches d un tipi amérindien .
Les anciens ont très vite compris l utilité d assembler les pieds d arbalétrier dans un tirant et un poinçon au sommet pour assurer une triangulation solide .
Apres, semble t il plusieurs expérimentations techniques aux cours des siècles en passant d une logique de "chevrons arbalétriers" (fig 1) peu espacés pour arriver de nos jours à des pièces qui assurent la solidité et pérennité d une charpente en en faisant des éléments sans contraintes grâce aux fonctions réfléchies du réseau secondaire avec un minimum de matière (fig 2) .
Assimilées aux arbalétriers , il y a les noues et les arêtiers qui sont assimilés à des arbalétriers recevant les pannes en creux , parfois montés en demi ferme ou en ferme .(fig 3)
Dam
Bonjour, sur la figure 3, au fond c'est un arêtier que l'on aperçoit et non un arbalétrier, de fonction réciproque a la noue (angle saillant <=> rentrant)
Erreur de ma part sur la photo 3 ,il faut lire arêtier et non arbalétrier , excuser la confusion !
Situations et fonctions générales des arbalétriers de charpente
L arbalétrier commun :
Il est présent dans la plupart des charpentes lambda (latines) , il est assemblé au poinçon et à l entrait, il reçoit les pannes sur échantignoles sur son champ du dessus ou en liernes contre ses faces .
L arbalétrier avec entrait retroussé :
Il est similaire au précédent ,sauf que son pied est placé plus bas que l entrait sur un blochet ou une semelle.
L arbalétrier avec double entrait :
Il a la particularité de trianguler et de supporter le sommet d une grande ferme grâce au faux entrait , son pied étant lui assemblé dans l entrait ou un blochet .
Le sous arbalétrier ou double arbalétrier :
C est un arbalétrier assemblé contre l arbalétrier principal , ayant la fonction de soulager ce dernier et il évite ainsi l encombrement d un aisselier et d une jambe de force !
Il part du pied jusqu au faux entrait .
L arbalétrier de auvent (un pan) :
Il est seul sur poteaux avec jambes de force ou assemblé dans un demi entrait .
L arbalétrier autoporteur :
Généralement c est une simple pièce de bois oblique destinée à soulager des pannes longues , ou porteur constitué de bois composite (ex lamellé collé)
Parfait pour laisser un espace complètement libre , mais il doit être calculé avec soin !
"L arbalétrier" d arêtier :
Il est similaire aux autres , sauf qu il faut le tracer par art du trait pour déterminer ses mesures et son usinage.
On le trouve dans les croupes ou dans les kiosques et tourelles .
Il peut être classique avec des échantignoles et pannes reposant sur lui ,ou être taillé plus large avec un délardement ,les chevrons venant en coupes biaises clouées contre lui .
On nomme généralement seulement arêtier !!
Les chevrons-arbalétriers :
Méthode ancestrale qui consiste à réaliser plusieurs fermes peu espacées appelées autrefois ""les charpentes à « chevrons-portant-fermes »"" , leurs arbalétriers servant de chevronnage et de coyaux s il y a lieu .
Le principe fut largement repris pour la conception des fermettes dont leurs arbalétriers font aussi chevronnage .
On les perçoit aussi très souvent dans les clochers ou les tourelles .
Les arbalétriers de décharges :
On les retrouves dans les colombages ,ou les très petites fermes (croupe alsacienne ou lucarnes) , ils servent surtout à soulager et contreventer les poinçons ou potelets .
Les noues :
La noue de charpente est souvent assemblée sur un entrait et un poinçon pour former une demi ferme de noue où elle est analogue à un arêtier .
Les contraintes et dimensionnement des arbalétriers de charpente
Cette section va être assez courte , car les arbalétriers contemporains sont déchargés de la majorité des contraintes ,encore faut il qu ils soient assemblés judicieusement !
Partant du principe que les fermes de charpentes sont abouties , les arbalétriers se dimensionnent en fonction des pannes , cela permet d avoir le maximum de sections identiques dans la commande des bois .
Les arbalétriers de fermes d arêtiers et de noues , se dimensionnent au dessin d étude par art du trait en fonction de délardements ou sur-largeur pour rattraper l épaisseur des chevrons .
Quand un arbalétrier est trop "fin" en terme de section , on peut palier au sous dimensionnement en lui ajoutant un double arbalétrier pris au pied de ferme jusqu au faux entrait .
Les chevrons arbalétriers , en fonction de la tourelle ou du brisis d un comble à la Mansart , il faut faire un rapport logique en fonction de leurs longueurs ,leur sections et leurs inclinaisons .
Ex : des chevrons arbalétriers d une tourelle entre deux points d appuis espacés de 2 mètres , nous prendrons des chevrons de 8/12 cm pour une pente supérieur à 60 ° ou 6/15 a moins de 60° .
Le point de charge se calculera en portée de chevrons ou de solivage pour les ouvrages à faible pente .
Ci dessous , des schémas illustrant les positions maintenues sans contraintes majeures des arbalétriers .
A chaque ouvrage de charpente son/ses arbalétriers !
1/ Les arbalétriers de fermes anciennes :
Elles sont souvent tirés directement d un arbre in situ , c est pour cela que fréquemment on les aperçois très souvent "tordus" !
Les anciens tirait partit des bois cintrés naturellement (charpente en courbes) , ou plaçaient volontairement les bois les plus déformés en arbalétriers, car ils avaient compris que cette pièce n a "peu de contrainte" et demande que peu de points d appuis (échantignoles/pannes)!
Ils plaçaient leurs bois sur l épure en fonction des appuis utiles , puis piquaient le reste du tracé ou le bois emmène les assemblages .
Il faut tout de même respecter quelques règles en cas d ouvrages avec du bois ancien de réemplois , il ne faut jamais retourner un bois flué (fluage), et essayer au mieux de mettre en miroir deux bois "tordus" assez similaires dans une ferme , car en effet ,les arbalétrier doivent être au même niveau sur le poinçon en tète pour faire leur travail de pression correctement sans déséquilibre (fig 1) .
Il arrive parfois , que l on aperçoive un arbalétrier ou les anciens on tirés partit d un embranchement pour faire l échantignole dans la masse (fig 2) !
Quand les bois d arbalétriers sont assez larges (en plus de la largeur de panne requise au dimensionnement ) , on peut entailler les pannes au lieu de placer des échantignoles (fig 3) .
2/ Les Arbalétriers anciens autoporteurs :
Ce type "charpente à la Philibert Delorme (Architecte (1510-1570)" , on à mes yeux une saveur particulière , un sentiment de jeu de construction d enfance .
Cet Architecte , a crée en son temps un système appelé charpente à petits bois , conçues à base de pièces courtes cintrées et jumelées ensembles avec joints alternés , puis reliées en liernes et clavettes .
Ces arbalétriers supportent ensuite les voliges où sont accrochées ou clouées les ardoises ou bardeaux .
On peut aussi l intégrer dans une ferme classique .
Il est remis au gout du jours à notre époque a cause du design particulier qui le caractérise et en fait de beaux ouvrages contemporains très appréciés !
Mécaniquement à l heure actuelle , il est possible facilement de concevoir en série les pièces en dérivés du bois (contreplaqué marine) depuis la création d une niche pour le chien jusqu à son habitat .
Je pressent que cela va donner des idées aux boiseux qui ne connaissent pas !
3/ Les arbalétriers autoporteurs contemporains :
Ils sont généralement souvent issus de la technique du lamellé collé , on peut acheter des poutres toutes faites de plusieurs sections , ou faire faire par une entreprise spécialisée son projet .
Il serait aventureux de créer soit même sa charpente (pièces cintrées) , les techniques étant très avancées pour les gros ouvrages !
Les arbalétriers de ce genre , travaillent par leur seule force mécanique , c est pour cela qu il faut calculer leurs dimensionnements correctement. (fig 5-6)
4/ Les doubles arbalétriers :
Ils sont une alternative intéressante pour palier au manque de rigidité d une pièces faible en dimensionnement , elle peu servir aussi à éviter des pièces de renfort trop invasives dans les combles (jambes de forces) .
Enfin le principe peu servir a renforcer des arbalétriers "fatigués" !
ils doivent être contre l arbalétrier principal, ou minimum en parallèle de celui ci et contre-calé avec (fig 7)
!
Le principe en double arbalétrier est repris ponctuellement dans des grandes fermes industrielles pour supporter des grandes surfaces de toitures (ex : Supermarchés , hangars agricole , etc ...)
5/ Les arbalétriers d arêtiers ( et noues) :
Ils peuvent être taillés de plusieurs manières !
Les arbalétriers que l on voient souvent , ont une grande largeur pour pouvoir prendre les pannes sur ses faces ,plus une sur-largeur pour rattraper les chevrons !
Cela demande de grosses sections de bois à la base , mais on peut aussi contrebalancer cet inconvénient en assemblant en double arbalétriers (fig 8).
Nous pouvons aussi faire des arbalétriers d arêtiers égaux aux fermes droites , en y appliquant des échantignoles taillées en fonction du logement de rencontre des pannes .
Ce système sert aussi dans le cas des noues ou de pannes cintrées !(fig 9)
6/ ""les charpentes à « chevrons-portant-fermes »"" :
Ils sont principalement utilisés de nos jours dans les tourelles ou les clochers , ici les arbalétriers se trouvent rapprochés servant de lattis directement sur leurs champs .(fig 10)
Ce principe a été repris de façon contemporaine dans les charpente industrielle types fermettes . (fig 11)
Le poinçon
Pièce verticale d'une ferme, qui reçoit les deux arbalétriers et s'assemble au milieu de l'entrait. (Larousse)
Le poinçon de charpente tire son origine des poteaux ancestraux que l on a couper afin de libérer la surface d habitat .
Le poinçon est généralement de forte section carrée auquel viennent s assembler les autres éléments de la charpente (ferme , faîtage ,arêtiers , etc ...).
Il doit être assez solide pour travailler en tirant ,ou en compression suivant les cas , de plus accueillir divers assemblages en son sein (mortaises , entailles , boulonnages ,etc ...).
Cette pièce est présente dans une grande majorité des fermes de charpente ,faisant la liaison de l ensemble des éléments de structure principale !
Parfois le poinçon n est pas nécessaire dans certains cas comme des fermes avec très peu de pentes ,ou il serait par conséquent très réduit .
Il y a aussi des types de fermes régionales ,anciennes ou exotiques (ex les fermes crush ou cruck) ,ou les poinçons ne sont pas présent , mais on adoptés une taille particulière tout aussi solide .
Dimensionnement des poinçons :
Les poinçons , sont souvent de sections carrées en 15 x 15, 20 x 20, 25 x 25 centimètres , mais ils peuvent être de section rectangulaires dans le cas de fermes ne dépassant pas 8 mètres de portée , ou on les débite au minimum dans les même sections que les entraits et arbalétriers .
Ou encore dans le cas des demi fermes pour les accoler aux murs (fig 2).
A chaque ouvrage de charpente son poinçon !
1/ Les poinçons poteaux :
Ils servent de poinçons classiques , mais descendent jusque sol ,on les trouvent dans les très grands ouvrages généralement pour soutenir parfois plusieurs étages depuis les combles (fig 1) .
Parfois de nos jours , on en place certains pour éviter des scellements ou des assemblages trop coûteux en temps , c est moins chronophage mais moins pratique ou esthétique dans l agencement des surfaces !
Pour ce dernier cas , les bons charpentiers les évitent ,ils sont gages de méthodes pas très professionnelles !
2/ Les poinçons communs anciens :
Ceux ci ne sont plus à présenter, ils sont assemblés par tenons et mortaises dans l entrait monoxyle . Parfois chevillés (fortement déconseillé quand il travaille en tirant ) , ou avec le tenon dépassant nanti d une clef ,ou enfin avec étrier métallique (fg 2).
3/ Les poinçons suspendus :
On en aperçoit surtout dans les tourelles ou toitures en arêtiers peux pentues , ou il peut être débarrassé de l entrait car il travaille en tirant ,mais en plus il est tenus latéralement par les directions opposées des arbalétriers et contrefiches sur ses 4 cotés !
Dans des monument historiques ,il en existe de magnifiquement ouvragés et sculptés (fig 3) .
4/ Les poinçons en enrayure :
Ils sont similaires aux précédents sauf qu il sont nantis d entraits enrayés à leurs bases .(fig 4)
5/ Les demi poinçons :
On les percois dans les demi fermes ou les consoles , ils sont rectangulaires de sections et accolés au parois .(fig 5)
6/ Les autres poinçons :
Ce sont tous les bois verticaux destinés à recevoir une logique d entrait et d arbalétriers , comme les fermettes et les très petites fermes (lucarnes, croupes Alsacienne , etc ...)(fig 6)
a suivre contrefiches et jambes de force
Analyse des pièces de charpente partie 4- Les contrefiches ,liens, jambes ,aisseliers, goussets
Contrefiches ,liens, aisseliers jambes, goussets
Maintenant que nous connaissons la composition du triangle de base de charpente (Entrait arbalétrier poinçon) ,nous allons découvrir le réseau secondaire, servant à renforcer, soulager, contreventer, ou soutenir un ouvrage de charpente.
En effet, le triangle d une ferme ne suffit pas toujours à assurer la stabilité et pérennité de l ensemble.
Les charpentiers ont au cours des siècles, ajouter des pièces réfléchies aux endroits stratégiques en toutes logiques!
Dans le langage d un atelier à l autre, ou régionalement, les dénominations de ces pièces peuvent être interprétées différemment, tout en sachant que les charpentiers savent toujours à quoi ils ont à faire !!
Le nom de base est la contrefiche, mais on mélange souvent bras, jambe, lien, aisselier, gousset, ect.
Le point commun est que ces pièces placées en obliques relient chaque fois deux pièces d un réseau primaire et/ou passant ensembles.
La définition du Larousse de la contrefiche n est pas plus précise :
Dans une ferme de charpente, lien entre l'arbalétrier et le poinçon, au droit d'une panne.
Lien de contreventement.
Barre diagonale dans un panneau de poutre en treillis.
Étai oblique.
Synonyme de jambe de force.
Nous allons plus bas essayer de caractériser un peu plus précisément les différences entres ces pièces !
ci dessous quelques exemples d illustrations de présentations .
Situations et fonctions générales des Contrefiches, liens, aisseliers, jambes, goussets de charpente
1/La contrefiche ou fiche :
La contrefiche est à la base est une pièce de charpente placée obliquement, pour soulager ou renforcer d’autres pièces, soumises à des compressions, flexion, tensions, etc, qui pourraient être déformées ou rompues .
Actuellement, la contrefiche (ou fiche) nommée reste surtout la pièce placée dans l'assemblage d une ferme reliant obliquement le poinçon à l arbalétrier, assurant à la fois la rigidité de ce dernier face au poids de la toiture et la mise en tension du poinçon qui assurera un travail d équilibre des forces de la ferme en étant placée en miroir avec une autre contrefiche.
Elle peut être seule dans le cas d une demi ferme, et assemblée à l'entrait pour produire un travail de tirant sur l'entrait depuis l arbalétrier.
2/ L aisselier :.
L'aisselier nomme une pièce de charpente oblique autour de 45° ou isocèle, droite ou courbe, qui relie généralement dans une ferme le faux entrait et l arbalétrier, servant à les soutenir, les consolider ou les soulager.
Il sert aussi à rigidifier la liaison D'angle, et à empêcher l’écartement de deux pièces assemblées .
Placé de bout contre un second aisselier lui même placé en jambe de force sur un corbeau, ils forment tut deux un berceau, ce qui préserve l'espace sous les combles tout en apportant une grande solidité à la ferme .
L'aisselier peut être placé sous un arbalétrier jusqu'au poteau ou un corbeau dans le cas par exemple d'une demi fermes sans entrait.
3/ Bras de force et/ou jambe de force :
Bras ou jambe représente la même pièce, sauf que certains charpentiers nomment la jambe de force tous bois placé au pied d une ferme destiné à recevoir l appuis total complet d une pièce sur une semelle vers le sol (dans un blochet par exemple, et un bras de force la pièce qui recevra tout l appuis d une pièce sur une autre pièce placée hors sol (exemple dans un poteau ou un corbeau (ex. console)).
4/ la jambette :
C est une petite jambe (appelée aussi potelet parfois) de force placée dans une ferme entre l arbalétrier et l' entrait destinée à recevoir en soulagement qu une "petite portion" de force à l'emplacement d'une panne au pied de ferme .
5/ le gousset :
Le gousset est une pièce générique posée horizontalement destinée à contreventer une charpente à l'intersections d entraits multiples (tourelle (enrayure) , ferme d arêtier, etc ...) .
Ce sont des bois de même sections que les entraits qui peuvent aussi avoir une double fonction en recevant en plus un entrait d'arêtier appelé "coyer".
Un gousset peut être placé aussi dans l'angle entre un entrait et une panne sablière sur poteau pour libérer la place qu un lien pourrais gêner (ex . porte de garage dans auvent)
Tous ces éléments ont une utilité mécanique véritable et peuvent produire des effet décoratif (cintrés , sculptés , tournés , multipliés , sur-dimensionnés etc ...) ) dans une charpente apparente , en aucun cas ils ne doivent être diminués ou détournés de leurs fonctions première.
Nous pouvons aisément mettre des liens postiches dans le cadre de décoration intérieure ,mais ne jamais en supprimer pour les même raisons !
Les contraintes et dimensionnements des éléments secondaires
Tous les éléments énumérés ci dessus , sont installés pour reprendre et redistribuer diverses forces, et pour cela ils se taillent chacun d une façon réfléchie pour apporter le maximum d efficacité tout en restant simple à installer en situation !
Leurs assemblages doivent être facilement démontables et re-montables sur le chantier, solides et pérennes !
Nous allons détailler les principes de bases pour les imaginer dans la réalité .
Contraintes et dimensionnement des fiches ou contrefiches :
Les contrefiches travaillent en pression depuis les arbalétriers sur le poinçon ,c est ce qui fait l équilibre parfait des forces dans une ferme .
Les règles a respecter sont :
1/ Les contrefiches doivent être assemblées toujours de façon à produire un travail de compression depuis les arbalétriers sur le poinçon ,demi-poinçon, ou sur l entrait pour que ces derniers "annulent" les forces en produisant un travail de traction ! (fig 1).
2/ Les assemblages de contrefiches doivent être en embrèvements des que l arasement est en dessous d un angle de 60° .(fig 2)
3/ Les assemblages de contrefiches, doivent être par tenons et mortaises et chevillés à tire traditionnellement , mais peuvent être liés par tires-fonds ou boulonnés pourvus que leurs appuis soient taillé en embrèvements !(fig 3-4-5-6)
4/ La section d une contrefiche doit être de la même épaisseur que son arbalétrier , et ne doit pas être inférieure en largeur à la moitié de celui ci !
Exemple : un arbalétrier de 22 x 10 cm = 11 x 10 cm minimum de section pour la contrefiche .
Contraintes et dimensionnements des aisseliers :
les aisseliers sont placés dans l alignement de la ferme , ils travaillent tantôt en compressions (ex dans un berceau) , tantôt à l arrachement (ex seul entre un faux entrait et l arbalétrier) , ou encore comme lien de contreventement (ex entre un arbalétrier sans entrait et un poteau) (fig 1) !
Les règles à respecter sont :
1/ Les aisseliers ,sont assemblés majoritairement par tenons et mortaises chevillés , il faut toujours ajouter des embrèvements , sauf en cas d aisseliers travaillant à l arrachement (ex entre un faux entrait et un arbalétrier traditionnel ) ou la liaison classique suffit à faire le travail .
2/ Un aisselier doivt toujours être placé à 45° ou de façon isocèle avec les deux pièces qu il relie, lui représentant la base du triangle .
3/ En cas de chantournement ou de dédoublement , sa section doit toujours être au minimum de la moitié de la sections des bois reliés .
Exemple : pour un arbalétrier et entrait de 22 x 10 cm de section , l aisselier doit être de minimum 11 x 10 cm quand il est droit , et on doit pouvoir tracer cette largeur dans la courbe d un aisselier cintré depuis les arasements . (fig 2)
Pour les bois en cintre naturel , leur largeur ne doit pas être en dessous de la moitié de la section de l arbalétrier et de l entrait .
Contraintes et dimensionnements des jambe ou bras de force :
Les jambes ou bras de force , travaillent exclusivement en compression, considérant que ceux ci reprennent majoritairement toute une part de descente de charge ,qu ils déchargent à leurs tours sur/dans les murs ou au sol !!
Les règles à respecter sont :
1/ Elles/Ils sont stratégiquement placés et toujours à plus de 45° pour avoir le maximum d efficacité, avec un minimum d encombrement .
Quand ils sont courbes , il est préférable de les débiter dans des pièces d origines au fil cintré naturel .
On peu leur placer une jambette pour retenir leurs flexions éventuelles .
2/ Leurs sections doivent être +/- égale au bois qu ils soutiennent, y compris dans le cas de jambes courbes , ou leur largeur de fil non tranché doit être aussi +/- égale .
3/ Les jambe de forces doivent être obligatoirement faite d assemblages ou de liaison associées à de l embrèvement (fortes charges) !
Quant il s'agit de jambes de forces "postiches" pour de la décoration , elles doivent être au moins solidement fixées dans le cas ou elles pourraient servir d accroches pour des suspensions domestiques !
Dans le doute toujours verifier leur utilité de base .
4/ Elles/ils doivent être toujours débitées dans du bois de qualité sans défauts ou vices majeurs !
5/ Ces éléments doivent toujours porter sur une semelle ou un corbeau ,car sur sol ou dans un mur ,ils peuvent être dégradés par l humidité , il vaut mieux avoir à changer la semelle ou le corbeau que changer la jambe !
Une semelle ou un corbeau ont aussi pour but d'agrandir la surface d appuis !
Contraintes et dimensionnements des lien de contreventement :
Les liens de contreventements ont pour fonction de tenir la cohésion des angles aux intersections de pièces d une charpente, il est rare qu un lien ait à supporter du poids mais il peut y aider dans certains cas ou il faut les dimensionner.
Les liens travaillent principalement à l arrachement , et en compression sur les assemblages .
Les règles à respecter sont :
1/ Les liens se posent de préférence dans une logique de 45° ou isocèle à la réunion de deux éléments pour maintenir leur équerrage !(fig 1)
2/ Les liens peuvent être fixés en simple coupe vissée pour de petits ouvrages non porteurs (pergola , cabane ou appentis à toiture légère ,etc ).
3/ Dans les ouvrages de charpente traditionnels , les assemblages doivent être à tenon/mortaise chevillés à tire , voire renforcés par embrèvements ou encore entaillés à l ancienne avec une logique de queue d aronde !
4/ Les conditions de dimensionnement des bois droits ou cintrés est similaire aux aisseliers .
5/ Les liens de contreventement ne sont jamais postiches , ils doivent être remplacés par un gousset ou tout autres moyens de contreventer si on doit les supprimer .
Les liens de contreventements sont souvent apparents , il faut les tailler avec soins pour avoir une belle esthétique finale d un ensemble , des liens mal taillés, mal placés ,mal assemblés expriment toujours un sentiment d insécurité par le visuel !
Contraintes et dimensionnements des goussets :
Hors metier de charpentiers à part entière , cette pièce est assez mal connue des gens !! Par contre , bien conçues, elles contreventent parfaitement un ouvrage, sans gêner outres mesures le passage au droit des pièces réunies .
Ils travaillent à l arrachement aux niveaux des assemblages , mais doivent aussi travailler au cisaillement par pression quand ils soutiennent une ferme d arêtier !
On trouve un/des goussets principalement dans les charpentes qui comportent des arêtiers , en effet ils servent de liens, et en plus souvent de liaison pour les "coyers" (entrait dans une demi ferme d arêtier) afin de préserver l intégrité du poinçon !
Quand il y en a plusieurs réunis autour d un poinçon , ils assemblent l enrayure (arêtiers multiples, tourelle).
Ils se placent aussi aux angles de auvents pour remplacer le lien dans le cas d un passage de porte ou de baie vitrée par exemples .
Les règles à respecter sont :
1/ Le gousset doit être de même section de préférence à l entrait quand il reçoit un coyer ,on peut aussi les faire double en jumelant deux pièces !
2/ Les goussets sont assemblés traditionnellement par tenons et mortaise chevillés à tire ou avec une clef .
Ils peuvent être vissés quand ils ne font que contreventer un ouvrage de seconde zone !
On peut aussi les assembler par entailles en queues d aronde pour faire obstacle à l arrachement si les sections de bois le permettent .
3/ Les assemblages doivent être pensés suivant la destination d un gousset et facilement assemblables sur le chantier !
4/ Des que possible , on peut renforcer les assemblages par boulonnage .
Contraintes et dimensionnements des jambettes ou potelet :
Ici les contraintes sont seulement de reprendre une "toute petite" quantité de compression, destinées surtout à rigidifier ou soulager un ensemble !
Les règles à respecter sont :
1/ les jambettes n ont pas nécessité d être avec embrèvements , par contre si elles sont taillées dans le cadre de rénovation avec impossibilité d assemblage traditionnel , il est préférable de les embrever avant de les visser ou boulonner !
2/ Il faut les dimensionner en fonction de leur utilité .
3/ Si une grande compression leurs arrivent ( au pied d une ferme par exemple) il est préférable de leurs adjoindre une jambe sous l appuis de celle ci (ex avec blochet) !
Autres systemes de contreventements et de renforcement
Bracon ou écharpe :
Pièce de bois oblique qui relie le poteau ou l arbalétrier à une panne pour en diminuer la portée et apporter du contreventement de l'ouvrage.
Il peut aussi être placé entre les pannes pour contreventer et servir d anti déversement de celles ci (fig 1).
Chaînage :
Pièce de bois longue fixée sur une série d éléments alignés (ex fermettes, panneau ossatures , coyaux etc ...) afin de les réunir linéairement (fig 2).
Colombage :
Les constructions à colombage sont bien connues , leurs pans de murs étant un treillage réfléchis de toutes les pièces de force et de contreventements réunies dans un seul plan ,puis comblées (fig 3).
Croix de St.André :
Croix de bois reliant deux éléments verticaux ou horizontaux destinés à contreventer (ex double faîtage) (fig 4)
Contreventement plein ou "voile travaillant" :
volige ou panneaux servant à assurer la stabilité d'un ouvrage par fixation de surface (ne doit en aucun cas constituer le contreventement principal !!) .(fig 5)
Diaphragme ou plancher travaillant :
C est le concept que le solivage soit contreventé car il sert lui même de contreventement horizontal dans son ensemble ( étage de maison a ossature bois ou tenues de murs maçonnés ) .(fig 6)
a suivre ..........
Analyse des pièces de charpente partie 5- Les pannes, chevrons, volige et solivage,
Pannes, chevrons, volige et solivage
Nous avons découvert plus haut la physionomie des fermes de charpentes, nous allons aborder le reste de l ossature Générale d une charpente !
Pour que celle ci soit complète , il faut relier les murs et/ou les fermes avec ce que l on nomment des éléments "passants", à savoir des pannes qui ont pour fonction de recevoir les éléments de couvertures finaux , donc le poids de ceux ci !
En charpente traditionnelle , en appuis sur la ferme ou/et les murs , généralement nous posons les pannes , puis les chevrons , ensuite il y aura parfois voligeage ,sous toiture, lattage, puis tuiles; enfin le charpentier peut avoir à installer des solivages pour plancher, plafonds, ou les deux à la fois .
Ci dessous un visuel de rappel lambda de la position des pièces in situ .
Situations et fonctions générales des Pannes, chevrons, voliges et solivages
1/Les pannes :
Ce sont des pièces droites parfois en parties courbes (charpente circulaire) de sections assez importantes destinées à recevoir la surface entière d une couverture !
Les pannes se placent en divisions sur ou contre un arbalétrier d un pan de toiture avant de recevoir des chevrons (fig 1) .
Elles sont nommées depuis l arase du mur ou la base d un pan comme Panne "sablière" , pannes intermédiaires ou "ventrières" , et panne "faîtière" .
Elles sont placées d aplomb ou en devers maintenues par des pièces de bois fixées sur les arbalétriers appelées "chantignoles ou échantignolles ou encore échantignoles" (fig 2) .
Elle peuvent être aussi en "lierne" ,c est à dire contre l arbalétrier .
Dans tous les cas les pannes sont souvent le point faible de la charpente traditionnelle et doivent être dimensionnées avec soin.
Traditionnellement, elles reçoivent toujours des chevrons perpendiculairement fixés sur leurs champs supérieurs en devers et/ou en délardement quand elles sont d aplomb, notamment pour les sablières et faîtières et parfois intermédiaires .
Les pannes sont parfois posées seules sans chevrons, recevant elles même directement la couverture sur leurs champs (ex: bacs acier ou Panneaux sandwich isolants).
2/ Les chevrons :
Ils sont chaque fois présents dans une charpente traditionnelle! Ils servent de support aux éléments de couverture et sont posés perpendiculairement aux pannes dans le sens de la pente .
ils sont placés parallèlement les uns des autres avec un écartement réguliers entre 40 et 60 cm en fonction du type de couverture .
Ils se clouent ou se vissent sur les pannes depuis la sablière jusqu au faîtage .
placés en dehors des murs rampant Ils se nomment "chevrons de rives", leurs dépassement du mur à l'arase se nomme le "forgets" .
3/ Les empannons et noulets :
Ce sont tous les chevrons avec coupes biaises à rechercher pour s’appuyer sur une noue ou un arêtier (fig 3)
4/ Le voligeage :
Ce sont tout les éléments jointifs en bois ou dérivés qui surfacent la toiture après le chevronnage , par esthétique en sous oeuvre, ou destiné à soutenir et fixer des élément couvrant (tuile canal, ardoise, tavaillons, taules ,etc.) (fig 4)
5/ Les solivages :
Ce sont Les pièces droites et horizontales généralement sur deux appuis aux murs ou/et aux fermes .Elles ont pour fonctions de supporter un plancher, soutenir un plafond ou les deux à la fois (fig 5).
Pour éviter le déversement il faut les entretoiser avec des "étresillons"(fig 6) .
Elles s’appuient sur de la maçonnerie de préférence pour les planchers, sur les fermes mais dans ce dernier cas plutôt pour supporter un plafond.
Les contraintes et dimensionnements des éléments passants, chevronnages, voligeages, et solivages
C est ici, surtout sur les pannes et les chevrons ,ainsi que sur le solivage que les questionnements aux dimensionnements se posent souvent sur les forums pour les autoentrepreneurs non professionnels de constructions en bois !
En effet ce sont généralement ces éléments qui avec le temps fléchissent est provoquent les déformations inesthétiques, voir dangereuses sur les toitures ou les planchers s'ils sont incorrectement calculés .
Ce chapitre, essayera de clarifier les diverses situations !
Avant de détailler chaque composants contraints, il faut apprendre à calculer le poids de couverture au mètre carré !
En effet la masse d'une toiture est composée d éléments physiques permanents (Bois passants , chevrons , lattage et/ou voligeage et revêtement étanche (tuiles , ardoises, taules ,etc.) parfois de plafonds et isolations en combles (ex laine de verre et placoplatre) , ainsi que d éléments ponctuels à prendre en comptes :
Effets climatiques (vents, neige) et passage de services (poids d un homme) , .
Nous reviendrons plus en détails sur des calculs précis quand nous aborderons un chapitre de l étude de charpente projet!
Le poids d une couverture
Il est important de faire ici cette parenthèses pour la compréhension de la suite de ce pas à pas !
Pour calculer le poids total d une couverture , nous prenons d habitude toute la surface couverte + le poids des fermes ,pour savoir par exemple le poids total de charge arrivant sur des poteaux !
Ici nous ne calculerons que la "surface portée libre" (à l intérieur des murs) puisque nous voulons pouvoir dimensionner les pannes et chevrons, sachant que les débords seraient neutres .
Nota : Les pressions je le rappelle ici se calculent normalement en DAN/m2 (déca Newton) , mais nous avons la chance que le DAN/m2 soit pratiquement égal au kg/m2 se qui nous facilite la tache !
Exemple : Soit une habitation de 15 x 9 mètres charpente sapin en deux pans (88,8 % pente) de couverture tuilées avec combles aménagés sur deux fermes (isolation + plafond suspendu placoplatre) en zone moyenne de neige et vents (fig 1) .
1/ Poids des bois passants et chevronnages :
Les pannes et les chevrons sont les premiers éléments en charges permanentes à considérer en terme de poids de couvertures , en effet s ils soutiennent des éléments posés sur eux , mais ils doivent se supporter eux même, car intégrés à la toiture !
Pour évaluer le poids au m2 des bois passants et chevrons , nous allons calculer le cubage total de ces bois sur la surface couverte portée hors appuis et débords !
Apres traçage de plan de pignon , nous trouvons 7 longueurs de pannes portées sur deux pans portés hors murs et 5,8198 m de chevrons portés hors murs sur un pan . (fig 2)
Apres plan de pannes, nous trouvons 7 longueurs de pannes portées sur 14,4 m hors murs et après calcul théorique d axe en axe de 50 cm, 29 longueurs de chevrons (fig 3) !
Surface totale de toiture portée hors murs 14,4 m x (2 x 5.8198 m) = 167,2 m2
Sachant que ici les pannes seraient logiquement en 12/24 cm et les chevrons en 6/8 cm de sections .
Nous pouvons déjà calculer le cubage total du bois portés hors murs pour cette toiture.
Soit : (7 pannes x 14.4 m = 100,8 m ) x (0,22 x 0.12 cm de section) = 2,9 m3
(29 chevrons x (2 x 5,8198 m rampants portés hors murs) x (0.08 x 0.06) = 1,62 m3
Masse volumique des résineux environ 500 kg/m3
2.9 + 1.62 = = 4.52 m3 x 500kg/m3 = 2260 kg
Poids des bois portés au m2 hors murs :
2260 kg : surface de toiture portée hors murs 167,6 m2 = 13,48 kg/m2
Nota : en général ,en charpente lambda on considère une moyenne de 15 kg/m2 (résineux) et 30kg/m2 (chêne) de bois porteurs (pannes chevrons 15 % humidité), après le calcul d exemple ci dessus, on en est proche avec même une réserve !
Pour le calcul de portée de chevrons , on divise par deux on prend +/- 8 kg/m2 ce qui équivaut à peu près à enlever le poids des pannes .
2/ poids de la couverture étanche :
Sur les bois passants , on place ensuite les revêtements Permanents "étanches" (tuiles , ardoises, taules, tavaillons, etc) ainsi que leur élément propre pour leur pose (volige, sous toiture, lattage, etc.) .
Ici il est en général plus aisé de trouver déjà calculé le poids au mètre carré dans les fiches techniques de chaque matériaux (fig 4)!
Dans l exemple, nous prendrons des tuiles mécaniques standards + lattage + contre lattage + écran goudronné soit +/- 50 kg/m2
3/ Le plafond en combles :
Quand un comble est isolé ,ou/et habité , il y à pose d isolation et de revêtement (ex laine de roche, plaques de plâtre, lambris, etc ...)
Idem aux matériaux étanches ils serons considérés éléments permanents , on trouvera facilement le poids au mètre carré dans des fiches techniques (fig 4)!
Dans l exemple, nous prenons 20 cm de laine de verre + supports métalliques + plaque de plâtre de BA13 soit +/- 14 kg/m2
4/ La charge ponctuelle de neige :
Suivant la localisation régionale d une habitation, elle peut être soumise à des précipitations neigeuse d amplitudes variées !
De plus en montagne par exemple ,cette accumulation de neige deviens presque persistante pendant plusieurs mois, Et l on considère alors généralement cette charge non ponctuelle mais permanente dans les calculs de constructions (fig 5)!
Soit une habitation en zone B a 300 mètres d altitude = +/- 55 kg/m2
5/ La charge ponctuelle par poussée du vent dominant :
La toiture d un bâtiment sera soumise toute son existence aux vents ainsi que quelques épisodes tempétueux suivant les zones climatiques (fig 5)!
La pression de la force du vent sur les toitures ,constituent un effet voile non négligeable qui ajoute un poids ponctuel sur la couverture .
En fonction de tableaux basés sur une moyenne vents reguliers dominants les plus fort , on ajoute cette charge calculé au m2 sur notre toiture !
Soit notre habitation en zone 1 au vent dominants = +/- 65 kg/m2
Le total du poids calculé de notre couverture portée au m2 est de :
Charges permanentes/m2 + charges ponctuelles/m2 = poids au mètre carré à prendre en compte pour le calcul sécur des pannes et des chevrons de notre charpente !
bois 13,48 kg/m2 + éléments étanches 50 kg/m2 + plafond isolé en comble 14 kg/m2 + neige ponctuelle 55 kg/m2 + vents dominants 65 kg/m2 = 197,48 kg/m2 de toiture finie
6/ Les charges ponctuelles de services:
Quelques fois ponctuellement, du passage humain de service doit accéder au toit (ramoneur, couvreurs, pompier, antennistes , et même un cambrioleur parfois !! ), c est pour cela que par sécurité , on considère le poids d un homme au mètre carré, il ne s'agit pas que quelqu un est un accident par faiblesse des porteurs !
Soit le poids d un homme au m2 = +/- 80 kg/m2 , on ne cumule pas cette donnée dans le poids total des charges ponctuelles , on prend juste en considération le service en sachant qu il ne sollicitera qu une toute petite surface !
Ici un lien assez complet qui résume les principales charges de toitures !
arba.fr/ressou...55338cbd8c1.pdf
Nous reviendrons plus tard sur ldes calculs de charges ponctuelles climatiques pour faire une base de données !
Les contraintes et dimensionnements des éléments passants (pannes) :
Dans ce chapitre, nous nous intéresserons aux contraintes des pannes et surtout au dimensionnements de celles ci !
Comme il a été dit plus haut , les pannes sont le principal point faible d une charpente, à savoir qu elles reprennent le poids la surface couverte de toiture et de résistance aux éléments climatiques .
Si leurs dimensionnements sont mal calculés, celles ci vont fléchir voir rompre si elles sont vraiment sous dimensionnées .
Pour cela il faut en premier lieu connaitre le poids supporté par une panne !
1/ calcul de la bande de chargement d une panne :
Une bande de chargement représente la part de charge d un élément particulier!
En charpente elle nous intéresse pour estimer les charges admissibles de fermes, de pannes, de chevrons, de voligeage, de solivage , de poteaux , etc, avant de les placer dans un projet ! (voir schéma ci dessous)
Une panne intermédiaire ne reprend qu'une portion du poids de couverture, c est ce que l on appelle une bande de chargement d une panne que nous allons devoir calculer en fonction des résultats de poids de surface totale précédents .
a/ Sur le plan, nous traçons les fermes, puis nous mesurons la longueur portée de panne hors appuis = 4,673 m de portée .
b/ Sur le plan ou sur l élévation des pentes , nous traçons les axes du vide de part et d autre d une panne intermédiaire, ce qui nous donne la mesure de = 1.442 m
c/ Avec ces deux mesures, nous traçons et calculons la surface d'un rectangle de 4.673 m x 1.442 m = 6.72 m2 , qui sera la surface de la bande de chargement de notre panne .
d/ Le poids de la bande de chargement sur notre panne sera de 6.72 m2 x 197,48 kg/m2 = 1328,1 kg
2/ Dimensionnement de la panne :
Ma pannes estimée en 24 cm x 12 cm, a une équivalence en section avec une panne de 28 cm x 10 cm d une charge admissible de 1792 kg pour 4,5 mètres de portée libre ou de 1469 kg pour 5 mètres de portée libre, dans le tableau (lien ci dessous).
valleeducousin...ons_solives.pdf
Donc le dimensionnement de mes pannes estimées est conforme ,avec une petite sécurité en plus , la charpente ne subira pas de déformation ni désordre .
Si nous avions posé des pannes en 22 cm x 10 cm = 943 kg admissibles pour 4.5 m de portée ou 770 kg admissibles pour 5 m de portée , il est évident que la toiture se déformerait .
Enfin , les charpentiers préfèrent de nos jours installer des pannes composites (lamellé collé , etc.) au dessus de 5 mètres de portée et ne pas dépasser 6 mètres de portée en ajoutant une ferme .
Nota : Les pannes sablières (portées sur poteaux) ainsi que les pannes faîtières de subissent qu une demi charge de cette bande de chargement , mais on les débite aux mêmes sections que les pannes intermédiaires .
Ici un exemple en situation réelle intéressante (lire les commentaires)
Maintenant que nous savons calculer le dimensionnement de pannes , il faut les poser sur les porteurs (Poteaux, pignons, murs et/ou fermes), et ce de façon réfléchie pour atteindre le maximum utile et le minimum de contraintes de chacune .
1/ Les pannes sablières :
Les pannes sablières à l origine se posent sur les arasement des murs sur un lit de sable pour accueillir le bas des chevrons dans leur ensemble, et pouvoir par jeu de glissement ne pas pousser sur les murs (fig 2)!
Une sablière contemporaine , est plus simple à mettre en place du fait de la qualité des matériaux, en effet l arase de mur est souvent calibrée droite ,et les bois sont assez rectilignes (fig 1) !
On débite les sablières traditionnelles d arases dans du chevrons de sections 8/12 cm généralement.
Les règles à respecter sont :
Une panne sablière se trouve sur un poteau ou sur les pieds de fermes dans le cas d'ouvrages batits sans murs (fig 4) (auvents, fermes de hangars agricoles, préau, etc.).
Une sablière ,même contemporaine traditionnelle (panne/chevrons ne doit jamais être scellée ou fixée sur les murs , elle est seulement maintenue par le clouage des chevrons, et le poids de toiture.
Elle peut être par contre clouée sur les entraits, moises ou blochets des fermes .
Pour des chevrons de coyau , il y aura doubles sablières avec les mêmes règles à suivre pour chacune (fig 3) !
Des petits coins (ou une latte) peuvent être cloués derrière les chevrons pour éviter le déversement de la sablière (fig 1) .
Par contre on scelles ou fixes les sablières de fermettes, ces dernières étant normalement triangulées (fig 5) !
Le "délardement" est important car il permet de donner une surface d appuis aux clouage de chevrons, tout en permettant de dresser l'alignement des chevrons, en effet nous traçons le délardement par lignette ou cordex , ce qui permet d avoir une rectitude du sciage de la pente délardée même si les bois sont tordus ou cintrés !
On procédera de la même manière pour les pannes faîtières et intermédiaires posées d'aplomb .
On peu se passer de délardement en entaillant légèrement les chevrons ce que l on nomme "un pas de chevrons" , à condition que les bois soient droits au départ, mais cela prend beaucoup de temps !!
On ne clouent jamais les chevrons directement sur une arête de sablière, il y aurait écrasement et l alignement deviendrait un cauchemar !!!
La sablière se cale de niveau sur l arase de mur (murs parallèles) , puis dès que les chevrons sont cloués et la finition faite (frisette, bandeaux, planche à chenaux, etc.) , on peut sur-caler en dégradant depuis le milieu de la longueur jusqu au rives pour donner de la pente aux futurs chenaux .
Quand les murs du bâtit ne sont pas parallèles , l'arase de mur sera montante ainsi que la sablière .
Les sablières s assemblent entre elles par entures en mi-bois clouées (fig 4) .
2/ Les pannes intermédiaire ou ventrières :
Jadis les pannes intermédiaires étaient appelées ventrières, placées sur le ventre de la charpente, en cela nous avons gardé le fait que nous les posons en fonction du cintre naturel pour qu un toit neuf soit "bombé" ou "ventru" , ce qui permet de contrebalancer la flèche de déformation naturelle dans le temps !
En résumé, une panne intermédiaire doit être parfaitement calculée et taillée et posée avec soins pour que la toiture reste plane .
Les règles à respecter impérativement sont :
Ne jamais sous dimensionner les pannes, ainsi que leurs espacements divisés qui ne doivent jamais être supérieur à 1,80 mètres d axe en axe , sinon on ajoute une panne !
Une panne intermédiaire se pose en fonction du fil du bois et de ses cintrages naturels, toujours le bombé coté lattis.
Sa face creuse se place vers l'extérieur quand la panne est posée en devers!
Sa face bombée en extérieur quand celle ci est posée d aplomb !
Quand une panne intermédiaire est posée d aplomb, on lui taille un délardement d angle à la pente du versant, (on ne clouent jamais les chevrons sur une arête) !
La rencontre de deux pannes intermédiaires doit toujours être enturée (en sifflet neuf) et ce sur l axe du pignon ou de la ferme ou croisée l'une sur l' autre (rénovation) , on ne pose jamais deux pannes "bout à bout" , en cas de déformations de la ferme ou d un pignon, la panne peut en effet se retrouver dans le vide et s écrouler !
En cas de bois de réemplois, on ne retourne jamais un bois flué surtout pour une panne intermédiaire , on cales ou on entailles les chevrons pour le dressage .
Les pannes intermédiaires se trouvant en noue et arêtier, doivent être tracées sur épure pour en rechercher les coupes (en lierne ou sur les bois) ainsi que leurs échantignoles respectives si c est le cas (fig 4)!
Les échantignoles doivent être en bois sains, avec le fil non parallèle à la pente de toiture, mais descendant dans une logique de jambe de force ! (même si elle se fend, elle restera en place et efficace) (voir schémas).
Dans des charpentes de service ou design , on peut utiliser les agents de liaisons métalliques (en lierne) et pannes métalliques (très résistantes) (fig 3-5) .
Nous pouvons adjoindre des "écharpes" pour soulager les pannes intermédiaires de leurs devers, ou d une ferme de croupe posée sur elles par exemple .
Si un "accident de toiture" (fenêtre de toit, cheminée, lucarne, etc.) gène le passage de panne intermédiaire , on décale la pannes sur deux autres échantignoles!
On ajoute une panne si ce décalage fait dépasser la portée de 1.80 m maximum entre deux .
3/ Les pannes faîtières :
Une panne faîtière comme le nom l'indique est posée au "faîtage" d'une charpente , elle constitue la réunion des deux versants de la toiture, tout en "contre-ventant" l'ensemble quand elle est posée sur une ferme et nantie de liens .
On la trouve aussi évidemment sur pignons, et enfin en situation muraillère dans le cas des auvents .(voir schéma ci dessous)
Les règles à respecter sont :
La panne faîtière est toujours posée d aplomb, elle reçoit deux délardements au sommet pour les chevrons des deux versants, ou un délardement dans les toitures à un pan (Fig 1-2) .
Le champs "bombé" se place vers l extérieur, par contre il faut choisir les bois les plus droits de préférence pour une faîtière .
La panne faîtière doit être enturée de la même façon que les autres pannes , mais en plus assemblée quand elle se trouve sur un poinçon par "gargouille" ou par tenon/mortaise (fig 3)!
Les liens lui sont assemblés par tenons/mortaises, ou en embrèvement cloués ou vissés .
La panne faîtière est dimensionnée comme les pannes intermédiaires même si elle porte moins de charge (pratiquement nulle si les chevrons sont assemblés ou en coupes jointives au faîtage .
Par contre dans certain cas elle est porteuse à part entière (toiture très plate avec chevrons décalés) (fig 4) .
Un double faîtage comporte deux faîtière assemblées en aplomb l une de l autre sur les poinçons , et son reliées par croix de Saint André destines à contreventer les fermes (Fig 5).
Les sorties et entures de pannes :
Les pannes ont aussi des contraintes linéaires à prendre en comptes, à savoir que si elles ne sont pas basiquement d un mur à l autre dans un bâtit simple, il faut les relier entres elles et travailler sur leurs bouts apparents .
Les liaisons de pannes se font par "entures" (voir chapitre des assemblages de charpente ) , mais le plus souvent par coupe en "sifflet" dont l axe d assemblage se trouve toujours sur les porteurs .
L angle de coupe est dans une logique de rectangle de 20 cm x 30 cm, jamais à moins !!
Les sorties de pannes peuvent aller de "pas de dépassement" noyé dans le mur jusqu à plusieurs mètres sur consoles ou poteaux (ex. pignon avec terrasse couverte ( fig 4)).
Les fausses sorties, sont des morceaux de pannes destinées à recevoir seulement les débords pour des sablières ou dans le cas de fermettes, ou encore en restauration pour esthétique . (voir schéma si dessous)
Les règles à respecter sont :
Les liaisons de pannes ne doivent jamais être posées "bout à bout" (raison déjà expliquée plus haut) !
Les entures ou les sifflets doivent toujours se clouer, se visser, ou se cheviller sur les supports porteurs (ex fig 1).
Les fausses sorties de pannes doivent être fixées solidement contre le "porte à faux" et au moins traverser le pignon. (fig 2)
Les liaisons de pannes doivent êtres axées avec les porteur et contre une échantignole, en gargouille, tenons mortaise de poinçon, scellée en pignon, ou en lierne solide (exfig 3).
Si une panne doit être décalée des autres (cheminée ,fenêtre de toit ,etc .), on doit la placer par croisement à d autres pannes , soit la placer sur une échantignole à part et laisser dépasser cette panne du porteur d au moins la valeur de sa section (ex une panne de 10/22 cm ,le dépassement du porteur doit être de 10 cm !)
Les fausses sorties composées de plusieurs éléments cloués en empilement sont très sensibles aux éléments et doivent être abrités de préférences !
Les embouts de pannes doivent être protégés des intempéries par bandeau ou zinguerie .
Des qu une sortie de panne excède 1/4 de sa longueur totale, on doit la soutenir en console ou poteau (fig 4**).
Les sorties de pannes peuvent être travaillées, décorées, chantournées, etc.. pourvus que leurs portance et leurs résistances aux intempéries ne soient pas impactées !
Les pannes courbes (tourelles) se taillent historiquement dans des bois choisis déjà cintrés naturellement et recalibré !
Toutefois , on peu les chantourner sur une face et refixer la chute sur le bombé (après recalibrage) à condition que le bois non tranché soit équivalent à l admissible d' une panne droite.
Quand la courbe est importante, on part généralement d un plan polygonal auquel on ajoute des recharges pour le cintrage .
La technique lamellée-collé peut être utilisée !
Les pannes peuvent être utilisées comme seul support sans chevronnage à la toiture (panneau sandwich, panneaux dérivés de surfaçage, etc .), auquel cas on doit calculer et resserrer leurs espacements .
Les contraintes et dimensionnements des chevrons, empannons et noulets
1/ Le chevronnage antique :
Jadis, le chevronnage était souvent lui même le constituant de la charpente, basique construit avec de fortes perches, ou assemblé en "Charpente à chevrons portant ferme" , c est à dire que les chevrons étaient assemblés en fermes rapprochées et alignées ,puis voligées et/ou lattées .(fig 1)
Cette méthode est encore bien visible sur nombres de monuments historiques.
Le procédé demandait beaucoup de bois et de travail, mais était très performant à l'image de ces travaux arrivés jusqu'à nous !
Le principe à été largement repris au 20 eme siècle dans les charpentes en fermettes .
2/ Le chevronnage commun :
Les chevrons communs étaient en perches jusqu'à l arrivée du sciage mécanique performant (fig 2), et depuis toutes une gamme de sections permettent d'avoir le chevronnage nécessaire pour chaque charpente (ex 6/8, 8/8, 8/12, 10/10, etc ...) .
On peut aussi chevronner plus porteur et même de mur à mur à base de solivettes (+ étrésillons) (ex 4/21, 6/15, etc .) si le besoins le précise (fig 3-4) .
3/ Les Noulets :
Ce sont les chevrons avec coupes à rechercher reposant sur ou contre une noue .Ils sont de même sections généralement que les chevrons classiques sur la toiture (fig 5).
4/ Les empannons :
Ce sont les chevrons avec coupes à rechercher reposant sur ou contre un arêtier. Ils sont de même sections généralement que les chevrons classiques sur la toiture (fig 6).
Dimensionnement des chevrons :
Pour dimensionner les chevrons d une charpente, on utilise la même méthode de calcul que pour les pannes avec une bande de chargement !
On doit déterminer cette bande de chargement, puis calculer la charge au mètre carré, faire le ratio pour un chevron et enfin à partir du tableau déterminer la section admissible de chevron .
Exemple :
Nous reprenons notre exemple d illustration vu au chapitre des pannes.
a/ Sur le plan de pannes portées libres , nous divisons les chevrons espacés d une logique de 50 cm d axe en axe = 57,3 cm suffisant pour mon projet .
b/ La bande de chargement sera elle aussi de 57,3 cm puisque les axes face au vide de part et d autre du chevron sont identiques .
c/ La longueur portée libre entre deux point d appuis du chevron est mesurée de 1,442 cm (de la sablière à la panne intermédiaire de l exemple).
d/ La surface de la bande charge sera donc de 0,573 m x 1,442 m = 0,826 m2
e/ bois +/- 8 kg (estimation en enlevant le poids de pannes) + éléments étanches 50 kg/m2 + neige ponctuelle 55 kg/m2 + vents dominants 65 kg/m2 = 178 kg/m2 de couverture
Nota : Normalement le poids de plafond et d isolation ne sont pas pris en compte car on ne doit pas suspendre le plafond aux chevrons traditionnels ! En effet on doit pouvoir normalement agir sur la toiture sans toucher aux sous œuvres (ex changement de chevrons).
f/ Calcul de la bande de chargement 0,826 m2 x 178 kg/m2 = 147 kg .
g/ Sur l abaque , j ai une correspondance de 283 kg admissibles sur un bois de section 6 cm x 7 cm pour 1.50 mètre de portée .
Mes chevrons étant en 6 cm x 8 cm pour une portée de 1,442 mètres , je suis largement dans le module avec en plus une sécurité de +/- 130 kg .
En admettant que les pannes soient espacées du maximum à 1,80 mètres d axe en axe, d après la correspondance c est très acceptable mais on se rapproche de la limite .
valleeducousin...ons_solives.pdf
Dans le cas ou il faudrait rectifier ,nous pouvons ajouter quelques chevrons ou changer de section en restant toujours dans une logique de 50 cm de moyenne d axe en axe , ici commencera le calcul pour une efficacité optimum pour un coût minimum !
Les mises en œuvres des chevrons :
Les chevrons représentent une partie à part entière de technique de taille et de pose d une charpente, leur mise en oeuvre doit être bien réalisée pour garantir la pérennité de l ensemble d une charpente !
En apprentissage , l étude du chevronnage apporte un très vaste champs d actions de l art du trait et de taille de charpente .
Les règles à respecter sont :
Les chevrons doivent être toujours en appuis sur deux points porteurs et doivent être calculés en fonction !
Les chevrons doivent être toujours posés avec leurs cintres naturels "bombés" vers l extérieur !
On doit écarter les gros nœuds ou défauts du bois face au vide, on doit ajouter un chevron contre un chevron défectueux si nous ne pouvons pas le remplacer !
Nous gardons les chevrons propre et biens droit ainsi que les beaux embouts pour les rives et les sorties .
Des grands chevrons porteurs (solivettes) doivent être étrésillonnés à la moitié de leurs portées et solidement maintenus aux extrémités voire même ici aussi étrésillonnés .
Les chevrons traditionnels se clouent ou se vissent sur les pannes, on peut utiliser des équerres métalliques quand ils sont très larges (solivettes) .
Les chevrons doivent être chevêtrés aux accidents de toiture (fenêtre de toit, cheminée, etc.) .
Les liaisons entures de chevrons doivent être avec une coupe de niveau en repos toujours à l axe d une panne (en rive ou apparent) ou croisés aux intermédiaires cachés .Comme pour les pannes, les chevrons ne serons jamais posés bout à bout !
Le "forget" en porte à faux des chevrons ne doit pas dépasser +/- 50 cm de niveau depuis le mur .
Les chevrons traditionnels de doivent pas être porteurs en sous oeuvre de plafond, auquel cas on doit ajouter de "faux chevrons" pour les suspentes de plafonds et d isolation.
Les chevrons arrivant en coupes de niveau sur des arases doivent être de préférence sur des semelles servant de sablière .
Les chevrons doivent toujours être en divisions régulière et posés cloués droit (alignement redressé au clouage) .
Un bon charpentier préparera ses sorties (coupes propres et teinte de protection) de chevrons à l atelier ou sur le chantier au sol .
Les chevrons de noues ou d arêtiers doivent être préparés depuis l épure par herse .
Les espaces entre les chevrons doivent être avec une logique moyenne de 50 cm d axe en axe ( entre 40 cm et 60 cm d axe en axe suivant le type de couverture) , ( ex 40 cm pour de la tuile plate et 60 cm avant pose de voliges porteuses) .
Ces divisions sur le chantier se font "d un bord à l autre" ce qui permet d absorber les différences de calibrage du sciage brut .
Quelques shémas ci dessous de détails de mise en oeuvre des chevrons .
Les contraintes et dimensionnements des solivages et voligeages
Le solivage :
En général c'est un appareillage de bois juxtaposés de niveau destiné à recevoir planchers et/ou plafonds.
Ce sont des ouvrages ici aussi du domaine de travail du charpentier .
Les solivages se calculent en fonctions de leurs destinations domestiques finales et doivent être vérifiés ou/et repris si la fonction change vers plus de chargement ! (ex une chambre devenant un bureau avec du personnel, ou création et pose d un escalier futur, etc.).
Dans ce chapitre, je ne donnerais pas d exemples de calculs, il y a bon nombre d abaques disponibles en ligne !
Ci dessous un chapitre sur les solivages se trouvant sur l air du bois, ainsi qu un lien d abaques assez complet sur le net !
lairdubois.fr/...rs-traditionnel
bois.com/inter...baques-solivage
1/ Les solivages traditionnels anciens :
Ils sont bien connus de tous ! C est que l on nomme "plafonds à la française" à base d un sommier portant des soliveaux entaillés très peu espacés et les poutraison (à base de poutres de sections minimum 15 x 15 cm juxtaposées entre axe tout les 1 mètre maximum ).(fig 1-2) .
2/ Les solivages porteurs traditionnel contemporains :
Ils sont à base de solives calibrées de façon standardisées donnant un large éventail de sections pour confectionner des solivages performants et calculés en fonction des besoins .(fig 3)
3/ Les solivages "légers" non porteurs :
Ce sont tous les solivages destinés à supporter un plafond ou un plancher de propreté, souvent posés de ferme à ferme pour les combles perdus .
4/ Les solivages composites :
Ce sont les solivages composés de bois composites (lamellé collés, poutres reconstituées, etc .)
Ces procédés apportent une qualité optimum de portance et de durabilité .(fig 5-6) .
Quelques règles :
Les solivages contemporains se posent dans une logique d axe en axe de maximum 50 cm ,et doivent être étrésillonnés chaque fois (non apparent) même composites !
Quand le solivage est apparent, on doit choisir des bois sec et de qualités supérieur !
La partie bombé de cintre naturel des solives neuves doit toujours être positionnée coté plancher, les plus bombés au centre des pièces à planchéier !
Ne jamais retourner une solive fluée en réemplois !
Le voligeage :
Une volige à l origine est une planchette de bois d épaisseur faible (moins de 22mm) large d environ +/- 10 cm posée jointive clouée sur les chevrons et destinée à recevoir l élément étanche de couverture quand un lattage n est pas requis (fig 1) !
Le voligeage représente l action de planchéier un toit sur les chevrons avant de poser l élément étanche .
Le voligeage est normalement exécuté par les couvreurs avec la pose des ardoises, tavaillons, lauzes, etc (fig 3) , mais les charpentiers posent assez souvent eux même le voligeage, surtout depuis l arrivée du lambris industriel et des panneaux particules servant à faire de la finition en cas de charpente apparente (auvent, kiosque, préau, etc...(fig 4)) ou pour préparer la toiture au zingueur par exemple (fig 5-6) .
Les essences traditionnelles utilisées sont généralement du bois résineux ou feuillus tendres (peuplier, tilleul, aulne, bouleau), qui peuvent plier dans des charpente courbes (fig 2).
Le voligeage est toujours posé sur les chevrons, et n est pas à confondre avec le lambrissage celui ci arrivant sous les chevrons !
Quelques règles :
Les voliges traditionnelles se clouent , le voligeage contemporain par panneaux vissés !
Pour le voligeage d agrément il est conseillé de teinter ou peindre au sol dans le confort qu offrent des tréteaux plutôt que d avoir à jouer les équilibristes sur échelles ou échafaudages et de plus un gain de temps non négligeable !
Dans le cas d éléments de voligeages en rainures languettes, les rainures doivent toujours être supérieur à la languette pour éviter la stagnation liquide et d humidité .
Voila un long chapitre important , il est temps de poser la question si c est assez clair et compréhensible pour m aider à continuer ce pas à pas dans ce sens ,merci !
Etablissement, marquages et signes des bois de charpente
Les marques, signes et symboles des charpentiers
Aussi loin que l on remonte dans le temps, on s'aperçois que les métiers de constructions utilisent des signes et marques spéciales en fonction de leurs corps d états (taille de pierre, charpente, menuiserie, etc.).
Ces signes marquages ou symboles visibles sur des pierres ou des pièces de bois restent souvent un mystères pour le candide ou le novice, en effet seul un homme de métier peut généralement les interpréter correctement!
En effet il y a des signes de localisation des pièces (ex fig 1), associé à du chiffrage (ex fig 2) ou des symboles purement de signatures, dates, confréries, société d appartenance, etc,(ex fig 3) qui n ont rien a voir avec l établissement des bois.
Les signes et marquages servent essentiellement à placer virtuellement dans l espace la place de chaque pièces d une charpente ainsi que de matérialiser et d'identifier les multiples traits de références principales en dessins et épures (ex fig 4-5), pour pouvoir aisément tracer, tailler (ex fig 6) , monter, démonter et remonter sur le chantier une multitude de pièces différentes qui font d un tas de bois une charpente saine et pérenne .
En charpente, ces signes marques et chiffres, proviennent à priori depuis des temps assez reculés , notamment on pense à la Rome antique via le chiffrage romain avec qui il y a des similitudes avérées .
Les signes et marquages du charpentiers sont de formes très géométriques car à l origine ils se tracent en entaillant rapidement, légèrement mais visiblement les bois à l aide de la "rainette" ou du taillant d outils comme le ciseau , gouge ou la hachette, ceux ci laissant peu de place à des "écritures déliées" .
De plus la plupart des anciens ne savaient pas lire, donc des signalisations visuelles qui rappelaient les formes vues en plan de travaux de charpentes (forme de l arêtier, d un mur de noue, d une panne, ...) et la place d une pièce était facilement interprétables et transmissibles aux "lapins "apprentis.
Les marquages de charpentes ont évolués au grée du temps, dans une grande quantité de variantes par la diversité architecturales des régions (ex régions à colombage, région pauvre en foret, région couverture lauzes, etc .)ou les ouvrages de charpentes peuvent être radicalement différents en terme de treillis assemblés des bois .
Le compagnonnage itinérant notamment diffusera un marquage de plus en plus normés fait de signes codifiés pour tous, qui de nos jours servent l établissement général des charpentes traditionnelles .
Toutefois, il y a encore beaucoup de débats sur les signes de charpente, d une région à l autre , d'un atelier à l autre, ou d un maître à l autre chacun prétendant détenir l absolue vérité !
Ce que je vais décrire plus bas est ce que l on m a transmis, donc il pourrait y avoir des variantes en fonction d autres apprentissages, mais toutefois malgré les différentes interprétations la ligne directrice de base est commune à tous les charpentiers, à savoir pouvoir remonter une charpente facilement sans intervertir les bois sur le chantier dans un énorme casse tète chinois cauchemardesque !!
Un vrais charpentier n utilisera jamais de lettres alphabétiques ni de chiffres arabes inscrit ou entaillés sur ses bois, par contre l art du trait lui en abuse utilement de nos jours .
Les marquages sont généralement tracés à la craie grasse dans les charpente en combles perdus, greniers, ou travaux communs, par contre le marquage est retracé proprement par entaillage à la finition après le remontage d ajustage dans des charpentes traditionnelles apparentes (Généralement fait par les lapins en apprentissage ) .
Enfin les signes sont parfois retracés cachés dans les assemblages pour des ouvrages apparents contemporains ou design avant la finition .
Les signes de marquages et localisation des pièces de bois
Ce sont les signes de base, ils repèrent le versant droit du versant gauche d une charpente ainsi que les différentes pannes (faîtière, intermédiaires, sablières) , ils sont associés à des compléments chiffrés en fonctions du nombres d éléments (fermes multiples , pannes multiples , arêtiers multiples , etc ...)
Le franc :
Le franc désigne toujours le versant gauche d une charpente quand on est face à une ferme , il est tracé d une simple ligne droite verticale, puis il est associé à un chiffres (de charpente) à mesure .
En langage charpentier on dit "un franc, deux francs, etc . En apprentissage on dit au lapins pour qu ils se souviennent du bon coté "petit, met tes francs (argent) à gauche (de coté) c est utile !
Le ou la contremarque :
Le contremarque désigne toujours le versant droit d une charpente quand on est face à une ferme , il est tracé comme un franc auquel on ajoute une petite jambe biaise à droite, puis on chiffre à mesure .
Dans le langage charpentier on dit un contremarque, deux contremarque, trois contremarque, etc..
On utilise parfois un double contremarque pour un bois jumelé (un double arbalétrier par exemple) auquel cas elle sera à gauche coté un franc dans le sens de son arbalétrier.
Le crochet :
Le crochet désigne le plus souvent la panne sablière accrochée au poteau, sur l arase du mur ou muraillère .
Le signe est tracé d un franc avec une demi pointe de flèche à droite au sommet qui représente un bois délardé sur une arête pour le repos des chevrons .
Le crochet est ensuite associé au contremarque suivant le versant et aux chiffres à mesure .
En langage charpentier on dit" un crochet, deux crochet, trois crochet, etc" . ou si c est sur l autre versant on dit "un crochet contremarque, deux crochet contremarque, etc ..."
Le double crochet :
il est tracé surtout sur le double faîtage à croix de st André , signifiant une panne accrochée ou en cas de doubles sablières (d un coyau) auquel on associe ici aussi un chiffrage en cas de pièces multiples .
La langue de vipère :
La langue de vipère représente le faîtage sur la panne faîtière , elle est constituée généralement d un franc ou un contremarque surmonté d un V renversé stigmatisant deux délardements et la pointe de la toiture , associée aux chiffres si elles sont multiples .
On dit en langage charpentier "un langue de vipère, deux langue de vipère, ect ..
Si la panne faîtière se trouve dans un ouvrage à un seul pan donc un seul délardement, on trace quand méme la langue de vipère, montrant la pointe de la toiture .
L’arêtier :
L’arêtier est matérialisé comme un A majuscule avec une croix qui matérialise deux arêtiers vus en plan , auquel on ajoute un crochet pour ses pannes sablières et un tau pour ses pannes intermédiaires, ainsi que du chiffrage à mesure si il y en à plusieurs.
En langage charpentier en tournant dans les aiguilles d une montre sur le plan on dit "arêtier, arêtier deux, arêtier trois, arêtier quatre ... Les signes seront tracés toujours sur une même face pour pouvoir tous les tailler sur une même épure (quand ils sont réciproques) .
La noue :
La noue est matérialisée par une forme en N majuscule matérialisant en plan le décrochement de mur ou une noue serait taillée , on procède comme pour l arêtier en remplaçant le A par le N
La patte d’oie :
La patte d’oie représente les demi fermes de croupe ou de raccord de structure, elle se trace à l image d un plan de deux arêtiers nantis d une demi ferme dans le prolongement d un faîtage, on lui ajoute du chiffrage si il y en a plusieurs .
Le monté de panne :
Le monté de panne représente la situation d une panne intermédiaire dans un plan de pannes, il se trace sur les faces extérieures de celles ci par le signe un franc ou contremarque suivant le versant auquel elles appartiennent et on leurs ajoutent une ou plusieurs barres en tau horizontaux pour simuler une panne sur une ferme .
On chiffe les pannes par travées (entre fermes et/ou murs) d une arase à l autre en passant par le faîtage !
En langage charpentier on dit " panne un franc un monté, panne deux franc un monté etc. puis panne deux franc un monté, panne deux franc deux monté etc .".
Si les pannes sont posées d aplomb et délardées ont utilise le même marquage .
La croix d occupation:
La croix "dite d occupation" représente l emplacement d un bois par rapport à un trait de tracé, sachant que les bois jadis n'était pas calibrés ,donc une seule face servait de référence (ex l emplacement de la panne et de son échantignole sur l arbalétrier par une croix courte et une croix allongée de part et d autre du trait d emplacement .)
La croix entourée ou encadrée :
C est un signe qui normalement sert à l Etablissement pour déterminer visuellement le coté bombé d une pièce ,mais on peu la retrouver aussi sur le chantier pour des pièces à façonner ou retoucher sur place sans avoir a rechercher son sens . (ex . des bois à changer en rénovation)
Les chiffres et les nombres :
La numérotation des pièces de charpente ce fait par chiffres largement inspirés du chiffrage romain, avec des variantes permettant de les compacter en un tracé droit avec la rainette ou le taillant d outils .
Par exemple, le chiffre 5 romain en V est retourné et les unités après le 5 pour 6-7-8-9 marquées à l intérieur de celui ci .
Voir le tableau ci dessous !
L'établissement d une charpente
Il y a un sens logique pour établir tous les bois d'une charpente, en effet le métier comprend des contraintes de manutentions en hauteur ainsi que des matériaux lourds, donc on tire profit d un établissement logique pour diminuer des efforts inutiles aux hommes de l art et gain de temps précieux !!
Imaginons qu il faille rechercher un bois à l autre bout d un bâtit en traversant sur du solivage ou avoir à retourner une panne longue et lourde perché sur une ferme, la fatigue, l énervement, ainsi qu une position peu confortable peuvent être fatale dans un métier classé dangereux !!!
En tout état de causes, la logique d'établissement est donc plus que utile et nécessaire à apprendre et maîtriser !
Déterminer les versants en fonction d un chantier :
Dès qu un projet est validé, le charpentier détermine en fonction du plan qu il reçoit de l architecte ou de sa prise de cotes sur le chantier son orientation judicieuse par rapport à son futur ouvrage !
Pour déterminer les versants d une charpente en préparation, on situe généralement le coté contremarque (droit) à la façade principale de la construction (porte d entrée, porte de garage, porte de grange , etc ...) ou par rapport à l accès principal du chantier (voie de circulation, place de stationnement, passage d une grue etc .) et faciliter ainsi l ordre chargement et de déchargement du tas de bois toujours depuis depuis la gauche vers la droite, en faisant face au bâtiment dans une logique notamment pour les pannes "attente/repos" de leurs coupes en sifflets (fig 1).
Quand il y a plusieurs pans avec arêtiers ou autres, on détermine aussi un sens de rotation autour du plan de bâtiment à couvrir déterminé comme au précédant paragraphe puis dans le sens des aiguilles d une montre !
Exemple : le premier arêtier sera placé toujours à l angle coté un contremarque , puis les autres en suivant sur chaque angles du bâtit (arêtier deux, arêtier trois,etc..) .
Sur le schéma (fig 2) , On a un établissement complet d étude de charpente a 4 pans en deux étaux ou ils y a trois fermes classiques,4 arêtiers, et deux demi fermes ,ainsi que leurs pannes respectives .
On devine bien le cheminement des bois sur le chantier, et le fait que chaque éléments porte un marquage différent le situant singulièrement dans la charpente complète .
Placement des signes sur les bois :
Le principe est très simple , on place toujours les marquages aux points d assemblages le plus bas des pièces ,ce qui déterminera toujours le bas de celles ci en plus d être situées toujours sur un nœud d assemblages, bien en vue pour le monteur !
En langage de charpentier "marques au pieds"
C est le cas pour toutes pièces se trouvant dans une ferme ainsi que pour ses liens de faîtages sur le poinçon (fig 3-4) .
Le marquage en art du trait et épure
Savoir reconnaître les marquages de charpente vus plus haut est important, parce que ce sera utile aussi au dessins d études et d'épures.
A ces derniers on ajoute des symboles supplémentaires nécessaires à la compréhension des tracés à plat (Dessins et épures) (fig 1-2) !
En effet l art du trait de charpente peut comporter des centaines de traits pour un seul ouvrage , donc si il n y a pas une signalétique spécifique , les erreurs seront probables ,et la réalisation d une épure compliquée voir impossible .
De plus comme expliqué plus haut, n importe quel charpentier doit pouvoir à tous moments reprendre n importe quel ouvrage ou épure en cours sans impacter le temps en cas de défection ou absence d un autre charpentier .
Sur un dessin d étude ou une épure à l'échelle 1, on doit immédiatement pourvoir identifier d un coup d œil ce qui est déjà tracé et ce qui doit encore être encore tracé, donc ne pas avoir à rechercher en permanence des traits de références.
La ligne de trave :
Cette ligne est la première que l on trace dans un dessin d étude ou une épure, elle représentera toujours la partie extrême basse du lattis, dépasses de chevrons comprises, ou l arase de mur si les chevrons sont en coupes de niveaux posé sur celle ci.
La ligne de trave se symbolise par une "clef de sol" que l on place au moins en deux ou trois endroits (bords et axe) pour l avoir toujours en visuel !
C est depuis cette ligne que toutes autres lignes de niveaux utiles qui seront tracées en parallèle de cette derniere .
Enfin c est sur cette ligne que serons tracé les mesures de largeurs du bâtiment et de ses murs ou poteaux, ainsi que le tracé d angle de la pente du toit .
La ligne d axe ou de centre :
Comme le nom l indique elle est le plus souvent au centre ou a l axe des épure de fermes , mais elle peut être déportée en cas de charpente à un pan ou bâtarde !
Dans tous les cas elle sera symbolisée par une croix et deux barrettes verticales pendantes ou des petits triangles à l image de deux drapeaux entrecroisés.
Cette ligne se trace perpendiculairement à la ligne de trave, et sera la référence d aplomb de tout traits ou tracés en parallèle de celle ci .
Nota : Ces deux lignes sont les principales références de tracés suivants , elle doivent être parfaitement perpendiculaires et se tracent à l équerre en dessin , et par Pythagore (3-4-5) au décamètre pour une épure .
Il faut les signaler de leurs symboles respectifs immédiatement après les avoir tracées .
Elle doivent être lignées largement dépassant le cadre de l épure pour pouvoir les retrouver facilement et pouvoir les retracer après effacement accidentel ou de frottement au sol pendant la taille .
3/La ligne de sol :
Elle représente le sol ou repose des poteaux ou des blochets, elle est symbolisée par une série de hachures croisées placées en horizontales sous celle ci .
La ligne de parquet :
C est le même tracé en parallèle de la précédente, pour identifier un sol fini (ex. chape carrelage ou parquet d étage) ou sa réservation dans un ouvrage de charpente,quand c est nécessaire, on symbolise la différence par des ondulations ou des hachures plus spécifiques pour bien la différencier de la ligne de sol .
Le ramèneret :
Le symbole sert à désigner une ligne de référence particulière. On le symbolise en forme de Z majuscule (Ex :On trace le ramenerets sur des poteaux qui se trouveraient sur une base accidentée , le ramèneret servira alors comme référence pour les aligner en hauteur à la pose et pouvoir prendre des mesures differentes au pieds de ces poteaux pour les couper ) .
En langage charpentier on dit "on laisse le bois au ramèneret"" pour les tracés de coupes à effectuer sur le chantier .
Le double ramèneret :
Il est utile lorsque deux références seront nécessaires au tracé, On le symbolise comme le précédent mais on lui ajoute un second "Z" plus petit .
Le trait de niveau :
Dans une épure de charpente, plusieurs niveaux différents sont parfois utilisés, en cela il faut les symboliser (ex . niveau d un sol + niveau d un appuis de fenêtre + niveau sur le linteau + niveau de panne ), pour cela on trace sur chaque ligne un signe en forme de "N" majuscule avec un arrondi, puis on nomme ce niveau (ex appuis fen , lint ,P etc ..) pourvu que cela soit compréhensible .
Le rez-mur :
Le symbole est le même que pour le sol par des hachures croisées, mais en position verticales!
Il symbolise l épaisseur d un mur ou une prise au mur par scellement d un bois (ex . sur le bout un entrait)
La croix d’occupation :
Déjà décrite dans le chapitre précédent pour symboliser la place d une pièce de bois d un coté ou de l autre contre un trait .
Il existe encore d autres marquages spécifiques de charpente comme les signes d Etablissements par rapport au bois ainsi que des marquages spécifiques à la taille que nous allons découvrir dans les prochains chapitres .
Pour l instant il faut déjà essayer de connaitre les signes principaux et la symbolique de chacun ci dessus pour pouvoir correctement les visualiser dans les chapitre suivants !
Par exemple nous reparlerons du tracé des signes de pannes en fonctions de la déformation naturelle des bois ou de l établissement pour du moisage .
Etablissement pratique des bois de charpente
Importance de l établissement pratique de charpente
Maintenant que l on connais les signes, il faut les placer judicieusement sur chaque pièces de bois qui vont être utilisés dans un ouvrage de charpente !
Ils ne se tracent pas au "au petit bonheur, la chance" mais d une façon ordonnée et raisonnée en fonction de la place et des contrainte qu une pièce peut avoir à supporter, ainsi que des qualités et défauts du bois dont elle peut être constituée .
A l origine, les bois étaient très bruts et accidentés (bois de brin expliqués plus bas), les charpentiers d'alors pratiquaient la mise en bosse toujours vers le ciel ! c est à dire la règle était toujours le cintrage bombé au dessus pour chaque pièce (fig 1).
De nos jours les bois sur liste d une charpente arrivent de scierie relativement droits et calibrés (fig 2) !
Ce bois toutefois "calibré" comporte encore des vices, cintres naturels et défauts (figs 3-4) qu ils faut prendre en compte et les contrebalancer afin qu il n endommagent pas un ouvrage de charpente !
C est pour cela que l établissement des bois par rapport à ceux ci est très important à connaitre et à maîtriser!
Par exemple une panne mal établie (flèche à l envers), continuera de fait à fléchir plus et feras un creux de toiture très inesthétique et assez perturbant pour le visuel (mauvais travail, sentiment d insécurité, obstacle à la vente du bâtiment, etc ..) !
Les bons charpentiers ne ferons jamais cette erreur car ils travaillent toujours pour faire une charpente "ventrière" ou "ventrue" , c est à dire que tous leurs bois seront avec le bombé toujours orienté vers le haut et vers l extérieur depuis la façade en cas de pièces posées d aplomb .
Ce principe fait que dès que la couverture étanche sera posée, la charpente se trouvera mise en tension et auras tendance à restée ventrue ou devenir droite naturellement .
Etude des vices et défauts du bois de charpente
Les déformations et vices naturels des bois :
Le bois de charpente est débité en pièces longues et imposantes, de ce fait les qualités purement esthétiques du bois importent peu de prime abord contrairement à la menuiserie par exemple !
Les charpentiers se concentreront sur les qualités pérennes et mécanique des pièces de bois .
Il existe plusieurs qualités de bois de charpente de nos jours, ce qui nous permet d allier esthétique et mécanique des bois en fonction des ouvrages !
ci dessous un lien très intéressant et complet sur les normes de qualités esthétiques et mécaniques des bois dans le commerce .
cndb.org/live/...structuraux.pdf
Nous n allons pas ici faire un exposé sur tout les vices et défauts du bois en général, mais nous concentrer sur ce qui est important en charpente .
Le bois n est pas une matière naturellement homogène contrairement aux bois recomposés ou reconstitués de type lamellé collé, de ce fait ils accusent des propriétés physiques à évaluer pour tailler dans de bonnes conditions une charpente pérenne.
Les déformations naturelles des pièces :
Les bois de scierie modernes , sortent des pièces assez régulièrement droites et équarries, mais malgré le savoir faire des scieurs, le sciage libère sur du bois "vert" des tensions opposées au cœur de l arbre , qui ont presque chaque fois tendances à s accentuer au séchage et donc les déformer .
En langage charpentier on appelle cela "le tire à cœur" .
Il existe quatre sortes de déformations (fig 1)!
A/ Le cintrage de champs:
Le cintre de champs, fait que la pièce de bois comporte une flèche sur sa largeur, et donne un champs creux opposé à un champs bombé .
Ce cintrage ne peu que s accentuer avec le temps d'autant plus si on lui applique une charge ! Donc logiquement un champs cintré se positionnera d office vers le haut (aux lapins apprentis on dit vers le ciel) (arbalétrier, pannes, entraits, chevrons , etc.).
B/ le cintrage de face ou plat :
Le cintre de face ou de plat, fait que la pièce de bois comporte une flèche sur son épaisseur, et donne une face creuse opposé à une face bombée .
Ce cintrage lui aussi ne peut que s'accentuer s'il est chargé .
Son placement logique sera ici en fonction de la destination de la pièce de bois (surtout pour les pannes) .
C/ le vrillage (ou gauchement) :
Le vrillage ou gauchement, crée une torsion plus ou moins sévère par séchage des fibres de bois gras autour des fibres de bois plus denses placées vers le cœur si celles ci ne sont pas tout à fait parallèles au sciage ou si l arbre a eu un vrillage naturel des fibres en grandissant (souvent arbres exposés au vent) .
Il faudra estimer ce vrillage qui peut être assez spectaculaire, voir écarter et échanger la pièce dans les cas extrêmes (poteaux, poinçons, pannes) ! De plus il faudra contre jauger (voir plus bas) pour y tracer et tailler des assemblages corrects .
D/ le tuilage :
Le tuilage, crée en séchant une déformation linéaire en creux d une face par rapport à l autre qui sera bombée, par la particularité du bois que l on appelle "le tire à cœur" .
Cette déformation naturelle est due au séchage du bois parfait se rétractant plus par rapport du bois de cœur !
Cette déformation en creux sera toujours opposée au coté cœur .
En charpente, on fait de cette particularité un renforcement des assemblages par pression naturelle ,particulièrement dans la technique du "moisage" .
Nota : Les bois de charpente comportent assez souvent plusieurs des caractéristiques ci dessus dans une même pièce, d'ou l'importance de les connaitre parfaitement pour évaluer et établir correctement et judicieusement !
Déformation des sections de bois :
Une pièce de bois vue par bout, nous donne depuis sa section des informations sur sa position originelle dans l arbre !
De ce fait à l étude des cernes et du coeur suivant ou ils sont placés on peut aisément estimer comment se comporteront les pièces de bois en séchant .
En effet, les charpentiers travaillent souvent du bois non sec du fait de l approvisionnement sur liste en temps réel, de fait l étude du bois de section permet de placer une pièce judicieusement pour que le séchage ultérieur n'affecte pas dans le temps la charpente ! (Ex le coté cœur pour le désabout d une contrefiche) .
Ci dessous les illustrations 2-3-4 nous montrent les différentes déformations de sections des pièces au séchage, suivant leurs emplacements d origines dans un arbre .
En résumé cela parait compliqué, mais quand on raisonne avec logique tout devient évident et les charpentiers confirmés savent au premier coup d œil placer et établir une une pièce presque instinctivement !
Les défauts du bois en charpente
Le bois de charpente étant de grandes dimensions, ils comportent toujours des défauts naturels des bois !
Les charpentiers choisissent généralement leurs pièces en fonction de la place quelles occuperont, mais ne cherchent pas nécessairement à cacher les défauts du bois (nœuds, poche de résine, petites fentes, etc ..), par contre ils rejetteront d office les défauts majeurs qui pourraient endommager ou affaiblir voir fracturer un élément de charpente (fig 5) . (ex. Le fil tranché, le bois fendu traversant, et les gros nœuds, Des fissures visibles, des coups de scies accidentels etc .)
Enfin on peut retailler des pièces courtes dans les pièces longues comportant un défaut majeur en l éliminant, et un charpentier essayera au maximum de placer les bois apparents en fonctions de la qualité esthétique visuelle et des défauts à dissimuler par le placement judicieux des pièces par rapport aux autres sans toutefois changer l orientation utiles d établissement (voir le chapitre suivant) .
Etablissement pratique des pièces en fonction des déformations et défauts
Une liste de bois arrive généralement par camion, empilée et liée, le déchargement est fait par une grue .
Dans ce paquet il y aura plusieurs bois de même dimensions dévolus à la construction d une charpente (Fermes, pannes, chevrons , etc..) .
Il faut à mesure que l on manutentionne ces bois depuis le conditionnement, les choisir et les établir en fonction de chaque pièces à mesure .
Etape 1 : Dès que l on prend une pièce, à l œil on détermine le champs bombé et on lui appose la croix d établissement !
De cette façon il n y auras plus de risque d erreur de placer la flèche de cintre à l envers .
Etape 2 : Directement sur le tas, ou en la plaçant sur des tréteaux, on l établit avec le signe en fonction de la place que l on lui attribue .
Etape 3 : Si c est un bois de ferme, on vas le placer près ou sur l épure à mesure .
Si c est une panne autre qu un faîtage ou une sablière on la taille directement et on coche notre plan de panne puis on la rempile bien à plat et lattée de suite en essayant de préserver l ordre des travées .
Etablissement d une panne faîtière :
La ou les pannes faîtières doivent être choisies les plus droites possibles et le champs bombé vers le haut, Elles comporteront des délardements sur les arêtes supérieures qui recalibreront le bombé en droit .(fig 1)
Si une faîtière est muraillère dans le cas d un auvent, il est évident quelle doit être de préférence bien droite .
Etablissement d'une panne intermédiaire en devers :
Une ou des pannes intermédiaires en devers peuvent être cintrées dans les deux sens cela n'a pas d importance, par contre il faut placer ces cintres judicieusement ! (fig 2)
Le bombé de champs vers le haut, et le signe d établissement impérativement sur le face creuse !
En effet, cette panne sera posée dans le sens de la pente de toiture et auras tendance à fléchir en descente, donc le fait de lui mettre le creux vers l extérieur contrebalancera de fait sa tendance à son fléchissement naturel dans le temps .
Etablissement d'une panne intermédiaire en aplomb :
Ici on fait exactement le contraire ! On place le bombé de champs toujours vers le haut, mais on place le signe d établissement sur le coté (ventru) bombé du plat vers l'extérieur . (fig 3)
En effet une panne d aplomb reçoit le poussée de toiture vers l intérieur, donc il faut l empêcher de creuser. Dans le langage populaire on dit "pannes ventrières" ou "faire la bulle"
Etablissement d'une panne sablière :
Les pannes sablières (portées) s'établissent toujours sur la face bombée vers l extérieur et le champs bombé vers le haut, puis elle sera délardée sur l'arête ce qui redressera le repos des chevrons . (fig 4)
Dans le cas d une sablière placée à plat sur l arase , on procède de la même manière (bombé en haut et extérieur) .
Nota : Il est rare d établir les pannes sablières à plat sur les arases, leurs délardement faisant foi !
Etablissement de moises :
Les éléments moisés s'établissent toujours en mettant le coté cœur dans les extérieurs en oppositions et les champs bombés vers le haut !
En effet les déformations du bois qui se font naturellement opposées au cœur et qui seront boulonnées ne feront que resserrer en permanence les moises sur les bois enserrés (Arbalétriers, poinçon, et jambes). (fig 5)
Etablissements des poteaux et poinçons :
Les éléments carrés doivent êtres établis en essayant de les placer dans le sens de poussée de l'arbre vers le haut ( sens des nœuds, des flammes de sciage , du flache), et le coté cœur face aux intempéries pour des poteaux (le bois de cœur étant plus dense résistera mieux à la pluie) .
Pour un poinçon, le bois coté cœur sur la face de la ferme de préférence pour équilibrer la pression sur un même bois les assemblages de contrefiches et des arbalétriers, et surtout si le bois fend linéairement coté cœur il sera maintenu par la même pression (idem pour des poinçons de sections rectangulaires). (fig 6**)
Etablissements des autres pièces de charpente
Les arbalétriers toujours avec le champs bombé vers le haut .
Les entraits simples toujours avec le champs bombé vers le haut .
Les jambes de forces, liens, et contrefiches, il faut essayer de mettre le champs des bois le plus dense coté cœur aux pressions de désabout des pièces .
Les chevrons s établissent avec la croix sur le champs bombé pour ne pas avoir à rechercher leurs sens perché sur le chantier !.
La plumée de dévers, le contre-jaugeage et le lignage
Cette étape était chaque fois pratiquée jadis par les charpentiers, elle consiste à tracer des lignes de références sur les quatre faces principales de toutes les pièces de charpente.
En effet avant d avoir des bois équarris de scierie moderne, les bois étaient prélevés directement ""bois de brin"" ce qui signifie que l on équarrissait à la hache, doloire ou scie de long un tronc ou une branche entière brute et cœur, contenant inscrite dans la masse la pièce désirée .
Ces bois étaient rarement droits, plats, ou dégauchis, ou encore être arrondis aux angles à cause du flache restant au sciage ou équarrissage !
Donc avant de les utiliser il faut pouvoir les positionner dans un ouvrage de façon la plus équilibrée possible pour optimiser leurs résistances et aligner leurs assemblages !
Enfin, les pièces tracées sur l épure ne correspondent pas toujours avec la section des bois choisis, donc on passera par les lignes d'axes, l ensemble est appelé la fibre neutre (axe des pièces de bois) pour positionner la pièce sur la 'ligne" et pouvoir la "piquer" et toujours avoir une référence alignée et d équerre pour les différentes opérations de taille et vérifications d'ajustages !
c est ce que l on appelle La plumée de dévers, le contre-jaugeage et le lignage ! (fig 3)
Cette méthode ancestrale est encore utilisée de nos jours par les charpentiers dans des ouvrages comprenant du bois de réemplois (ex colombages traditionels) .
Ci dessous, l illustration d'exemple nous montre une pièce de bois gauche et cintrée à ligner, le principe s appliquera à toutes pièces cintrées, rondes, tordues, etc... ,petites ou grandes !
Il est important dans la réalité de débiter la pièce en longueur + la réservation d assemblages et d avoir fait deux coupes franches de propreté aux abouts de la pièce à ligner pour pouvoir faire des tracés soignés .
On procède en trois étapes, à l'aide d un niveau, d une jauge de charpentier (Voir illustration), d un crayon et d une lignette ou cordex ou un cordeau traditionnel (à la poudre de craie ou noir de suie (préférable car moins sale que le bleu car ils s effaceront avec le temps ) .
Etape 1/ La plumée de dévers :
a/ En premier lieu , il faut placer la pièce désirée sur des tréteaux ou des chantiers, sa face choisie vers le haut, puis installer au centre en travers et perpendiculairement le niveau à un endroit ou il est stable .
b/ Par rapport au niveau on cale notre pièce avec des coins bien placés pour partager le gauche, et dès que tout est stable on trace le signe de plumée qui servira identifier et placer la face choisie vers le haut sur l épure et à replacer le niveau si besoin pile à l endroit ou il doit servir de référence en cas d utilité .
Le signe de la plumée se trace par un trait de chaque cotés de la semelle du niveau, puis des ondulations en miroir. (fig 2)
Nota : Si la pièce est légère ou très en balourd il ne faut pas hésiter à recourir à des serres joint ou des quilles pour la maintenir en place une fois calée de niveau sur la plume , car il est important que rien ne bouge pour les étapes suivantes !
Etape 2/ Le contre-jaugeage :
a/ A l aide de la jauge de charpentier et du crayon il faut tracer les axes de la fibre neutre de notre pièce sur les deux abouts par diagonales depuis les arêtes .
Quand il y a du flache à la place d un angle, on prend le milieu du plat de celui ci comme référence .
b/ Ensuite à l aide du niveau, nous traçons depuis les points d'axes une horizontale et une verticale sur chacun des abouts .
Nous découvrons alors que les lignes horizontales de niveau et verticales d'aplomb ne sont pas parallèles aux faces, mais elles donnent une moyenne parfaitement équilibrée sur une pièce gauche d un bout à l autre .
Etape 3/ Le lignage :
Il ne reste plus qu à tracer les lignes de références sur les quatre faces à l aide du cordeau ou de la lignette, et répéter l'opération pour les autres pièce de la charpente .
En langage charpentier ""Battre du cordeau !""(fig 4)
En résumé, cette opération nous permettra de pouvoir tracer des assemblages équilibrés sur un bois équilibré placé dans une charpente, ce qui lui permettra de faire son travail de façon optimum grâce à des assemblements dans une logique parfaitement géométrique depuis des bois tordus ou accidentés sans références à la base .
Par exemple imaginons cette pièce gauche avec des tenons non parallèles sur les abouts, elle serait assemblée en force, gauche, et risquerait casser ses assemblages ou même faire gauchir la ferme ou elle serait placée .
Enfin une pièce de charpente comme un poinçon par exemple reçoit des assemblages sur ses 4 faces, dans une logique perpendiculaire vu en plan! Donc il faut bien avoir une référence (la fibre neutre (axe des pièces de bois)) pour que cet ordre soit respecté pour réussir des assemblages cohérents sur des pièces de bois accidentées (fig 3).
Les marquages de taillages
Quand on tracent les assemblages sur les pièces de bois, un marquage spécifique permet de ne pas faire d erreurs d usinages et d'identifier au premier coup d œil les opérations à exécuter .
Ces marquages sont parfois différents d un atelier à l autre, je vous transmet ceux que nous utilisions (on les retrouves en menuiserie) .
Le trait à couper :
Il sera toujours matérialisé par une croix centrée sur le trait de tracé ! Il représentera toujours une chute qui tombera qui elle sera hachurée coté épaisseur de lame .
Le trait "à suivre :
Il est matérialisé par une série de trois croix, ce qui signifiera qu il sera pointé en profondeur et qu il restera du bois dessous (ex. tracés d entailles, de moisages ou d embrevemnts )
Le bois chute :
Il est matérialisé par des hachures, ce qui signifie que cette partie tombera (ex .about ou champs d entailles traversantes .
Le bois à entailler et arasements :
On le matérialise par des formes rondes (entailles, arasements) ou avec des larges ondulations (entailles de moisage), ce qui signifie que ces parties doivent être enlevées mais qu il reste du bois dessous .
C est la méthode que je préconise, car elle permet de chaque fois d'être vigilant par rapport aux différentes profondeurs de pointage qui se trouveraient dans un même ouvrage .
La mortaise :
Le marquage de mortaise se fait avec une série de ronds, à l image que jadis on faisait une série de perçage à la tarière pour dégrossir une mortaise .
Si une mortaise est accompagnée d un embrèvement ,on oublie pas les trois petites croix du coté désabout .
Un signe de mortaise récurant est aussi fait d une flèche tracée entre les traits de joues avec deux demi-pointes montrant les about de celle ci
Le trou à percer :
Généralement une croix mesurée tracée aux instruments qui marque l emplacement axé du perçage, on peut aussi lui ajouter un rond pour le repérer plus facilement .
La croix d’occupation :
Déjà cité plus haut elle sert sur l épure, et sur les bois ce sont des croix assez grandes placées de part et d autre d un trait pour pouvoir situer une superposition de bois (ex. trait de panne sur un arbalétrier, le coté panne par une petite croix et le coté échantignole par une croix plus allongée ).
La prise en scellement :
Les bois encastrés et sellés dans un mur, se matérialisent par le marquage rez de mur , mais on ne trace pas de croix de trait à couper sur le trait de tracé !
Les bois de charpente
Le bois de charpente
Avant de rentrer dans le vif du sujet sur la construction de charpentes, il faut apprendre quelques notions sur le bois dont elles seront constituées !
En excluant les charpentes de types fermettes et autres fabrications industrielles, pour les charpente traditionnelles il y a trois grandes familles de bois à utiliser pour leurs élaborations .
1/ Les bois de réemplois :
Le réemplois de matériaux d occasions est récurent depuis la nuit des temps dans la construction, il faut penser que les anciens ne perdaient rien et poussaient souvent la récupération de matériaux à ces extrêmes limites, avant de partir sur du neuf (Eh oui on à rien inventé !!! ) (fig 1-2) .
En charpente c'était pratiques courantes, et tout le monde à déjà aperçu des mortaises ou des entailles qui n ont pas d'utilités ça et là dans des bois de charpentes anciennes.
De nos jours la vente de matériaux d occasions est devenu un commerce assez banal .
a/ Avantages des bois de réemplois :
Ces bois sont en premier lieu très secs, durs et résistants, ils permettent de construire des charpentes apparentes du plus bel effet parfaitement intégrables dans de la restauration authentique ou de la construction ou rénovations de bâtiments aux cachets anciens ou rustiques.
L'usage de ces vieux matériaux est assez prisés malgré une mise en oeuvre assez coûteuse .
Hormis les bois de sapins et l éventuel aubier piqué, ils n ont en général pas besoin de traitement pour les feuillus (Chêne, orme, châtaigner) ou les pins et le mélèze.
La taille de charpente en bois de réemplois est un travail très intéressant à pratiquer car elle démontre le savoir faire des charpentiers confirmés !
b/ Inconvénients des bois de réemplois :
L'approvisionnement complet des pièces d un ouvrage de charpente, les prix parfois prohibitifs, les vices cachés par la saleté des bois d occasions, les corps étrangers (clous, béton, morceaux de pierres ou de tuiles dans les gerces, souvent beaucoup d aubier, etc ..).
Le taillage qui demande beaucoup de manutention, nettoyage et blanchiment (Brossage, nettoyage haute pression, arrachage et recherche des clous, rabotage à main, plane, etc ..), et un tracé de piquage plus compliqué (plumée, contre jaugeage et lignage), suivi d une exécution plus délicate des assemblages .
Enfin il y a de la perte assez conséquente de matière et un besoin plus important d'affûtage et d entretient de l outillage .
2/ Les bois équarris de scierie :
Tous le monde le connais, et une grande majorité des charpentes traditionnelles se taillent en bois toutes essences charpentières, neufs équarris de scierie (fig 3-4).
Le bois est traité au bain pour la charpente et l'usage dans le bâtiment directement en scierie ,et peut être séché (son degré d'humidité doit être compris entre 13 et 17% pour être considéré sec).
a/ Avantages des bois équarris :
Ce sont des bois de sections normalisées débités parallélépipédiques ainsi que des qualités visuelles différentes qui permettent une mise en oeuvre simplifiée.
Ils sont souvent assez bien purgés de défauts majeurs et du cœur (sauf les très grosse pièces) .
Les variantes des nombreuses cotes des sections et de longueurs donnent un champs de choix applicables à chaque cas particulier de dimensionnement des éléments d une charpente .
Les feuilles de débit de bois bien faites ne provoquent pas de gaspillage ni de chutes importantes .
Il peut être traité au bain , et aussi étuvé avant d être livré ( délais parfois longs) ou encore il peut être autoclavé, c'est à dire sec (réssuyé) et traité à cœur.
Ils est aisé de les blanchir au rabot électrique de charpente et ont de bonnes faces d appuis des autres outils électro portatifs .
La finition fine pour de l apparent (ponçage et teinte/peinture) se fait assez facilement (en bois sec ou ressuyé de surface).
Il est facile à empiler et de le conditionner pour du transport ou du levage .
Ils n y à pas de problèmes à tailler des bois "verts" pour des charpente en combles perdus ou des communs !
b/ Inconvénients des bois équarris :
Les bois de charpentes sont rarement secs naturellement, leur approvisionnement étant souvent en temps réel et le traitement au bain sur du bois "vert" n est pas très efficace ,il faut parfois refaire le traitement des bois après la taille et un peu de "réssuyage", ou encore la teinte rouge ou jaune de témoins de traitement encore humides tachent les bois rabotés un peu plus secs .
De ce fait ils sont souvent assez lourds au levage et plein de sève ou résine collante, ils travaillent beaucoup au séchage après la taille et la pose ce qui peut poser des problèmes d esthétiques en apparent ou de déformations si le charpentier n'a pas les compétences pour anticiper in situ et contrebalancer ainsi le séchage à posteriori (Fluage, désolidarisation d'assemblages, fendages mal situés ' ect ..) !
L entreposition des bois demandes de la réflexion et de la place .
Les outils sont souvent à nettoyer et à essuyer à cause des résines, des sels de traitements non secs et de l humidité .
En cas de pose en hiver par gel, les bois humides gèlent et deviennent très glissants .
3/ Les bois en lamellé collés :
De nos jours l'approvisionnement en bois lamellés collés est assez rapide, et il y a beaucoup plus de sections différentes disponibles et de grandes longueurs possibles, ce qui permet de créer des ouvrages de charpentes renforcés et/ou parés d une certaine esthétique très design (fig 5-6).
a/ Avantages des bois lamellés-collés :
Les bois lamellés sont secs et stables, calibrés droits et rabotés, ce qui en fait une mise en oeuvre très simplifiée (piquage des bois à la pièce carrée ou à l équerre, pas de polene ).
Les bois peuvent être appareillés de façons plus audacieuses pour des esthétiques innovantes .
Le lamellé collés se ponce et se teinte et se vernis aisément, ouvrant un peu plus le domaines des possibilités et de choix de décorations .
b/ Inconvénients des bois lamellés-collés :
Les inconvénients se situes surtout à la manutention et levage par le poids de matériaux conséquents, et de fait en plus la relative "fragilité" aux rayures, chocs, taches, mouillages et intempéries qui pourraient y être apposés, ces bois étant considérés comme "finis" voir même déjà vernis, on donc doit les manœuvrer avec beaucoup de précautions quand il s'agira d'ouvrages apparents et/ou design !
Certaines colles utilisées dans la fabrication des lamellés collés sont assez dures et silencieuses , peuvent endommager l outillage .
Les cotes standard de bois de charpentes traditionnelles
Généralement nous avons accès facilement à des sections standardisées pour une longueur usuelle de 6 mètres !
Après c est du débit sur liste avec des proposition de longueurs jusqu à 12/15 mètres suivant les essences de bois !
Enfin on peut évidemment demander à la scierie du sciage à façon des sections non standard que l on désire mais en général c est plus cher !(par exemple pour un plafond à la française)
Suivant les différents distributeur ou scieries régionales, il y a parfois des petites variantes d appellations .
Les poutres de sections carrées :
Elles sont principalement destinées à l élaboration de poinçons et de poteaux !
Dimensions standards : 12 x 12 cm /// 15 x 15 cm /// 20 x 20 cm.
Dimensions sur liste : 25 x 25 cm /// 30 x 30 cm.
Les sections de Madriers (ou pannes) :
Dimensions standard : 8 x 22 cm /// 10 x 22 cm (l ancien 10 x 20 cm est généralement abandonné au profit du 10 x 22 cm ).
Dimensions sur liste : 12 x 24 cm /// 15 x 25 cm.
Les sections de bastaings et demi-bastaings :
Pour des bois de charpente secondaires, ex : Grosses sablière à plat, bois de lucarnes, petit auvent, appentis, chevrons cintrés, etc ...
Dimensions standard : 8 x 15 cm /// 8 x 18 cm .
Dimensions standard : 4 x 15 cm /// 4 x 18 cm .
Les sections demi-madrier (solivettes) et (plateaux de maçon) :
Dimensions standard : 4 x 21 cm ///5 x 25 cm .
Les sections de chevrons :
Comme le noms l indique, sections de bois destinés au chevronnages ainsi qu aux sablières sur arasement de mur (8/11 ou 8/12 cm) .
Dimensions standard : 6 x 8 cm /// 7 x 9 cm /// 8 x 8 cm /// 8 x 10 cm /// 10 x 10 cm /// 8 x 11 cm ou 8 x 12 cm .
Demi-chevron (lambourde et fourrure) : 6 x 4 cm /// 8 x 2,7 cm .
Les sections planches, voliges et lattes (4 mètres à 5 mètres en standard :
Dimensions standard planches ep 27 mm : Largeur de 15 cm (chenaux) , 18 cm, 20 cm, 22 cm, etc ..
Dimensions standard voliges ep 15 et 18 mm : Largeur de 10, 12, 15, 18 cm
Dimensions standard lattes : 27 x 40 mm /// 18 x 27 mm /// 18 x 40 mm /// 30 x 30 mm .
Les bois lamellés collés : Ici la plaquette d'un fabriquant intéressante et assez détaillée avec des sections de fabrications et résistances !
binderholz.com...tholz_F_WEB.pdf
Les essences de bois en charpente traditionnelle
Les essences de bois indigènes et locales étaient utilisées jadis par la nécessité de prélever sur place, ainsi que les architectures différentes régionalement, c est pour cela que l on trouve à peu près de tout parfois dans les ouvrages de charpentes des bâtiments anciens et rustiques .
Les essences étant principalement le chêne, le châtaignier (actuellement attaqué par un insecte exotique) ,(l orme ayant pratiquement disparut hélas, n est plus utilisé) pour les feuillus et les sapins (Jura, Vosges, douglas) , épicéa, les pins (maritime, des Landes, Sylvestre) et mélèzes pour les résineux .
Le peuplier qui est une essence facile à trouver et à mettre en oeuvre et résistante aux insectes mais qui à été délaissée de nos jours en charpente.
Toutefois on débite toujours le peuplier pour du voligeage notamment !
Le robinier ou "faux acacia" est parfois utilisé , mais il est tellement dur et nerveux au séchage qu il est souvent rejeté, par contre en bois fendu puis raboté, il est idéal pour façonner les chevilles de charpente .
Si dessous quelques résultats d ouvrages de charpentes en différentes essences . Dans l ordre, chêne, châtaignier, salin, douglas, pin des landes, mélèze .
Masses volumiques des bois de charpente :
La masse volumique des différents bois humide et sec sont parfois à connaitre et à estimer dans des calcul de charpentes (Poids de chargement d une charpente complète par exemple pour grue ou transport ) ,
ci dessous les principales essences qui nous intéressent !
On lit les masses pour 1 mètre cube de bois . Pour du bois "mi-sec" on fait la moyenne pour estimer .
Chêne : vert +/-1000 kg -sec +/- 690 kg
Orme (ormeau) : vert +/-1050 kg -sec +/- 690 kg
Châtaigner : vert +/-1050 kg -sec +/- 620 kg
Robinier : vert +/-770 kg sec +/- 660 kg
Sapin blanc : vert +/-940 kg -sec +/- 450 kg
Épicéa : vert +/-840 kg -sec +/- 470 kg
Pin sylvestre : vert +/-900 kg -sec +/- 530 kg
Mélèze : vert +/-860 kg -sec +/- 580 kg
Pin Landes: vert +/-800 kg -sec +/- 400 kg
Douglas : vert +/-620 kg -sec +/- 450 kg
Lamellés collés : aux environs de 500 kg/m3 pour les lamellés résineux, supérieure à 700 kg/m3 pour le bois lamellés de chêne .
Traitement et séchages des bois de charpentes
Traitement au sel de bore :
Les bois de charpentes contemporaines sont traités préventivement généralement à la sortie de scierie par bain de sel de bore, considéré comme biologiquement accepté !
Le Sel de Bore est à la fois un excellent insecticide et un antifongique (anti champignons et moisissures).
Il est aussi ignifuge (il ralenti la propagation du feux) .
Le Sel de Bore peut aussi être appliqué curativement sur un bois déjà infesté par pulvérisation, infiltration ou imprégnation , car il permet de faire disparaître les insectes et champignons qui ce sont installés .
Un sac de 1 kg sel de bore mélangé a de l eau chaude pour la préparation permet de faire environ 9/10 litres de traitement .
Traitement autoclave :
Principe très utilisé de nos jours, il permet de traiter le bois "à cœur" en plus de sécher les bois !
Les bois sciés "verts" sont enfermés dans l autoclave, celui ci par le vide extrait l humidité du bois, puis il est traité sous pression par un agent de traitement, et enfin on refait le vide pour ressuyer le bois en surface !
Les séchoirs :
Il est rare l'heure actuelle de voir des entreprises de charpentes avec un stock de bois séchant à l air libre, avec l imposition sur le stockage, les métiers du bois dont les charpentiers doivent se fournir en temps réel .
Les scieries, s' équipent donc de plus en plus en séchoir pour palier à la demande croissante de bois secs .
Trois grands principes de séchage artificiels : Les séchoirs à haute température, Les séchoirs à basse température, Les séchoirs par le vide (associés au traitement).
Présentation du chantier de charpente
Quand un chantier de charpente est projeté, il faut appréhender l'ouvrage à réaliser de façon réfléchie pour que tout les postes qui vont se succéder à l élaboration, soient identifiés et considérés ensembles afin de parfaire un travail finalisé dans les règles .
Avant de passer aux chapitres sur la constructions pratiques de charpentes, nous allons détailler globalement les principales étapes d'un chantier complet pour nous familiariser avec la logistique du métier de charpentier.
Le mot "chantier" de charpente considère toute la progression des étapes d'un ouvrage depuis la demande du client jusqu'à la mise en place finale de celui ci.
Les charpentiers jadis travaillaient exclusivement directement sur "le chantier" et n'avaient pas d atelier, ""les coteries" installaient alors "leurs loges" sur place pour toute la durée d un ouvrage de charpente !
Organigramme de construction d une charpente
Les postes à prendre en comptes sont multiples, nous allons les expliquer dans l intégralité sachant que chaque ouvrage de charpente est généralement singulier dans ce que l'on nomme dans le métier "chantier facile ou difficile" ou parfois "bois gentils ou bois méchants" (fig 1-2).
Une charpente quelle qu'elle soit, va se placer au final sur un bâtit ou servir de bâtit elle même, pour ces raisons il est évident d'aller in situ pour définir le projet et prendre les mesures.
Si un plan est donné par l architecte ou le particulier, il sera de toutes façons incontournable de se rendre sur le chantier pour du travail traditionnel, afin d'avoir les principales informations nécessaires au moins pour la "taille", et pouvoir visualiser virtuellement dans l espace l'ouvrage de charpente à construire .
1/ L environnent du chantier :
Dès l arrivée sur place, un charpentier professionnel visualise de façon globale la géographie complète de son futur chantier tout en s'assurant que les permis de construire soient acceptés et s'il n y a un cahier des charges qui peut impacter l'ouvrage charpente (urbanismes spécifiques, zone historique, contraintes régionales, etc ..) .
L accessibilité : L accès au chantier est une donnée très importante, car elle permet d évaluer des plus-values en temps et du devis (Distance, déchargement, stationnement, manutention, levage, protection du site et/ou des passants, chantier public ou privé, signalisation, etc ...), .
On imagine bien par exemple la différence entre un accès pour une grue ou devoir monter tout les bois "à l os" ou encore faire des demandes administratives pour poser de l échafaudage sur voie publique .
Bref le champs est large, donc les questionnements doivent être précis .
Le chantier proprement dit : Il faut évaluer ici les difficultés liées au bâtit en lui même et du matériel à mettre en oeuvre (hauteur de l édifice, protections des étages inférieurs (bâchage) , nature des parois (fragilité ou/et précaution à la finition de celle ci (ex crépi neuf), nature des sols, sécurité face au vide et/ou des habitants, accès par escalier, fenêtre ou portes, possibilités de tailler sur place, etc ... ) (fig 3-4).
Les corps d états présents sur le chantier : Ce sont principalement les maçons, qu il faut essayer de contacter au plus tôt, voir même faire une réunion de chantier en commun.
Dans beaucoup de cas de charpente, le maçon demandera le plan de pannes pour ses arases et pignons, ou un plan d implantation de dés de fondations pour des poteaux ou fermes, ce qui lui gagnera du temps.
Les maçons ont souvent une grue ou un manuscopique sur le chantier, donc en contrepartie des plans d implantation des bois il apparaît pratique de travailler en collaboration avec eux pour le levage futurs grâce à leur grue (gros gain de temps) .
Il est utile aussi de s'entendre avec le couvreur qui lui aussi peut parfois collaborer "en échange de bons procédés" !
2/ La prise de cotes :
Nous aurons un chapitre entier sur le sujet, en attendant c est un moment très important dans l édification d une charpente !
En effet, c est ici que les informations pratiques devront etre très précises en terme de cotations, d angles, de niveaux, de considérations d aménagements, de réservations, définitions de finitions ou styles particuliers (copie d ancien, moulures, sculptures), essence, etc ..
La transcription sur le plan de l architecte, ou sur un bloc quadrillé devra contenir toutes les données cotées et vérifiées pour l étude . (Une erreur de prise de cote est généralement fatale dans une charpente) .
De nos jours les professionnels ont du matériel performant pour prendre les mesures précises et sans avoir à faire le "singe" pour cramponner le décamètre seul d'un point à l autre du bâtiment à couvrir .
3/ L étude :
L étude est l étape qui permet grâce à la prise de cotes, de tout visualiser précisément et définitivement par dessins et calculs pour un ouvrage avant de passer à la construction pratique.
Pour des ouvrages complexes, c est ici que l on doit maîtriser "l'art du trait de charpente" ,car il faut parfois développer des arêtiers, noues, et/ou courbes, pour avoir des longueurs de bois et des tracés non connus en simple élévation sur le dessin . .
L'étude permet donc de faire un dessin précis à l échelle (1/10, 1/20, 1/50) correspondant aux futures épures des diverses parties stratégiques d'une charpente, afin de définir le débit de bois, les portées, les sections de bois, les emplacements exacts des différentes pièces .
Le dessin préparatoire peut ce faire sur feuilles quadrillées à petits carreaux, c est un procédé pratique car le quadrillage et millimétré en 5 x 5 mm ce qui permet une approche facilité des tracés (fig 1).
On peut aussi faire le dessin étude "à la planche" traditionnellement (fig 2)!
De nos jours, l'informatique permet de faire du plan 2D ou 3D facilement et très précisément et de dupliquer les documents aisément (fig 3-4).
Enfin sur un panneau de bois ou sur feuilles pliables, on fait une épure cotée au 1/10 ou 1/20 du plan de pannes à fournir au maçon pour ces finitions d arases et de pignons (fig 5).
4/ La commande des bois :
S'approvisionner en bois de charpente est parfois délicat dès que l on passe à des projets imposants, suivant l'essence, du bois composites hors cotes standards, du bois de réemplois, du séchage ou des finitions ou styles désirés .
En effet, les approvisionnements doivent être pris en compte et placé judicieusement sur le timing d un chantier pour ne pas avoir de retards néfastes sur le bon déroulé des opérations .
Dans un projet privé, il est généralement assez aisé de préparer son chantier, et de prendre le temps pour s'approvisionner.
Si le client fournis le bois, il faut s'assurer que les sections ou l'essence soient compatibles avec le projet, et considérer aussi la préparation des bois de réemplois (arrachage de clous, nettoyage, etc ..)
Voir le chapitre précédent : Les bois de charpente
5/ Le tracé d'épures :
C est ici l étape majeure de la construction d'une charpente autre que de la simple pannes sur pignons.
Elle servira au traçage précis des fermes et d'autres éléments par piquage des bois depuis le tracé d épure réalise au sol à l'échelle 1.
Il faut avoir un endroit dévolus à cela (sol de niveau, dalle de béton, plancher)(-fig 1-2) , ou le créer en façonnant un plancher provisoire nivelé assez grand pour accueillir l épure et assez solide pour supporter la charge des bois (fig 3).
Toutefois une terrasse, une surface de béton ou une surface enrobé assez planes sont compatibles comme zones de tracés d épures et de taillage d un ouvrage de charpente, un faux niveau minime +/- 10 cm n'impactera pas les bois calés de niveau pour le piquage, par contre il faudra bâcher les tracés en plain air .(figs 4)
Le dessin d étude précédemment expliqué, permet aussi de déterminer la superficie utile à la zone d épure et de taille nécessaire à un projet .
6/ La "taille" de la charpente :
L'usinage des bois de charpente se nomme la "taille" chez les professionnels, du verbe tailler que l on à conservé depuis des temps reculés .
A l'heure actuelle, hormis les fabrications industrielles, une charpente se taille en atelier ou in situ au bas du chantier .
L outillage spécifique des charpentiers fait que l'on peut tailler n'importe ou pourvus que l on ait accès à de l Electricité et un espace pour tracer une épure !
Les bois étant généralement assez imposants, on rabote (blanchissage) les bois et on taille les assemblages à l aide de machines électro-portatives traditionnelles et/ou spécifiques de charpente, ainsi que de l outillage traditionnel à main .
Pour de la finition "fine" (ponçage) on utilise la ponceuse à bande pour du surfaçage droit ou courbe et excentrique dans des parties creuses .
Ci dessous quelques exemples de machines électro-portatives spécifiques que nous détaillerons précisément dans un prochain chapitre concentré sur l outillage et façonnages des assemblages de charpente .
7/ La pose de la charpente :
C est le moment final, c est ici que l on découvre le résulta du projet réalisé à son emplacement définitif, et surtout si toutes les étapes ont étés parfaitement exécutées !
Le levage de la structure principale est généralement le point le plus sensible en termes de difficultés .
En effet les bois sont longs, lourds, et parfois à manutentionner avec précautions quand on est dans un environnement particulier ou que l ouvrage lui même serait apparent .
La pose traditionnelle se fait toujours couramment à la main (cordes, échelles, échafaudages) dans des ouvrages de faibles cubages "bois gentils" , ou alors avec des engins performants qui peuvent éventuellement être loués pour des ouvrages imposants, haut ou "difficiles ou bois méchants" .
Puis enfin viens le chevronnage et autres éléments secondaires et de finition (lucarne, fenêtre de toiture, frisette, bandeaux, etc ..), qui termineront le "chantier de charpente" !
En résumé, voila à peu près à quoi on doit être attentif au cours d'un chantier de charpente, il est important de visualiser tout cela avant d'allez plus avant dans le détail pour encore une fois bien identifier chaque étapes au cours des prochains articles pratiques .
On réalise bien ici que la charpente est un vrais métier, ou aucune improvisation n'est permise, et qu'un charpentier digne de ce nom est un Homme de l art qui maîtrisera parfaitement son art qu'après au moins 10 ans de travail assidu !!
La prise de cotes des charpentes
Apres avoir défini un ouvrage de charpente, il faut maintenant prendre toutes les mesures nécessaires à son étude et sa réalisation .
La prise de cotes sous entend que la visualisation globale et les spécificités complète du chantier ont étés ingérées, comme expliqué dans le chapitre précédent (ex : il ne agit pas de placer une ferme sur le linteau d'une baie ou des bois dans une cheminée !!)
Il faut bien entendu se munir de quoi mesurer précisément en fonction de la singularité de chaque chantier, et de quoi transcrire proprement les mesures (bloc A4 petit carreaux, ou /et plan de l architecte, crayon, double décimètre, réglet, etc ) .
On doit se munir en plus de mètre, décamètre et/ou télémètre, d'instruments pour définir des niveaux, des angles et alignements (règle, niveau (traditionnel ou laser), cordeaux, cordex à tracer, crayon de maçon, etc ..
Il faut parfois prendre des échelles ou escabeaux pour atteindre des points hauts.
Prise de cotes du plan d'ensemble (vue en plan) et plans de coupes
Une prise de cote de charpente se fait en deux temps :
A/ Retranscription de cotes et d éléments utiles sur un plan d ensemble du bâtit ou vue en plan dans le jargon charpentier.
B/ Retranscription de cotes et d'éléments utiles sur un ou des des plans de coupes ou de façades suivant les besoins.
La prise de cote doit être particulièrement soignée et bien lisible, il faut penser que l'étude qui en découlera, ne souffre pas qu'il ait des erreurs qui seraient dommageables ou fatales à la finalité du chantier !
Comme n'importe quelle construction, on mesure et on réalise un plan d ensemble du bâtit vue de dessus ou littéralement"la vue en plan" chez les charpentiers, qui situera les cotes extrêmes du bâtiment à couvrir, ainsi que ses axes de faîtages, ses murs en épaisseurs (porteurs) extérieur et intérieur et/ou de son empreinte au sol (plan de masse) si c est un ouvrage autoporteur (car port, hangar, atelier, auvent, kiosque, etc.).
Puis on passe à des plans de coupes ou de façades suivant les besoins.
Les plans de coupes comprendront le relevé de mesures en élévation des différents niveaux nécessaires aux tracés d'épures et de conceptions (ligne de trave, sols, arases, pignons, faîtage ,etc ..) .
Enfin des plans de façades sont utiles en cas de lucarne maçonnées, auvent, différents niveaux utiles et éléments architecturaux à prendre en compte depuis l extérieur .
Tout ces plans devront comporter toutes les spécificités visibles du bâtit utiles à notre charpente : Faux équerre, murs différents, cheminée(s), lucarne(s), emplacement de velux, etc .
Sur ces plans suivant les cas il faudra spécifier des éléments "cachés" utiles : Linteaux de baies inférieur, canalisations, renfort en dalle, réservation de plancher ou autre, etc ..
Il faut aussi prendre en compte des dégagements : Ouvertures de portes, de volets, arrivée d escalier, rayon de braquage ou passage en hauteur de véhicules, etc , parfois en traçant le volume vide utile (**fig 3).
Vérifier le plan de l architecte à mesure en fonction du bâtit et de ce qui est transmis par le papier, parfois il y à une erreur ou une modification à prendre en compte .
On doit aussi parfois noter des informations utiles que l on découvre sur place (ex pureau de tuiles, finition particulière, ajout non spécifiés, copie d éléments préexistants, etc ...)
Détails généraux important dans la prise de cotes:
Dans des prises de cotes sur du bâtit ancien, il faut toujours en premier lieu évaluer les équerrages, les aplombs et les alignements, et sonder les endroit porteurs sur leurs hauteurs de façon à détecter des éventuels défauts de maçonnerie (cavité cachée, déformations majeures, fissures, etc ..).
Une chose à faire chaque fois dans le neuf, est de mesurer les diagonales de la construction pour en vérifier l'équerrage ! J'ai personnellement eu à faire quelquefois à ce genre de désagréments, et poser une charpente sur un bâtit supposé d équerre qui ne l'est pas est un cauchemar pour tricher le tout !
Quand un bâtiment est de forme géométrique autre que carré ou rectangle en plan, il convient de prendre toutes les mesures et diagonales utiles pour retracer la forme à l étude .
La prise de cotes à l'intérieur des murs si possible est la plus pratique, il suffit après d'y ajouter ensuite les épaisseurs de ceux ci .
Pour tout ce qui est circulaire ou inscrit dans un cercle , on applique les bases de géométrie appliqués (recherche d'axes, diamètre, faces de polygones régulier, etc .). (fig 1)
Quand un bâtiment carré ou rectangulaire en plan est en proie à des déformations (faux aplomb ou murs non rectilignes, on prend toutes les mesures de droit, d'aplomb, de faux aplomb et de flèche pour pouvoir faire une moyenne des débord à l étude, sachant en outre que les sablières ne seront plus de niveaux .(fig 2)
Il y a enfin un point que nous aborderont plus tard à l'étude, ce sont les pentes variables des arases de murs et pignons en fonction des angles dans la maçonnerie en plan et de la pente du toit (fig 4).
Exemples pratiques de prises de cotes de charpentes
Nous allons maintenant passer à la pratiques sur des exemples définis ci dessous !
Ceux ci seront repris dans les chapitres prochains comme illustrations de base à toute la progression de ce pas à pas (étude, épure, taille, pose, etc .).
Ex 1/ Pavillon neuf parallélépipédique en construction.
Ex 2/ Maison neuve, avec charpente complexe.
Ex 3/ Dés de bétons pour accueillir un hangar agricole.
Ex 4/ Petite maison à restaurer en gite avec charpente hors service.
Ex 5/ Tourelle circulaire (donjon) à couvrir.
Ex 6/ Emplacement d'une charpente de auvent.
1/ Prise de cotes sur un pavillon neuf parallélépipédique en construction :
Dans notre exemple 1, il s'agit d une construction parallélépipède neuve en agglos creux traditionnels de 13 mètres x 8 mètres .
Les combles perdus seront accessibles en grenier et service par un escamotable, la charpente pannes chevrons sur deux fermes traditionnelles en sapin sur deux pans avec débords et forgets +/-50 cm .
La pente de toiture à 50% avec tuiles (M... DOUBLE ROMANE GRAND MOULE FAIBLE RELIEF) pour les calculs précis de débords +/- 50 cm sans coupes (pureau de tuiles).
Ici la prise de cotes sur ce genre de construction est au plus simple, on peut prendre les mesures de la charpente dès que les murs sont commencés, car tout à été prédéterminé par l architecte !
On trace une vue en plan du bâtit, avec ses axes et les longueurs extérieures, intérieures et les épaisseurs des murs.
Puis on trace un plan de coupe avec les longueur, niveaux définis, et autres informations.
Sur les croquis ci dessous, on visualise bien les travaux à venir : Axes des fermes, axe du faîtage, le solivage de surface pour plafond et plancher léger ainsi que toutes les mesures et niveaux nécessaires pour y parvenir.
2/ Prise de cotes sur maison neuve, avec charpente complexe :
Pour l exemple 2, il s'agit d une maison de caractère montée en agglos avec décrochements et pignons de façades avec terrasse et balcon avant et arrière, plus des lucarnes en toiture .
Charpente fermes, pannes et chevrons en combles aménagés réalisés en chêne équarri .
Cette construction possédera un pignon apparent en moellon de pierre en façade.
Pente de toiture à 100% (45°) avec débords de toiture +/- 0,5 m .
Couverture traditionnelle en tuile plates et zinguerie traditionnelle en cuivre .
Ici nous allons avoir des fermes intérieures et extérieures et des noues en plus de décrochements à prendre en compte, puis enfin y installer des lucarnes , !
Comme n'importe quelle charpente sur du bâtit, on commence par reporter les cotes sur une vue en plan, qu'il faut dessiner à peu près à l'échelle pour imaginer dans le vrais la physionomie du chantier .
On trace ensuite autant de vues de façades qu'il faut selon les besoins en y intégrant de façon cotés tous les éléments utiles à la construction de la charpente (Lucarnes, pignons, décrochements, ouvertures, etc ...).
Enfin on réalise un plan de coupe pour les niveaux et autres éléments utiles .
Généralement ces opérations se font principalement sur le plan de l architecte, auquel on ajoutes les précisions désirées, tout en vérifiant à mesure l exactitude des cotes sur le plan et sur le chantier simultanément .
Ci dessous : 2 Vue en plan, 2.1 Plan de façade principale, 2.2 Plan de façade arrière, 2.3 Plan de coupe .
3/ Prise de cotes de dés en bétons pour accueillir un hangar agricole.
L'exemple 3 est intéressant car nous n'avons comme seules informations des réservations pour des dés en béton au sol, une photo avec l idée du résultat escompté (symétrique) par le client (fig 1)+ le volume utile d'un tracteur !
(fig 2)!
Empattement (axes roues av/ar) 3,10 m, Largeur hors tout 2,55 m, Longueur hors tout 4,86 m avec rel, Hauteur maximum 3,18 m.
Dans notre cas la prise de cotes sera accompagnée d'une vérification des niveaux, axes et équerrages de dés béton coulés, ainsi que définir le niveau sol fini .
Puis prendre les mesures du tracteur pour qui ce hangar est prévus !
Informations supplémentaires : Le bâtit sera en douglas, bardé sur trois cotés en bois autoclave et couvert en tôle "bacacier" !
4/ Prise de cotes d'une petite maison à restaurer en gite avec charpente hors service.
Ce chantier n°4 est ce que je préférais faire, une restauration à l'identique et traditionnelle avec des matériaux de réemplois !
A savoir l exemple ici est une petite maison en pierres et en lauzes de couverture à reconstruire pour en faire un gîte rural !
Les éléments restants de chevrons "portant ferme" serviront de "gabarits" pour la prise de cotes, avec en plus une mezzanine à créer en fonction des fermes avec un escalier à considérer .
Dans notre cas présent, les murs, les pignons, la cheminée, sont de fait non droits !
La prise de cotes doit se faire à l aide de règles sur les parois pour définir une moyenne des mesures respectables.
Donc sur la vue en plan on note celles ci avec +/- sachant qu il faudra surement caler et aligner en fonction les bois à la pose de la charpente .
L équerrage de la bâtisse est acceptable ! (fig 4)
Pour des plans de façades ainsi que le plan de coupe, la logique de moyennes restent pour prendre les mesures et aplombs .(figs 4.1-4.2)
Il faut aussi prendre en compte que cette charpente doit accueillir du plafond d'isolation tout en restant en partie apparente, ce qui suggère qu'un chevronnage devra être défini en sur épaisseur pour la pose de la volige pour des lauzes.
5/ Prise de cotes d'une Tourelle circulaire (donjon) à couvrir.
Ce chantier n°5 représente un travail hors du commun sur du monument historique .
En bon Franc-comtois j ai pris un ouvrage présent à coté de chez moi, à savoir un petit château d'époque médiéval possédant un donjon circulaire (ex 5)!
Ici le scénario serai que la couverture de ce bâtit doit être refaite en adéquation avec ce qu il devait être au 14 eme siècle et de ce que l on trouve régionalement, avec comme éléments conducteurs une Maquette 3D virtuelle et quelques photos (fig 2-3) .
Le bois équarri en chêne avec un débord de toiture en coyau comportant des trappes de plancher pour tir d'archers .
youtube.com/wa...h?v=d9iXVbOZACY
fr.wikisource....Ie_siècle/Hourd
Ici la prise de cote est très simple, puisque il s'agit de prendre les diamètres en plusieurs points pour d' éventuelles déformations du temps, et de faire un plan de coupe en fonction des demandes de l'architecte des monuments historiques .
La seule "complication" de cotation de cet ouvrage est de placer un chevêtre dans l enrayure pour l'arrivée de l escalier en pierre intérieur (fig 4).
6/ Emplacement d'une charpente de auvent.
Le chantier 6 représente un petit bâtiment industriel, rénové en habitation.
La demande serait un auvent sur la terrasse extérieure à construire avec un design contemporain ou industriel .
Il faut en outre calculer et donner un plan de masse du projet au maçon pour qu il puisse placer et construire des dés de poteaux en briquetage .
Ici la prise de mesures prendra en compte la surface de terrasse à couvrir, ainsi que les éléments d'appareillage du mur de maçonnerie pour définir un équilibre .
En résumé :
Nous pourrions évidemment prendre un infini éventail d'exemples de différents travaux, ceux présents ci dessus nous montrerons un assez large échantillon de base pour comprendre les travaux de charpentes traditionnels à étudier .
Ici nous avons vu à peut près l'ensemble général des questions à ce poser quand on prend les mesures dans un chantier .
Le but final est d'avoir tous les éléments utiles et indispensables à l'étude d une charpente .
Le dessin de charpente dit le trait ou l'art du trait : Chapitre 1
L'art du trait de charpente
Avant de passer à l'étude pratique d'une charpente, il faut maîtriser le dessin spécifique de notre métier !
En effet dès que l'on passe à des travaux complexes, on doit être capable de les coucher virtuellement sur un support (dessins à l'échelle "à la planche et épures au sol ) afin de calculer et pouvoir tracer des "vraies longueurs,vrais angles de coupes et vraies courbes si besoins) incontournables à l'élaboration d'un projet charpentier.
C'est ce l'on nomme chez nous l'art du trait" .
En 2009 l'UNESCO inscrit « la tradition du tracé dans la charpente française » sur la liste représentative du patrimoine culturel immatériel de l'humanité, après que ce savoir-faire a été inscrit à l'Inventaire du patrimoine culturel immatériel en France.
L'art du trait de charpente représente le dessin destiné purement à l'action de faire des tracés pratiques permettant de visualiser et d'exécuter des ouvrages précis.
En effet, dès que l'on sort de la géométrie plane (vue en plan, élévation, et vues de droite-gauche-dessus-dessous), nous passons dans le domaine de géométrie descriptive dans l'espace en trois dimensions !
Depuis une période estimée remontant au 12 eme siècle, le trait de charpenterie fut élaboré par les maîtres et les compagnons charpentiers, qui empruntèrent la stéréotomie (pouvoir dessiner en vue de sa réalisation, un volume en trois dimension et l'art du trait aux tailleurs de pierres).
Le compagnonnage par son aspect itinérant diffusera rapidement cet art qui sera repris par tous les corps d'états , et qui apportera jusqu'à nos jours une multitude de chefs d'œuvres qu'on ne présente plus .
L'art du trait constitue la base de tout métiers réalisant des travaux en volumes (charpentiers, tailleurs de pierres, chaudronniers, menuisiers, etc etc ...).
Il est un ensemble cohérent englobant la géométrie plane, descriptive droite ou courbe, et les calculs arithmétiques et théorèmes pratiques utiles, permettant des tracés de dessins techniques et surtout d'épures de fabrications .
Initiation à l'art du trait de charpente
Le but ici sera de faire découvrir le principe du trait de charpente, et comment cela fonctionne !
Dans la réalité un apprenti charpentier devras s'initier au dessin et art du trait par obligation si il veut apprendre et progresser dans son art, celui ci faisant partie intégrante de n'importe quel métier constructif de bâtis .
La généralité de l'art du trait de charpente comporte quatre catégories principales logiques d'apprentissage miscibles entre elles : La géométrie plane, l'étude de la pyramide, l'étude du cylindre, l'étude du cône, sphère, raccords et pénétrations des volumes ("Le croche") .
Sur ces cinq principes viendront s'appliquer toutes les variantes possibles et imaginables régulières ou irrégulières en fonction des travaux singuliers de chaque charpente complexe .
1/ La géométrie plane :
Beaucoup de monde a de mauvais souvenir de cela à l'école, en ce demandant chaque fois à quoi cela peu bien nous servir plus tard!
Un charpentier, menuisier, couvreur, maçon, chaudronnier, etc , vivent et dorment avec !
En charpente la géométrie plane comporte la connaissance appliquée des parallélogrammes, du cercle, du triangle, des polygones, et de toutes les formules mathématiques, théorèmes et élévation volumiques droites utiles qui leurs sont appliqués pour la réalisation de dessins techniques et de tracés. (fig 1)
2/ L'étude de la pyramide :
C'est la base de la charpente, une toiture autre que deux pans est souvent composée d'un volume pyramidale depuis un plan polygonal , c'est ce que l'on nomme de l'arêtier et/ou de la noue .(fig 2)
Un apprenti charpentier doit maîtriser au CAP le "pavillon carré" ou "Le trait carré", autrement dit une charpente en 4 pans de base et de tous ses dérivés irréguliers en bois droits tracés avec assemblages et montages, ainsi que l'escalier en rait droit en plan .(voir
Quand le trait droit est maîtrisé, on passe au bois droits en plan mais cintrés en élévation (ou dômes de pyramides), ce qui ne change pas le principe sauf qu'il faut plus de points pour développer les courbes de noues et d'arêtiers cintrés .
3/ L'étude du cylindre :
Le principe est surtout étudié par les charpentiers dans la fabrication des escaliers en courbes, ce que l'on nomme le "débillardé", ainsi que pour toutes portions cylindriques présentes en toiture (toiture demi cylindre, en arc, pénétrations de lucarnes, tourelle circulaire à toiture plane, etc ..).(fig 3)
Les tracés de débillardements et de développements de cylindre, sont le passage obligé pour acquérir les automatismes de dessins par construction dans l'espace pour passer au tracé "croche" (Pénétrations, raccords).
Pour ceux qui voudraient s'exercer !
lairdubois.fr/...e-aux-escaliers
4/ L'étude du cône, volumes sphériques, raccords et pénétrations de volumes :
Le cône et volumes sphériques, raccords et pénétrations des volumes et leurs dérivés constituent la maîtrise ultime de l"art du trait de charpente", c'est ce que l'on nomme le "croche" autrement dit la capacité de tracer dans l'espace de façon géométrale par points la stéréotomie de pièces cintrées en plan et en élévation, afin de pouvoir les coter,les tracer, les tailler, les développer (lamellé collé) et enfin les monter .
On imagine aisément les pannes d'une charpente conique sur une tour ronde, des dômes à plans elliptiques et clocher sophistiqués de monuments .(fig 4-5-6).
Bel exemple ici
Ci dessous quelques exemples des différents principes appliqués en charpenterie traditionnelle !
Explication pratique de l'art du trait (1/ La pyramide à base carrée)
Dans nos métiers du bois quand on est face à des volumes pyramidaux dans les travaux, on nomme généralement "faire de l’arêtier" autrement dit on travaille sur des arêtes.
En charpente c'est évident par la forme des toitures, en menuiserie ou en ébénisterie dans des ouvrages plus singulier (ex :pétrin de boulanger, coffre, mobilier, etc .)
Le but de l’arêtier, est d'apprendre à développer les mesures en vraies grandeurs des différentes faces d'une toiture ainsi que ses angles inconnus en géométrie plane sur épures , pour tracer et exécuter les bois nécessaires inscrits à la construction d'une charpente .
Le principe est assez simple, il est de rabattre à l'équerre des points d'une vue sur des points d’alignement d'une autre vue pour obtenir des intersections qui une fois reliées permettent de tracer troisième non traçable en géométrie plane car avec des mesures et angles non connus.
C'est ce que l'on nomme:
1/ Tracé par "rembarrement" , les différentes coupes sont trouvées sur la vue en plan en y traçant les épaisseurs des bois puis les points rembarrés (exportés) en élévation.
2/ Tracé par "la herse", méthode qui consiste à développer les pièces de bois en plan dans un ensemble en vraie grandeur , afin de d'avoir les angles coupes et longueurs très précises.
3/ Tracé à la "sauterelle", les coupes déterminées en croisant les différents plans que forment les faces des bois sur l’épure et en reportant les angles à la fausse équerre sur les pièces de bois .
Ce premier apprentissage du trait de charpente basique de la pyramide est primordial pour la compréhension des volumes dans l'espace, et servira plus tard à évoluer vers la courbe dans l'espace ("croche")
1/ La pyramide en charpente :
Dès l’apprentissage on nomme généralement les éléments géométriques directement avec le vocabulaire professionnel pour aider à la vision dans l'espace des explications aux "lapins" .(fig 1)
La base de pyramide deviens vue en plan et son périmètre lattis de sablière et/ou encore ligne de trave dans le dessin (Le lattis correspondant toujours à la partie supérieure des chevrons avant les lattes ou voliges depuis le point de faîtage des chevrons au repos de sablière).
La hauteur reste la hauteur !
L'apex ou sommet deviens sommet et/ou point de tète.
Les faces deviennent des versants.
Les arêtes deviennent des arêtiers.
L’apothème deviens le chevron d'emprunt .
Le triangle des apothèmes (chevrons d'emprunts) et de la hauteur deviens élévation principale en vue de face de la pyramide.
Le triangle des arêtes (arêtiers) et de la hauteur deviens élévation de la face d’arêtier.
Une seule règle à respecter lorsqu'on veut faire la herse d’un versant de charpente, on n’utilise que le lattis de sablière et le chevron d’emprunt. Il faut éviter utiliser d’autres éléments !
Les arêtiers, noues, sablières de pente ou faîtages de pente qui ne doivent servir qu’à la vérification de la herse (on doit toujours retrouver les mesures identiques) !
2/ La vue en plan et l'élévation des triangles de la pyramide :
Ici c'est la géométrie plane qui nous l'apporte !
Par des fuyantes perpendiculaires depuis les points de chevrons d’emprunts et d'arêtiers situés sur la vue en plan et en traçant la hauteur perpendiculairement à l'axe des lattis de sablières, on obtient toutes les vues en élévation des triangles de la pyramide .
Les constructions de triangles depuis les points d’arêtiers au lattis de la vue en plan et de la hauteur nous donnent déjà la vraie longueur des arêtes de la pyramide ainsi que les vrais angles (coupe de niveau au pied et coupe d'aplomb au sommet), c'est le "rembarrement" (fig 2)
3/ Tracé de la herse :
Le tracé de herse est incontournable en charpente, il permettra de mettre "en plan" et "en vraie grandeur" le versant complet d'un éléments de toiture pyramidal, donnant les vraies longueurs, les tracés précis, les angles de coupes de tout bois de charpente le constituant .
On explique aux lapins (apprentis charpentiers) que c'est comme si on appuie au sommet de la pyramide pour l'écraser que va t'il se passer ?
La règle est de se servir uniquement des mesures prises au compas du lattis de sablière et du chevron d'emprunt !
Tous les autres éléments trouvés dans la géométrie plane ne servirons qu'à vérifier les concordances de mesures .
A/ Nous traçons un segment de droite à la mesure du lattis de sablière .
B/ Au compas, nous élevons une perpendiculaire au centre du segment égale à la longueur du chevron d'emprunt .
C/ Nous traçons les arêtes par des droites depuis les points extrêmes du segment lattis de sablière jusqu'au sommet du chevron d'emprunt, ce qui nous donne le triangle de face de la pyramide en vraie grandeur et angles.
D/ Au compas nous traçons un arc de cercle depuis le sommet et passant par les points de segment du lattis, puis
avec un écartement de compas nous traçons sur cet arc des segments de cercles égaux à la longueur du lattis de sablière ,puis nous relions ces points par des droites en cordes .
E/ Nous traçons depuis le centre toutes les autres arêtes et perpendiculairement à toutes les cordes depuis le point de centre, puis nous traçons tous les chevrons d'emprunts en vraie grandeur .
en résumé, grâce au tracé de la herse, nous obtenons la face de pyramide (ou versant toiture au lattis) en vraie grandeur avec ses mesures et angles de coupes!
Si nous effectuons cette construction sur une feuille de papier, en la découpant puis en pliant les traits d'arêtes, nous obtenons le volume de pyramide physique .(fig 3)
4/ Recherche de l'angle dièdre sur la pyramide ou angle de corroyage :
En charpente, dans un volume pyramidal, un élément des plus important est l'angle dièdre de deux faces de pyramide depuis l’arête !
En effet celui ci correspond à l'angle de corroyage du délardement vu par bout, saillant faisant lattis avec les versants .
Le principe du tracé de cet angles est très simple sur des pyramide à plan carré, car sur des bois droits ils seront constants et symétriques d'un versant à l'autre !
Les délardements sur des arêtiers cintrés subiront des déformations suivant la courbe développée du cintrage d"origine .(nous approfondirons les tracés dans un prochain chapitre sur les délardements plus complexes ), c'est ce qu'il faut maîtriser à la base avant de passer à des exercices plus compliqués !
A/ Depuis la vue en plan et l'élévation principale, nous développons le triangle d’arête en vraie grandeur de la pyramide .
B/ Sur le développement, nous traçons la hauteur du triangle .
C/ au compas nous rabattons cette hauteur sur la ligne de trave, puis nous projetons le point par une génératrice sur l’arête vue en plan .
D/ en traçant deux droites depuis le point sur l’arête vu en plan jusqu'aux angles de la pyramide, nous obtenons l'angle de corroyage et la vue par bout de l'angle dièdre .(fig 4)
5/ Les tracés pyramidaux atypiques :
A partir du moment ou l'on passe à des volumes pyramidaux à plans quelconques ou polygonaux, le principe reste le même, sauf qu il faut développer plusieurs vues dans certains cas pour avoir tous les chevrons d'emprunts différents, de plus les délardements seront différents d"une face à l'autre .
Dès que l’apprenti charpentier maîtrise parfaitement la pyramide à plan carré, il peut aller vers des plans polygonaux plus complexes !
ci dessous quelques exemples (fig 5)
Exemple de premier exercice pratique du trait appliqué en charpente
Application pratique d'exercice d'apprentissage en charpente (Rembarrement et herse)
Ici nous passons à la pratique professionnelle, c'est à dire que la pyramide de base sera constituée de pièces de bois calibrées ajoutées.
1/ Tracé de la vue en plan et de l'élévation :
A/ Nous traçons en premier lieu la vue en plan de l'ensemble par un carré déterminant le lattis de sablière, et nous y traçons deux diagonales bissectrices en croix passant par le centre jusqu'aux angles du carré, ainsi que deux perpendiculaires en croix passant par le centre .
(Les deux diagonales et perpendiculaires représentent déjà les arêtes de pyramides et les perpendiculaires les axes des chevrons d'emprunt vus en plan).
B/ Sur cette construction, nous ajoutons les épaisseurs des bois, puis nous traçons enfin les empannons depuis axes de chaque espace entre les arêtiers et chevrons d'emprunt .
C/ En prolongement et perpendiculairement nous traçons le lattis triangulaire de l'élévation égal au lattis de sablière et de la hauteur désirée .
D/ A l'aide de fuyantes,nous traçons des génératrices depuis chaque point de la vue en plan vers l'élévation et nous y matérialisons les bois déjà vus (rembarrement) .
Ce premier tracé nous donne sur l'élévation la mesure vraie du lattis de chevron d'emprunt ainsi que ces angles de coupes aplomb et de niveau, ainsi que la retombée du délardement arêtier .
2/ Tracé de la construction d'élévation du triangle d’arêtier :
Ici commence la géométrie descriptive, car en effet le dessin seul ci dessus ne permet pas de construire la structure, et quelqu'un qui désirai fabriquer un ouvrage de logique pyramidal sans avoir appris à développer par le trait, il se retrouverai très vite en difficulté .
Meme si les technologies numériques permettent actuellement d'arriver à calculer et dessiner tout ceci de façons globales, elles ne remplaceront jamais complètement la pratique traditionnelle acquise par maîtrise indispensable à tout "homme de l'art" surtout quand une épure mesure plusieurs mètres au sol .
A/ Depuis l'élévation, nous traçons la ligne de trave par une fuyante .
B/ Depuis la vue en plan, nous traçons perpendiculairement deux fuyantes génératrices depuis les angles d' une des diagonales et l'axe du chevron d'emprunt, l'une recoupant la ligne de trave de l'élévation .
Puis à cette intersection nous traçons la ligne de trave parallèle à la diagonale vue en plan.
Le point d'intersection obtenu sera le point de rabattement des autres points utiles .
C/ Au point de rabattement nous élevons une perpendiculaire sur laquelle nous projetons la hauteur de la structure pyramidale d'élévation, puis au compas nous rabattons cette hauteur sur la génératrice d'angle.
D/ Nous exportons ce point par une fuyante entrecoupant la fuyante d'axe du chevron d'emprunt, et depuis l'intersection ainsi trouvée et le segment de la ligne de trave ,nous traçons les arêtes ici en vraies grandeurs des arêtiers . (fig 2)
E/ Du même procédé , nous exportons tous les points utiles à la construction depuis la vue en plan et l'élévation (Rembarrement) (fig 2 bis).
3/ Tracés des retombées et de la vue géométrale
Maintenant que nous possédons toute la construction pratique du triangle élevé d’arêtiers, nous allons pouvoir par tracés successifs déterminer géométralement notre ouvrage complet, afin d'avoir tous les points nécessaires à la future "herse" finale de traçage des bois .
A/ La première étape consiste à tracer sur l'élévation principale en vue de face l'empreinte de la coupe d'un chevron droit sur l’arêtier pour déterminer sa retombée (bois nécessaire en largeur pour l'instant inconnue).
En projetant les points de coupes d'un empannon depuis la vue en plan sur l'élévation, et en y traçant sa largeur connue (ex chevrons de 6/8 cm) on détermine 4 points qui en les reliant nous donnent l'empreinte de coupe sur l’arêtier.
B/ Sur l'élévation d’arêtiers, nous traçons le délardement et les points de coupes de l'empannon par génératrices depuis la vue en plan.
C/ Nous exportons par le point de rabattement les points d'empreinte de coupe de l'empannon sur l'élévation du triangle d’arêtier, et aux intersections nous la matérialisons .
Puis en traçant une parallèle à l’arête sous cette empreinte, on obtient la retombée d’arêtier utile.
En résumé à ce moment, nous avons les cotes, coupe aplomb, coupe de niveau et le profil complet de l’arêtier en vraie grandeur ainsi que la mesure de retombée utile des coupes plus la retombée du délardement depuis l’arête pour le tracé pratique sur le bois .(fig 1)
D/ A l'aide de cette construction, nous pouvons tracer sur la vue en plan les empreintes de coupes de niveau de l’arêtier et des chevrons droits.
En projetant le second arêtier depuis la vue en plan sur l'élévation d’arêtier, nous obtenons les tracés de coupes au sommet (fig 2)
E/ En exportant tout les autres points depuis la vue en plan et élévation principale, nous pouvons tracer la vue géométrale complète de l'ouvrage sur l'élévation d’arêtier ! (fig 3)
4/ tracé de la herse :
Avec les constructions ci dessus nous pouvons construire l'exercice sans problème en "piquant" les points d'angles depuis l’épure (à la sauterelle) , mais pour des travaux plus complexes il faut connaitre le principe de la herse pour avoir en un seul tracé toutes les mesures et coupes des bois présente sur un versant.
Sur l'exercice ci dessous , nous ne faisons qu'appliquer ce qui est déjà théorisé plus haut sur le pyramide.
Nota : Ici j'ai tracé la herse complète depuis les points de l'élévation de triangle d’arêtiers, mais on peut très bien la tracer depuis la vue en plan ou l'élévation, le tout est d'avoir des changements de plans pratiques et courts pour exporter les génératrices de façon claire et précise !
Quand une charpente comporte 4 versants identiques, évidemment nous ne traçons dans la réalité qu'une herse !
fig 1/ Depuis la vue en plan ou sur l'élévation, c'est ce qu il y à de plus rapide et précis, car on bénéficie directement du tracé d'origine de tous les éléments au lattis de sablière pour développer la herse ! De plus il faut penser qu'une épure à l'échelle 1 prend beaucoup de place au sol, donc les rabattements de herse se produisent généralement sur l'épure ou contre celle ci
Dans les deux cas , il suffit de redresser au compas perpendiculairement à la ligne de trave, la longueur du chevron d'emprunt et d'exporter ensuite cette hauteur de la construction en axe avec le lattis de sablière puis de tracer les arêtes.
Enfin sur ce triangle , on importe par alignement tous les éléments utiles depuis la vue en plan (Délardements, chevrons, pannes, poinçon, etc ).
Les intersections de la construction donnent les vraies longueurs et vrais angles de coupes, des chevrons et/ou de pannes (en liernes assemblées contre les arêtiers ou dessus selon les besoins) .
Fig 2-3/ Ici j'ai développé la herse complète depuis l'élévation du triangle d’arêtiers, au compas j'ai tracé un arc de cercle depuis le sommet à la vraie longueur d’arête, puis au compas j'ai tracé des segments de cercle égaux au lattis de sablière .
J'ai ensuite par rabattements exportés les points utiles depuis le lattis de sablière vu en plan sur le développement et tracé au compas les arrivées arrivées de coupes sur la construction.
Enfin perpendiculairement au lattis depuis les points d'intersections j'ai tracé les bois sur la herse complète .
Fig 4/ Pour résumer, sur l'épure, j'ai placé une vue de l'exercice en 3D pour visualiser le principe qui reflète bien la logique pyramidale de l'ensemble .
5/ Le tracé de délardement et angle de corroyage :
Le tracé d’exécution incontournable sur une épure de charpente en arêtier, est le tracé de délardements et angles de corroyage !
Deux solutions principales existent en art du trait :
A/ Comme vu précédemment dans la pyramide en rabattant la hauteur du triangle (fig 1)
B/ Apres avoir tracés les retombées, perpendiculairement à l’arêtier développé, il suffit de tracer son épaisseur et son axe perpendiculairement à la construction, et de rejoindre les points, on obtient la "vue par bout" et l' angle de corroyage a relever à la sauterelle (fausse équerre) . (fig 2)
Dès que l'on comprend le principe, on peut ajouter des bois (poinçon, ferme, sablières , pannes ,etc) ce qui ajoute évidemment de multiples traits supplémentaires (art du trait) !
Ici quelques exercices pratiques.
Application du trait carré en charpente réelle (épure pratique)
Sortis des exercices d"études et d"apprentissage, on doit appliquer concrètement les enseignements pour construire des charpentes !
Ci dessous j'ai donc crée un exemple concret de charpente avec ce qu'un professionnel tracerai pour son étude et épure en vue de sa fabrication en situation réelle .
A savoir une charpente d'un pavillon carré, c'est à dire que les arêtier en plan sont placés à 45° et que les versants de toitures sont de pentes identiques .
Nota :Quand les croupes sont redressées par rapport aux long pans, on nomme charpente en "deux étaux".
fig 1/ Tracé du lattis :
Sur L"étude, un charpentier tracera en premier lieu les contours complet de sa charpente finie au lattis, c'est à dire tous son ouvrage global vu depuis le dessus des chevrons !
Ces vues sont déterminées par le plan de maçonnerie accueillant l'ouvrage (vue en plan) ainsi que par une ou plusieurs élévations suivant les besoins en fonction des angles de pentes désirées de toitures (vue de face et vues de cotés).
On trace aussi à cette étape l'épaisseur de l'arase du mur recevant la charpente .
Ce plan dégrossi peut être demandé parfois par le couvreur en cas de coupes spécifiques de tuilages, ardoises, voligeages , etc pour que lui aussi puisse réaliser ses épures car en effet lui travaillera à partir du lattis fiable et défini !
A l'atelier, le charpentier ne tracera que la moité utile en épure depuis l'axe de l'ensemble, les vues étant symétriques dans notre cas.
Sur des plans irréguliers il faut plus de vues.
fig 2/ Tracé des fermes droites :
Dans notre exemple, on aura des fermes droites, on en trace qu'une (l'autre étant identique) .
A/ Sur l'ébauche d'élévation, on commence par tracer les largeurs de chevrons (qui seront les chevrons d'emprunt) sous le lattis .
B/ Sous les largeurs de chevrons, nous traçons les largeurs de pannes (ici en devers), ce qui nous donne le dessus des arbalétriers.
C/ Nous traçons les largeurs des arbalétriers et l'entrait .
D/ Nous traçons depuis l'axe de la ferme le poinçon, et nous y traçons la panne faîtière vue par bout avec ses délardements.
E/ Nous traçons la panne sablière vue par bout et son délardement, puis nous divisons la mesure entre le délardement de faîtière et de sablière pour déterminer les axes de pannes intermédiaires, et enfin nous traçons les vues par bout de celles ci avec leurs échantignoles .
f/ Nous traçons le faux entrait et les aisseliers (Parfois le débord du faux entrait (moisé) peut servir de repos aux pannes intermédiaires) .
fig 3/ Tracé des chevrons et des arêtiers sur la vue en plan :
Un charpentier ne tracera sur la vue en plan que les chevrons et empannons nécessaires à la taille de la charpente, , dans des cas plus simples les tracé de divisions se pratiquent directement sur le chantier après la pose de la sablière.
A/ Nous traçons en premier lieu le poinçon vu par bout, puis les épaisseurs d’arêtiers de part et d'autre des arêtes (dans des charpente en deux étaux,il sera décalé depuis l’arête à cause des délardements différent nous y reviendrons plus tard) .
Nous traçons aussi l’épaisseur de la panne faîtière et l’épaisseur des arbalétriers.
B/ Nous divisons et traçons le chevronnage sur le long pan et sur la croupe! (attention les empannons ne se rejoignent pas nécessairement sur l’arête vue en plan suivant la division, par contre généralement on essaye de tricher pour que ce soit le cas pour une seule herse (seulement possible en pavillon carré) en re-divisant les chevrons entre les fermes droites .
fig 4/ Tracé des pannes :
Ici rien de très compliqué, il suffit d'aligner les pannes vues par bout de l'élévation de la ferme sur la vue en plan !
Le principe donnera déjà les longueur de pannes, et cette dernière construction permet de passer aux développement d’arêtiers.
fig 5-6/ Mise en place du développement en élévation de la ferme d’arêtier :
Ici commence le trait proprement dit, nous allons exporter des points de coordonnées à l'aide de fuyantes génératrices depuis la géométrie plane (vue en plan et élévation par rabattement de vues) , vers des points non connus "dans l'espace" .
En L’état les derniers tracés ne donnent pas tous les points nécessaires, en effet il faut élever l’arêtier en vue de face, afin de déterminer le chevron d'emprunt et les empreintes de pannes à exporter sur le développement futur.
A/ Nous traçons déjà le lattis de l'élévation de l’arêtier en vue de face verticalement depuis la vue en plan ce qui nous donne la mesure du chevron d'emprunt et la ligne de trave ,ainsi que l'angle de coupe d'aplomb des chevrons empannons .
B/ Perpendiculairement à l’arêtier vue en plan, nous exportons deux fuyantes des extrémités de celui ci vers la ligne de trave .
C/ Au point d'intersection se trouve le point de rabattement, et au compas nous rabattons la hauteur depuis l 'élévation vers la génératrice d’arêtier.
Ce nouveau point d'intersection relié par diagonale avec le précédant donne l arête du lattis de l’arêtier en vraie grandeur ,ainsi que les vrais angles de niveau et d'aplomb !
D/ Sur l’élévation en vue de face, nous traçons l’épaisseur du chevron d'emprunt, nous y importons dessous par points les coupes de pannes sur l"arêtier depuis la vue en plan , ce qui nous donnera le devers des pannes vues par bout .
Nous les matérialisons pour bien identifier les points à exporter .
A cette étape nous possédons toutes les informations pour pouvoir tracer l'épure de ferme d’arêtier.
fig 1-2-3/ Tracé de délardement, des empreintes de pannes et de la retombée d'arêtier :
Ici on trace l'épure de la demi ferme d’arêtier, le principe est toujours pareil par rapport à une ferme droite !
A savoir que l'on commence depuis le lattis (qui correspond dans ce cas à l’arête) .
A/ Sur la vue en plan, nous traçons les moises entaillées d'entrait et de faux entrait, droits et d’arêtier de l'arase de mur jusqu'au poinçon
B/ Depuis la vue en plan, nous exportons par génératrices les points de délardement sur la ligne de trave du développement, puis par une parallèle à l’arête nous le traçons et matérialisons .
C/ Depuis la vue en plan et l'élévation de face, nous exportons par génératrices les empreintes de pannes en liernes (assemblée contre l’arbalétrier d'arêtier) sur l’arêtier, puis nous traçons et matérialisons les empreintes .
A cette étape, nous avons tous les élément pour positionner les bois et tracer l'épure de la demi ferme d’arêtier .
Nota : sur la figure 2 , j'ai entre-temps tracé l'épure de l'assemblage du double faîtage avec sa croix de st André ( traditionnel) entre les deux poinçons de la charpente finale .
fig 1-2-3/ Tracé finale de la demi ferme d’arêtier et de la herse :
A/ Le dessus des empreintes de pannes dernièrement tracées, nous donnent la retombée du chevron d’arêtier sous le trait de délardement, ainsi que la retombée de l’arbalétrier d’arêtier .
Parallèlement à l'arête, en fonction des empreintes nous les traçons et matérialisons .
B/ Nous traçons de façon classique les autres éléments de la demi ferme ( poinçon, entrait, faux-entrait, aisselier) , mais en fonction de leurs points d'assemblement au poinçon tracés sur la vue en plan .
C/ Sur l'axe du faîtage vu en plan, nous rabattons au compas la longueur du chevron d'emprunt depuis la face de l'élévation .
D/ Depuis l'angle d’arête et le point au faîtage précédemment déterminé sur la vue en plan , nous traçons la vraie longueur de la herse, et pour vérifier le tracé, nous comparons avec la longueur d’arête du développement (elles doivent être identiques ,sinon il y a erreur ).
E/ En traçant le délardement, puis les empannons en faisant filer les traits, nous obtenons la herse complète et utile !
Donc toutes les longueurs de chevron empannons et l'angle de leurs coupes en épaisseur vraies.
En résumé, nous devinons bien ici que la charpente est un métier qui ne s'improvise pas, et qu'il faut commencer par le tracé de pyramide pour comprendre les principes et application dans l'art du trait, qui est souvent un mystère pour le lambda !
J'insiste sur le fait d’être curieux et d'essayer de s'amuser à tracer (et si possible de les construire) différentes combinaisons d'exercices et de les maîtriser avant de passer au cintres et courbes .
Pyramide cintrée en élévation (dôme de pyramide)
Le cintre en élévation , est très intéressant à pratiquer, car assez facile à mettre en pratique après avoir maîtrisé le trait droit !
En effet il aidera à la compréhension des méthodes de tracés de courbes plus complexes à venir dans cylindre, le cône, et autre tracé contenant du "croche" (cintré en plan et élévation) .
Le dôme de pyramide à plan carré représente l'exercice parfait pour s'engager totalement dans l'art du trait !
Ci dessous la présentation est faite à partir de la pyramide basique au début de se chapitre sur laquelle j'ai ajouter un profil à l'impériale, mais nous pouvons aussi nous entraîner avec tous les profils cintrés concaves ou convexes désirés !
Tracé théorique du dôme de pyramide ou pyramide cintrée :
A/ Le premier tracé est la vue en plan carré de la pyramide avec ses deux diagonales.
B/ Nous dessinons ensuite l’élévation de pyramide droite en fonction de la hauteur désirée .
C/ Nous traçons par construction le profil de cintre désiré sur cette élévation .
D/ Nous divisons la hauteur en parties égales. (fig 1)
(il faut "doser" les divisions car pas assez, la courbe développée risque d’être imprécise, et trop de divisions représentent beaucoup trop de traits donc risques d"erreurs et de confusions ).
E/ Exactement comme pour une pyramide droite, nous exportons par des génératrices tous les points nécessaires sur le développement en élévation de l'arêtier .
Toutes les divisons sont à exporter sur la vue en plan ,pour être rabattue ensuite sur le développement.
F/ Aux intersections des génératrices sur le développement qui donnent les points de la courbe , nous traçons avec une "cerce" l’arête d’arêtier cintré .
Tracé de pyramide cintrée appliquée en charpente :
Généralement, c'est ici que les novices attrapent le virus, et la page se tourne sur un art infini à découvrir !
A/ En reprenant l"exercice ci dessus , on y transpose les position et les épaisseurs de bois en plan .(fig 1)
B/ La construction de base est identiques pour tracer la hauteur et la ligne de trave .(fig 2)
C/ En exportant les divisions, nous traçons la courbe développée de l’arêtier .(fig 3)
D/ C'est maintenant qu'il faut être concentré, il faut en premier lieu exporter sur l’élévation de face les Empreintes de coupes des empannons et du chevrons d'emprunt cintrés .
Cette étape nous donne déjà le profil et les coupes d'aplomb en vraie grandeur de ceux ci .
E/ Depuis tous les points générateurs de l’arête courbe du développement de l’arêtier, nous traçons des petites lignes de niveaux toutes égales à la largeur des génératrices de délardement venant de la vue en plan sur la ligne de trave du développement .
A la cerce, nous relions ces points et nous obtenons la retombée de délardement en vraie grandeur et vraie déformations dues au cintre d'origine, puis nous le matérialisons .
Cette étape nous donne l'arrivée supérieures des empreintes de coupes des empannons et chevron d'emprunt cintrés .
f/ A l'aide de génératrices depuis la vue en plan et d"élévation, nous exportons et traçons les autres points de coupes sur le développement,nous les matérialisons et obtenons ainsi les points de retombée courbe de l’arêtier fini .
G/ pour parfaire le tracé développé, nous traçons les coupes de tète de l’arêtier .(fig 4)
Nota : Le tracé en herse dès que l'on sort des bois droits, n'est pas possible, en effet les coupes seraient fausses par la non constance due au cintre d'élévation !
Pour Résumé tout ce chapitre avant de passer aux éléments de charpente en courbe (prochain chapitre) , amusez vous c'est le secret !
Les dessins sur sketchup sont très pratiques pour travailler et étudier le trait , il ne faut pas s'en priver, et ensuite passer "à la planche" pour y tracer des épures pratiques d'exercices à construire concrètement .
Un très bel exemple ici :
Le dessin de charpente dit le trait ou l'art du trait : Chapitre 2
Explication pratique de l'art du trait (2/ Le cylindre)
Le cylindre en charpente :
C'est un solide intéressant à maîtriser dans le métier, notamment comme je l'ai indiqué plus haut dans le domaine de l'escalier (voir traité).
Le champs des applications à été aussi utilisé dans des ouvrages plus charpentiers anciennement (moulin à vent, tourelle à toiture plate, pigeonnier, silo, ect ).
De nos jours avec les logiciels informatiques, les architectes designers réintègrent beaucoup les courbures, de plus associés avec des entreprises spécialisées (lamellé collé surtout), nanties de machines commandées numériquement il n'y a plus de limites pour des ouvrages spécifiques.
Toutefois le tracé d’exécution ancien par l'art du trait et des épures est largement délaissé hélas, et il serai judicieux que les apprentissages soient maîtrisés d'abord à l'ancienne avant de passer à l’informatique, au moins les techniques de bases !
L'apprentissage de l'art du trait de charpente traditionnelle appliqué au cylindre, conduit à y étudier le bases de la courbe dans l'espace aisément !
En effet les faces visibles sont principalement dans une logique d'aplomb et permettent ainsi de commencer à faire du développement de surfaces courbes incontournables dans les projets en courbes lamellés collés par exemple (techniques de développement de pliages de tôles ,chaudronnerie, métallerie, carrosserie, etc à la base appliqué en charpente ).
Présentation du cylindre régulier dans l'art du trait :
Il sera constitué : (fig 1):
1/ D'une base circulaire que nous appelons en art du trait la vue en plan. C'est un cercle à 360° qui constituera le périmètre extérieur de tous éléments physiques de travaux inscrits dans sa masse ou contre sa surface d'élévation à développer pour un tracé et une exécution pratique de pièces non connues par la géométrie plane .
2/ D'une élévation géométrale afin de représenter sa vue de face .Les contours serons représentés par un rectangle égal au diamètre du cercle et/ou de la portion de cercle d'un secteur circulaire en plan et de la hauteur définie du projet inscrit dans le cylindre.
Des éléments connus depuis la vue en plan pourront être exportés en élévation à condition qu'ils soient d'aplombs et de niveaux !
Les autres éléments biais, en coupes, en pénétration, rampants, ect , eux ne sont pas connus et devront être développés pour pouvoir être tracés géométralement sur cette élévation .
3/ D'un développement qui à l’image d'une feuille de papier rectangulaire sera étalée à plat aux mesures de la hauteur du cylindre et du périmètre du cercle, qui pourrait être ensuite "roulée" sur le périmètre vu en plan .
Sur cette surface développée en vraie grandeur, nous allons pouvoir tracer les éléments à plat et développés ou en vraies grandeurs suivant le type de travaux, afin de déterminer tous les points de coordonnées non connus exportables sur l'élévation .
Pour calculer la longueur du périmètre complet du cercle à développer il suffit d’appliquer le formule PY x Diamètre du cercle. Ex: PY 3.14 x Diamètre 1 mètre = périmètre du cercle 3,14 mètres .
Le secteur circulaire :
Un secteur circulaire, est placé inscrit sur la vue en plan d'un cylindre entier dont il représente une petite portion .
Il reprend toutes les propriétés d'un cylindre entier , sauf qu'il faut savoir calculer cette petite portion pour avoir les mesures précises de celle ci pour le développement .(fig 2)
Pour calculer l'arc de cercle d'un secteur circulaire, on applique alors (PY x Diamètre x angle du secteur) / 360°.
Ex: (PY 3.14 X Diamètre 1 mètre X angle de secteur circulaire 30°) : 360° = Longueur de l'arc cercle 0.2616 mètres (ex en bleu de la fig 2).
(PY 3.14 X Diamètre 1 mètre X angle de secteur circulaire 105°) : 360° = Longueur de l'arc cercle 0,915 mètres (ex en fuchsia de la fig 2).
Important : Cette technique est incontournable dans le cas de développement sur feuilles de papier ou dans la réalité pour des pièces en lamellées collées car elle permet de travailler sur la vraie mesure du périmètre à replier !
Technique de développement par les collets ou cordes :
En charpente et en escaliers, quand ne nous sommes pas dans du lamellé collé mais dans de la taille en plein bois massif, nous construisons les développement par les collets !
Le principe simplifie les constructions en prenant au compas les collets ou cordes des arcs de cercles de divisions.
La longueur du périmètre est un peu raccourcie mais permet de tracer les développés de courbes assez précisément pour avoir des hauteurs ou altitudes et autres mesures à déterminer et re-exporter vers les autres vues .
La fig 3 nous montre bien cette petite différence, logiquement si nous faisions du développé pour lamellé collé avec les collets, la feuille de papier roulée sur le périmètre du cylindre serait trop courte dans ce cas .
.
Nota : En avant propos, je donne des dessins explicatifs sans chiffre, ni lettre, ni couleur (trop fastidieux avec le logiciel sketchup)!
Il faut bien sur utiliser activement chiffres, lettres, et traits de couleurs différents dans des constructions de ce genre pour éviter des erreurs et confusions fréquentes !**
Différentes techniques de développements cylindriques utiles en charpente
Ci dessous nous allons découvrir les techniques de base d'art du trait applicables au cylindre .
En charpente il faut d'abord maîtriser ces principes de bases avant d'y ajouter des épaisseurs et largeurs de bois d"oeuvre, en effet la multitude de "traits" à effectuer pour les construction compliquent très vite les dessins et épures et il faut être vraiment concentré et ordonné pour un bon résultat (Etre au calme et débrancher absolument son smart phone ! rires) .
fig 1/ Le tracé et développement cylindrique débillardé :
Le tracé débillardé dans le cylindre trouve surtout sa place dans les escaliers circulaire en plan !(voir lairdubois.fr/...e-aux-escaliers) .
Le principe est simple, c'est de faire suivre une droite rampante en développement autour d'un solide cylindrique appelée alors une sinusoïde . (Quand on "roule" la feuille de papier avec la droite rampante tracée sur le développement à plat autour du périmètre circulaire de la vue en plan , on obtient la sinusoïde sur le cylindre) , (Application pratique fig 1 bis) .
La technique est de diviser le cercle ou l'arc de cercle de secteur vu en plan en parties égales rayonnantes, et de placer autant de divisions sur la hauteur totale de l'élévation et du développement .
Il faut ensuite calculer la longueur de l'arc ou le périmètre du cercle de la vue en plan, pour le tracer mesuré droit sur le développement avant de le diviser à son tour en autant de divisions .
Enfin par des génératrices, nous exportons tous les points utiles vers les diverses vues, ou les intersections de ces lignes horizontales et des divisions verticales donnent les coordonnées de hauteurs de points utiles .
En reliant ces points avec une cerce ou un pistolet (outils pour tracer courbes non réguliers), nous obtenons les courbures et points jusque là inconnus .
fig 2-3/ Le tracé et développement cylindrique tronqué et la herse :
On peut trouver cette technique en charpente dans le cas de tourelles monumentales dans certaines régions de France, qui ont la particularité d'être tronquées pour y installer une toiture plates biaises (fig 3 bis) .
Dans ce cas, il faut développer une herse pour avoir des longueurs et coupes utiles à la construction .
Le principe est encore du issu du débillardé , mais dans une position non rampante sur le développement à plat, en effet sur celui ci on y découvrira une courbe irrégulière qui pourrait être le profil de pièces à chantourner pour du lamellé collé ! (Quand on "roule" la feuille de papier découpée au développement de courbe sur le périmètre circulaire vu en plan , on obtient le tronc biais de surface plane du cylindre ).
La technique consiste ici aussi de diviser en parties égales le périmètre de la vue en plan ainsi que ce périmètre sur le développement .
Par contre les hauteurs serons données par les points de divisions de la vue en plan , puis exportés par génératrices sur l'élévation et rabattus depuis l'intersection de celles ci avec la pente du tronc de cylindre vers le développement .
Enfin les intersections de génératrices donnent les points sur le développement qui seront sont reliés à la cerce ou pistolet pour donner le développement de courbe .
Avec les mêmes génératrices, on peut aussi tracer la vue de droite ou de gauche de la coupe qui sera cette fois vue de face (elliptique) (voir sur fig 3) .
La seconde technique est le tracé de herse à plat de la coupe du tronc de cylindre, qui consiste à exporter les points d’intersections des génératrices de la coupe en élévation perpendiculairement et de les rabattre sur les génératrices de points exportés par rabattement depuis de la vue en plan .
Les intersections de cette construction donnent en reliant les points la vue en herse de la coupe du tronc de cylindre, délimité par une courbure elliptique .(fig 3)
Bel exemple ici fig 3 bis/ Le tracé et développement cylindrique tronqué et la herse appliqué en situation réelle . mairie-huriel....istoire/donjon/)
fig 4-4 bis-5-6/ Le tracé et développement cylindrique de pénétration :
Une pénétration en terme de charpente est tout éléments traversant droit ou obliquement et de toutes formes un cylindre ou une portion cylindrique (fenêtre, porte, cheminée ,ect ) .(photo ci dessous 5-6 ).
Ici on commence à entrevoir le croche proprement dit surtout si ces pénétrations sont elles mêmes circulaires .
Le principe est en fait de percer le cylindre ou la portion cylindrique d'un autre solide réel (ex. cheminée) ou fictif (ex. baie de fenêtre) et de pouvoir tracer son empreinte mesurable et traçable afin de construction .(Quand on "roule" la feuille de papier autour du périmètre circulaire de la vue en plan, on doit avoir le profil parfait vu par bout de l'élément traversant le cylindre).
La technique est de tracer sur l'élévation le profil exact de la pénétration et de le développer sur le développement principal afin d'y ajouter des coordonnées non connues a ré-exporter sur l'élévation pour tracer les diverses déformations dues à la courbe de surface cylindrique des éléments cadrant la pénétration constante.
Toujours avec les principes de divisions décrits plus haut, il suffit d'exporter les vues par bouts de pénétration depuis l'élévation vers le développement, de les tracer développées et d'y tracer les éléments utiles en parallèle , puis de ré-importer sur l"élévation les nouveaux points de coordonnées et tracer d'y les déformations de ces nouveaux éléments utiles pour la suite de construction .
Avec les meme génératrices recoupant les génératrices vues en plan , on peut aussi tracer la vue de coté de l'élévation et y tracer les profil du vide des pénétrations (fig 5) .
fig 7-8/ Le tracé et développement cylindrique de raccord entre solides :
Un raccord de toiture en charpentes se trouve à la "jointure" des toitures et/ou des murs entre deux bâtis se pénétrant quelque part sur leurs parois.
Sur la charpente il faut faire ce raccord par ce que l'on nomme une noue récupérant le glissement de l'eau de manière étanche entre les deux structures afin de l'acheminer "à l'égout" .
Sur deux couverture différentes droite pas de problèmes, par contre sur une parois cylindrique, cette noue devra être développée pour la tracer et l’exécuter (ex .photo fig 8 :Noue entre une tourelle et un bâtit parallélépipédique) .
Le principe est de tracer en plan la pénétration des deux solides pour en identifier la position du raccord .
En charpente c'est utile dans le cas ou il faut tailler des bois de noues en courbes pour soutenir et faire le lien avec le chevronnage contre une tour circulaire par exemple. (Quand on "roule" la feuille de papier autour du périmètre circulaire de la vue en plan, on doit avoir le profil parfait de la portion polygonal du solide étranger "s'encastrant fictivement dans le cylindre .
La technique est d'exporter par génératrices tous les points divisés du raccord vu en plan vers l'élévation , puis par rabattement depuis l'élévation de les exporter sur le développement ou/et une nouvelle élévation en vue de face perpendiculairement à la corde de l'arc de cercle du raccord vu en plan .
Sur le développement la courbe développée servira à tracer des hauteurs et largeurs de bois non connues au paravent, à re-exporter sur les autre vues .
Sur la nouvelle élévation de face on tracera le profil en vraie courbure du raccord vu sur la surface circulaire du cylindre .
En résumé : Il est primordial de s'exercer sur des feuilles de papier au départ pour tracer ces diverses constructions en compliquant chaque fois la tache, puis de découper les courbes développées et de les rouler pour vérifier si nos tracés sont juste !
C'est en soi des exercices amusant pour s'initier facilement et concrètement à moindre frais aux différentes techniques de tracer par art du traits, et pas si enfantin que ça !
La technique de la feuille de papier est souvent utilisée dans les métier faisant appel à ces genres de constructions et permettent de bien s'imaginer à l'avance la géométrie de pièces courbes dans l'espace .
Pour les boiseux ici qui découvrent , imaginez vous qu 'un développement sur périmètre calculé bien fait et approfondi en y ajoutant les épaisseurs et largeurs de bois, vous permettra de faire du lamellé collé de pièces non connues en géométrie plane est ainsi de démultiplier vos champs créatifs !
Pour du bois massif à tailler dans la masse nous allons s'y intéresser plus bas dans les prochains articles .
Applications pratiques de l'art du trait du cylindre en charpente
Dans ce chapitre, nous allons appliquer aux bois de charpente les principes de bases énoncés ci dessus .
Les prochains exercices s'émanciperons des assemblages (secondaires) et s’arrêteront en coupes et arasements (comme pour de l'assemblage par dominos) pour laisser la place de façon plus lisible à la compréhension des procédés déjà très chargés en traits .
Nous prendrons comme sujet d’étude une supposée tourelle circulaire tronquée en couverture avec une fenêtre ronde en pénétration pour avoir les éléments utiles de cas généraux qui pourrait se présenter en charpente (ou autre construction en bois)
Tracé de développement de section tronquée d'un ouvrage cylindrique :
Le développement pratique dans ce cas présent sera incontournable à maîtriser quand on devras tracer et chantourner des éléments développés pliables dans un ouvrage (lamellé collé, planche de noue, tôle de noue, etc) qui n'auront leur forme définitive qu'une fois enroulée et posée .
Notre sujet d'étude se compose d'une tourelle circulaire faite de poteaux verticaux d'aplombs nantis de bois de ceinture basse cintrés, est d'une ceinture haute biaise de bois cintrés débillardés constituant une toiture plate .
Cette structure sera percée d'un œil de bœuf en embrasure droite sur 4 bois assemblés en lunette circulaire débillardés croches (cintrés en plan et en élévation) .
fig 1/ La vue en plan et l'élévation :
A/ En premier lieu nous traçons le contour, profil et éléments connus de notre tourelle (base circulaire vue en plan + élévation avec coupe biaise de la toiture + vue par bout et en plan de pénétration souhaitée).
B/ Sur la vue en plan, nous divisons les axes des futurs poteaux , puis nous traçons les sections de chacun d'eux vus par bouts (arrondis seulement sur l’extérieur) ainsi que les largeurs de bois cintrés des ceintures .
C/ Par des fuyantes, nous élevons ces poteaux sur l'élévation et nous traçons les épaisseurs des ceintures (droite et biaise) .
Nota : Ici le poteau central de l'élévation n'est pas connus encore aux points de coupes de la lunette !
fig 2/ Mise en place du développement :
A/ Depuis l'élévation, nous traçons par des fuyantes horizontales les hauteurs connues extrêmes .
B/ Par des verticales nous traçons les divisions calculées du périmètre de la vue en plan .
fig 3/ tracés des bois connus sur le développement :
A/ Nous traçons vus en vertical les largeurs trapézoïdales de poteaux depuis les axes .
B/ Nous traçons l' épaisseur de la ceinture basse.
C/ Nous traçons enfin toutes les génératrices horizontales depuis les points utiles en élévation à exporter vers le développement coupant en intersection les tracés montants donnant les points de courbes .
fig 4/ Tracé des courbes supérieures et inférieures extérieures :
A/ En repérant les points maintenant connus, il faut à l'aide d'un pistolet ou d'une cerce les relier par les courbes ainsi définies .
A bis/ Nous pouvons aussi pour gagner du temps et ne pas surcharger l'épure de traits en traçant la seconde courbe sur des points tracés par un écartement de compas égaux à l'aplomb pris sur l'élévation .
En effet les hauteurs dans ce cas sont d'aplombs et constantes .
fig 5-6/ Tracés finaux des courbes :
Avec le même principe, nous traçons les courbes intérieures supérieures et inférieures . (Sur l'illustration, je me suis servi des coupes de bouts mises en couleur bleue pour visualiser plus facilement la logique du tracé)
fig 7-8/ Matérialisation des courbes :
A/ Avec une couleur ou un grisonnant au crayon papier léger, nous matérialisons déjà la face des bois, tout en sachant que dans un développement ces courbes se croiseront aux axes développés en miroir de l'axe d'élévation.
B/ Avec une couleur ou un grisonnant plus soutenu, nous matérialisons les champs vus !
C/ Nous pouvons aussi matérialiser les poteaux et leurs coupes de bouts si besoin .
fig 9/ tracé de feuillets pour du lamellé collé :
En chantournant des feuillets aux limites hautes et basse des courbes, on obtient une fois collé en forme une pièce courbe brute avec des réservations de bois pour le débillardement fini des champs . (en rouge sur l'illustration)
Tracé de herse développée de la section tronquée d'un ouvrage cylindrique :
Le tracé de herse est ce qui donne le plus d'information en charpente pour tailler les bois d'un ouvrage, dans le cas de plan courbes c'est possible aussi à condition que la surface hersée soit plane évidemment !
Sur notre sujet d'étude, j'ai ajouté deux bois de panne chevron en croix assemblés en lierne pour bien appréhender le sens logique du développement de la herse .
fig 1/ Mise en place du plan développé à plat de la herse :
A/ Depuis la vue en plan, nous exportons par des fuyantes et arc de cercle le diamètre de la construction vers l"élévation .
B/ Depuis l’élévation et perpendiculairement à la section tronquée ,par des fuyantes nous traçons un rectangle ou sera inclus la herse complète future .
Nota : Il faut définir les points de rabattements entre les deux vues précisément .
fig 2/ Tracé de la première courbe (extérieure) de la herse :
A/ On exporte par génératrices et points de rabattements sur le développement de herse tous les points extérieurs pris sur la vue en plan des axes de divisions.
B/ Depuis l'élévation perpendiculairement à la partie tronquée , on exporte par génératrices tous les points d'axes réciproques à la vue en plan sur le développement de herse .
C/ par tous les points d'intersections de génératrices réciproques, nous traçons à l'aide d'un pistolet ou cerce une première courbe elliptique délimitant l'extérieur de la herse .
fig 3/ Tracé de la seconde courbe (intérieure) de la herse :
Avec le même principe que précédent mais en exportant depuis la vue en plan les points d'axes intérieur cette fois ci , nous traçons la seconde courbe, on aperçois ici que les deux courbes ne sont pas parallèles, c'est normal car les parallélismes seront donnés par les deux prochaines courbes .
fig 4/ Tracé des courbes de débillardements :
Nota : Entre-temps en exportant les points depuis la vue en plan et de l'élévation, j'ai tracé la "croix" pannes chevrons en lierne sur la herse ,ce qui nous permettra de visualiser la logique.
A/ Depuis les points inférieurs et extérieurs de l'épaisseur de la ceinture de l'élévation, nous exportons par génératrices coupant les génératrices verticales du développement de herse.
B/ Les nouveaux points donnés par les intersections de ces génératrices nous permettent de tracer la première courbe extérieure de débillardement .
fig 5/ Tracé des courbes de débillardements suite :
A/ Depuis les points inférieurs et intérieurs de l'épaisseur de la ceinture de l'élévation, nous exportons par génératrices coupant les génératrices verticales réciproques du développement de herse.
B/ Les nouveaux points donnés par les intersections de ces génératrices nous permettent de tracer la seconde courbe intérieure de debillardement .
fig 6/ Tracé des poteaux vu en herse :
Depuis l'élévation et la vue en plan , nous exportons tous les points utiles pour tracer les poteaux vus en herse au niveau de la ceinture, puis nous les matérialisons par coloration .
Ici le tracé de la herse est terminé , il nous reste à exploiter les informations pratiques que nous donne cette construction .
fig 7-8/ Observation générale et tracé des blocs capable pour l'usinage des pièces :
J'ai volontairement "sorti" numériquement les pièces de bois débillardées vues en herse pour bien imaginer le résultat de cette construction, et comprendre à quoi sert notre épure .
On ne peut pas traditionnellement tailler correctement et précisément des bois débillardés non connus sans pouvoir les tracer.
On ne peut tracer ces bois que par points exportés sur un bloc équarris calibré au préalable ! Encore faut il connaitre les mesures de ce bloc accueillant inscrit une pièce débillardée , ce que l'on nomme un "bloc capable" .
La herse tracée nous permet d’avoir toutes les informations de débits et de traçages de nos pièces .
A/ En traçant un un parallélogramme passant par les points extrêmes de chaque pièce débillardée vue en herse, nous obtenons la longueur et l'épaisseur du bloc équarri capable .
B/ L'épaisseur d'un bloc capable dans notre cas en herse est égal à l'épaisseur de ceinture en élévation .
En rouge sur la dernière illustration, nous trouvons le tracé de ce que l'on appelle un "calibre rallongé", qui représente le cintre déforme à tracer sur un bloc capable de part et d'autre de ces faces mais décalées pour le debilladement.
Dans le cas de notre sujet, ce serait intéressant en terme de temps de faire deux de ces calibre en gabarit à reporter sur nos pièces, en effet celles ci sont similaires et en miroir .
Pour ceux qui commenceraient à s’intéresser au sujet et expérimenteraient, il faut déjà essayer avec le principe de feuille pliée ,et avec moins de pièces de bois tracées (exemple juste la ceinture entière non coupée par des poteaux) .
Les principes expliqué ici peuvent être dérivés à la menuiserie ou en mobilier sans problèmes !
Je ne peut que donner des pistes d'études génériques de départ et l'envie, le reste est sans limite ,avec un travail personnel assidu, un monde nouveau s'ouvre à vous !!!
Tracé et développement de pénétration d'un ouvrage cylindrique :
Dans ce chapitre, nous allons découvrir un premier tracé d’exécution pour du débillardé croche (Cintré en plan et en élévation) .
Cette pénétrations de solide cylindrique par un autre solide lui aussi cylindrique est l'exercice que l'on apprend en premier en apprentissage de cette technique . En effet elle permet de pouvoir toujours se référer à l’aspect vertical d'aplomb et perpendiculaire du percement de pénétration qui seront les seules constantes dans ce cas, le restant devra être rechercher en trois dimension dans l'espace.
Pour résumer, cet exercice fait parfaitement la transition depuis le débillardé classique (autour ou dans du solide cylindrique) et le croche pur sans aucunes constantes (Ex .bois circulaire placé dans une forme sphérique) .
fig 1/ Tracé de la pénétration directrice :
A/ Sur l"élévation, nous traçons la vue par bout de la pénétration au compas par un cercle de 360° .
B/ Sur la vue en plan, nous traçons depuis le diamètre de pénétrations de l"élévation, celle ci en vue de dessus .
C/ Depuis l"élévation nous exportons l'axe et le diamètre en hauteur de la pénétration sur le développement .
fig 2/ Tracé de la pénétration développée sur le développement :
A/ Sur la vue en plan nous divisons le segment de cercle représentant la pénétration et les bois de lunette vues de dessus.
B/ Nous divisons et traçons (ici par calcul) le périmètre développé du segment de cercle de lunette sur le développement, ainsi que l’arête de pénétration par rapport aux bois de la lunette .
C/ Nous exportons par génératrices verticales les points de divisions de la vue en plan sur la pénétration en élévation .
D/ Nous exportons ensuite ces nouveaux points de l'élévation par génératrices horizontales sur le développement .
E/ avec un pistolet ou une cerce, nous traçons l"ellipse de la pénétration développée .
fig 3/ Tracé de la lunette développée :
A/ En prenant au compas la mesure de bois vu (en corde) sur la vue en plan de la lunette, nous reportons cette mesure sur tous les rayons développés de la pénétration au développement .
B/ Depuis ces nouveaux points sur le développement, nous traçons la courbe elliptique extérieure de la lunette .
fig 4/ Tracé final en vraie courbure de la lunette sur l'élévation :
A/ Depuis le développement, nous exportons les nouveaux points par génératrices vers l'élévation .
B/ les nouveaux points d intersections donnés et reliés par pistolet ou cerce nous donnent la lunette en vraie grandeur et vraies courbure en vue de face sur l'élévation .
Attention : les points exportés sur l'élévation sont pris sur les rayons développés, sauf pour ceux qui découlent du tracé d’arêtes qui sont eux pris sur l’arête développée et exportés sur les génératrices réciproques venant de la vue en plan vers l'élévation .
fig 5-6-7-8-9-10-11-12-13/ Tracé géométral de fabrication de la lunette et bloc capable :**
Dans notre sujet d'étude, on ne tracera que la moitié de la lunette, en effet celle ci serai assemblée de quatre éléments identiques en miroir.
fig 5-6 :
A/ Nous Traçons dans l'alignement des vues en plan et élévation toutes les génératrices utiles verticales pour la pénétration et les limites de la construction.
B/ Depuis l'élévation, nous exportons par rabattements les génératrices horizontales réciproques sur les génératrices verticales .
C/ Nous traçons au compas la vue par bout de la pénétration .
fig 7-8/
A/ Nous traçons ensuite toutes les génératrices verticale de la courbe extérieure depuis la vue en plan et l'élévation .
B/ Par rabattements depuis l'élévation nous exportons les horizontales réciproques sur les verticales.
C/ au pistolet ou cerce, nous traçons la courbe extérieure en reliant ces nouveaux points d'intersections .
fig 9-10/
A/ Nous exportons enfin de la même façons les dernières génératrices du débillardement de courbe .
B/ Au pistolet ou la la cerce, nous traçons le débillardement aux points d'intersections .
C/ Avec des couleur ou en grisonnant, nous matérialisons la pièce vue géométralement en vraie grandeur et vraie courbe .
Pour tracer des blocs capables, nous devons repartir depuis la vue en plan et l'élévation pour exporter les génératrices vers une dernière construction, sachant qu'une vue sera nécessaire pour faire les quatre pièces de la lunette (traçage en miroir ) ! (fig 11)
fig 12/ Nous exportons les génératrices vue en élévation vers la future vue géométrale du bloc vers la vue en plan .
fig 13/ Nous exportons depuis la vue en plan les génératrices réciproques, puis aux intersections nommées , nous traçons au pistolet ou cerce les courbes de la pièce de lunette vue géométralement .
Enfin en traçant un parallélogramme aux extrémité de cette dernière , nous obtenons la largeur et la longueur des blocs capables .
En résumé, à condition que le développement soit issus par calcul du périmètre, nous pourrions aussi débiter le profil développé de la lunette pour du lamellé collé .
Important : Dans le cas de médaillons (marqueterie ou assemblage petit cadre) sur un ouvrage cylindrique (bureau à cylindre) il faut faire avec la même méthode mais le tracé inverse, c'est à dire tracer le profil fini du médaillon au compas sur le développement, puis l'exporter vers l'élévation !
En effet si nous utilisions la méthode ci dessus , le médaillon apparaîtrait déformé et non esthétique sur l'ouvrage cylindrique !
On peut ici aussi essayer sur une feuille de papier pour visualiser les déformations dues au pliage
Tout l'art du trait réside ici, le fait de visualiser en permanence dans l'espace un ouvrage à réaliser .
Tracés de raccords en noues de solides différents dans un ouvrage cylindrique :
Ce dernier chapitre sur l'art du trait dévolus aux ouvrages cylindriques, va nous apprendre à tracer principalement ce que l'on appelle la noue courbe , en d'autres termes, le tracé d'exécution pour tailler ce bois de raccordement placé au niveau des chevrons de deux toitures et/ou parois différentes , ainsi que des planches de noue accueillant de la zinguerie .
Le principe de base étant la collision et pénétration de deux bâtis différents et donc leur raccordement sur un plan circulaire .
Notre sujet d'étude sera un petit bâtit rectangulaire en plan avec un petit toit un pan s'encastrant dans la parois d'une tourelle circulaire .
Donc le raccordement du chevronnage en pente contre la tourelle .
Tracé du développement du chevron de noue :
fig 1/ Mise en place du tracé de noue courbe développée :
A/ Nous procédons classiquement au tracé de la vue en plan, elle comporte la tourelle circulaire et la collision et pénétration des deux bâtis, ainsi que du chevronnage calculé et divisé avec la représentation circulaire du futur bois de noue .
B/ Nous traçons en alignement la vue en élévation de l'ensemble avec ses hauteurs désirées et la pente de toiture.
C/ Nous matérialisons le bois de noue différemment des chevrons droit en plan et en élévation .
fig 2/ Tracé du plan de développement :
Le développement sera utile en cas de planche de noue (divisions par les collets) ou du bois de noue en lamellé collé (divisions par calcul du périmètre).
A/ Nous traçons le périmètre rectangulaire du développement classiquement .
B/ Nous y importons les génératrices horizontales depuis l'élévation .
C/ Nous traçons enfin les divisions sur la vue en plan et en verticales développées sur le plan de développement .
fig 3-4/ Exportations des points de divisions en plan sur les autres vues :
A/ Nous exportons par génératrices verticale depuis la vue en plan vers l'élévation .
B/ Depuis l'élévation par rabattement depuis la pente du toit nous traçons des génératrices de points vers le développement .
fig 5/ Tracé de la pièce courbe développée :
A/ Nous traçons classiquement les quatre courbes aux points d'intersections sur le développement .
B/ Avec des couleurs ou en grisonnant au crayon, nous matérialisons la pièce vue développée .
fig 6/ Construction complète du développement :
En visualisant cette dernière construction dans son ensemble, on s’aperçoit que le principe de traçage en art du trait est à peu près toujours fait de la même technique descriptive pour arriver à sortir des épures de pièces non connue par géométrie plane .
Tracé de la planche de noue développée :
Pour débiter et chantourner une planche de noue afin de la plier sur une parois circulaire, on se sert du développement.
Les divisions verticales peuvent être tracées par les cordes ou calculées depuis le périmètre circulaire de la vue en plan ,cela n'a pas d'importance les hauteurs pour retranscrire la courbes seront constantes .
Par contre il faudra calculer la longueur du segment en plan pour tracer des divisions justes sur la planche de noue à débiter en courbe.
fig 1/ Tracé de la planche de noue en plan :
A/ Sur la vue en plan au compas, nous traçons la planche de noue d'épaisseur 18 mm de la totalité de son recouvrement de la noue .
B/ De façons classique nous exportons les points de divisions de la parois circulaire vu en plan vers le développement en passant par l'élévation .
fig 2/ Tracé de la planche en courbe développée :
A/ Nous traçons la courbe de noue développée aux intersections de divisions réciproques .
B/ Nous traçons au compas les hauteurs constantes depuis la courbe développée .
C/ Depuis ces nouveaux points , nous traçons la seconde courbe du profil de la planche ainsi que ses coupes d'aplombs .
Nous obtenons par cette construction le tracé à exporter sur une planche brute coté parois circulaire, et après avoir chantourné ce tracé ,cette planche par pression sera pliée sur le chantier et épousera parfaitement la noue courbe.
Le tracé peut parfois être demandé par le couvreur pour débiter ses tôles de zinguerie en courbes !
Tracé de la vue géométrale de noues courbes :
Le tracé géométrale est à maîtriser, même si pour un chevrons courbe de noue sera débiter et tailler depuis le développement en herse.
En effet le bloc capable issus de la vue géométrale serait de trop grandes dimensions et beaucoup de perte de bois .
Le tracé géométral permettra en outre à dessiner un ouvrage à des fin de visualisation globale d'un projet (actuellement l'informatique à complètement remplacer cette technique).
Par contre encore actuellement la technique est utilisée encore parfois dans l'escalier en courbe traditionnel .
Fig 1/ Mise en place de l"élévation géométrale :
A/ Depuis la vue en plan et perpendiculairement au segment de cercle entier de la noue, nous construisons une seconde élévation vue de face.
B/ Nous exportons les points extrêmes de la noue sur cette nouvelle vue .
fig 2/ tracé des génératrices de points de divisions réciproques :
B/ Depuis la vue en plan, nous exportons toutes les génératrices de points de divisions du segment .
C/ Depuis l'élévation principale, par rabattements nous exportons par génératrices tous les points de divisions réciproques sur la seconde élévation .
Nota : Il faut procéder un tracé courbe par courbe et leurs génératrices réciproques, en effet la lecture de la multitude de traits deviendrai très vite confuse pour retrouver tout les points d'intersections !
fig 3/Tracé des courbes :
A/ Avec la cerce ou pistolet, nous traçons les différentes courbes .
B/ En couleur ou en grisonnant au crayon, nous matérialisons la pièce .
fig 4/ Construction complète de la pièce vue géométralement :
En observant l'ensemble on devine bien le soin que l'on doit apporter à ce genre de tracé .
fig 5-6/ Tracé géométrale complet du chevronnage :
A/ Toujours avec le même principe, on exporte touts les points par génératrices des extrémités de chevrons droits .
B/ En mettant en couleur ou en grisonnant ,on découvre l'ouvrage complet de chevronnage vu géométralement .
Tracé de calibre rallongé et bloc capable de noues courbes :
fig 1-2/ Tracé du calibre rallongé :
A/ Le tracé du calibre rallongé se fait perpendiculairement depuis la vue géométrale de la pièce, en exportant les points des courbes représentant le plat de la pièce sur un parallélogramme aux mesure de la longueur extrême vue géométralement et de l'épaisseur extrême de la pièce vue en plan.
B/ Sur les génératrices du calibre rallongé, nous traçons les mesures prises au compas des points de divisions vu en plan depuis la courbe perpendiculairement à l’arête du bloc .
C/ En Traçant depuis la vue géométrale les points inférieurs de division et y appliquant les écartements de compas , en traçant les secondes courbe et en y posant de la couleur ou du grisonnage, on découvre la courbure de la pièce entière inscrite dans l'épaisseur du bloc capable.
Fig 3/ Tracé du bloc capable sur la vue géométrale :
En traçant un parallélogramme aux extrémités de la pièces vue géométralement , on obtient la longueur et la largeur du bloc capable.
Et sur la fig 4 on découvre l'épaisseur du bloc capable en traçant un parallélogramme aux extrémités de la pièce vue en plan .
Tracé de la herse de chevrons en noue courbe :
Au vu des mesures ci dessus de blocs capables pour y inscrire la pièce de noue, on s’aperçoit bien que la masse de bois nécessaire n'est pas très pratique, de plus le bois à tailler débillardé sur 4 faces demande beaucoup de travail pour une pièce de bois structurant une charpente qui sera de toutes façon invisible !
Nous laisserons donc cette technique aux escaliers (voir traité).
Les charpentiers adopteront le principe de la herse qui permettra de tracer une pièce déjà tirée d'épaisseur et par ailleurs déjà courbée naturellement (moins de bois et plus de résistance) .
La herse dans notre cas donnera toutes les informations pratiques pour tailler le chevronnage du se t'il être en plus en noue courbe .
fig 1/ Le tracé de la herse :
Le principe général est le même que pour un tracé de herse sur des toiture à plan carré (voir chapitre précédent).
Toutefois ici ,l'épure en plan est déjà très fournie en traits et il faut de préférence exporter la vue sur un plan nouveau de manière à être lisible plus aisément .
A/ Depuis la vue en plan, nous exportons vers la nouvelle vue les divisions et épaisseurs de bois à notre nouvelle construction (ici sur les génératrices verticales déjà tracées) .
B/ nous exportons ensuite les points de coupes des chevrons droits en plan vers l"élévation ,puis nous matérialisons les coupes .
C/ En choisissant comme point de rabattement la pointe du chevronnage de l'élévation , nous rabattons par génératrices les points utiles sur les génératrices de la vue en plan .
D/ Aux intersections réciproques , nous traçons les courbes .
E/ Nous rabattons ensuite les points de longueur des chevrons droits et derniers points utiles .
F/ Nous traçons la herse complète, et avec des couleur ou en grisonnant au crayon nous matérialisons la herse entière en vraie grandeur et vraie courbure . (fig 2)
fig 3/ Tracé du bloc capable du chevron de noue :
A/ En traçant par les extrémités de la pièce vue depuis la herse un parallélogramme ,on obtient la longueur et la largeur du bloc capable .
B/ L’épaisseur du bloc capable est égale à largeur des chevrons vus sur l'élévation .
En résumé, si on imagine une pièce de bois déjà cintrée naturellement brute capable d'inclure la pièce de noue courbe finie de la herse , et de l'avoir calibrée déjà en épaisseur, Le tracé et la taille se trouve précise est simplifiée .
fig 4/ L’ensemble de la construction par art du trait !
Avant de passer aux tracés croches sur des structures plus complexes, ce chapitre dénote bien l'art du trait à part entière et l'obligation de travailler le sujet par petites étapes .
Plus loin, nous apprendrons à tailler et usiner des pièces débillardées ou lamellés collées en courbes irrégulières! Sans l'art du trait et les épures qui en découlent ,il serait impossible de construire des ouvrages de qualités car l'improvisation n'a pas sa place dans nos métiers dès que les ouvrages deviennent complexes sortit du plan carré et constitués de plans courbes .
A suivre ........
Le dessin de charpente dit le trait ou l'art du trait : Chapitre 3
Explication pratique de l'art du trait (3/ Le cône de révolution)
Le cône de révolution en charpente est le solide le plus étudié apres la pyramide , en effet de par sa forme il est naturellement directement associé à une toiture de tourelle, toujours issus d'un plan circulaire et finissant en pointe à son sommet .
Contrairement au cylindre, en variant le cône sur la hauteur et/ou son profil vu en élévation, nous pouvons dériver ce solide de base d'une multitude de combinaisons différentes, pouvant ainsi trouver la forme idéale adaptée à un ouvrage architectural .
Il pourra par la suite évoluer en profil cintré, torse, bulbe, et s'acheminer petit à petit vers les volumes sphériques en abandonnant sa tete finissant en pointe.
Le cône de révolution est le passage au tracé "croche" proprement dit, et c'est ici que ce que l'on à étudié plus haut prend toute son utilité en terme de réflexions et logiques automatiques en dessins d'épures .
Il faudra plus d'un chapitres à son étude, donc ci dessous l'apprentissage de base du cône de révolution .
Quelques exemples ci dessous de travaux charpentiers à base d'un cône de révolution .
Présentation du cône de révolution régulier dans l'art du trait :
Il sera constitué :
1/ D'une base circulaire que nous appelons en art du trait la vue en plan. C'est un cercle à 360° qui constituera le périmètre extérieur de tous éléments physiques de travaux inscrits dans sa masse ou contre sa surface d'élévation à développer pour un tracé et une exécution pratique de pièces non connues par la géométrie plane .
2/ D'une élévation géométrale afin de représenter sa vue de face . Les contours serons représentés par un triangle équilatéral ou isocèle avec sa base égale au diamètre du cercle et/ou de la portion de cercle d'un secteur circulaire en plan et de la hauteur définie du projet inscrit dans le cône de révolution.
Les cotés du triangle d'élévation d'un cône en vue de face se nomment les chevrons d'emprunts (apothèmes).
Des éléments connus depuis la vue en plan pourront être exportés en élévation à condition qu'ils soient d'aplombs et de niveaux !
Les autres éléments biais, en coupes, en pénétration, rampants, ect , eux ne sont pas connus et devront être développés pour pouvoir être tracés géométralement sur cette élévation .
3/ D'un développement qui à l’image d'une feuille de papier triangulaire à base circulaire qui sera étalée à plat aux rayons équivalents à la longueur d’un chevron d’emprunt (apothème) et du périmètre du cercle développé par les cordes de divisions en plan (résultat approximatif car périmètre légèrement raccourci) ou par calcul de l'angle alpha de l'ouverture des chevrons d'emprunt sur le développement (résultat en vraie longueur de périmètre) , qui pourrait être ensuite "roulée" sur le périmètre vu en plan donnant le cône régulier solide .
Sur cette surface développée en vraie grandeur, nous allons pouvoir tracer les éléments à plat et développés ou en vraies grandeurs suivant le type de travaux, afin de déterminer tous les points de coordonnées non connus exportables sur l'élévation.
Etude géométrique du cône de révolution :
Dans l'art du trait de charpente, le cône de révolution est applicable à bien des travaux, c'est pour cela qu 'il faut déjà connaitre ce solide de façon géométrique pure.
Nous allons détailler ci dessous ses principales propriétés génériques utiles et applicables aux travaux de charpentes (applicables aussi en menuiserie ou ébénisterie) .
1/ la vue en plan du cône de révolution :
Elle est constituée d'un cercle représentant le lattis à 360° sur lequel le diamètre tracé horizontalement vu du dessus représentera les chevrons d'emprunt droit et gauche de la future élévation .
On calcule son périmètre de base par la formule Py x Diamètre (ex. 3.14 x 800 mm = 2512 mm)
On calcule sa surface de base (pour un plancher par exemple) par la formule PY x rayon du cercle au carré (ex.3.14 x 400 mm x 400 mm = 502400 mm2 = 0.5024 m2
On divise son périmètre ou un secteur par rayons successif tracés perpendiculairement aux cordes.
Le centre du cercle correspond à la pointe en tete du cône élevé ou à sa hauteur vue de dessus .
On calcule un secteur circulaire comme dans un cylindre (voir dernier chapitre) .
2/ L'élévation ou vue de face du cône de révolution :
Elle est représentée par un triangle égal au diamètre du cercle de de la hauteur désirée .
Ses cotés correspondent aux chevrons d'emprunts en vraie grandeur et l'inclinaison de la pente du toiture .
L'angle formé au sommet par le chevron d'emprunt et la hauteur représente le tracé de coupe d'aplomb de chevrons .
L'angle formé par le chevron d'emprunt et la base du triangle d"élévation représente le tracé de la coupe de niveau à la base des chevrons .
3/ Le développement du cône de révolution :
Comme pour un cylindre de révolution, on peu développer de deux manière :
Fig 2/ Par les cordes :
Le procédé est souvent utilisé pour des tracés rapides de demandant pas de précision extrême ! Par exemple une épure de tracé et taille en trapèze de tuiles plates ou ardoises au sol .
En charpente , on l'utilise aussi pour des hauteurs de planches de noues ou du tracé de voliges .
Il suffis de promener l'écartement de compas réglé aux cordes sur la vue en plan sur l'arc de cercle développé par le chevron d'emprunt .
Fig 3/ Par le calcul mathématique du périmètre :
C'est le procédé que nous utiliserons chaque fois pour des développement précis de pièces car nous auront en croche des traits supplémentaires du fait que nous ne sommes plus sur un plan d'aplomb mais biais rayonnant .
Il faut ici calculer l'angle alpha de l'ouverture des chevrons d'emprunt sur le développement .
Calcul de l'angle alpha d'ouverture au développement :
Chevron d'emprunt x 2 x PY = 984,9 mm x 2 x 3.14 = 6185,17 mm
(Périmètre de la vue en plan x 360°) : Périmètre entier depuis le chevron d'emprunt comme rayon = (2512 mm x 360°) : 6185,17 mm = 146,2°
ou plus simplement :
(Rayon de vue en plan : chevron d'emprunt) x 360° = (400 mm : 984,9 mm) x 360° = 146,2°
Nota : J'ai calculer pour information les périmètres de chacune des vues ci dessous , on peut y voir la différence entre les deux constructions .
Soit un périmètre calculé juste égal à celui de la vue en plan (fig 3) de 2512 mm et le périmètre calculé de la division par les cordes (fig 2) égal à 2498,12 mm .
L’imprécision n'est que de 13,88 mm ! autant dire assez négligeable pour des travaux imposants comme la couverture .
On calcule l'aire de la surface développée du cône de révolution pour avoir par exemple la surface latérale de couverture d'une toiture conique par la formule PY x (longueur du chevron d'emprunt au carré) : 360°) x l'angle alpha du développement.
ex : PY 3,14 x ( 984,9 mm x 984,9 mm ): 360°) x 146,2° = 1236968 mm2 = 1,236 m2
Les sections, les pénétrations et raccords du cône utiles en art du trait de charpente (fig 1 et 2):
Ici cela devient intéressant dans le domaine charpentier, en effet les coupes et la visualisation de leurs sections sur un cône de révolution ont un but purement professionnel utiles applicables à nos travaux .
L'apprentissage du croche passe évidemment par les principes que nous allons détailler plus bas .
1/ Le tronc de cône avec coupe de niveau :
C'est le plus simple à mettre en oeuvre (fig 3) , il représente une coupe de niveau sur un cône de révolution à une hauteur désirée , sa section vue en herse représentera toujours un cercle ou arc de cercle axé sur le même axe que le cône .Son développement sera toujours en arc de cercle axé depuis le sommet sur l'axe du périmètre cône .
On retrouve le principe en charpente principalement pour les tracés de pannes horizontales (D'aplomb, en dévers, en liernes, ou en repos de chevrons). Imaginons des anneaux de diamètres différents .
2/ Le tronc de cône avec coupe biaise :
Ici nous rentrons dans le croche proprement dit, il représente un cône sur lequel on pratique une coupe biaise incluant son axe , sa section vue en herse représentera toujours une ellipse .
En art du trait de charpente c'est utile en cas d'un petit toit plat en verrière sur une structure contemporaine par exemple.
3/ La coupe hyperbolique sur un cône :
C'est le principe de pratiquer une coupe d'aplomb sur un cône, en trait de charpente c'est un des plus pratiqué .
Sa section en herse représente une base droite et une courbe plane, symétrique par rapport à un axe ,
Le tracé de la section représentera à la fois la vue en herse et la vue de face d'élévation de celle ci du fait de sa hauteur parfaitement d'aplomb parallèle à celle du cône .
En charpente cela nous permet de tracer des pannes ,des noues, des appuis contre une parois , des arches et autres baies ,ect ...
4/ La coupe parabolique sur un cône :
Géométriquement, la coupe parabolique se défini par son angle d'inclinaison égal à l'angle d'ouverture du cône et sa section en courbe plane, symétrique par rapport à un axe.
En charpente , une coupe parabolique peut dévier suivant la pente du toit recevant une tourelle de pente différente ,mais le principe parabolique restera .
Le tracé parabolique permet de tracer des noues, des raccords biais,des arches obliques ou autres baies ,ect ...
5/ Les pénétrations et raccords sur un cône :
L'étude des pénétrations du cône dans l'art du trait est la seconde chose importante en charpente, en effet c'est utile dans le cas de noues de cheminées ou lucarnes diverses par exemples qui pourraient être placés dans une toiture conique .
Les herses issues de ces tracés, seront profilées en fonction du profil d'origine des éléments pénétrants identifiés par points de divisions sur la surface courbe du cône !
Dans notre métier, les pénétrants serons le plus souvent dans une logique perpendiculaire ou d'aplomb par rapport à la base du cône .
Les raccords sont tout aussi important et sont de logiques hyperboliques ou paraboliques principalement en recherche noues .
En résumé, si on applique ces différents principes, nous pouvons tracer toutes les constructions de charpente possibles en croche, c 'est pour cela qu'il faut les connaitre .
Tracés pratiques des coupes et sections de cône de révolution
Nous voila dans le tracé croche proprement dit , il s'agit ici de s'exclure de logiques de pièces droites biaises comme dans l’arêtier ou d’aplombs comme dans le cylindre !
Il faut penser chaque fois croisements de rayons et lignes de niveaux pour les intersections de points.
Les divisions que nous traçons sur les divers éléments chaque fois doivent être assez nombreuses pour pouvoir tracer des courbes aléatoires sans "cassures" et être "trichées" sans incidence sur le résultat final de report et d’exécution des futur bois en courbes, mais pas trop pour ne pas encombrer une épure qui serai déjà bien chargée en traits .
Encore une fois, ici nous pouvons (c'est souhaitable) exécuter des tracés sur des feuilles de papier que nous découperons et roulerons pour valider la précision et l'exactitude de nos tracé d'études!
Tracés du tronc de cône avec coupe biaise :
fig 1/ Mise en place de la vue en plan, de l'élévation et développement :
A/ Nous traçons la vue en plan par un cercle au diamètre désiré, puis nous le divisons en 4-8-16 par tracés de cordes successifs .
B/ Nous traçons l'élévation de cône complet à la hauteur désirée, puis nous y traçons la coupe biaise désirée, et enfin nous y élevons les rayons de divisions projetés depuis la vue en plan .
C/ Apres avoir projeté à droite ou à gauche de l'élévation le chevron d’emprunt d'aplomb et parallèle à la hauteur du cône , nous calculons l'angle alpha de l'ouverture du rayonnement du développement à reporter à l'aide d'un rapporteur ((Rayon de vue en plan : chevron d'emprunt) x 360°), et nous traçons son aire développée.
fig 2/ Tracé de la section biaise du tronc de cône vue en plan :
A/ Depuis l'élévation, nous exportons par génératrices les points de rayonnements de la coupe biaise .
B/ Aux points d'intersections des rayons réciproques sur la vue en plan , nous traçons au pistolet ou cerce l’ellipse de la section .
Nota : Les points de la génératrice verticale sur la vue en plan , sont à mesurer car non connus par croisements des lignes !
Ils se mesurent depuis l'axe du cône et de la ligne de niveau le traversant par la coupe sur l'élévation .
(Cotes mesurée au compas 114,9 mm sur le dessin d'élévation puis reporté sur la vue en plan ) .
fig 3-3 bis/ Tracé du développement de la coupe biaise :
A/ Sur la vue en plan, nous traçons toutes les lignes de niveaux correspondantes au rayonnement de la coupe biaise sur le chevron d'emprunt .
B/ Nous exportons par rabattements des génératrices les points des lignes de niveaux vers le chevron d'emprunt du développement .
C/ Depuis le centre rayonnant du développement, au compas ,nous traçons les lignes de niveaux par arcs de cercles depuis les points du chevron d’emprunt .
D/ Aux intersections des lignes de niveaux et des rayons du développement ,nous traçons au pistolet la courbe développée de la coupe biaise .
En résumé, si nous traçons cette construction sur du papier et en la roulant après l'avoir découpée, nous obtenons le cône tronqué en volume .
Tracés du tronc de cône avec coupe biaise (herse) :
Seul le tracé de herse de la section suffira ici , en effet il représente un plan plat utile à savoir réaliser dans un premier temps .
fig 1-2/ Tracé de la herse de la coupe biaise :
A/ Nous traçons les contours utiles et précis de la construction en alignant les points de la vue en plan de la section , et en rabattant sur ceux ci les points réciproques depuis la coupe d'élévation .
B/ Nous traçons ensuite de la même manière toutes les génératrices de points utiles .
C/ Nous traçons au pistolet depuis les intersections obtenues la herse courbe de la section.
fig 3/ Tracé de la vue de face géométrale du tronc de cône :
A/ Nous traçons horizontalement depuis l'élévation toutes les génératrices de points utiles vers la droite ou la gauche de la vue .
B/ Depuis la vue en plan par rabattement, nous exportons les points utiles réciproques sur les génératrices venant de l'élévation .
C/ depuis les intersections de cette dernière construction nous traçons la vue géométrale de l'ensemble du tronc de cône vu en plan .
Tracés du cône avec coupe et section hyperbolique (d'aplomb) :
A la mise en page du dessin , on ne connais que le profil du cône en élévation et en plan, la coupe étant connue par un seul trait , il faut maintenant faire une construction par les rayons et lignes de niveaux pour connaitre le plan de la section de cette coupe en vraie grandeur et courbures ,ou/et développée .
fig 1/ Mise en place de la vue en plan,de l'élévation et du développement :
A/ De façon classique, nous construisons les vues, en plan, d'élévation et développement depuis le cône entier mesuré .
B/ Depuis l'élévation, nous traçons la coupe d'aplomb hyperbolique désirée .
fig 2/ Tracés des divisions sur les vues :
A/ Sur l'élévation, nous divisons la hauteur de la coupe en lignes de niveaux égales .
B/ Sur la vue en plan nous importons les points depuis l'élévation et nous traçons les lignes de niveaux du cercle .
C/ Sur le développement , nous importons les divisons réciproques sur le chevron d'emprunt, puis nous traçons au compas les lignes de niveaux développées .
fig 3/ Tracés des rayons sur la vue en plan :
A/ Depuis le centre du cercle et en passant par les points donnés par la coupe en plan et les lignes de niveaux, nous traçons les rayons de la future section jusqu'au périmètre de la coupe .
B/ Au compas nous prenons tous les écartements de mesures des rayons sur le périmètre de la coupe .
fig 4/ Tracé des rayons et de la courbe sur le développement :
A/ traçons les rayons réciproques à la vue en plan sur le développement .
B/ Aux intersections de lignes de niveau et des rayons , au pistolet ou cerce, nous traçons la courbe de la coupe et nous obtenons la section développée .
fig 5/ Vue complète de la construction :
En résumé, si nous traçons cette construction sur du papier et en la roulant après l'avoir découpée, nous obtenons le cône avec sa section hyperbolique en volume .
Tracés du cône avec coupe et section hyperbolique (herse) :
fig 1-2-3/ Tracé de la herse de la coupe hyperbolique :
A/ Nous traçons les contours utiles et précis de la construction en alignant les points de la vue en plan de la section , et en rabattant sur ceux ci les points réciproques depuis la coupe d'élévation .
B/ Nous traçons ensuite de la même manière toutes les génératrices de points utiles .
C/ Nous traçons au pistolet depuis les intersections obtenues la herse courbe de la section.
fig 4/ Tracé de la vue de face géométrale du tronc de cône :
A/ Nous traçons horizontalement depuis la vue en plan toutes les génératrices de points utiles vers la droite ou la gauche de la vue .
B/ Depuis la vue en élévation par rabattement, nous exportons les points utiles réciproques sur les génératrices venant de la vue en plan .
C/ depuis les intersections, nous traçons la courbe de la herse de section hyperbolique.
D/ depuis les intersections de cette dernière construction nous traçons la vue géométrale de l'ensemble du cône vu de face .
Nota : La particularité d'une coupe hyperbolique d'aplomb est que sa herse logiquement correspond aussi à sa vue de face géométrale (voir la vue complète du dessin) .
Tracés du cône avec coupe et section parabolique :
Ici le principe est rigoureusement le même que pour une coupe hyperbolique, sauf qu'il faut prendre en compte le biais de la coupe par rapport à la hauteur d'aplomb du cône .
De plus sur la vue en plan, il faut faire une construction pour la dessiner en vraie courbure car non connue par la géométrie plane .
Nous devinons aisément que ici l'art du trait est incontournable .
fig 1/ Mise en place de la vue en plan,de l'élévation et du développement :
A/ De façon classique, nous construisons les vues, en plan, d'élévation et développement depuis le cône entier mesuré .
B/ Sur l'élévation, nous traçons la coupe parabolique désirée .
fig 2/ Tracés des divisions de lignes de niveaux sur les vues en plan et d'élévation :
A/ Sur l'élévation, nous divisons la hauteur de la coupe en lignes de niveaux égales .
B/ Sur le chevron d'emprunt de la vue en plan nous importons les points depuis l'élévation et nous traçons au compas les lignes de niveaux du cercle .
C/ Depuis l'élévation , nous importons les divisons réciproques de la coupe sur les lignes de niveaux de la vue en plan .
fig 3/ Tracés de la courbe de la coupe parabolique vue en plan :
A/ Sur la vue en plan depuis le centre du cercle et en passant par les points donnés par les génératrices exportées depuis l'élévation et les lignes de niveaux, nous traçons les rayons de la future section jusqu'au périmètre de la coupe .
B/ Au pistolet ou cerce, nous traçons depuis les intersections la courbe de la coupe vue en plan .
fig 4-5-6-7/ Tracés du développement :
A/ Depuis l'élévation, par rabattement nous projetons sur le développement les lignes de niveaux sur le chevron d’emprunt .
B/ Au compas, nous traçons depuis les points du chevron d'emprunt les lignes de niveaux développées.
C/ Nous reprenons les mesures au compas sur le périmètre de la vue en plan des écartement des rayons, que nous exportons sur le développement .
D/ Aux intersections des rayons et des lignes de niveaux , nous traçons la section parabolique développée .
En résumé ici aussi , si nous traçons cette construction sur du papier et en la roulant après l'avoir découpée, nous obtenons le cône avec sa section parabolique en volume .
Tracés du cône avec coupe et section parabolique (herse) :
Une coupe parabolique est par définition plane, donc nous pouvons tracer la herse .
Celle ci sera différente de la vue de face tracée ensuite, n’étant pas dans un plan d'aplomb ,il y aura donc ici une vue supplémentaire par rapport au tracé hyperbolique .
fig 1-2-3/ Tracé de la herse de la coupe parabolique :
A/ Nous traçons les contours utiles et précis de la construction en alignant les points de la vue en plan de la section , et en rabattant sur ceux ci les points réciproques depuis la coupe d'élévation .
Attention ici le profil de la coupe est biais, il faudra donc rabattre les points depuis ce biais !
B/ Nous traçons ensuite de la même manière toutes les génératrices de points utiles .
C/ Nous traçons au pistolet depuis les intersections obtenues la herse courbe de la section.
fig 4/ Tracé de la vue de face géométrale du tronc de cône :
A/ Nous traçons horizontalement depuis la vue en plan ou de la herse toutes les génératrices de points utiles vers la droite ou la gauche de la vue , que nous rabattons ensuite vers l'élévation .
B/ Depuis la vue en élévation, nous projetons les lignes de niveaux réciproques sur les génératrices venant de la vue en plan .
C/ depuis les intersections, nous traçons la courbe de la section parabolique.
D/ Nous traçons la vue géométrale de l'ensemble du cône avec sa section parabolique vue de face.
Avant d'allez plus loin, il est important de connaitre, de travailler et de maîtriser ces premières bases d'apprentissage sur le cône de révolution !
En effet, le principe sera décliné pour le restant de l'apprentissage du croche dans les prochains chapitres .
Pour les personnes qui s'exerceraient à apprendre, il ne faut pas hésiter à copier dans un premier temps les dessins ci dessus , puis en faire d'autres avec des coupes et sections différentes et toujours sur du papier à découper et rouler après la construction dessinée , c'est le meilleur exercice .
Dans le prochain chapitre , les pénétrations du cône et des exercice pratique de charpente avec largeurs et épaisseurs de bois

Discussions
Super idée ! Ca promet d'être instructif :)
Chapeau bas Monsieur, je vois avec beaucoup d'admiration, toute la passion que vous avez à transmettre sur l'Air du Bois.Vos propos sont pertinents, comme il se doit. En effet votre coup de gueule est complétement justifié, la charpente doit non seulement répondre à la pérennité de l'ouvrage, mais surtout ne pas mettre les occupants en danger. Il y a bien une différence entre faire un tuto pour un meuble en bois de palette, et la prise de risque inconsidéré. Merci encore pour le travail que vous faite pour nous.
merci , mais par pitié pas de monsieur !!
Pays serait mieux
wil68 oui
Merci sylvainlefrancomtois pour ces bons rappels.
Jean Galmot ;)
Bravo et merci pour ce nouveau chantier pédagogique qui promet d'être passionnant !
merci
Ce prologue est réjouissant, c'est du "gai savoir" dans tout son éclat ! Merci beaucoup !
Bonsoir Sylvain,
Je t'envoie pour tes archives quelques photos prises sous la charpente du château de Saint-Fargeau dans l'yonne, laquelle se visite. Merci de nous entrainer dans cette nouvelle aventure passionnante de la charpente et bravo pour vos qualités de pédagogue.
Bien cordialement.
wahou merci c est superbe !! et c est pas loin de Guédelon !!

Effectivement, d'ailleurs la voici ainsi que celle de l'Hôtel Dieu de Tonnerre à l'occasion de l'exposition Arthus-Bertrand en 2016.
Et celle d'un château Creusois resté dans son jus pour la charpente principale et restaurée récemment pour la tour d'escalier.
…les photos promises…
superbe !! ce sont toutes des fermes en berceau , est un détail d enrayure !
Encore un virus vite attrapé, merci Sylvain !!
c est de ta faute !!! mais quand on aime .............
c'est cool!!
Alors les amoureux, ça roucoule...









:crazy_face:


Fait gaffe, moi aussi je vais tomber amoureux, ah mince, c’est déjà fait, j’ai pris le virus de ton travail. 


Merci Sylvain, mon projet de stand modelisme a été mis de côté le temps de trouver un terrain d’entente avec la mairie. L’autorisation est prévue pour cet été, tu tombes à pic.
niconathy amoureux du bois , sinon chez nous il y ce qu il faut ;)
niconathy t'a mis toute la collection et vive les morceaux de bois !
J’en ai oublié un ou deux:



Ok je
J'ai enlevé le coup de cœur par mégarde, je m'empresse de le remettre. Pour moi la figure 3 va bien
Je salue l'idée ! Merci beaucoup Sylvain, j'ai hâte de lire la suite !
encore un sujet passionnant à suivre!
;)
Merci à toi pour le partage!
As tu eu mon mp te demandant quelques renseignement à ce sujet?
Cordialement
merci , non pas de mp !
Ah? tant pis! du coup tu as croisé ma question première!
J'attendrais donc, avec impatience, la suite de ton article!
Merci encore
Rascal la question était ???
Miles mercis ! Vivement la suite
de rien
Super, un nouveau pas à pas qui s'annonce passionnant !!! Va falloir penser à publier des bouquins ! Sinon, tu as des exemples précis de choses à ne pas faire ? Ca pourrait être intéressant d'ajouter une partie bêtisier, pour connaitre les erreurs à ne pas reproduire...
le bêtisier c est prévu !
Je propose celui-ci : les arbalétriers sont 2 fois trop courts et ne renvoient pas les efforts en tension de l'entrait, mais en flexion alors qu'il n'est pas du tout dimensionné pour.
Dam hello ! un bel exemple de travail improvisé , un charpentier ne feras jamais ce genre d erreur ! et en navigant sur le web il y a des tas !!!
Dam en effet !!!
(Je précise que je ne connais pas le pseudo charpentier qui a fait cette charpente)
Mais comment aurait il dû faire sa ferme ?
Dans le cas des chevrons porteurs, le poinçon devient inutile, non ? Ou je suis pas réveillé...?
Niouniou il aurais du faire tout simplement une ferme latine ! c'est basique ,je ne comprend pas comment il s'est em.......... comme ça ?????????,,,,
ah oui, tout bêtement, la ferme aurait soutenu la faîtière et maintenu au moins localement l'écartement des 2 murs...
Merci sylvainlefrancomtois
Merci Monsieur Sylvain, c'est limpide, simple et clair. Tous mes encouragements, j'ai hâte d'en savoir plus.
Ty Coat
merci
A mon sens, en ce qui concerne les jambes de force en diagonale (fig 2), si les assemblage sont bien faits (par exemple tenon/mortaise et cheville), on a alors de vrais triangles. Or, un triangle est indéformable par nature. Dans ce cas, l'ensemble de la structure est indéformable, et la poutre horizontale ne peut pas plier. Si cette poutre plie, c'est qu'il y a des défauts dans les assemblages, et que l'on n'a pas de vrais triangles, qui alors se déformeront et pousseront la poutre horizontale à plier. Mais ce n'est pas un problème de choix de structure. Si les triangles ne se déforment pas, rien ne peut bouger.
A l'inverse, la fig 3 me semble beaucoup moins bien triangulée. Les deux supports en bas forment un triangle très plat. Or, plus un triangle est plat, plus il est facile de le déformer s'il est un tant soit peu mal réalisé. Donc, dans ce cas, le poids du toit est plus facilement transmis à la poutre horizontale. De plus, le pieds central vertical n'est triangulé que sur le haut. La encore, c'est la poutre horizontale qui le supporte.
Bref, "2" ou "3" , cela peut se discuter... On a fait plein de ponts avec des structures constituées de simples vrais triangles (comme la figure 2) , et ces ponts ont tenu.
si tu fais l erreur chez les compagnons tu as 0 pointé sur ton dessin !! et je pense pas qu ils aient beaucoup à apprendre !
ceci dit ,je l ai précisé qu il n y a pas de risques majeurs dans cet appareillage . Imagine quand même quelques tonnes de neige mouillée sur le toit ;) !!!!
Sylvain, je ne suis pas ingénieur en structures, mais j'ai quelques notions... Et j'ai un certain sens de ces choses là...
Personnellement, je ne crois pas qu'il y a des "erreurs" et des "0 pointés" dans l'absolu. Et surtout, je n'ai jamais cru dans l'"argument d'autorité": Ce n'est pas parce que le monsieur est "compagnon", et qu'il a répété ce que les générations d'avant on fait, qu'il a par nature raison... :)
Je suis du genre "ptit con" ;) J'aime bien questionner les choses, sortir des boites logiques, et surtout, ne jamais accepter un argument parce que le monsieur est censé "savoir".
Je n'aurais jamais pu être compagnon... ;)
Je me permets donc de maintenir mon commentaire:
Bien sur, il faut qu'elle soit bien réalisée.
L'argument du triangle indéformable n'est suffisant qu'avec le postulat que la matière est indéformable.
En l'occurrence, à ce que je comprends, Sylvain parle des forces de compression appliquées sur les ablaletriers qui pourraient les faire fléchir vers le bas (forces dépendantes de la pente du toit soit dit en passant)
Ça n'est donc pas du tout un problème de contreventement, mais plutôt de charge admissible. Ce qui peut être réglé soit par l'utilisation de plus fortes sections de bois, soit par des jambes de force.
En l'occurrence, j'imagine que si le choix à été fait d'utiliser des jambes de force, je ne pense pas que ce soit juste pour se faire plaisir avec des assemblages
Après, peut-être cette précision manque-t-elle dans les explications
je me faisais exactement la même remarque, un triangle est indéformable mais si l'une de ses partie fléchie, la conséquence est la même que de raccourcir l'un de ses coté et le "triangle" se déforme.
Du coup la fig 3 à l'avantage de diminuer les portées et donc les risques de fléchissement ...
J'ai exactement la même lecture. Le triangle est par nature indéformable si et seulement si ces éléments les sont aussi. Or le bois vis, travaille, se déforme, et fléchit sous les pressions. plus une portée est longue, plus ces déformations vont être importante, et plus l'effort de levier du a la compression dans le milieu sera importante. Après selon le dimensionnement de la poutre horizontale, le poids à supporter, et surtout la portée de la poutre, la solution 2 est très valable. (enfin je pense).
gatien fait l expérience !!
De la déformation des triangles:
Le triangle est par nature indéformable, même avec des poutres qui seraient déformables. La seule chose importante, c'est que ce soient de vrais triangles, et de vraies jonctions. Elles doivent être parfaites, c'est-à dire, sans jeu. S'il y a du jeu, le triangle se déforme.
Les contraintes sur les poutres en triangle ne sont pas des contraintes de déformations, flambement, etc, mais de tension/compression. Il suffit alors d'avoir des poutres qui acceptent les contraintes de tension/compression.
C'est ce qui fait que l'on peut faire des structures, bois ou métalliques, des ponts, des grues, des charpentes très longues, etc, alors que les sections des poutres utilisées sont bien inférieures à ce que l'on devrait mettre si on prenait la notion de "poids" supporté par chacune des poutres (qui elle, est liée à la notion de "flambement".
C'est toute la magie des structures triangulées modernes, depuis Eiffel, jusqu'au Pont de Millau, qui donnent l'impression de ne pas pouvoir tenir debout...
Par exemple, dans la figure 2, l'entrait fonctionne en tension. Toutes les forces contribuent à l'allonger. Pas à le déformer. On pourrait même mettre un câble à la place de la poutre, si ce câble est fait de telle sorte qu'il ne s'allonge pas...
Je sais, tout cela peut être assez contre-intuitif, et pourtant, c'est ainsi que cela fonctionne et c'est avec ces principes que les ingénieurs en structure travaillent. Cela leur permet de réaliser des structures modernes que jamais on n'aurait pu faire auparavant.
Kentaro parce qu ils travail toujours en tirant !! exemple les pont suspendus !
ici il n est question que de bois !!
en effet! Disons qu'il y a des pièces qui fonctionnent en tirant (tension), et d'autres en compression.
Toutenbois complètement , et la majorité de l agencement travail en tirant !
gatien j ai ajouté il y a quelques temps la 2bis qui est la bonne configuration (latine) pour plus de lisibilité !
hello les contrefiches doivent toujours être assemblées dans le poinçon et non sur l entrait se sont des règles de base que l on apprend les premiers jours en charpente !
je te met au defi de faire deux maquette (fig 1 et 2) ,de les poser sur cales simulant les murs ,et d y descendre un poids dessus , nous verrons ce qui se passe !
Remettre en cause les compagnons , relève du sacrilège!! ils ont tout inventés y compris l art du trait de charpente reconnu patrimoine culturel !!
questionner ,oui la curiosité est bénéfique ,mettre en cause le savoir faire des maîtres(que je ne suis pas) non !!
la triangulation de charpente travaille en tirant !! attention aux confusions !
Effectivement, si les contre fiches sont assemblées sur les poincons, en cas de charge importantes, l'ensemble arbaletriers/contrefiches pousse l'entrait vers le bas.
Dans le cas où les contre fiches sont assemblées sur le poincon et en face l'une de l'autre, elles se repoussent l'une et l'autre. Du coup les forces s'annulent.
J'ai tout bon?
Rascal ??? ta première phrase pose problème tu voulais dire entrait ??
Si les contrefiches sont assemblées sur le poinçon , elles tirent celui vers le bas ,mais comme les arbalétriers enserrent le poinçon au sommet ,il ne font que rediriger les forces sur l oblique ,vois tu ??
sylvainlefrancomtois ,le chapitre "taille de la charpente", c'est quoi ? Son dimensionnement ?
Bonjour
c'est sa fabrication, du verbe Tailler
Cordialement
oui c est cela (langage professionnel) tailler !
Bonjour, en charpente comme ailleurs la connaissance du vocabulaire est une étape importante dans l'apprentissage, quelques termes sont expliqués sur:https://lesdeuxours.fr/le-blog/
copeau j y viendrais rapidement !!
Merci pour ce post, et merci aussi pour le coup de gueule.
Je pensais être le seul à râler dans mon coin, mais je vois que je ne suis pas le seul...
Certains publient notamment sur youtube, beaucoup de choses, qui n'ont pas vraiment d'interêt, et pourtant ils ont des milliers de vues et d'abonnés... bientôt ils vont publier le moment ou ils vont aller "pisser"!!!
Pour revenir à ce post, encore un grand merci, même si je sais un peu travailler le bois, et sais construire un meuble, je ne me lancerai jamais dans la construction d'une charpente, quelle que soit sa taille sans prendre conseils auprès d'un professionnel, professionnel comme toi, sans vouloir te jeter des fleurs!
Se lancer dans de tels travaux, sans connaissances relève de l'inconscience!!!
Continue comme ça!!!
Cordialement.
merci
Cher Sylvain, il ne faut pas s'énerver... :) On discute, c'est le propre de ce genre de forum.
Je ne dis pas que le savoir-faire et l'expérience des Compagnons, c'est n'importe quoi. Mais par principe, je ne sais pas ce que c'est qu'un "Maître"... ;) . C'est mon coté cartésien, "je doute, donc, je suis..." ;) . C'est comme cela que l'on m'a formé à l'école.
Simplement, il me semble que l'analyse que tu fais peut se discuter. Une charpente, comme toute structure triangulée est soumise à des forces de compression et de tension. Par exemple, dans une ferme, la poutre horizontale entre les murs travaille en tension, pas en compression.
Seules de vraies triangulations peuvent assurer une rigidité maximale à une structure. Et la figure 3 ne comporte pas de vraies triangulations. Elle n'est pas nécessairement mauvaise, mais elle n'apporte pas de réelle amélioration par rapport à la fig 2.
Fais un tour sur google, "ferme de charpente", tu verras quand même une très très grande majorité de fermes basées sur la fig 2... Les gens qui les montrent, les artisans et les entreprises qui les font sont-elles des débutants ou des ignares ? Peut-être... Mais en tout cas, y en a vraiment beaucoup... :)
Dans le cas où on a quelque chose ressemblant à la figure 3, avec des jambes de force sur le coté, c'est surtout quand on veut avoir de la place au milieu (dans ce cas, le poinçon est réduit à sa partie supérieure avec un faux-entrait).
hello , il ne faut pas se focaliser sur les schéma de ce premier article , qui a pour but d expliquer seulement la physique de base , plus tard je vais entrer dans le vif du sujet et tu verras plus clair dans les explications !
pour partie tu as raison , la jambe de force est plutôt utilisée dans le cas d entrait retroussé , dans le cas d une ferme latine on parle plutôt de jambette qui doit rattraper les derniers fléchissements .
Les assemblages , les bois , etc ... ont tous un but convergeant vers la solidité sans faille des travaux de charpente , et une ferme doit remplacer un pignon ce n est pas rien !!
mais bon tout ceci sera expliqué
Ok, merci! En tout cas, c'est très intéressant, merci pour tout ce travail!
En ce qui concerne le fait de relier les contrefiches au poinçon, plutôt que sur l'entrait, oui bien sur, car sinon cela fragiliserait l'entrait et la pression doit être sur le poinçon, de chaque coté, de manière à ce que les pressions de chaque coté s'annulent.
Mais c'est une autre question et il ne faut pas mélanger.
Donc, pour être plus clair, ok, la fig 2 n'est pas parfaite car les contrefiches s'appuient sur l'entrait, mais le fait d'avoir des contrefiches en diagonales reliées au poinçon ne me semble pas rédhibitoire et sur ce point, elle me semble plus efficace que la figure 3.
encore une fois ce n est que des schema pour expliquer les forces , suivants les cas l agencement géométrique d une fermes s adapte !
Hello,
Un grand merci pour ce tutoriel qui permet d'entrer de façon pédagogique dans un domaine où on peut avoir l'impression qu'il suffit de trois bouts de bois pour faire un toit.
Tout à fait dans le timing puisque Madame m'a demandé une (modeste) cabane de jardin !
Permet aussi de mieux visualiser et apprécier les magnifiques charpentes que l'on voit dans les monuments anciens ou modernes.
Je suis arrivé aux figures incriminées et partage le fonctionnement mental de Kentaro, Aïe !
Mais je n'entre pas plus dans cette discussion pointue et dépourvue de smileys... chat échaudé... ;-)
La suite, vite ?!
je suis menuisier , et quand j ai embauché chez "maître jacques" en charpente , nous avons eu beaucoup de conversations dans ce genre , la logique en charpente est souvent illogique aux novices !!
Bon je vois que ce débat suscite de l intérêt , je vais mettre tous le monde d accord !
Voici deux structures de ferme latine standard , tout avec les mêmes sections .
laquelle des deux s écroulera en premier ??
vous pouvez faire les maquettes (assemblages remplacés par des mors d âne et vissés) avec des lattes (bien de fil et sans nœud) et éprouver l ensemble avec un serre joint au sommet .
Ah c'est pas bien, ça... ;) Pour la 2, on a dit qu'il fallait les contrefiches s'appuyant sur le poinçon. On est d'accord la-dessus. Il faut donc comparer la 1 avec une 2 modifiée avec contrefiches s'appuyant sur le poinçon.
De ma propre expérience , beaucoup font l erreur de construire comme la 2 , et ici c est 0 pointé en dessin de charpente !! ;)
j ajoute que ce que tu dit est vrais , la 2 avec les contrefiches sur le poinçon est tout a fait viable , les jambettes sont ajoutées en cas de grande portées pour recevoir le dernier fléchissement !!
Ah ben alors, on est d'accord depuis le début! :)
Kentaro je te cite "la fig 2 est constituée de vraies triangulations, qui sont par nature indéformables. Si elle est bien réalisée, elle ne bougera pas."
c est ici que le débat à commencé , tu précises bien réalisée ,mais pas que tu assemblerais les contrefiches dans le poinçon !
C'est vraiment du petit lait ce post, ça m'éclaire beaucoup sur le principe de triangulation, qui est plus complexe qu'il n'y parait. Les commentaires aident aussi à comprendre en suscitant la réflexion ! Merci beaucoup !
de rien c est un plaisir pour moi
Bonjour Sylvain,
Très bonne idée que cette "vulgarisation" que j'attendais également. La méthode est simple, détaillée avec de solides appuis.
J'attends la suite avec impatience.
Jean-Pierre,
moi aussi ;)
Très beau travail utile bien documenté, merci beaucoup
Tullagh
de rien ;)
Bon, ben en fait, je sais pourquoi j'ai réagi un peu vivement au commentaire de Sylvain sur les "débutants" qui font des charpentes comme la figure 2... ;)
En fait, le bel hangar de mon grand-père est construit comme cela, avec un était de 5 m de long, un poinçon central, et deux contrefiches en diagonale (mais s'appuyant sur le poinçon). Cet hangar a près de 100 ans. Il a été démonté (il suffit d'enlever les grosses chevilles qui dépassent), déménagé et reconstruit à l'identique par mon père il y a 50 ans. Il n'a pas bougé depuis. Les étaits supportent de plus des plots entiers de bois, rangés la-haut je ne sais même pas comment... Rien n'a plié... :)
Mon grand père n'était pas charpentier, mais modeleur. Mais il avait quelques copains bons charpentiers (dans la mine voisine, il fallait savoir faire de bonnes charpentes...).
Impulsivité et nature rebelle de la jeunesse... je connais et compatis !
On se calme, on s'assoit et on écoute les Anciens ;-)
Bref, la suite ?
ça vient ça vient !!! :)
poinçon toujours tendu par la poussée des contrefiches et soutient la flexion naturelle de l'entrait
parfois un tirant metal à lanterne soutenu par une "aiguille" au poinçon au niveau des blochets dans les fermes sur poteaux
+1
Gros débat, ce sujet suscite un grand intérêt et c'est super, j'apprends avec les articles et aussi avec les commentaires, bravo Sylvain!
;) y a du boulot !! et ils m ont mis la pression !! mais bon j aime ça !
Hello les boiseux!
Je me permets une petite intrusion dans la discution.
J’ai réalisé il y a une bonne dizaine d’années la cabane des gamins. À cette époque aucune formation dans le bois, juste envie de faire. Je me souviens avoir regardé quelques photos sur le net. J’avais plus envie de reproduire pour « jouer »au grand (Charpentier) que de faire un vrai travail de charpentier. Pour cette cabane j’ai réalisé 3 fermes avec des chevrons récupérés dans le transport. J’avais aussi dans l’idee De poser des tuiles sur le toit. Un copain avec sa belle charpente tradi dans le garage, m’a permis également de comprendre le fonctionnement. Étant lui même en auto construction (sauf la charpente), et très curieux , il avait pris un max de renseignements sur cette œuvre d’art.
Bref, avec le recule je me dis que j’ai chercher finalement à bien faire, mais sans vraiment de calcul, ni conscience des risques encourus par mes marmots. Si j’avais posé mes tuiles (1 tonne), la structure de la cabane aurait elle tenue? Pas si sûr. Si les fermes étaient bien faites (sylvainlefrancomtois je compte sur tes lumières) la qualité des morceaux choisis était elle a la hauteur (noeud par exemple).
Il est très clair pour moi que chaque corps de métier nécessite un apprentissage pour connaître certaines bases importantes. Outre les centres de formation, les bouquins sont très utiles, et beaucoup plus sur que you tube. Avant de faire sa propre soupe, apprendre celle des anciens avec leurs astuces permet ´ selon moi , d’avoir des bases solides pour faire ses propres expériences.
Merci sylvain pour tout ce travail de connaissance partagée. Vivement qu’on te retrouve en librairie.
correction :
La recherche générale est correct, ça à tenu ;) et j ai vu bien pire !!
Pour des tuiles , c est effectivement un peu léger il aurait fallut quelques améliorations :
Pour les assemblages, dans le cas ou tu visses , il est préférable de faire des embrèvements (mors d âne en menuiserie ) avec désabout en pression .
Les fermes en bastaings 63/150 préférable!
La ferme et le portique devraient être un seul ensemble .
Des jambettes manquent sous l arbalétrier qui rejoignent l alignement des contrefiches sur les poteaux ,et ainsi soutenir le poids de panne intermédiaire .
Les chantignoles un peu raides !
La sablière normalement verticale avec délardement !
Sinon en finition , on fait des pentes aux sorties de pannes ,et on casse les arêtes avec un rabot à main et beaucoup de fer en une passe !
11/20 pour une première !!
Merci pour ce retour.
Alors je vais argumenter mes choix, tout en sachant que j’ai tord.
La section, faire avec ce que l’on a, et je me suis posé la question d’une section plus grande. Je trouvais l’esthétique lourd au vu de la dimension de la ferme (3 mètres).
Pour les assemblages, tout est cloué. Pour les mors d’âne , juste la flemme, et je me suis dit vu les dimensions, c’est bien bon. Mia culpa... une grosse semaine par ferme et tout à la main.
La ferme et le portique d’un seul tenant, je voyais pas comment faire. Sûrement par ce que mes sections sont trop petites.
Pour le reste manque d’expérience et de compréhension des positionnemenos, ça va venir.
Petit truc non visible, le poinçon a un tenon qui coulisse dans une mortaise dans la poutre horizontale.
Merci pour ton retour très instructif.
niconathy sinon la logique était là et ça ne c est pas écroulé ;)
Merci sylvainlefrancomtois , je suis effectivement content de moi par la tenue dans le temps.
Je t'affole de tes tutos!
raffole plutôt !
merci
sylvainlefrancomtois : Merci pour cet article. J'attends la suite avec impatience.
Kentaro : moi, j'aime bien les p'tits cons :-) ... mais je doute "qu'un vrai" triangle parfaitement réalisé ait existé un jour. D'où l'intérêt de faire des structures réelles et d'appliquer des méthodes ayant fait leurs preuves ... surtout pour habiter dessous.En plus, on travaille du bois ici et le bois est une matière vivante qui bouge, cela implique surement de s'écarter des théories issues des études de résistance des matériaux.
Après, personne n'interdit d'explorer les choses par soi même (au contraire !), mais perso, je choisis les bases forgées par le compagnonnage pour ça.
Amicalement
Regis
+1 perso je disais à mes apprentis "le jour ou tu maîtriseras, tu pourras t éclater ,expérimenter et inventer ! en attendant apprend et ce jour viendra !"
Tout le monde ne fonctionne pas selon ce mode qui a tendance à brider l'enthousiasme et la créativité, à décourager certains élèves et engendre in fine une répétition monotone. Sans parler de la manière de certains "maîtres", dénués de pédagogie (on en a tous connus...).
De nombreux créateurs, et pas des moindres, sont autodidactes et procèdent par essai/erreur, au prix d'un temps allongé mais avec le bénéfice de résultats différents et innovants.
Les premiers hommes à s'essayer à réaliser une charpente n'avaient pas de référentiel et ont sans doute reçu des poutres sur la tête, faisant rire leurs voisins, tout contents dans leur hutte de paille ou dans leur tente !
Évidemment, il y a des basiques : gestes à maîtriser (travail personnel), connaissances primaires (expérience collective), sécurité, comme dans le cas présent.
Mais bon, on cause on cause... La suite ?!
L'empirisme est une chose ! Quand on a coupé un morceau de bois trop long, on le coupe plus court, pas de bol il est trop court ! On en fait un autre en sachant que la vérité se trouve entre les deux ! C'est là que l'apprentissage est utile fait gagner du temps et pas seulement ! Les plus grands (que je ne suis pas) ont appris, avant de tordre les règles à leur guise en connaissance de cause pour ne pas jouer à l'apprenti sorcier !
kajmed ++1
Nicoel moi je te suis! Ta logique ne correspond pas à tout le monde, mais l’apprentissage classique non plus. Certains ont besoin de suivre le maitre pour apprendre, d’autres ont besoin de tomber pour apprendre. Certains écoutent le maitre et répètent sans vraiment comprendre, d’autres ne comprennent que parce qu’ils sont tombés tellement de fois qu’ils ont été obligés de comprendre pour continuer. Certains ont tout appris du maitre mais n’ont dépassé leurs connaissances que lorsqu’ils ont commencé à désapprendre, d’autres ont fait de grandes trouvailles parce que leur chutes répétées les ont conduits dans des territoires inexplorés... il faut de tout pour faire un monde. Mais la grande lumière vient souvent quand tous ces gens se rencontrent.
Mouais... Mais on parle de charpente là. La chute est interdite car elle se fait sur la tête des clients...
titimaster oui c’est vrai! Je parle d’apprentissage, pas de réalisation! Quand on construit en vrai, on ne fait pas sans savoir!
En bon menuisier: avec l'étrier métallique, j'aurais fait joindre les arasements, mais si j'ai bien compris c'est pour éviter de pousser les murs en cas de forte charge?
hello Jacky en traditionnel , l entrait est Massif ,on à l habitude de laisser l assemblage flottant pour pouvoir travailler plus le poinçon en tension en hiver (neige) . l étrier lui retient par suspension l entrait en position "naturelle" l assemblage n étant pas chevillé ,pour éviter sa flexion dans le temps (propre poids , plafond suspendu ,et parfois plancher même si c est un comble perdu) .
Dans des petites fermes , on le chevillait quant même (ex portée de 4 mètres) !
Par contre dans le cas d une latine avec un entrait moisé , on assemble avec arasement fixe , le tenon boulonné dans entre les moises .
Bon je dois faire ma charpente cet hiver avec un ancien charpentier ça m'évitera d'avoir l'air de rien savoir ce tuto ! Et c'est passionant merci !
de rien ;)
Merci Sylvain, et plein de courage pour la suite, c'est très intéressant !
merci
Viens de lire la suite, ça se complique mais reste accessible et progressif, merci !
Attention à ce petit détail "graphique" : dans quelques illustrations, la texture grise choisie pour certaines pièces de bois pourrait laisser penser à un sens de fil du bois incorrect.
C est pas faux !! merci de l avoir précisé ;)
A tous , j inclus dans le texte du pas à pas les remarques pertinentes qui pourraient aider à la compréhension (comme celle ci dessus) en nomment l auteur de la réflexion !
Voici les photos d'une ancienne usine (mon terrain de jeu quand j'étais enfant).
Donc c'est une charpente avec fermes à la Palladio , sur blochets et plus encore.
hello , oui en Palladio mais pas de blochets ,mais en réseau secondaire un portique sur un entrait apparenté mansard , le tout destiné à recevoir un coyau (changement de pente sur le pan) !vois tu ?
Toutes les combinaisons sont possible en charpente , le but ultime étant toujours la solidité et pérennité dans le temps !!
Je découvre et c'est genial! Merci beaucoup sylvainlefrancomtois
de rien ;)
Un grand merci pour ce pas à pas qui arrive presque au bon moment.
Claude
pas de quoi ;)
Cher Sylvain, cher Kentaro, Monsieur LUIGI CREMONA devrait vous mettre d'accord. Je vous invite à potasser sa méthode.
Par ailleurs dans vos dialogues J'attends avec impatience vos théories sur les descentes de charges, les poutres au vent et autres palées de stabilité......
hello je ne suis pas ingénieur en construction bois même si je connais le principe de l épure de Cremona et Les descentes de charges ,je ne maîtrise pas tout !
Le schéma méthode graphique Crémona est d ailleurs plus haut même si je ne l ai pas mentionné en tant que tel !
J aborderais les calculs de charpente principaux à faire dans le chapitre de l étude !
le but de ce pas à pas ,ce n est pas de faire un traité (je ne suis pas diplômé pour cela je l ai présenté en introduction) mais de rappeler des notions de bases de charpente pour que les gens se pose les bonnes questions .
Les poutres au vent et autres palées de stabilité , bêtement on appelle cela contreventement .
Tu tombes à pic, je viens de finir mon livre de chevet... je vais sûrement mettre plus de temps pour lire et surtout assimiler que toi pour nous décrire ces détails. C’est comme pour les escaliers, je crépite à la lecture. Encore un
Je regarde tout ça sérieusement, je m'instruis!
Tenons/mortaise de 30 mm d'épaisseur... tout le temps meme sur des sections plus importantes ?
oui en général , cela est suffisant car un tenon/mortaise de charpente est seulement une liaison et ne doit pas "travailler" c est l embrèvement qui doit le faire !
on peut par exemple faire une charpente sans tenon ni mortaise ,auquel cas ce sont des boulons qui lient ,et eux même ne doivent pas avoir à travailler au cisaillement !
Tout l art du charpentier est là !
Par contre dans d autres travaux monumentaux , ils faut parfois faire des tenons doubles ,ou plus épais , mais jamais plus du 1/3 de l épaisseur du bois ;)
les charpentiers ici préstent corrigeront si je dit des erreurs !
ça se tiens comme logique, très différente de celle de la menuiserie... Mais c'était annoncé au début : menuisiers oublié ce que vous savez xD
Gcloarec personnellement , quand j ai embauché chez un charpentier ,c est ce qui m a été le plus difficile ! mais on y arrive vite il suffit de cloisonner son esprit .
La seule chose vraiment en commun c est le domaine de l escalier ;)
sylvainlefrancomtois
Donc les fermes modernes standard dont les pièces tiennent par des plaques métalliques agrafées ne sont pas particulièrement fragiles ?!
Nicoel non c est très solide ! par contre je ris un peu en ce moment quand je vois des charpentes en fermettes complètement écroulées comme château de cartes aux intempéries !
Perso je n ai jamais aimer les fermettes encore moins les poser ;)
Les charpentes traditionnelles , même si la couverture s envole ,elles ne s écroulent pas !
sylvainlefrancomtois bonjour
Il me semble que l'escalier était un travail de charpentiers et était exécuté en même temps que la charpente. Mais je me trompe peut-être.
Cordialement
Rascal hello j ai déjà répondu à cette question !A la base oui , au départ les charpentiers étaient les seuls à travailler l escalier bois puisque intégrés dans la charpente , puis il y a eu des spécialisation (grande cognée et petite cognée)
Enfin il y a eu les charpentiers en menus huis , (menuisiers) qui on eux aussi fait des escaliers puisque issus des même bases .
sylvainlefrancomtois
à propos de fermes à la Mansart, connais-tu cette contrepèterie que j'adore :
Mansart est immonde et Le Nôtre est bien vain.
sauf leur respect bien entendu...
double contrepèterie !
pas mal !!
Très flatteur pour l'orateur!
kajmed
Surtout très prétentieux.
Et encore, j'ai pas osé mettre la photo
Ha, les poteaux, merci
Effectivement internet est peu dissert sur le sujet.
de rien , le pire c est que tous les tableurs (exel etc ...) sont payant !!!
Il existe aussi des tableurs libres. J'utilise LibreOffice Calc qui est quasi identique à Excel et propose les mêmes fonctionnalités.
dneis hello , je parlais de tableurs déjà tout fait pour les charpentes bois ! mais merci quand même !
ah pardon, j'ai mal compris !
J'ai cherché rapidement, je n'ai pas trouvé d'abaques pour le flambement, seulement des tableaux donnant les formules de charges de flambement (à calculer donc en fonction des caractéristiques de la poutre en question) pour différentes conditions d'appuis/encastrement.
dneis oui tout le problème est là , les tableurs pros sont payants !
Très intéressant! Merci beaucoup.
de rien ;)
Voici un autre type de charpente, les dimensions du hangar parlent d'elle même.
C'est pas du bois, mais le travail m'a également bluffé.
magnifique !! en plus j ai une passion pour le béton d art !
A la base on est dans du purement utile! Protéger un dirigeable. Mais au final c'est une cathédrale superbe qui a son siècle d'existence
Franchement c est du super boulot. Je ne serai jamais charpentier mais j adore ça.
Merci de partager ton expérience
profite ça me fait plaisir !!
Merci pour ce partage et ceux qui ont précédé ! Ci-joint une des fermes de la grange de Daubeuf la Campagne (Bois datés de 1488-89)
superbe ,en triple entrait j avais jamais vus !! il y a beaucoup de "charpentes" actuelles qui ne dureront pas autant ;)
C'est le moins que l'on puisse dire
Sur cette ferme, ainsi que sur toutes les autres fermes de la grange, il y a un assemblage qui réunit le pied du poinçon à l'entrait. je joins 2 petits croquis.
copeau ok ce sont des moises ,assemblées par faux tenons et clefs !!!
Cela permet de monter la ferme sans problèmes de remontage in situ !
Inventifs les anciens , le monde de la charpente est immense ,le plus souvent caché aux yeux de tous dans les combles !!
sylvainlefrancomtois Je ne suis pas du métier mais ils faisaient des prouesses et même aujourd'hui on se pose parfois des questions sur les méthodes de ces grands bâtisseurs!
Bricolo36 +1 je suis souvent bluffé aussi de leurs travail ,surtout avec des bois généralement difformes !!
Bois équarris>>>>Niveau de dévers…
on n'entaille pas les entraits au passage du poincon mais on entaille le poincon !!!
Intéressant débat! , développe un peu ton propos svp ! car il y a plusieurs cas de figures !
Au risque de dire une bêtises et au vue de la photo j ai bien l impression que l entrait traverse le poinçon de ce fait l entrait n' est pas entaillé.
Stef64 Parfaitement , le poinçon de la photo est entaillé et les entraits passe au travers !
Bonjour, sur la figure 3, au fond c'est un aretier que l'on aperçoit et non un arbaletrier, de fonction réciproque a la noue (angle saillant <=> rentrant)
complètement !! je rectifierai avec une autre photo ;) j ai confondu ! merci de l avoir noté !
J'ai un peu de retard de lecture :
Dans ce passage le terme de porte à faux m'interroge... Je ne vois pas où se trouve le porte à faux nommé, quelle est la particularité de la figure 2 ?
Il faut dire que j'ai eu tendance à l'utiliser plus pour les grands véhicules qu'en charpente...
[edit] En revenant sur la photo je pense avoir saisi : c'est le décalage entre le point d'appui de l'arba et la triangulation du dessous ??
oui exact !! c est quand l entrait dépasse le poteau ou le mur ce qui recule son point d appuis , a cet endroit on peu placer une jambe vers l arba !
Au file des ballades, encore une bien belle pièce de bois :) dans un vieux château
sympas et "indéformable" !!! triple entrait et double arbalétriers/jambes , on dirait presque une alsacienne !
sylvainlefrancomtois pourtant elle est pas de ce coin, mais de Charente Maritime ! Mais effectivement, c'est une très belle pièce
Whaouuuu super instructif bravo en merci Monsieur
merci ;) mais pitié pas de monsieur
Tu as un don pour poster l'article qu'il faut quand je m'arrache les cheveux sur une question !! Je peux dimensionner mes pannes le coeur - plus- en paix maintenant ! xD
Pour ce qui est de la compréhension du dernier article il est clairement plus technique mais c'est une très bonne chose je trouve !
Je vais avoir besoin d'une 2ème lecture pour rentrer dans le détail, mais normal pour un sujet complexe ! Faudra que j'essaye de calculer moi-même le port de charge pour voir s'il "suffit de suivre".
une p'tite question : l'établissement en charpente... Venant de la menuiserie il semble découlé du japonais pour moi....
Encore une fois superbe travail !
hello j ai essayé de faire simple !!!! mais c est pas simple a faire ;)
L établissement en charpente n a qu un point commun avec la menuiserie c est celui d identifier les pièces à leurs emplacement !
par contre ils sont complètement différent d un métier à l autre ! même moi j ne maîtrise qu une petite portion de l établissement de charpente (pavillon carré) , il vas falloir que je potasse !!
Pour te répondre, pour moi, c'est parfaitement clair, avec Google pour définir quelques mots.
cool merci du retour !!
Bonjour à toi!
Je continue à suivre ton étude avec beaucoup d’intérêt. Merci infiniment pour le temps consacré!
Dans ton chapitre sur le chevronnage, tu dis que le bombé dois être posé sur le dessus ( ce que je comprends d'un point de vue mécanique) et c'est ce que j'ai toujours entendu partout!). Mais lors d'une discussion avec des couvreurs, ils m'ont dit qu'ils préféraient travailler sur une charpente légèrement creuse, plutôt que droite, parce que les ardoises plaquent mieux.
Que penses tu de cela?
Cordialement
Ils ont surement leurs raisons valables dans ce sens , sauf que en charpente il doit toujours y avoir "la bulle" pour rattraper le fléchissement naturel !
Perso je me suis trompé une fois sur un toit , la panne à continuer à fléchir ,et chaque fois que je passe devant cette maison on ne vois que ça ..
Un bois inversé est un cauchemar ! parole de charpentier !
Bonjour Sylvain,
Je suis un grand passionné de charpente et je suis très heureux que vous partagiez une partie de votre savoir comme vous le faites déjà sur les escaliers.
Il y a une chose qui est dîtes chez les Compagnons du devoir c'est que les savoirs doivent être enseignées. Mais vous allez au delà en les partageant. C'est, je pense, un acte solennel. Vous poursuivez ainsi ce que nos ancêtres ont acquis et ce qu'ils nous ont laissé à voir comme merveilles!
Une Très Grand Merci à des personnes comme vous ou Bobo Boileau :) ...
Geoffrey
hello merci du retour , c est en fait vraiment un devoir pour moi d essayer de diffuser toute la substance de nos professions ! surtout en essayant de toucher les jeunes !
cette semaine au 13 h , JJP a présenté un reportage qui dénonçait le manque cruel de menuisiers (qualifiés) 156000 postes non pourvus), c est énorme .
mon travail j espère apportera ma petite pierre pour remédier à cela !
par contre j ai pas compris "Bobo Boileau" ?
156000, c'est pas abusé ?!
Ça représente environ 1500 pros par département 8-O
Faut pas écouter JP Pernault, Radio-Paris ment, Radio-Paris ment, Radio-Paris est allemand...
Sinon, ton fil toujours agréable et instructif ;-)
Nicoel +1
hello autant pour moi 156000 postes qualifiés toutes professions confondues, et 10 000 ou on parle de vrais menuisiers , pas de poseurs de fenêtres ou plaquistes improvisés !!J insiste et pour une fois je crois aux chiffres (via mon réseau ,beaucoup de places peu d embauches !!
tv-programme.c...e_5b7ec9a1d1a55
Merci pour votre réponse Sylvain :)
Bobo Boileau pour Boris Boileau. J'adore ses vidéos et ses publications.
Pour ce qui est du manque de menuisiers qualifiés c'est vrai mais parfois les premières expériences que vivent les apprentis sont très décourageantes. Mon frère a effectué ses études en menuiserie (cap, bep, bac pro, Bt cae et bts productique bois) et les stages qu'il a effectué ne lui ont pas laissé une belle image du métier. Bon je parle de menuiserie ici pas d'ébénisterie ou autre ... Et pourtant il aime le travail du bois.
Et c'est sans parler du contexte fiscal qui plombe les artisans honnêtes.
En tout cas, cela demande réflexion c'est vrai.
ghibon complètement d accord il y a de mauvais singes , perso (seulement ouvrier) j ai toujours été exigeant avec les apprentis, mais juste et disponible à leurs questionnements (il n y a jamais de questions idiotes, (c était ma devise) ) , ils me l on toujours bien rendu .
Pour ce qui concerne la fiscalité c est un désastre, à mon avis les politiques n ont aucunes idée de la richesse artisanale et autres agriculture qui sortent du moule en tant que telle !
Je pense même qu il en ont peur , les gens "libres" ont toujours été guettés d œils suspicieux , quand ils laisserons les gens vivre bien de leur activité avant de taxer tout azimut ,on balayerait pas mal de problèmes !! .
Et cela n est pas nouveau toutes les coteries, compagnonnage, syndicat de l époque etc.. ont des histoires dans ce sens contrôlés en permanence !
Un cadre oui !! des chaines non !!
+1 sylvainlefrancomtois
Sylvain, ce pas à pas est fantastique, c’est une mine d’or. Je ne suis pas compagnon, je ne suis pas charpentier, simplement architecte. Tes infos sont justes, très bien illustrées et très complètes. La sécurité d’une charpente est une grande responsabilité, tu as aussi bien fait de le souligner. Dans la profession, je ne dessine plus souvent de charpentes en bois, mais la qualité de la construction est un élément essentiel, surtout que nos bâtiments peuvent abriter des milliers de personnes. La charpente n’est pas un jeu, ton savoir doit etre transmis. Je te lève mon chapeau et te remercie à défaut de pouvoir te serrer la main.
merci !! c est encourageant ! c est que mon maître charpentier m a bien transmis sa philosophie que je transmet à mon tour ! !
Merci Sylvain pour ce travail si complet. Que de matiéres à étudier puis à mettre en pratique! J’ai un modeste projet de charpente à faire d’ici quelques mois. Juste le temps de digérer tout ce que tu nous légues et en faire mon miel avant de tracer les premiers traits sur le papier puis de passer à la réalisation.
Un grand merci.
Ty Coat
de rien
_ + 1 !
Ça me donne aussi envie de relancer un projet de bungalow.
Petite construction qui pourrait partir sur de bonnes bases grâce à ce pas-à-pas
;-)
fonce !!!
Merci Sylvain pour ce partage et dommage qu'il suscite des polémiques.
On peut prendre connaissance des infos et en prendre et en laisser, c'est la tolérance ou simplement le libre arbitre que chacun de nous peut revendiquer.
Quand il s'agira de passer à l'action, c'est à dire à la réalisation, chacun prendra ses responsabilités et assumera ses choix.
Personnellement, je trouve que le partage de Sylvain a le mérite de la synthèse pour le béotien que je suis alors Merci Merci et Merci encore !
Gérard
;) merci
Merci infiniment sylvainlefrancomtois ! Ce pas à pas est arrivé pile au moment où la charpente commençait à me faire de l'œil et où j'avais donc envie d'en savoir plus.
C'est parfait pour comprendre comment cela fonctionne et j'ai appris beaucoup de choses. Je ne regarde plus les bâtiment -et les charpentes- de la même manière maintenant (déjà que la participation à un chantier de construction d'un mur en pierre sèche m'avait fait découvrir cet autre matériau de construction qu'est la pierre il y a deux ans).
Je ne sais pas si c'est prévu, mais j'aimerais bien savoir comment en pratique sont tracés les différents assemblages. Sur les embrèvements de la porte de grange que j'ai aidé à construire, on a eu du mal à faire des assemblages parfaits car les bois étaient bruts de sciage et donc pas bien "droits". Si jamais tu as des ressources là dessus... ou des bouquins à conseiller...
ça va venir !! mais j ai du taf avant !
sinon vos embrèvements ne sont pas si mal sur la porte ,disons que pour qu ils soient parfait , le corroyage aurait été de rigueur !
au final pourvus que les desabouts collent en pression ça fonctionne !
En charpente c est " un peu plus facile " du fait que les assemblages sont plus gros , et sont "piqués" ce qui permet de contrebalancer les défauts ! j expliquerai tout ça en son temps !
dneis , voici une bonne source d'information pour ce que tu demandes : Apprendre la charpente - Le piquage en attendant Sylvain :)
Il t'explique le principe sur bois équarri, puis sur bois contenant des flaches par exemple.
Génial. Je sais que c'est un boulot énorme, je patienterai donc.
Merci. Pour les embrèvements, j'ai raboté un peu certaines faces des poutres qui étaient trop vrillée, mais grossièrement. On a effectivement fait attention que tout soit bien en contact dans les embrèvements au montage.
Oui, c'est le piquage qui m'intrigue...
Merci encore.
titimaster très très bon site et video !! le charpentier qui fait cela est compagnon , je suis tout petit a coté ;)
dneis c est ce qu il fallait faire , parfois en charpente, on rabote un peu des endroit trop tordu ou vrillé pour faciliter un peu le traçage et assemblages :)
Je n'ai pas encore fini, mais je ne peux m'empêcher ce commentaire : C'est juste génial ! J'adore tout ce que j'apprends ! Merci, merci et mile fois merci ! Je prends mon pied :D
Juste une petite remarque, je n'ai pas compris de manière claire le pourquoi de la différence d’établissement entre la panne en dévers et la panne d'aplomb. Peut-être y a-t-il un schema sur lequel se reporter expliquant avec des poussées ?
bon .. par contre, j'ai rien compris au lignage
Et comment fait-on pour trouver le sens de pousse de l'arbre. Quand il est sur pied, ça va, j'y arrive
, mais devant un poteau équarri j'ai peur d'avoir une chance sur deux...
sens des nœuds, des flammes de sciage , du flache, mais parfois on peu se tromper parfois c est pas évident ça m est surement arrivé , dans le doute toujours essayer de trouver !
Noté
la panne en devers, l établissement sur le creux car elle vas avoir tendance à descendre dans le sens de la pente donc plier , et panne d aplomb sur le bombé c est le toit qui la pousse depuis l extérieur ! sinon c est le même signe .
le lignage sert à pouvoir avoir des références d équerre, de niveau , d aplomb pour faire des assemblages corrects sur un bois tordu , vois tu
imagine une une bûche et tu lui assemble 4 bois dans les 4 directions , comment tu fait pour prendre les mesures et placer tes bois bien d équerre sans références ????
Oui, j'ai bien compris le principe, mais pas l'explication...
titimaster hello qu est ce que tu ne comprend pas , à quoi cela sert vraiment ou comment on trace ???
Explique moi c est intéressant de savoir si je dois retoucher mon article !!
sylvainlefrancomtois C'est bon, en 2eme lecture, j'ai tout compris et c'est assez clair. Je devais être trop fatigué hier ;)
titimaster ok, et surtout n hésite pas a poser des questions ;)
J'ai beaucoup de retard sur toutes tes publications, mais j'aurai bientôt plus de temps pour potasser tout ça!
hello Jacky ; )
Je suis loin je reprends depuis le début!
Dans: Les différents assemblages de charpente. > Le moisement ou moisage. > Le double moisement (Tu renvoie à la figure 4, il me semble que c'est la figure 5). J'ai encore du boulot pour faire mon retard. Je me régale toujours à suivre tes travaux!
Enfin un qui suit !!!!! : je rigole !! bien vu ,merci Jacky c est rectifié !
sylvainlefrancomtois
Ah les problèmes de tension dans les charpentes, vaste sujet !
Ca m'en rappelle une autre (de contrepèterie) :
"autrefois les jeunes filles pratiquaient volontiers le tennis en pension"
lolll tu sort !!!!
Impressionnant ce chapitre, tu prends le temps de dormir ? J'ai de quoi m'user les yeux. Super intéressant !
merci jacky , et corrige si il y a des manques ou choses bizarres ;)
Déjà comprendre dans un premier temps
kajmed +1
Un grand merci sylvainlefrancomtois ! Génial « tes notions de base » :crazy_face:.. et c’est très pédagogique .. si tu as l’occasion dans l’yonne de visiter le château de St fargeau dont les charpentes sont accessibles. La charpente des tours est incroyable notamment celle de la tour des cuisines qui est évidée..
C'est malheureusement devenu impossible pour moi! mais je connais "virtuellement cet ouvrage !
tout le savoir faire des anciens est toujours un régal ,merci de ces belles photos ;)
J'aimerais savoir si j'ai bien tout compris! Dans le traçage de la demi ferme de croupe.
J'exporte les empreintes de pannes, j'obtiens le bas de l'arbalétrier et le dessus du chevron d'arêtier est déterminé par le dessus du délardement. Je trace la largeur de l'arbalétrier déterminée au départ et le reste constitue la largeur du chevron d'arêtier. les deux pièces sont empilées et de même épaisseurs.
En croupe les pannes s'assemblent entre les arbalétriers et chevrons tandis qu'en long pans les pannes passent au dessus des arbalétriers.
complètement ça !! les pannes sur les arbas en ferme droite, et en "lierne" (contre les arbas dans les demi-fermes d’arêtiers (dans mon exemple) .
En deux pièces c 'est cela , parfois on fait du bois sur liste en fonction de la retombée totale en une pièce (gros bois très large) !
On peut aussi faire le délardement à ras des pannes, et les chevrons viennent en coupes à l’arête cloués au dessus de l'arba !
Et enfin on peut mettre les pannes sur l'arba, avec des échantignoles entaillées d'angle .
C'est au choix et en fonction des bois disponibles et des aménagements sous combles , vois tu ??
Ça va je suis un bon lapin ?
moi, je suis perdu
Ce chapitre va me demander une concentration de lecture que je ne peux pas m'offrir en ce moment :(
titimaster hello commence bêtement par la pyramide régulière toute simple , tu vas piger vite !
ah oui alors!!!!!!!!! c'est intéressant n'est ce pas ?
Super intéressant et je m'aperçois que pour les maquettes je me suis cassé la tête pour des choses que tu expliques simplement. Il faut que je reprenne ma lecture plus haut, j'ai passé un bon nombre d'articles.
C"était fait exprès !! maintenant tout s'illumine ;)
Dans le chapitre: Le poids d'une couverture, si cette toiture est sur poteaux, j'ai calculé le poids de la couverture portée pour l'ensemble 11.64m x 14.10m = 164.1 m2 164.1 x 197.48kg/m2 = 32411kg 32.4T 32.4T + poids des débords + poids des fermes !!! Je suis impressionné! Mon calcul est il juste?
hello ! oui c'est juste 197.48 kg/m2 charges permanentes + ponctuelles cela fait bien 32.4 T
imagine en lauzes de pierre !!
On change d'univers avec la charpente ;)
par contre des poteaux en chêne 20x20 résistent chacun à environs 54t chacun , donc ton poids total de couverture divisé par le nombre de poteaux ,le poids est dérisoire pour chacun d'eux !
imaginons 8 poteaux 32.4T/8 = 4,5 T par poteau (50T de marge par poteau )
C'est le pied, j'en ai plein les yeux, je vais encore dévorer tout ça, merci Sylvain!!!
dévore dévore pas de soucis ;)
très impressionnant cette science! je suis admirative.
merci juste du plaisir et de la passion !
Salut Sylvain, petite question concernant le développement de section tronquée d'un ouvrage cylindrique: Le développement extérieur des bois est utilisé et tu reporte le développement intérieur avec le même entraxe, est ce un raccourci? ça n'influence pas pour la vue en herse, mais qu'en est t'il pour le développement de feuillets lamellé collé? Comme chaque fois que je te pose une question, je me demande si ce n'est pas moi qui fait erreur. Donc petit dessin.
hello jacky ! non pas d'erreur car imagine !!
sur la vue en plan tu as deux lignes d'entre axe dues à l'épaisseur et le rayonnement ok
Par contre tu n'as qu'un trait d' entraxe en développé puisque celui ci se trouve sur un même plan (pliage de la feuille de papier) et quand tu plie les feuillets ils seront tous en cote extérieur donc avec du bois en réserve pour débillarder les champs une fois mis en forme .
Il faut développer les entraxes avec le calcul du périmètre pour du lamellé collé sinon tu seras trop court ;)
Je fais 16 divisions , cela fait plus de traits ,mais les courbes sont plus justes .
Tu soulève un point de question et cela je n"ais jamais fait , c'est la coupe d'assemblage si ce lamellé collé devait être issus d'un développement de cylindre entier ?
Je pense qu il fraudais préparer les coupes avant collage (compliqué) ou faire deux éléments lamellé collé en miroir pour faire les coupes après collage ,c'est que que je ferais !!
Je n'ai jamais fait non plus, mais en deux morceaux me semble le plus facile, elles peuvent être traitées à plat sur le calibre rallongé, pour le développement il faut encore que ma réflexion progresse...
j'ai eu du mal aussi au début, c'est compliquer de s'imaginer les actions mécaniques des longueurs et épaisseurs au pliage !
Ce qui m'a aidé à l’époque c'est un ancien qui m'a dit "pense toujours au pli extérieur (feuille de papier) qui doit être juste en courbe et longueur une fois plié, le reste c'est de la taille .
Et le moule dans ce cas c'est évidemment le diamètre intérieur en plan !
sylvainlefrancomtois Bonjour Sylvain je ne suis pas du métier du tout, je suis chaudronnier et je survol toute vos explications de charpentier sans comprendre je dois bien l'avouer. Dans le cas présent en chaudronnerie, en fortes épaisseurs? nous prenons toujours la "fibre neutre" celle passant par l'axe de l'épaisseur mais il y a parfois des écarts en fonction des méthodes de façonnages
Bonne journée
Bricolo36 hello l'explication dans le bois c'est que a la base on travaille du bois massif auquel cas il nous faut les diamètres intérieur et extérieur pour tracer une piece dans un capable !
De plus en lamellé collé, on a "un glissement des feuillets " au collage tandis que dans la chaudronnerie vous avez un étirement du métal d'ou la fibre neutre (est ce juste ??) .
sylvainlefrancomtois Oui c'est exact
Bricolo36 Je suis fan des chaudronniers (rapport au trait) , pourquoi ne te remet tu pas à la planche pour nous inventer des formes lamellée collées en bois ;) !
sylvainlefrancomtois Ce serai une excellente idée mais il y a bien longtemps que je ne me suis pas remis au traçage surtout des métaux en feuille. je pense que si je devais exécuter la pénétration d'un cylindre de 15mm d'épaisseur dans un cône oblique de 15 mm également le tout devant être collé j'aurais des surprises.
Le ballon de rugby est un excellent exemple
Bricolo36 c'est en forgeant que ..................
Un moulin haut perché: moulins-a-vent...orschwiller.htm et beaucoup d'autres aussi sur ce site
oui il est cool !!
J'ai rectifié dans le chapitre cylindre dit moi ce que tu en pense ?
De cette façon c'est super on imagine bien la pièce en volume, pour tailler la pièce, tu trace les calibres rallongés directement dessus, je suppose ?
kajmed oui comme en escalier en relevant les génératrices sur le bloc puis en prenant au compas les hauteurs de courbes rallongées depuis la vue en plan .
Encore un boulot énorme, je regarde tout ça avec un grand intérêt.
hello Jacky comme dab tu me dit si il y à des choses bizarres à ton œil exercé ;)
magnifique! quel beau savoir. bravo pour la générosité de tes partages et leur qualité. je ne me lancerai pas dans la charpente, mais je me régale de te lire.
"El Professor" a encore frappé
remarque : ça pourrait déjà
ou même "Apprentissage participatif" 
Génial comme d'hab .... on va finir par s'habituer !! Avec des traités comme celui-là et celui des escaliers, on va bientôt voir apparaître l'air du bois dans l'annuaire des écoles sous le titre "Auto-Formation"
merci c'est toujours agréable que cela plaise !!! ;)
Une charpente magnifique archilovers.co...mpaign=lov_news
ah oui très belle contemporaine !!
Effectivement.
Comment ne pas penser à la sagrada famillia ? (mon plus gros coup de cœur architectural

)
Bonjour,
Merci pour ces partages de connaissances passionnants. On ne peut qu'être admiratifs devant l'ingéniosité humaine et la capacité de transmettre d'une génération l'autre, ce qui a permis d'améliorer encore et encore…
Je vous adresse quelques photo d'un superbe édicule rencontré à Hautefort, dans le Périgord. Destiné comme on le voit à protéger un puit, il à été restauré grâce à la complicité érudite des compagnons et ne cesse de réjouir l'œil quand on l'observe.
Bien cordialement.
Magnifique travail c'est de l'ébénisterie XL
merci de ce beau partage , c'est ce que l'on appelle de la lucarne guitarde et du clocher à lanterneau ,qu'ils ont associés à un auvent de puits ! magnifique !!
Superbe, comme un œil qu vous observe... Big brother ancien ;-)
Je l'aurais bien vu un peu plus grand tout de même !
je suis fascinée par tant de science et de beauté! merci, c'est un magnifique partage!
merci
félicitation pour ce travail et merci pour le partage !
merci
Quel travail superbe. Merci d'avoir pris le temps de nous faire cet article. C'est là qu'on regrette de ne pas avoir un petit bouton pour imprimer avec une jolie mise en page pour sauvegarder ce travail et le relire tranquillement.
merci
D'accord avec meles la mise en page pour impression manque ici !
Hier, visite chez Mr et Mme Sylvain.
Que dire de cet engagement et de cette motivation à transmettre un savoir…
Enormément de travail, de maîtrise et de disponibilité pour les autres…
A cette époque ou l'individualisme est de mise.
Tu es un exemple de partage.
Yep ! Merci M. Sylvain !
Pas tant les gars je vais avoir mal aux chevilles , mais merci c'est touchant !! J'ai quand même l'avantage d'avoir le temps ;)
Bravo pour ce travail qui est à la fois complet, précis et pédagogique.
J’ai néanmoins une incompréhension concernant la pose des pannes sablières. Tu soulignes, si j’ai bien compris, qu’elles ne doivent en aucun cas être fixées sur le mur. Sur différents ouvrages consacrés aux charpentes traditionnelles, j’ai lu au contraire qu’elles devaient être très fermement fixées au mur, par chevilles et boulonnages. Ceci afin de bloquer efficacement les chevrons en pied de versant et éviter la déformation transversale des pannes intermédiaires posées de façon déversée.
Peux tu éclairer ma lanterne. Merci par avance.
Hello
Une sablière traditionnelle était posée sur du sable d'ou son nom , et devait pouvoir glisser pour ne pas pousser les murs ;)
quant je bossait , nous ne fixions jamais les sablières , on les maintenaient avec des serre joints le temps de la pose des chevrons ,et ensuite on enlevais tout !
Jamais eu de problèmes , par contre j ai vu des arases de murs fendues à cause de la fixation de celles ci en traditionnel
Dans d'autres cas (béton banché, construction contemporaine et matériaux spécifiques ....), on fixe parfois fortement les sablières a l architecture !
Quand on ne fixe pas la sablière pour "retenir le mur..."
Maillien Michael les pauvres ;) de nos jours je vois tellement d inepties c 'est a pleurer !
J ai même repéré sur des sites qui font de la charpente , des fautes professionnelles caractérisées qu ils mettent en image de gage de qualité , pauvre monde !
Ben, faut les mettre dans les trouvailles
titimaster la j ai pas le temps j ai un très gros projet jusqu à la fin de l année , mais c est prévus la galerie des monstres !!
Vivement !
titimaster je t en met un échantillon ;)
sylvainlefrancomtois ah oui, bel échantillon
Ho la vache
sylvainlefrancomtois ah oui, pas mal, l'entrait coupé (comme un saloupiot, en passant) reposant sur un poteau béton!!
Et sinon, le projet, c'est en rapport avec le bois ? Soui, c'est indiscret de te demander ? ;o)
Niouniou ioula oui bien sur ;) !!
Dans le genre"entrait en deux parties...
Est-ce que mes yeux voient bien ? Le poteau est en train de se fendre ?
A peine, une toute petite fente de rien du tout !!!
Niouniou Je vois mieux sur PC là ... impressionnant !
le poteau est fendu, ECLATE, et descendu de 10cm...
Maillien Michael magnifique erreur !!
Et Termite n'y est pour rien !
sylvainlefrancomtois une chance que le poincon faisait office de poteau, sinon toute la toiture était au sol... Ceci dis, ce fut un chouette chantier de reprise en sous-oeuvre.
Remonter toute la charpente de 10cm, et remplacer les entraits moisé, 9.2m quand même ;-)
Maillien Michael tu as des petites photos pendant, après ?
titimaster +1
sylvainlefrancomtois, dans le genre, j'avais déjà diffusé cette photo là aussi :
Dam magnifique aussi carrément a l envers :(
Ah, ça pique les yeux !
;-)
Oula, alors là, c'est pas cherchez l'erreur, c'est cherchez les erreurs c'est ça ? Beau test pour voir si on a retenu les cours de Sylvain
Essayons :
Panne faîtière double
Echantignoles inversées
Contrefiches sur entrait
Arbalétriers ne vont pas sur poinçon.
Tout bon ?
Zut, je ne les avais pas tous. Je suis bon pour relire le cours !
titimaster y en a encore ;)
ok, essayons, bel exercice :) :
Sablière inclinée.
Bout entrait non protégé ?
Manque de contreventement. Pas facile avec ces petits bouts de poteaux. Du coup, il eut fallu remonter l'entrait pour avoir des poteaux plus longs et permettre de contreventer et de protéger l'entrait par l'allongement des chevrons
Les pannes ne sortent pas assez et sont mal finies, mais peu-être y avait-il une contrainte (limite de propriété).
les assemblages métalliques ne sont pas fait pour être posés inclinés
Le mur me semble vraiment light. A priori briques pleines donc sûrement pas féraillé et sur une seule rangée. Mais là, on est plus dans le même domaine :)
Encore ?
titimaster c est pas faux ! mais focalise toi sur la ferme de charpente !
Panne faîtière double //oui inutile , pourquoi ? !
//oui mais pas que !
Échantignoles inversées
Contrefiches sur entrait//oui car ?
Arbalétriers ne vont pas sur poinçon.//oui car ?
Et les assemblages ??
sylvainlefrancomtois les assemblages absent, il me semble, de simples coupes
Oui, ça ressemble à ça, kajmed !
Et le fil des echantignolles n'est pas "parallèle à l'entrepointe" a ce que je vois sur mon téléphone...
Niouniou bravo bien vu !!
kajmed oui complètement
et oui ! ça en fait des choses à dire pour une photo !
Hello ! Petite question :
Sur l'entrait de tourelle, tu mets en rouge l'entrait traversant. On peut l'identifier avec l’assemblage du poinçon à tenon mortaise traversant.
Par contre, j'ai cherché un peu partout, et je n'arrive pas à trouver comment les demi entraits perpendiculaires viennent s'assembler sur l'entrait principal.
C'est ton exercice du week-end ?
Je voudrais faire un mini kiosque octogonal.
titimaster épure en étude sketchup , je te corrige si tu veux !
en voila un intéressant ;)auvergne.abri-...sque-octogonal/
Je suis sur sketchup là sur quelque chose dans le même genre. Mais j'ai du mal avec 2 liaisons.
Celle vue avant que je n'ai toujours pas comprise. Je ne vois pas comment mettre un tenon mortaise.
Et celle entre les entraits et les poteaux et sablières (on dit sablières dans ce cas aussi ?)
J'avais bien prévu de passer par ici pour faire contrôler
Et quand je dis un mini kiosque, c'est une maquette au 1/10e pour faire une mangeoire à oiseaux. Le risque est, comment dire..., calculé en ce qui concerne la solidité de structure
, mais je veux la faire comme en vrai car il n'est pas exclu que j'en fasse un vrai un jour
Dans le cas de la photo ce ne serait pas un assemblage a mi bois des entraits et la mortaise sur le poinçon qui traverse les deux entrait?
sylvainlefrancomtois Voilà !
titimaster wahouuu !!!!!! cool !!! il ne faut pas hésiter a surdimensionner les sections ,pour ma part je trouve cela plus beau rustiquement parlant , par contre ce n est pas le cas quand on est dans du néoclassique ou d'influences anglaises ou il faut aborder en douceur avec application du nombre d'or ;)
Vraiment sympa comme projet
Bravo titimaster
à tenon mortaise chevillé (a l ancienne) après se sont les goussets qui maintiennent le tout , sinon une tige filetée traversante entre les moises avec des butées de serrage (plus efficace ) !!
Regarde au chapitre Les contrefiches ,liens, jambes ,aisseliers, goussets sur les photos on vois bien ;)
Triste jour pour notre patrimoine et pour une charpente de plus de 800 ans en particulier

catastrophe !
une perte énorme oui !
Quasimodo pleure dans sa tombe, ainsi que Victor Hugo, et nous avec eux.
Victor Hugo pas sur, il détesté notre dame qu'il surnommé la carcasse de poulet.
gatien je savais pas !! mais je pense que cela l'aurait toucher quand même non ?
sylvainlefrancomtois je le présume. En tout ça, quel gâchis...
gatien, je l'ignorais. mais Victor Hugo était plein de paradoxes et de contradictions. c'est lui qui a rappelé aux Français que Notre Dame offrait de droit un asile aux gueux, et il l'a si bien décrite dans son roman...
oui complètement !! qu'elle perte !!
je suis tous coeur avec vous
Hello ! Hello ! Je suis nouveau z'ici. Je cherchais quelques notions de Charpente et... bein j'en ai pris ici plein la vue ! Chapeau bien bas à toi Sylvain le Francomtois ! Je crois que je suis sérieusement en train de basculer vers ce sujet passionnant qu'est la Charpente. Au passage, si tu avais quelques livres à recommander, j'en serai bien preneur.
Encore un immense Merci à toi et Bravo (notamment pour tes réalisation également).
Cordialement ;-)
hello ,merci ! si tu as un peu de sous , annonce à ne pas rater ebay.fr/itm/De...0EAAOSwpcRcl6Nl
sinon chez eyrolles , y a du choix en fonction de comment progresser !
eyrolles.com/B...nte-couverture/
Je me retrouve dans ton message HermanGunther. Je me suis fait une petite bibliothèque que j'ai tout juste entamée donc je ne saurai pas te dire ce qui est le mieux mais ça peut te donner des idées.
En histo :
Traité pratique de charpente - E. Barberot (j'ai la deuxième édition de 1947 que je suis en train de lire)
Traité de stéréotomie - J. Pillet (1887 - je l'ai trouvé pas cher donc j'ai pris mais pas encore lu)
Je pense que je prendrai un jour le L. Mazerolle si je le trouve.
Sinon j'ai à lire :
La charpente en bois - G. Emery
Charpente les tracés - chez vial aussi editionsvial.c...orie/charpente/
Manuel des traits de charpente - M. Euchner
Les Assemblages des ossatures et charpentes en bois - M. Gerner
et côté dimensionnement :
Dimensionner les barres et assemblages en bois - Y. Benoit B. Legrand V. Tastet
Calcul des structures en bois - même auteurs
J'ai qq heures de lecture devant moi ...
Glorfindelrb n'hésite pas ajouter les bouquins dans la section livres
)
(Boris Beaulant je te devance
Traité de stéréotomie - J. Pillet est sur Gallica. Il me plait bien, mince je vais vouloir le trouver !
Côté dimensionnement, il y a le guide pratique dimensionnement à froid des assemblages traditionnels qui est en ligne et intéressant.
Comme tu as le Barberot, je serais curieux que tu le compares avec le traité de charpente en bois d'Oslet qui est en ligne... Pour savoir si c'est redondant ou bien si ça vaut le coup de chercher à l'acheter.
dneis Merci pour le lien.
J'ai regardé très rapidement l'Oslet que je ne connaissais pas. Le contenu semble très proche. Le style du Barberot me semble par contre moins lourd et moins catalogue, moins détaillé sur la partie outils, assemblages et préparation du bois aussi.
J'essaierai de prendre le temps de mettre le sommaire dans la partie livre si il n'y est pas encore.
Ca avait quand même une certaine classe les cours d'écoles d'ingénieurs à cette époque...
sylvainlefrancomtois Merci Sylvain pour ces références... euh... je vais attendre encore un peu pour l'ouvrage encyclopédique
mais ça doit être très beau à lire. En tout cas Merci pour ces références et encore pour ton tuto pas à pas.
Cordialement,
Merci à toi Glorfindelrb pour toutes ces références. J'ai déjà pu dénicher "Dimensionner les barres et assemblages en bois - Y. Benoit B. Legrand V. Tastet". Je suis impressionné de la masse d'informations et ce sera une bonne référence à venir. Pour le moment j'ai encore beaucoup à apprendre sur les bases de la charpente

Je crois que le prochain serai le Traité pratique de charpente - E. Barberot
Je me tournerai aussi vers les autres ouvrages que tu cites et je t'en remercie encore
Cordialement,
Un grand merci pour ce partage ,qui à dû te donner beaucoup de travail.trés facile à comprendre grasse au nombreuses illustrations.encore merci pour avoir partager ton savoir,don là plus par des profs en lycée pro n’en connaissent même pas le quart.

merci !
Bravo ! et merci infiniment de partager cette connaissance de manière aussi claire.
J'ai tout lu. J'ai tout compris (enfin j'espère). Il me reste à mettre en œuvre, pas à pas, en commençant par du simple et en complexifiant...
Je suis ébéniste, donc je ferai plutôt des maquettes.
merci
sylvainlefrancomtois Je ne suis pas pro mais, comme je lis en ce moment un peu sur le calcul de structure bois, j’ai regardé pour le petit calcul d’atelier pour le flambement des poteaux.
On considère qu’il n’y a pas de risque de flambage lorsque l’élancement relatif est inférieur à 0,3. Cet élancement relatif est calculé λrel = λ/πsqrt(fc,0,k/E0,05).
fc,0,k est la contrainte de compression axiale caractéristique du bois
E0,05 est le module d’élasticité au 5eme pourcentile (95% des bois de la catégorie sont au-dessus).
L’élancement mécanique λ est lui calculé avec λ = mlg/sqrt(IG/A) ou m est un coefficient dépendant des assemblages aux extrémités du poteau (2 encastrements -> m=0.5, deux articulations -> m=1, une liaison encastrement / une liaison libre -> m=2, …) ; lg la longueur du poteau, IG l’inertie de la section, A l’aire de section.
Pour un poteau rectangulaire de section bh ça donne pour l’axe le plus défavorable IG = b^3h/12, A=bh donc λmax = mlgsqrt(12)/b.
λrel,max = λmax/πsqrt(fc,0,k/E0,05) = mlgsqrt(12)/(b π)*sqrt(fc,0,k/E0,05)
Déjà on a bien la longueur sur section dans le résultat mais la valeur limite (λrel,max <= 0.3) va dépendre du bois et des assemblages aux extrémités. Si on regarde la longueur de flambement (mlg), on a mlg/b <= 0.3 π/sqrt(12)sqrt(E0,05/fc,0,k)
Si on regarde ensuite avec des valeurs :
C18 C24 D30 D40 D60
fc0k (N/mm²) 18 21 23 26 32
E0.05 (N/mm²) 6000 7400 8000 9400 14300
sqrt(E0.05/Fc0k) 18,26 18,77 18,65 19,01 21,14
coeff 4,97 5,11 5,07 5,17 5,75
Donc ça ne change pas tant que ça avec le type de bois mais en revanche (si je ne me suis pas trompé) on prend en compte le flambement bien en dessous de 35.
On peut regarder quel élancement relatif on obtient avec mlg/b = 35. (J’aurais pu commencer par ça…)
λrel,max = 35sqrt(12)/ π*sqrt(fc,0,k/E0,05) pour un résineux C24 ça fait λrel,max = 2,06
Edit: je reprends ici parce que je crois que j'avais une erreur de parenthèse
le taux de travail est contrainte/(coeff de flambement*résistance de compression axiale), il doit rester inférieur à 1.
C'est le coefficient de flambement kc qui nous intéresse ici.
1/kc = ky + sqrt(ky²-λrel²) avec ky = 0,5*(1+0.2(λrel-0,3)+λrel²) - pour le bois massif
dans notre cas on a alors ky=2,8 et kc=0,214 donc en prenant en compte le flambement il nous reste contrainte / résistance de compression qui doit être en dessous de 0.214
Autrement dit il nous reste déjà plus que 21% de la résistance calculée sans flambement avec longueur sur section = 35 et j'ai l'impression que la règle ne marche pas.
Edit 2: calcul pour les exemples du pas à pas
---cas 1---
Le calcul pour une charpente de auvent en chêne (que l'on va supposer D40) avec des poteaux de 20*20 de 4m articulés en pied et en tête qui reprennent 4000 daN chacun.
on a une contrainte induite par la charge σ = N/A = 40000/(200*200) = 1MPa
m = 1, lg/b = 20 ce qui donne λrel=1,16 et kc=0,57 pour du D40
la contrainte de résistance en compression est
fc,0,d = fc,0,k * kmod/γM
fc,0,k = 26 N/mm² pour D40
kmod = 0.7 en supposant la neige comme charge de plus coutre durée pour une altitude <1000m et un poteau exposé aux intempéries.
γM = 1,3 pour le bois massif
fc,0,d = 26*0,7/1,3 = 14 MPa
le taux de travail est alors σ/(kcfc,0,d) = 1/(0,5714) = 0,12 on est bien en dessous de 1.
---cas 2---
poteau 10*10 de 5m - D40 dans les mêmes conditions
σ = N/A = 40000/(100*100) = 4 MPa
lg/b = 50, λrel = 2,9 et kc=0,11
le taux de travail est alors de 4/(0.11*14) = 2,6 - ça ne passe pas du tout.
---cas 3---
poteau 14*14 de 4m - D40 dans les mêmes conditions
σ = N/A = 40000/(140*140) = 2,04 MPa
lg/b = 29, λrel = 1,7 et kc=0,31
le taux de travail est alors de 2/(0.31*14) = 0,48 on est bien en dessous de 1.
Au final on retrouve quand même les bons résultats si on ne va pas jouer avec les limites des 35% de la contrainte max théorique, ça marche si on se limite à 20% pour lg/b < 35. pour 35% il faudrait s'imposer lg/b < 25.
(désolé pour la mise en forme, tout ne passe pas comme je voudrais dans les commentaires)
oufffffffff , c'est une démo d'ingénieur ! Ce que je ne suis pas , que veux tu dire en fait ? que les calculs d'ateliers rapides sont correct ?
J'ai corrigé une bourde et le résultat me laisse penser que non ça ne fonctionne pas si bien.
Mais bon je conçois que c'est très arbitraire, mais dans le doute (il me semble que je l'ai dit quelque part) que dès que l'on approche les 35 % sans les dépasser, un charpentier ne prend pas de risque et choisi une section plus forte ! Et ici je ne parle que de travaux lamdas .
Sachant que en scierie les sections de poteaux vont de 12x12 ,15x15 , 20x20, 25x25, 30x30 cm
Oui c'est au final ma conclusion, ça reste ok si on ne joue pas à s'approcher des limites et que l'on n'oublie pas que ça dépend aussi des liaisons.
Glorfindelrb J'ai fait ce pas à pas après avoir vus tellement d’aberrations , qu'il m'e parut utile de donner des notions et réflexions de base !
Et je t'en remercie c'est en partie parce que je suis tombé sur ce pas à pas et sur le blog de Michel Verdon que je suis en train de lire du calcul de structure !
Bravo Sylvain, je me suis délecté de ta prose, j'y ai passé du temps notamment sur la partie relative au trait car ça m'a rappelé mes cours de dessin industriel d'il y a plusieurs dizaines d'années... Du coup je me suis fait des nœuds au cerveau mais c'est revenu grâce à tes explications.
Je me suis plongé dans tes récits car je dois refaire un garage, aujourd'hui en tôles ondulées et qui s'appuie sur le pignon d'un autre bâtiment (ce bâtiment ce sont aussi des garages/ateliers). Aujourd'hui le garage en tôle est à simple pan mais est vraiment laid. J'ai donc proposé "à la direction" de faire un garage/atelier simple pan sur une ossature bois "contemporaine" habillée de bardage et avec une couverture en bacacier.
Réponse de la direction: "non, tu m'as habituée à mieux..."
Du coup je n'ai pas eu d'autre choix que de proposer un atelier en charpente traditionnelle à 3 pans, couvert de tuiles de Marseille mais du coup le design et la réalisation n'ont bien évidemment plus rien à voir.
Je suis en train de travailler sur la conception de détail, mais je pense me baser sur les principes de Michael Maillien et utiliser une structure en pin des landes traité ou en Douglas, essentiellement en 15x15, notamment pour les poteaux et les pannes sablières.
Mes questions sont les suivantes:
Tu n'abordes pas ou peu les spécificités liées aux charpentes à trois pans (ce n'est pas un reproche du tout!) et du coup je voudrais savoir si tu pourrais m'aider sur plusieurs choses:
Quelles seraient tes recommandations?
Désolé de poser toutes ces questions mais je m'interroge beaucoup (trop?).
hello
merci pour les compliments !
Je ne me suis pas étendu encore à des détails (faut que je reprenne l'écriture!) , donc je t'envoie un lien qui montre comment nous assemblions les angles des poteaux pour les arêtiers sur goussets
(fait défiler les photos) charpentiersbo....wordpress.com/
et ici un détail intéressant du principe , mais pas beau lesartsdesbois...usset-daretier/
Pour les empannons , nous on les clouaient lardés depuis le coté traditionnellement et sur la sablière, maintenant on cloue au cloueur ou vissés , ça ne bouge pas !
Pas de soucis pour te répondre a d'autres questions , et d'ailleurs c'est très bien de ce poser des questions
Merci beaucoup pour ta réponse super rapide.
Concernant les pannes sablières dans un même plan en angle sur poteau c’est pas tout à fait ça que je cherche, mais je n’ai probablement pas été très clair, je ferai un schéma et le posterai.
Pour les empannons, super! C’est plus simple si un vissage suffit! Car je pense que je vais déjà en avoir pour un moment à tailler tous les éléments!
Mais quand on aime (y compris les jolis ouvrages), on ne compte pas!
Encore merci! (J’envoie le schéma d’ici peu
Beberaroulettes pas de soucis , tu peux même poster ta question dans la rubrique questions pour que tout le monde profite des réponses
Celui ci avec débord ,on y vois l'arrivée des sablières sur le poteau (si c'est cela que tu recherche) charpente-trad...um-1877304.html
Tu as raison je vais créer une question pour que tout le monde puisse en profiter. En attendant, voici un lien vers un site d'inspiration... [Allez voir le "pavillon"] (lesjourneesdetravail.com/)
lesjourneesdet...7/07/debord.jpg
Beberaroulettes oui aussi !! y a plusieurs solutions !
merci!!!
Tout d'abord, l'ébéniste que je suis te remercie grandement, ce pas à pas va bien m'aider pour fabriquer deux petites charpentes en auvent (bûcher et abri pour aspiration de l'atelier).
Je me permets une question peut-être un peu idiote concernant le marquage des bois :
Dans quel cas la langue de vipère contremarque fait-elle du sens ?
Hello , il n'y a jamais de question idiote ! La langue de vipère établi une panne faîtière , parfois le coté levage de référence se trouve coté versant contremarque !
Superbe article
Bravo et merci pour ce travail c'est énorme!
Je ne résiste pas à remercier sylvain (une fois de plus) pour son partage, c'est beaucoup grâce à lui que j'ai pu me lancer dans cet ouvrage, que je ne poste pas encore en création car en cette période c'est compliqué de recevoir la couverture !
Châtaignier
Merci !
Top boulot !! ça rappelle des bons souvenirs , merci aussi
sylvainlefrancomtois A suivre celle de ma maison, ça sera une autre échelle... Je reçois le bois la semaine prochaine !
Gcloarec ok n’hésites pas à demander au cas ou !!
Gcloarec jolie structure!
Tu es dans quel coin de Bretagne?
Je suis en train de bosser sur ce pas à pas pour ma future charpente et difficile d'avoir des sections standard pour appuyer les calculs.
Tu as pris quoi comme bois, châtaignier non?
Merci pour cette riche source de connaissances.
Je suis à la recherche d'informations sur la façon dont est construit le plancher de mes combles aménagées avant de commencer la rénovation de cette maison ~1930.
J'ai compris posséder une charpente à double entraits, que les entraits ne sont pas censés être porteurs. Mais le peu que j'ai réussi à ouvrir pour sonder le plancher, je trouve des ?bastaing? avec une encoche posés sur une autre pièce de bois qui semble être parallèle à l'entrait.
J'ai lu sur l'article que au delà de 5m il faut prévoir un appui mais je n'ai aucun porteur au rdc aujourd'hui. On retrouve deux entraits dans la longueur, je ne sais pas si cela change quelque chose à la répartition des charges ?
Cet assemblage semble porter beaucoup de poids aujourd'hui, les espaces entre les bastaings sont remplis de mâchefer, les cloisons de l'étage sont en mâchefer et les pièces sont relativement chargées en matériel et meubles anciens. Les cloisons du rdc sont aussi en mâchefer, peut-être que le plancher à fini par reposer dessus d'une certaines façon ?
A priori si c'est fait comme cela, c'est que c’était prévus !
Par contre si dessous il y a des cloisons en mâchefer , il ne faut faire attention si on les enlèves .
Difficile pour moi de te faire un avis sans voir l'ensemble , peut être des photos m'aiderais , ou nous aideraient si tu postes ta question dans la rubrique questions !
salut Sylvain!
sacré boulot que tu as fait ici! je n'ai pas pris le temps de tout lire car je suis connecté avec mon téléphone mais tu as l'air d'être bien rentré dans les détails.
je vais tâcher de m'y atteler plus longuement ces jours ci.
en tout cas les commentaires sont partagés. c'est dommage ceci dit de ne pas pouvoir commenter par sous partie, ça serait plus cohérent et lisible pour chacun.
mes amitiés.
PS j'ai commencé enfin a faire des vidéos sur le trait, en mode vulgarisation. ton avis me sera précieux si tu veux bien prendre le temps de regarder.
C'est sympas tes vidéo , tes fondamentaux vulgarisés sont très abordables et audibles (surtout pour moi le pot à colle , je n'ai jamais eu de cours en charpente l'ayant apprise sur le tas ) ,c'est jamais évident de faire découvrir au gens la complexité professionnelle des métiers !
Fascinant ! Un très grand merci pour avoir pris le temps de donner tout ce savoir.
de rien , j'ai le temps, et c'est un devoir de transmettre le peu que l'on connait! !
Merci beaucoup Sylvain pour ce super travail d'analyses et d'explications ( très bien fait ) je suis moi-même passionné par le travail du bois et j'ai appris et apprends encore énormément grâce à vous;
merci , profites !
Bonsoir depuis la jungle de Colombie! :D
Un enorme merci pour avoir mis a disposition ce document pas a pas extraordinaire pour quelqu'un comme moi qui n'y connais rien en Charpente (en effet je suis dans les telecoms). Cependant, je me suis retirer dans la foret, et je cultive maintnant le cafe.Afin d'ameliore nos installation, je dois construire un preau qui abritera le sechoir et la depulpeuse de cafe. Ce toit sera suporter par des colonnes dont les quattre de devant seront plus haute (deux etage) afin de permettre un acces en haut des machines. il a un fort denivle entre les colonnes de devant et celle de larriere qui permet un access au deuxieme etage par derriere.
J'ai bien lu tout le guide, mais jaurai vraiment besoin d'un petit coup de pouce pour etablir les section de bois a utiliser. On veux mettre des tuiles ancienne (type canal), et quelle soit aparente depuis en dessous du toit. On pense utiliser un bois appele "Sapan" qui n'est pas du sapin, mais un bois tropical voir (Fig 1).
Pour des raison de facilite, et apres avoir lu tout le guide, je pense opte pour une version Moise pour ne pas avoir a faire autant de tenons! :D
La fig 2 montre ce que j'ai recupere sur sketchup et que je suis en train de redimensioner et changer, mais le temps presse (la prochaine recolte est dans 2 mois!!) meme si tout n'est pas fini je dois au moins avoir la parti de devant (deux etage) de termine!
Les dimensions:
Largeur de la structure: 6m de poteau a poteau
Longer/profondeur: ~ 8m
poue devant, le plancher du deuxieme etage dois etre imperativement a 3,20 du sol pour permetre un access au machine (sechoir et depulpeuse).
les colone de la partie arrier (a un seul niveau) peut etre de 2.45 (sol - ferme).
Si quelqu'un pouvais m'aider ce serait vraiment genial, jai besoin de cela, et je n'ai personne ici pour m'aider. Si on moins on pouvais me donner les dimensions du bois, et potentiellement un schema sketch up ce serait genial. N'aillant pas tout les parametres, vents...etc il n y a pas de problem a sur dimensioner un peu pour etre tranquil.
J'envoi un bon sac de cafe a qui pourra m'aider, et pourquoi pas une petite invitation ici quand Corona aura termine!
Merci d'avance, contacter moi rapidement!
Cher fabriceBoug
Bienvenu à toi.
Je pense que cette question serait mieux placée dans la rubrique questions du site, car elle y sera plus visible et attirera sûrement plus de réponses.
dneis +1 pose ta question dans la rubrique question !
Merci les amis, je vais faire cela de suite! ":D
Ca fait des jours et des jours que je me passionne dans la lecture de ce pas à pas et je n'avais même pas encore mis un petit "j'aime" ! C'est chose faite.
Merci beaucoup sylvainlefrancomtois pour cet article. Je trouve la progression particulièrement bien faite et j'aime beaucoup le ton des textes : net, clair et précis ; on va direct à l'objet et tout est dit clairement et simplement (une fois que l'on s'est approprié le vocabulaire spécifique)
Cela fait quelques années que je veux me reconvertir dans le travail du bois (actuellement ingénieur en informatique) mais je me contentais de bricoler sur mon balcon et dans un atelier partagé en attendant un déclic quelconque. Puis j'ai lu il y a peu le livre d'Arthur Lochmann : "La vie solide : La charpente comme éthique du faire" qui m'a fait découvrir le métier de Charpentier et a été une sorte d'épiphanie. Dans la foulée, je suis tombé sur ton article qui a fini de me convaincre que c'était ça que je voulais faire. Il reste encore quelques détails à régler (faire valider mon congé formation), et je commence une formation CAP Charpente en 1 an à l'AOCDTF de Paris en sept 2021 et pourquoi pas enchaîner sur un BP dans la foulée...
Donc encore un grand merci pour ce long et passionnant article qui fait partie pour moi de début de ma nouvelle aventure.
Séverin
bienvenue dans les gros bouts de bois !
Enorme!!! Merci beaucoup pour ce pas à pas vraiment très bien fait!
Une question par rapport à la fixation de la sablière:
J'avais compris qu'on fixait toujours la sablière à l'arase mais qu'on ne fixait les chevrons à la sablière que si les pannes étaient posées à dévers. En pose d'aplomb, les chevrons glissent sur le délardement de la sablière au fur et à mesure de la mise en charge et du fluage des pannes intermédiaires. Est ce que tu as des infos par rapport à ca?
Encore merci!
Pour avoir été formé charpentier par les compagnons, j'apprécie énormément ton pas à pas avec ses schémas et ses photos qui rendent les choses facilement compréhensibles!
Hello Nous ne fixions jamais la sablière à l'arase ! (sablière, historiquement posée sur un lit de sable) mais les chevrons étaient tous cloués sur le délardement, en plus d'un coin anti déversement de la sablière tout les deux chevrons !
Pour des pannes d'aplomb, nous faisions des chanlattes afin que nos chevrons ne portent pas sur les arêtes de ces dernières !
Cela dit, je n'ai fait de la charpente que dans ma région, il y a des finesse géographique que je ne connais pas !
Merci pour la réponse. Je demanderai à d'autres charpentiers comment ils font pour la sablière ici dans les Pyrénées Atlantiques
J'ai jamais essayé le chanlatte sur la panne mais ça me semble plus simple de délarder directement la panne.
A moins que je ne l'ai ratée, je pense qu'il faudrait ajouter une partie sur le concept de noeuds canoniques. Cela permet de savoir si une ferme est effectivement triangulée. Aussi, ça indique l'emplacement des jambes de force, entraits retroussés et contrefiches lors de l'étude d'une ferme. C'est très important à mon avis.
Désolé de te donner plus de boulot ;) et encore merci de partager tes connaissances
Super ! Je suis apprenti charpentier dans le cadre de l'AOCDTF, et étant passioné de bois, et du métier de charpentier, tu m'en a mis plein les yeux ! merci bcp de ton partage ;)
Bienvenue à toi sur l'air du bois la Coterie, et t’inquiète pas c'est pas le boulot qui manque chez les boisdebouts
Excellent, merci beaucoup pour ce cours magistral. Ce post mérite de rester facilement accessible pour ceux qui rechercheront des informations fiables et complètes ! Chapeau !
merci
Bonjour, merci pour cet excellent travail.
J'ai chez moi 2 fermes à blochets qui, me semble-il, sont entrain de pousser sur les mur, après avoir changer la toiture pour abandonner le bardeau bitumineux (10kg/m2 + 11 kg/m2 pour son support aggloméré) au profit de la tuile mécanique (50 kg/m2). Ayant quelques compétences en résistance des matériaux, j'ai simulé la ferme sur le logiciel gratuit RDM7- ossatures. D'après la simulation ces fermes, transmettent une poussée oblique sur les murs, dont la composante horizontale peut engendrer des écartements de murs. Ces poussées obliques existent sur la jambe de force, comme sur le blochet ((voir les 2 flèches rouges de chaque coté du mur sur l'image jointe)). Pour une charge linéaire de l'arbalétrier de 1400N/m, la poussée horizontale sur les murs est de 7000N. Pourtant, vous dites dans votre section "La ferme sur blochet", qu'il n'y a pas de poussée sur les murs. Pouvez vous me donner les détails de votre réflexion afin que je puisse voir lequel de nous deux fait une erreur. D'avance je vous en remercie
hello, compliqué de répondre comme cela ! Aurais tu une photo des fermes et de leurs appuis et composants (mur/sol)
par contre j'ai un doute si ta toiture a été calculée a l'époque pour du shingle et que tu passes en tuile mécanique ?
Section des bois aussi svp !
Tu as bien en compte que dans l'épaisseur de ton plancher, tu as un entrait d'une section conséquente, normalement ? L'entrait du haut n'est qu'un entrait retroussé, si je ne me trompe pas sur les termes...
Bonsoir Sylvain
Sur le logiciel RDM7, j'ai modélisé ma ferme...qui je pense a été mal construite. En effet la jambe de force n'est pas posée sur une semelle liée au plancher, mais est, comme le blochet, intégrée dans le mur (voir les 2 photos). Dans une ferme à blochet bien construite, par l'intermédiaire de la semelle et du plancher, on crée un lien qui agit comme un entrait sur les extrémités des arbalétriers. Du coup tout les forces qui s'exercent sur le mur sont bien verticales (voir nouvelle simulation).
Pour revenir à mon problème, quelle solution s'offre à moi? A part mette un tirant camouflé dans le l'épaisseur du plancher, je ne vois rien d'autre. Si je veux fixer ce tirant en bas de la jambe de force, il faut que je casse le mur (moellons de pierres en 50 cm d'épaisseur) pour la rendre apparente, et si toutefois je perturbe l'endroit ou est reposé le pied de la jambe de force, je risque la catastrophe. Il serait peut plus sage de percer le mur, pour que le tirant puisse le traverser et poser à l'extérieur du mur une croix de part et d'autre des 2 murs.
Merci d'avance pour tes conseils et commentaires
bois19 si les jambes sont assemblées dans une solive servant entrait sous le plancher, il n'y a pas de soucis !
A première vue cette charpente à l'air professionnelle , mais vérifier le pied comme dit plus haut ! et je ne vois pas bien si c'est moisé avec entailles ?
et non, justement, il n'y a pas de solive servant d'entrait
Je mets les photos des entailles, comme tu verras pas très bien ajustées
Bonjour,
vous auriez une photo de l'ensemble de la ferme?
Etes-vous certain qu'il n'y a rien dans le plancher qui serve de tirant?
Michael
Bonjour Michael
voici 2 photos de l'ensemble
CE qui est clair c'est qu'il n'y a pas de pièce de bois faisant office de tirant. Peut être un câble métallique, faudrait que je fasse sauter un bout de plancher pour m'en assurer. Je vais voir ça. Mais vu que les murs sont poussés, tout porte à croire qu'il n'y a rien
petite précision: sur la dernière photo, l'entrait retroussé est juste sous le plancher
bois19 au vu des dernières photo, la toiture a été rehaussée (bois vertical sur échantignole) ?
C'est du chêne , ça a l'air costaud, mais si il y a absence d'élément tirant , évidement ce n'est pas bon du tout !! (de fait il y a écartement)
Vérification de la présence d'un tirant métallique obligatoire !
Apres il serait bon de faire venir un professionnel agrée pour ce genre d'intervention !
Maillien Michael +1
bois19 les soit-disant imprécisions des entailles, c'est "juste" que le bois a séché et s'est rétracté : il s'est réctracté en largeur (normal!), donc on voit le retrait dans les entailles, car celles-ci dans dans le sens perpendiculaires aux fibres, donc dans ce sens, le bois n'a subi pour ainsi dire, aucun retrait.
Complètement d'accord... Déjà que la charpente a été modifiée pour réhausser le toit... Il y a quand-même des charges énormes en jeu (et les risques qui vont avec!) Travailler en sous-face n'est également pas le plus aisé et la partie qui demande le plus de "professionnalisme" car risquée
J'ai rencontré un problème du même genre sur un chantier, voici en photo la solution qui avait été apportée, dans un comble non-aménagé.
sylvain: oui la toiture a été rehaussée, cela date de l'ancien propriétaire qui avait fait une couverture en bardeau bitumineux. Cette rehausse est ancienne. Je vais découper le plancher pour vérifier l'absence ou la présence de tirant métallique et vous tiens au courant. Un professionnel agréé en quoi: "pathologie du bâtiment"? on les trouve où?
Michael: joli travail. A quoi servent les 2 moises verticales le long du mur puisque l'on voit la présence d'une semelle reliée aux solives, donc aucun effort horizontal ne doit apparaître sur les murs
professionnel agréé = charpentier certifié qualibat !
J'ai découvert la base d'une des jambes de force. Il y a finalement bien en entrait, mais il est posé sur le solive du plancher, et ne fait que l'épaisseur du plancher. On observe sur les photos (flèches rouges) une rupture. Après il reste encore la partie droite qui tient....et il faudrait que je découvre la base de la jambe de force du 2ème arba de la ferme pour m'assurer que tu n'est pas cassé de ce coté
bois19
sauvé !
Il y a un détail qui m'inquiète fortement, la gorge de la mortaise est "très ouverte". Il est possible que l'about de mortaise soit pourri ou rompu et que le pied d'arba glisse vers l'extérieur.
On voit d'ailleurs des traces de friction entre les arases. Je suis pratiquement certain qu'il y a eu un mouvement, et ce n'est certainement pas nouveau. Par contre, au vu de la charge que vous avez ajouté en couverture (tuile) il est probable que ce mouvement s'accentue. Il conviendrait de prendre rapidement des mesures conservatoires.
Ok, merci à vous 2. Je penserai plutôt comme Michael, et craint de ne pas être sauvé. Les murs se fendent et sortent au 2 extrémités des 2 fermes
Oups , j'ai parlé trop vite après avoir seulement lu le texte !! Mea culpa !
En effet les photos disent bien ce que Maillien Michael décrit !
Ici je sèche, cela dépasse mes compétence (jamais eu ce cas) , une charpente découverte se modifie ou se restaure assez facilement !
Mais en charge ?? , dans ton cas , je crains qu'il faille mettre en oeuvre de gros moyens !
je peux aussi préciser que les 3 blochets sur 4 ne sont plus du tout à l'horizontal
Bonjour,
Que les blochets ne soit plus de niveau, en soit, ce n'est pas un drame, sans doute tout au plus un symptôme supplémentaire.
Pour ce qui est de la prise de mesure conservatoire, il y a urgence, il faut faire ça au plus vite. Quand je découvre ce genre de chose chez des clients, je prends les mesures nécessaires dans les 24 heures. Ne fut-ce que placer une sangle à cliquet entre les deux pieds d'arba pour reprendre la tension et éviter qu'ils ne continue de s'écarter. Il faut bien se rendre compte qu'il y a péril en la demeure. Bon courage à vous
Michael
Maillien Michael Avec mes vieux yeux au début j'ai cru a du moisage recouvert de plancher !
Une autre question! serait ce du bois de réemplois, au vu de la pente d'about de mortaise , et de la pente de la jambe , ça colle pas !
Si tu avais le chantier, et apres avoir sécurisé,
Tu ferais quoi ? découverture, restauration et recouverture !
La nouvelle couverture est là depuis 3 ans. Donc ça n'évolue pas trop vite, à moins que ça soi entrain de s’accélérer,
sylvainlefrancomtois on voit des traces de friction au niveau des arases.
Je suis pratiquement certain qu'il y a eu un mouvement de 5 à 10 cm, peut être pas récent?
Pour la restauration, j'essaierais de voir si il y a moyen de la faire en sous-oeuvre sans découvrir.
Amitiés, Michael
Merci pour tous les conseils, je vois un charpentier demain.
A votre avis, peut-on considérer une faute professionnelle du charpentier/couvreur qui a fait la modif de la charpente et la pose de la nouvelle toiture, au prétexte qu'avec le nouveau chargement (X 2.5) il n'a pas vérifié que la charpente pouvait le supporter et en particulier il n'a pas vérifié ni l’existence ni la qualité de l'entrait?
J'ai encore une question: j'ai beau chercher sur internet pas moyen d'avoir une réponse. Sur un plancher béton sur lequel vient reposer les semelles qui reçoivent les jambes de forces d'un ferme à entrait retroussé. On est bien d'accord que ces semelles sont obligatoirement fixées au plancher béton? Et si oui, quel sont les moyens de fixation recommandés?
Merci d'avance
En liaison avec mon dernier, message, 3 photos de charpente à blochets qui m'interpellent car sans entrait bas. Sur la photo 1 il n'y a strictement rien pour reprendre la poussée horizontale qui s'exerce sur les poteaux. Sur la 2 la "semelle" est boulonnée au mur, et là encore aucun effet sur les poussées horizontales. Sur la 3, la semelle repose sur les entretoises!
Merci d'avance pour vos commentaires
1ere photo, il y a des poteaux, ce n'est pas comparable avec un mur en maçonnerie
2eme photo: solution douteuse...(pour ne pas dire autre chose)
3eme photo: il y a une poutre de ceinture en béton armé.
Aucune de ces 3 photos ne permette de comparer ce qu'il y a chez toi
bois19 si tu pose des fermes à blochets sur une dalle de béton, Il faut boulonner les semelles, tige filetée et scellement époxy. Dans ce cas, c'est la dalle qui fait office d'entrait.
Maillien Michael
Merci pour tous tes éclairages. J'ai bien conscience que ça ne ressemble pas à mon problème, mais je me documente pour bien comprendre le fonctionnement des fermes (parallèle je crée un modèle numérique sur le logiciel RDM7 pour vérifier les déformation, les contraintes dans le bois, les efforts sur le murs). Pour la photo 3 je me demandais si les entretoises posées de proche et proche des solives ne pouvait pas aussi jouer le rôle d'entrait. Pour les semelles si dalle en béton, c'est incroyable de ne pas trouver cette info nulle part!
J'ai vu un charpentier aujourd'hui: il propose de refaire un deuxième système de blochet+jambe de force en plus de ceux déjà présents avec semelle qui serait fixée à l'entrait. A voir
Mercredi je vois celui qui a modifié la couverture. On verra sa proposition. Penses tu que sa responsabilité décennale soit engagée?
Bien à toi
bois19 Si c'est un pro certifié charpentier, oui sa décanale fonctionne !
Si c'est un menuisier qui fait un bout de charpente, non !
jesuisentrepre...-charpente.html
Dans les ouvrages de charpente j'ai lu que le blochet permettait de limiter la flexion de la jambe de force. Sur ma simulation numérique, avec ou sans blochet, il n'y a quasiment pas de différence, ni dans les déformées, ni dans les contraintes, lorsque l'on ne considère que les charges verticales. Par contre, ils jouent leur rôle quand il y a des poussées horizontales dues au vent. Est-ce que l'un d'entre vous peut confirmer que c'est bien vis à vis des poussées horizontales que le blochet trouve son sens. Merci d'avance
bois19 Un blochet trouve son sens , dès que l'on a besoin de combles habitables !
Je ne suis menuisier de métier, j'ai juste travaillé 10 ans en charpente (mon patron compagnon charpentier) , et je n'ai jamais vus de blochet neuf , ou modifiant une charpente sur place bouger par la suite , des l'or qu'il reprend toutes les poussées (calculées) si il est bien placé etassemblé arba/jambe (triangulation) et rejoignant en poutre entrait, ou sur semelle encrée au sol (dalle) !
Pour des sol décalés, ou sur corbeaux muraux, nous mettions un tirant métallique à la base des jambes, caché en faux plafond ou sous le plancher !
Et quand il n'y a rien pour faire tirant, on construit des fermes avec aisseliers qui portent les forces au pieds de jambes en vertical des murs porteurs
Comme ça?
kaj Hello Jacky
en gros oui le principe est le même , mais j'explique plutôt comme la photo principale d’accueil illustrant ce pas à pas !
bois19 Le blochet, il fait une liaison triangulaire avec la jambes de force et l'arbalétrier, ce qui rend l'ensemble indéformable. La triangulation est un des grands principe de la charpente
Sylvain, oui évidement
Maillien Michael . Mais la triangularisation existe déjà par l'entrait bas (ou semelle fixée à la dalle béton) qui ferme le triangle dont les 2 cotés sont réalisés par las arbalétriers. Avec la simulation que je fais sur le logiciel RDM7, je ne vois pas apparaître l'intérêt du blocher sauf pour les poussées horizontales du vent. D'ailleurs Gcloarec qui a publié après moi les photo de son chantier, met en évidence que ses fermes à entrait retroussé sont actuellement montées sans le blochet, et il indique qu'il ne les mettra qu'après la pose de la couverture, donc charpente chargée! Donc soit c'est pas possible de faire comme cela, soit ça confirme que le blochet ne sert pas fondamentalement à triangulariser car c'est déjà fait auparavant par l'entrait bas!
J'ai tout faux, ou vous êtes d'accord????
Le dictionnaire professionnel du BTP
[C.B. - C.M.] Dans les charpentes à faux-entrait, élément horizontal reliant le pied de l'arbalétrier et une jambe de force. V. ill. Fermes.
bois19 Je suis flatté d'être pris comme exemple mais je rappel que je ne suis pas charpentier pro !
Il est vrai que je procède comme ça jusqu'à ce que j'ai posé les panneaux de sous-toiture. Ma jambe de force étant bien bloquée dans l'arbalétrier et l'entrait/solive. Après il reste qu'un point de rotation est possible sans le blochet, mais ça ne m'inquiète pas pour le moment car
enfin c'est ma vision du truc après j'essaye de coller au plus proche de ce qui est préconisé, l'expérience des autres évitant des erreures.
bois19 les jambes de forces font la liaison entre l'entrait et les arbas, si tu y regarde de plus près, il y a 4 intersections, deux par jambes de forces, ce n'est donc pas un triangle... la déformation de l'ensemble est possible, et particulièrement sous l'effet du vent.
Lorsque l'on dimensionne une charpente, on tient compte de la charge verticale évidemment, mais aussi de la force du vent. ta toiture est une véritable voile, et les force du vent sur l'édifice sont colossale. Le blochet fait partie intégrante de l'édifice qu'on appel d'ailleurs "une ferme à blochet"
Quand tu me dis, je cite "Mais la triangularisation existe déjà par l'entrait bas" fin de citation, je te réponds que non, absolument pas
Gcloarec Pourquoi pratiques-tu de la sorte? quel est l'intérêt?
Maillien Michael uniquement car pour l'esthétique je ne veux pas de boulons galva, et en ce moment en bretagne si je pose les boulots acier bruts je vais avoir de belle coulées de rouille sur le châtaignier ;)
Maillien Michael Ah oui, autant pour moi, il y a bien 4 points, on ne peut donc parler de triangularisation. Après, tu confirmes, tout comme j'ai pu l'observé sur simulation numérique, que le blochet trouve essentiellement sa raison d'être sous l'effet de forces horizontales dues au vent. On est d'accord.
Gcloarec A la vue de ce qu'il vient d'être dit, habitant en Bretagne, région connue pour ses vents, tu peux donc, après les panneaux de sous-toiture posés, exposer ta ferme à des déformations sous vents. Je te mets un exemple de ce que sa donne sous simulation sans blochet (la structure passe de la position violette à la position blanche)
Merci à tous pour vos éclairements
bois19 hello oui mais pas seulement , parfois un arbalétrier se trouve carrément dans le vide, et s'il n'y a pas l'assemblage universel avec blochet , imagine !
L'assemblage blochet est un tout en charpente, comme l'est un entrait dans une ferme triangulée !
Ta simulation est parfaite pour décrire le principe ! (quand y a du vent)
Toujours à l'aide de ma simulation, je constate que sans entrait bas, outre le déplacement des jambes de force, les blochets s'inclinent légèrement vers le bas (et c'est bien ce que je constate dans mon cas. Si l'entrait bas existent, ils s'inclinent légèrement vers le haut. Par ailleurs, la simulation m'indique qu'avec un entrait bas, à la liaison blochet/arba, la réaction du support (le mur donc) est vers le bas, tandis que la réaction à l'arrière du blochet (son extrémité qui se prolonge dans le mur) la réaction du support est vers le haut. La 2ème réaction est naturelle et le mur va bien offrir cette réaction vers le haut, mais la 1ère réaction qui est vers le bas, ne l'est pas. Ceci m'amène à poser la question du mode de fixation du blochet dans le mur?
Merci d'avance
bois19 Pas besoin de fixer les blochet dans le mur, la plupart du temps, ils sont posé simplement. La liaison "blochet, arbalétrier, jambes de force et entrait" permet de reprendre la charge verticale du poids de la toiture et de la charpente, ainsi que les charges horizontale due aux vents, et qui induises des poussée dans le sens des arba ( et donc en biais vers l'extérieur) et de transmettre l'ensemble de ces forces sur les mur en poussée verticale vers le bas. En bref, toutes les forces qui sont en présence et dans toutes les direction possible dans la ferme, doivent être ramenée verticalement aux points d'appuis. La ferme à blochets à été conçues il y a peut être plus de 1000 ans, et certaines perdurent à ce jours. C'est une bonne référence.
Maillien Michael Je te mets photo détaillée de la réaction des supports au niveau du blochet. La flèche du milieu est une réaction du support vers le bas. Ceci est en adéquation avec le fait que la déformation de l'extrémité du blochet (coté liaison avec la jambe de force) est vers le haut (on passe de la position initiale pointillées rouges à la position finale, charpente chargée, en traits blancs). Numériquement, partant de l'intérieur de la ferme vers l'extérieur, ces forces ont comme valeur dans le cas de ma ferme: 26900 N, -35420 N, 32220 N. Comme les 2 forces coté mur sont très proches l'une de l'autre, on peut les confondre en une seule en les additionnant. On trouve donc une force globale sur le blochet de -3200N et une force sur la jambe de force de 26900 N. Globalement sur l'ensemble blochet+jambe de force il y a bien une une charge descendante reprise par le mur qui va donc offrir une réaction d'appui vers le haut, d'opposition, de 26900 -3200 = 23700 N. Mais au niveau du blochet la force qui s'exerce dessus est faible mais à tendance à le faire décoller, la réaction du support est vers le bas
bois19
"Mais au niveau du blochet la force qui s'exerce dessus est faible mais à tendance à le faire décoller, la réaction du support est vers le bas"
C'est pour cette raison que tu veux fixer le blochet?
oui
Maintenant que ma ferme est simulée numériquement avec les bonnes dimensions et bonnes charges (charge de structure + charge d’exploitation + neige et vent), je suis capable de connaitre les efforts de traction dans l'entrait bois qui a rompu sa liaison avec les jambes de forces. L'idée qui m'est venue était de refaire la liaison par l'intermédiaire d'un tirant métallique relié à l'arba et à l'entrait (celui ci étant par ailleurs correcte sur sa longueur). L'entrait bois ne faisant que 28 mm de haut (il se confond dans le plancher), il me faut 2 plaques de métal de par et d'autre de l'entrait de 3*20 mm, et il faut 2 boulons de diamètre 10 pour leur fixation coté entrait bois. Or selon les eurocodes (codes de la construction pour l'Europe), la distance minimale entre le centre des boulons et le bord inférieur et supérieur de l'entrait doit être de 30 mm .Il me faudrait donc au minimum un entrait de 60 mm de haut, alors que j'en ai à peine la moitié. Donc pas faisable
Pour rester dans le même genre d'idée, je peux tenter de mettre les tirants métalliques non plus verticaux, mais horizontaux pour qu'ils viennent en contact avec la grande face de l'entrait. J'aurais alors des dimensions suffisantes pour assurer le respect des distances minimales entre les boulons et les bords. Le souci qui apparait alors est la fixation de l'entrait métallique sur la jambe de force car, il est perpendiculaire aux joues de l'arba. Il faudrait alors rajouter des équerres aux niveau des jambes de forces.
Sinon on peut aussi faire appel à des connecteurs métalliques qui sont fixés avec des pointes, les conditions de bords étant moins restrictives.
Enfin dernière solutions mais qui ne conserve plus l'entrait bois: le remplacer intégralement par un entrait métal qui rejoint les 2 jambes de force.
Quelle solution vous parait la meilleure?
Merci d'avance pour votre aide
bois19 Hello , quand c'est possible d'avoir accès au bout de la ferme, le meilleur c'est un tirant traversant en ligne avec plaques (perçage sur champs des bois) , et serrage au centre ! le tout planqué sous le plancher (a condition que les niveaux le permettent !
Des étriers , c'est toujours mieux que de percer les bois en travers .
bois19 Et merde
Bon y a les trous de velux pour laisser passer le vent !
Gcloarec La dynamique des vents c'est complexe, la face sous le vent est en supression, le bas de toiture ut étant plus que le haut; Et l'autre face est en dépression ou en suppression mais moins forte que sur l'autre face. Il faudrait au moins des velux sur les 2 pans de toiture pour équilibrer
Je vous mets une photo d'une fente que j'ai dans le mur au niveau d'un blochet. Je suis assez étonné de ce genre de fente avec comme origine une poussé des ferme vers l'extérieur de murs. Cette poussée est avérée, sans aucun doute, mais je me demande si je n'ai pas d'autre cause sur la pathologie des murs.
Vos avis seront les biens venus
Merci d'avance
ah, il semblerait que la photo ne soit pas passée
Bon je partage un avancement de mon chantier je ferai un post plus complet une fois fini :
superbe !!!
wahou !!!!!!
Joli taf, on patiente pour la publication dédiée ! Tu n'as pas encore d'entrait, sous le plancher, ou c'est qu'on voit mal ?
Niouniou si si , ça rejoint chaque fois une solive faisant entrait !
D’ailleurs au départ elle a été discutée ici !
Mais du coup il n'y a pas de blochet entre l'arba et la jambe de force ?
dependancesbois pas encore, j'attend d'avoir couvert car les boulons sont prévus en acier brut. blochets moisés car au stade conception cette partie là me restait mystérieuse malgré les explications piochés un peu partout. La jonction arba/blochet et sablière extérieure j'ai pas été très académique...
Et en effet il y a un entrait/solive où se repose la jambe de force.
je viens de mettre une première noue (dans la chambrée de panne) et les pannes qui la rejoigne.
J'AI GALERER A TROUVER L'ANGLE DE COUPE DES PANNES !!!!
J'ai du raté un chapitre de ce magnifique post ! xD
Je mettrai de détails technique sur le post dédié, mais comme je re-maçonne les pignons ça me prends des plombes. M'en reste plus qu'un sur 3... Encore une semaine à monter des cailloux à 6 M de haut ! Youpi...
sylvainlefrancomtois j'avais loupé ce pas à pas, instructif aussi !!
Gcloarec je comprends mieux ! En tout cas quel boulot ! Bravo.
Bonjour à tous, bravo et merci Sylvain pour votre article. Je fait parti des amateurs aimant le travail du bois,passionné de menuiserie j ai aussi déjà réalisé un peu de charpente tradi. Je vais m attaquer bientôt à un projet d extension pour mon habition personnelle : un agrandissement avec l étage en colombages (je suis dans les landes) . Lors de ma précédente expérience j ai utilisé du pin maritime autoclave acheté à un scieur les poteaux sont sciés cœur plein centre d un bout à l'autre, le retrait tangeantiel et radial (peut-être aussi chevillage pas assez tirer)fait que a certains assemblages ne sont plus très joints voir photos.ma question est la suivante: y a t il un choix de sciage ( hors cœur, cœur refendu, plein cœur,purgé d aubier ou autre) et des choix de placement ( cœur vers exterieur...) des pieces de bois en fonction de leurs utilités exemple poteau cornier ou sabliere ... pour limiter le retrait du bois?
Merci
A partir du moment où tes sections contiennent le coeur de l'arbre, l'apparition de fentes est quasi inévitable.
On peut limiter ces un peu en ayant du bois assez sec, et le raboter !
Aussi en faisant des embrèvements, (les arasement restent couvert)
Sinon ta charpente est bien faite, et elle travaille normalement .
Merci pour vos réponses,je vais chercher à obtenir un bois plus sec et ferais des embrevements. Les gerces et les fentes ne me gêne pas trop tant qu elles restent admissibles. Je sais pas s il existe d autres astuces pour " jouer " avec le retrait et avoir un fini propre dans le temps ? Certains doivent deviner rien qu en regardant la section comment le bois va travailler
Jeanbaptiste40 pas en charpente !! à par le lamellé collé (et encore !)
Bonjour,
La charpente, ce n'est pas de l'ébénisterie. Le bois travail, se fend, c'est normal.
Les fentes que l'on voit sur tes photos sont ce qu'il y a de plus normal et parfaitement admissible.
Pour éviter un joint au niveau des arases, tu dois "chevillé à tire", cela va permettre le travail de l'assemblage et limité l'apparition de jeu.
youtu.be/qldOFXk13ho
bon copeaux,
Michael
super site! feliicitations!
une petite question: sur ferme de type "latine (avec entrait moisé)", si la jonction entrait/arbaletrier se fait avant l'appui, seul l'entrait vient s'appuyer sur le mur; l'extremité de l'entrait travaille donc en flexion pure...cela semble amener des contraites tres elevées et une fleche beaucoup plus importante...correct? a prendre en compte dans le calcul (evidemment?)...peut on creer un trumeau maçonnerie pour appuyer la charpente directement sous la jonction entrait/arbaletrier?
merci
Salut, il y a cisaillement en effet. mais la résistance au cisaillement d'un double entrait moisé par exemple, en 8*23 est ... colossale.
Maillien Michael merci Michael de l’intérêt porté et de la réponse...je pense cependant qu'il y a une petite flexion aussi( moment = réaction x distance appui/noeud de liaison théorique) qui amène cependant des contraintes élevées (dans mon cas 4 tonnes à 0.65m soit 2.6tm qui parait faible mais amène tout de même 500bars dans mes 2 bastaings 63x160 constituant l'entrait....?...d’où mon idée de monter un trumeau porteur( au lieu de la cloison actuelle) pour supprimer cet effet de bras de levier...(j’espère que mon schéma sera plus clair...)..
Oui en effet, un support ne fera que renforcer, qui peut le plus peut le moins
Maillien Michael ok, merci
...un peu risqués ces appuis décalés, trouvè-je...
manubois Comme Maelien, ici je me pose pas la question c'est triangulation "indéformable" (si la ferme est bien taillée, moise entaillées, et au sec) , mais tu peux a loisir y mettre une jambe ou un trumeau si cela te rassures.
Par contre, si il y a chargement sur l'entrait (plancher porteur, plafond) il faudra aviser!
sylvainlefrancomtois merci Sylvain: oui triangulation indeformable mais mon "angoisse" est que le bloc indeformable (ferme) est posé uniquement sur l'entrait qui reporte seul la charge sur le mur ; un peu comme si on pose un parpaing sur une planche mince qui flechit alors que le même parpaing posé sur ses extremités est rigide...Bref, je crois que je vais monter mon petit trumeau...histoire de mieux dormir...
bonjour à tous,
)
juste pour information, j'ai monté mes petits trumeaux en parpaing(+chaînage vertical) afin que le point de concordance axe arbalétrier/axe entrait moisé soit sur appui...(je dors mieux
encore merci pour vos contributions!
manubois
J'ai tout lu ou presque! Merci pour tout ce travail.
Une question : pour le calcul du poids de la bande de chargement sur une panne, il faut prendre en compte le poids de cette dernière ? dans l'exemple, 197,48 kg/m2, c'est le poids de l'ensemble de la structure, panne comprise et c'est aussi l'élément de calcul de la bande de la panne.
non , puisque c'est justement pour calculer celle ci !
ok
je me disais bien.
Bon, je continue mes calculs :)
Enorme travail, richement illustré.
Une question. Dans le cas d'une charpente traditionnelle, si les pannes ne sont pas posées sur des sabots métalliques (à mon avis ce procédé n'est pas tradi), elles traversent la maçonnerie du pignon, les débordant plus ou moins (En Bretagne, pas du tout). Sur une photo du topo, on voit clairement cela. La question est : comment concilier cette technique avec l'installation d'un chaînage en béton sur le pignon. Apparemment, la construction photographiée en est dépourvue. Est-ce un problème ? Peut-être y a-t-il une norme qui impose un chaînage béton à partir d'une certaine taille de bâtiment... Or, si l'on construit un chaînage en béton sur les pignons, comment faire passer les pannes à travers ? Merci aux connaisseurs de m'éclairer à ce sujet. Selon moi, ce n'est pas seulement une question de maçonnerie. Frédéric F
Hello, on rampe les pignons par dessus les pannes dans la hauteur des chevrons !
Principe ici par exemple tiptop.eklablo...ardin-a46631616
Oui bien sûr ! Merci beaucoup. Je bloquais là-dessus. Fred F
Super travail , tres enrichissant !
Merci beaucoup
J'ai une petite question, je retrouve sous mon toit des barres metalliques qui paraissent le soutenir ? auriez vous une idee de ce à quoi cela pourrait correspondre ?
J'ai essayé de mettre une photo pour voir.
et est ce que ce procédé pourrait etre modifiable pour du travail tradi en bois ?
merci de m'eclairer :)
Zakaria M
C'est une charpente métallique , avec chevronnage en bois !
Rien a faire! ou tout refaire ! désolé !
Merci pour ce cours magistral!
J'ai une question sur les charges de vent.
J'envisage un carport ouvert aux 4 vents, 6m*5m.
Vu mon emplacement géographique (le Nord), c'est ce qui est le plus prépondérant (neige bof bof, structure légère en bac acier, aucune charge permanente).
Mais la toiture sera plate : je peux diminuer un peu les charges de poussée du vent dominant non?
Ca m'aiderait car j'ai fait les calculs et je suis un peu limite avec des madriers de 225x75mm en 6m de portée si je prends les 75kg/m² recommandés.
Tout dépend si c'est contreventé ou pas !
un plan global svp !
Merci!
J'y travaille justement.
J'envoie ça rapidement.
Et voila! C'est assez sommaire comme plan, mais ça donne une idée.
Ici, le vent dominant est d'ouest. Mais le carport sera "protégé" par l'atelier et la cabane de jardin (je ne l'ai pas dessiné, mais le terrain est en pente, l'atelier est plus haut que le carport).
Au nord, c'est le garage du voisin. Pas d'appui possible sur ce dernier.
La face la plus exposée, c'est celle située à l'est, par laquelle nous entrerons nos voitures.
Poteau 15x15 et madrier 225x75
Jeromymacam bien ancré au sol pas de soucis, mais en structure ce serait mieux comme cela pour 6 m !
Merci,
Mais ma femme ne veut pas d'un poteau au milieu.
Elle a peur de l'accrocher avec sa voiture.
Jeromymacam 3 poteaux sur les 6 m ou 2 sur les 5 m en porteurs !!
Je ne visualise pas ce que tu écris. Tu me fais un croquis?
Salut, pour mon carport, j'ai fait comme le dis Sylvain, avec un poteau au milieu.
J'ai les mêmes dimensions que toi à savoir 5m x 6m.
Ma femme n'est pas une pro du pilotage et elle arrive a rentrer sa voiture (un Jumpy spacetourer 8 places !) entre les poteaux et en marche arrière !!
J'avoue qu'au début c'était un peu compliqué, mais avec l'habitude ca se fait très bien.
Cdt.
Voici le Pas à pas si ca peut t'aider.
Cordialement.
hein hein!
La force de cette réalisation est d'avoir reculé les poteaux. Plus facile pour se garer. Elle devrait être rassurée.
(Moi aussi, car mon terrain sert beaucoup aux automobilistes qui vont demi-tour chez moi...)
Merci beaucoup!
stefdefoot +1
stefdefoot Tu n'aurais pas une photo avec le bac acier stp ?
Jeromymacam Je t'envoie ca dans l'apres midi
Merci!
Voici les photos
Merci beaucoup.
Ce qui m'"inquiétait", c'était le déport du bas acier sur le plan skp.
Il est beaucoup moins important en vrai.
Moi ça me plait. Beau travail.
Je montre ça à ma femme ce soir.
Jeromymacam avec des fleurs !!
Ma simple présence fera office de fleur!
Bonjour Sylvain,
Merci pour ce travail accompli epoustouflant !
Je suis toujours sidéré par les volontaires bénévoles d'internet qui déplacent des montagnes. Et c'est de nouveau le cas pour ton ouvrage. Je n'imagine pas le nombre d'année passer a rediger tout cela...
Un point sur ma situation pour mieux faire comprendre l'ensemble de mon point de vue. Je retape une vieille maison en pisé de deux siècles dans le Dauphiné, au sud de Lyon. Dans ces maisons d'epoque, il etait coutume de dire que la construction etait encadré par un maitre charpentier et des proches, voisins qui se pretaient a la corvée non plus des champs mais du batiment. Un chantier de 10 ans pour moi aujourd'hui. La charpente est toujours aussi importante, c'est le chainage du batiment ancien (pas de linteau feraillé) et le dernier budget, celui maousse-casto.
Pour ton travail que j'apprecie beaucoup. Ma position est que malheureusement, c'est soit trop, soit pas assez. Trop pour etre ignoré, pas assez pour etre suivi en l'etat.
Le savoir, la qualité, les illustrations, la transmission - bravo.
Le format - une page web imprimé en 200 pages papier, la mise en page - plus a
niveau au fil du discours, le present permanent - les reponse aux commentaires
qui repiquent dans l'article et repartent creant un imbroglio; font que malheureusement
je ne me fierai pas a ton travail pour mon projet. A regret.
Je me permets de t'adresser cette critique que j'espere rendre constructive car j'ai vu cette situation mainte fois dont notamment chez Mr Jean-Jacques MILAN, professeur de mécanique a la retraite qui a contribué pendant 20 ans chez wikipedia, puis pour des raisons attenantes a wikilivre (wikibook en anglais).
Si tu as le temps, je te conseille d'aller voir son profil
fr.wikibooks.o...ILAN#Wikilivres
Et ses ouvrages dont
fr.wikibooks.o...wiki/Tribologie
Peut-être qu'un si magistral (mais encore embryonnaire IMHO) traité pourrait y gagner un jour. En attendant pour ma part, cela sera la librairie du compagnonnage et ces ouvrages allemands.
Une bonne continuation
Olivier
hello merci de cette critique ! En fait mon travail n'est pas un ultime traité, c'est un tremplin vers ce qui devrait être fait et approfondis par des novices , afin qu'ils réfléchissent leur projet avant de faire des "boulettes" parfois graves (pas d'improvisation surtout en charpente).
J'ai tellement vu sur le net d'inepties sur le net, que d’après moi il fallait mettre un chemin !
hello ! et bienvenue sur le site
Copie /colle ton texte, et met le dans la rubrique questions, avec des photos svp , moi et d'autres se feront un plaisir de te répondre objectivement !
Oui, ok ! Désolé, je n'ai pas encore bien saisi les subtilités du site.
Superbe travail encore un fois !!
Je cherchais à comprendre les fondamentaux, j'ai trouvé
Merci encore pour ce travail colossal sylvainlefrancomtois
merci!
Ce "cours" est tellement bien écrit utile, riche, généreux, génialissime. Merci infiniment
Bonjour, puis-je utiliser des poteaux moisés pour une pergola, merci ?
oui, mais il faut protéger mécaniquement les bois contre les infiltrations (zinguerie, bardage, ...)!
sylvainlefrancomtois Merci beaucoup
sylvainlefrancomtois
Un tout tout grand merci pour ce fabuleux travail !
Je me retrouve projeté de l'architecture contemporaine à la responsabilité d'une société qui réalise des charpentes traditionnelles et vraiment, j'ai plus appris en lisant votre article que dans tous les vieux syllabus de cours universitaires !
Très belle générosité, merci
merci
J'ai une notification à chaque nouveau commentaire de ce sujet que je suis, et en effet, c'est une base documentaire d'une très grande utilité, que je revisite régulièrement, encore merci !
Superbe cette bible !
Un enorme MERCI pour avoir pris le temps de rassembler et partager toutes ces precieuses infos !
C'est tres appreciable pour un debutant comme moi, qui s'interesse a la charpentrie !
Merci pour ce joli travail didactique. Un réel plaisir de lecture.
Suis tombé sur cet article en cherchant a réaliser des tenons / mortaises mordane pour la réfection d'un solivage de moulin et pose de plancher traditionnel.
Entre trémie d'escalier et meules à entourer, le nombre de linçoirs est conséquent, donc le nombre de mordane pour cette surface.
Autant j'ai compris que l'épaisseur du tenon était de 30 mm, au milieu de la hauteur de la solive, que l'emplacement de la cheville est sur la partie plate et limite de la partie épaissie, autant je n'ai rien trouvé quant à l'épaisseur du mordane.
L'existant (début 20e) sur les solives de 185 mm était un avancement de 14 mm, pour un tenon total de 64 mm (face inférieure) donc 50 mm à la face supérieure et non traversant. Les solives de remplacement en lamellé collé sont du 80 x 220 mm .
Malgré une recherche assez large, je n'ai pas trouvé grand chose sur le dimensionnement ou la pente
.
Existe t il une règle, une habitude, une loi empirique sur le dimensionnement des mordanes ?
Merci à vous
Phil85 Malheureusement Sylvain ne vas pas pouvoir répondre, il a de gros problèmes de santé, sa myopathie l'handicape de plus en plus et moi je n'ai pas les compétences pour répondre à cette question.
Merci avec une pensée vers lui
Phil85 est-ce que tu aurais des photos?
Du solivage, ou du tenon / mortaise existant ?
Phil85 Je pense que les deux sont intéressants. Si il s'agit de restaurer une charpente histo et si ce qui était fait n'est pas incohérent avec le projet je pense que j'essaierais de le reproduire.
Dans Les assemblages des ossatures et charpentes en bois de Manfred Gerner, le tenon mordane est fait avec un tenon d'un tiers de la retombée de la solive d'épaisseur et min 4cm (les tenons de 3cm c'est une habitude française), une mortaise de maximum la moitié de la largeur de la pièce qui l'accueille (la version traversante à clef n'est pas présentée dans l'ouvrage) et environ la demi-longueur du tenon pour l’embrèvement oblique.
(Penser aussi que lorsqu'il y a besoin de chainage l'ajout d'un étrier métallique - un fer plat formé - est histo).
J'essaierai de regarder dans d'autres sources plus tard.
Merci.
Photos dans 15j +/- le plan du solivage avec les meules, trémie et autres contraintes
Tenons Mortaise mordane : les photos comme promis.
Pour le solivage, plus compliqué. Photo d'ensemble impossible 7m x 9,5m et en contre-plongée mais ci-dessous un échantillon qui montre les linçoirs multiples pour contourner les meules.
Je n'ai rien trouver concernant la valeur de l'épaulement.
Perso, je lui donnerais la largeur de mon réglet, comme pour un embrèvement.
J'ajoute ce que j'avais trouvé dans l'encyclopédie des métiers mais ça ne répond pas à la question non plus. Dans les schémas ça semble correspondre à une largeur de jauge (3cm) à l'axe et ils s'en contentent pour considérer que toute la section au dessus du tenon participe à reprendre l'effort tranchant (les références aux normes sont datées).
Je mets également un passage sur la traction transversale dans la pièce qui accueille la mortaise et un exemple d'étrier donné dans le Barberot (1911).
Glorfindelrb De fait, la largeur de la jauge se retrouve dans beaucoup de trait, largeur de tenon et mortaise, profondeur d'embrèvement, percement des trous de chevillage etc...
Merci Glorfindelrb pour les références que je vais lire à tête reposée et retourner à mes livres pour l'assemblage linçoir, solive de terminaison et poteau vers le sol dans le L de la trémie.
Une moitié est faite. Je me suis inspiré de vos réponses et de l'existant en l'adaptant à une section de solive plus importante.
Finalement, tenon de 40 mm d'épaisseur et 65mm de profondeur. La mortaise est de 70 mm de profondeur pour des solives de 220 x 82mm. Et le renforcement est de 20 mm ce qui fait venir la cheville vraiment au ras (voir mordre un peu pour tirer) du renforcement.
Ce qui se voit moins est l'absence d'angle droit entre trémie et solive, et oblige à faire les moredane et mortaise en biais. Là environ 10 degré d'écart.
Merci de votre aide.
Salut et merci pour ce pas à pas magistral !
ce commentaire pour signaler une syntaxe qui est partie en vrille (à l'occasion d'une reformulation de phrase) ?
Sous le titre "Physionomie d'une ferme de charpente", au 3e paragraphe, il est écrit : "Par contre, plus la complexité de la toiture finale sera, plus (...)"
je suppose qu'une rédaction de type "Par contre, plus la toiture finale sera complexe, plus (...)" serait plus simple à lire
cordialement
Bonjour floppybois
Merci pour vos remarques.
Sylvain nous ayant quitté, ses écrits resteront pour le moment tels quels.
(Voir trouvailles, au paradis des boiseux)
Cordialement
Pascale, son épouse.
Merci pour votre réponse, toutes mes condoléances.
Cordialement