Le confinement a apporté beaucoup de nouveaux membres sur notre site , et je m’aperçois que l’intéressement aux travaux en bois va croissant, mais au vu des questions de novices en tout sens et sans aucuns sens parfois, je vais essayer de redonner quelques notions pratique de la taille des bois !
Je me propose donc de refaire avec vous mon apprentissage de première année revisité au niveau technique de l'atelier , pour repréciser que le travail du bois est à l’origine de professions qualifiées issues d'un savoir faire ancestral transmis qui ne s'improvise pas sans passer par les fondamentaux , à mon avis primordiaux, que nous partageons (les pros) ici avec joie et bienveillance .
Ce pas à pas détaillera les pièces d'apprentissage de façonnages et d'assemblages traditionnels à faire de préférence à la main , mais on peut aussi se servir des machines pour corroyer les pièces si l'on est rompu au corroyage manuel , si l'on veut expérimenter ou progresser !
Au programme : Une chronologie progressive par des dessins explicatifs, textes d'analyse et de conseils, et des liens de l'air du bois ou autres !
Pour résumer le but de ce pas pas en quelques mots rapportés par notre ami racmterrof
"Dis moi et j'oublerai."
"Montre moi et je me souviendrai".
"Implique moi et je comprendrai."
Bref savoir commencer par le commencement !
En apprentissage à l'époque, les cours de technologie à notre dispositions étaient le plus souvent souvent issus des cours compagnonniques, et des écrit de Jacques Heurtematte (des mines d'or pour les fondamentaux ), que nous retranscrivions à la main dessins compris (à l'encre de chine) !
Ici un exemple d'application complète de travail à la main !
ici un pas pas sur l'histoire et les nombreuses publications de ce Monsieur.
Liste des articles
- Les 4 m2 d'un apprenti boiseux et l'outillage nécessaire
- Apprendre à corroyer une pièce (Dégauchir un plat un champ puis tirer de large et d'épaisseur)
- Première pièce d'initiation et utilisations correctes des outils basiques
- Pièces d'entailles d'apprentissage ( progressions et précisions)
- Les assemblages d'apprentissage à mi-bois en croix
- Les assemblages d'apprentissage à mi-bois d'angles et en "T"
- Les assemblages d'apprentissage traditionnels tenons/mortaises (les bases)
- Les assemblages d'apprentissage traditionnels tenons/mortaises/enfourchements pratiques
- Les assemblages d'apprentissage traditionnels tenons/mortaises/enfourchements pratiques (suite)
- Assemblages d'apprentissage à queues droites et à queues d’aronde
- Assemblages d'apprentissage les entures
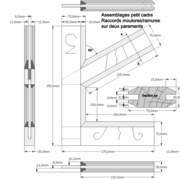
- Présentation des assemblages d’apprentissage petit cadre/grand cadre
- Assemblages d'apprentissage petit cadre (raccordements, moulures, rainures, feuillures)
- Assemblages d'apprentissage petit cadre (raccordements composés, moulures, rainures, feuillures)
Les 4 m2 d'un apprenti boiseux et l'outillage nécessaire
Pour apprendre, progresser, expérimenter , il nous est nécessaire d'avoir un petit coin à nous , Mais inconditionnellement autour d'un établi (au moins trois cotés accessibles si contre un mur ) et les outils à proximité immédiate.
Le lieu doit être propre, bien éclairé, lumineux, sec et tempéré.
En effet des conditions correctes sont déjà un outil en soi ! En y ajoutant de la tranquillité pour ce concentrer (musique de fond autorisée), mais même si je suis fan d' AC/DC ou Motley crue, évitez au début le hard rock !
Avant de renter dans le vif, nous découvrons sur la photo ancienne ci dessous que quelques m2 suffisent à un apprenti pour travailler! J'ai mis cette jolie prise de vue d'un autre temps, pour illustrer ce qui me rappelle grandement pleins de merveilleux souvenirs (mais parfois douloureux (mauvaises notes, engueulades, refaire une pièce ratée en colle etc ...)
Un établi efficace
Pour apprendre traditionnellement, pas besoin d'une "Rolls" (rien n’empêche de s'en faire un à soi quand on maîtrise le travail du bois) !
Ci dessous le plus classique lourd et ferme sans jeu, avec au minimum sa presse, son valet, et sa griffe !
Sa hauteur définie généralement a la ceinture de l'utilisateur ou 25 cm de son coude au plateau , varie en fonction votre taille et votre ressenti de confort de travail, donc si on en acquière un d'occasion , on coupe un peu les pieds ou on les cales si ce n'est pas à la bonne hauteur à l'achat !
Enfin ce sera généralement l'action de corroyer qui détermine la bonne hauteur ( normalement on pouvait corroyer pendant huit heures d'affilées avec arrêt toutes les 2 heures (casse croûte, la clope (je sais c'est pas bien) et le repas de midi bien sur !)
Quelques explications ici : boispassionset...-etabli-atelier
La caisse à outils de base
Bon je vais pas décrire une caisse, mais son contenu minimum nécessaire pour faire les pièces d'exercices à venir ! Sachant que les anciens s'en contentaient très bien et faisaient des prouesses avec (je sais ça énerve !)
Pour les petits budgets , je précise que l'on peut acheter des bons outils d'occasions vraiment pas chers (sites d'annonces , vide grenier , etc ..)
Ne pas hésiter à aller voir le travail remarquable sur les outils à bois de lairdubois.fr/...dneis/pas-a-pas
Riflard, varlope, rabot : Outils de corroyage (Riflard pour dégrossir (blanchir) et varlope pour dégauchir puis équarrir précisément les pièces de bois) ,et le rabot pour corroyer des petites pièces, des ajustages et finitions !
Il faut vivre avec son temps, je n'impose pas les outils traditionnels en bois (rien n’empêche de les utiliser), mais j'ai moi aussi vite adopté après la première année les outils métalliques types Stanley des n°4 à 8 pour les classiques (Rabot n°4 (longueur: 25 cm) et varlope n°6 (Longueur: 47,2 cm) pour ma part )
Maillet et marteau : On les connais tous ! Un maillet de menuisier pour l'usage des ciseaux et bédanes , ici un vrais traditionnel que l'on fabriquait en apprentissage à l'époque
,et un marteau pour la griffe et démonter les outils de corroyage et rabot traditionnels , montage ect .. .
Ciseaux à bois de bonne facture : Pour tout entaillages divers, 8/10/14/20/30
Bédanes : Pour mortaiser ! Les pièces que je vais utiliser pour illustrer la progression seront généralement en 27 mm soit 24 mm finies ,donc un bédane de 8 mm sera suffisant !
Dans une caisse à l’époque nous avions 6/8/10/12 mm afin de respecter le façonnage de 1/3 d'épaisseurs normalisées !
Les scies : En apprentissage à l'époque, c’était scie à cadre point final !
Une scie à tenon pour les sciages en fil (grosse denture). (Pas : 4 à 6 mm.)
Une scie à araser pour les arasements et les coupes d'entailles à travers fil .(Pas : 2,5 à 3 mm)
Une scie a dos pour les coupes fines. (Pas : 1,5 à 2 mm)
Alors je vous rassure, vous avez tellement le choix actuellement entre les scies à cadre traditionnelles, anglaises ou japonaises, je vous laisse réfléchir et choisir à votre sensibilité !
Toutefois, les 3 dentures différentes en pas, sont obligatoires !**
Je préconise de les choisir de bonnes qualités évidement et affûtables !
Outils à mesurer et tracer : Pour faire des pièces pas besoins de beaucoup de choses !
Un trusquin traditionnel sur lequel on peut installer plusieurs pointes (impératif pour les tenons et mortaises)
Un double mètre et un réglet de 30 cm .
Une équerre graduée (250 mm) .
Une fausse équerre.
Une pointe à tracer ou un tranchet.
Un crayon de menuisier et une craie industrielle.
Un compas à pointes sèches avec vis de réglage (hauteur env 200 mm) .
Outils divers :
Lime et râpe à bois .
Une presse et un petit serre joint (500 mm) + quelques petites cales.
Un martyr :pièce de bois d'environ 500 mm x 120 mm x 24 mm.
Une cale a poncer .
Un bloc A4 a petits carreaux et un stylo bic bleu et rouge .
Voilà tout ce qu'il faut pour commencer à apprendre et travailler le bois d'assemblages !
ici un pas a pas très très bien fait sur les outils nécessaires !
Un petit mot sur l’affûtage des outils à mains !
Ce pas a pas n'est pas le lieu de faire un chapitre sur l’affûtage des outils manuels, mais seulement de façonnages proprement dit !
Mais j'insiste sur le fait que des outils mal entretenus ou désaffûtés , mènent directement à l'échec et le découragement !
Il y a pléthore de moyens et de tutoriels très bien fait sur le sujet , donc je ne vais pas vous embêter avec ma vieille meule à eau et ma pierre à huile ainsi que mes tiers points !
Ici encore par notre amis dneis qui si colle ! Sur la remise en état et affûtage d'un rabot ,sachant que le procédé est similaire aux autres varlope, riflard, ciseaux, etc ..
Ici parfait pour les scies à mains ! youtube.com/wa...h?v=swg5Bs4sBd0
Ici un pas à pas de l'air du bois sur l'affutage !
Donc, faites de vos outils perso (qui ne se prêtent jamais), le prolongement de vos mains et de votre cerveau , et rangez les avec soin !
Apprendre les bois et leurs spécificités !
En apprentissage, des le départ on nous enseigne les bois petit à petit, il ne faut surtout pas se décourager il y en a tellement !
Pour vous rassurer, quand on travaille une fois une essence, on retiens facilement les ressentis (dureté, textures, défauts, vices, odeur, poids, ect) , surtout dans le travail manuel !
un petit lien assez bien fait ici : couleursbois.c...niques/les-bois
Généralement, après ces divers exercices, nous passons a des travaux d'apprentissages plus élaborés techniquement et aboutis !
Ci dessous quelques exemples intéressent :
Apprendre à corroyer une pièce (Dégauchir un plat un champ puis tirer de large et d'épaisseur)
Le professeur dans cette première heure d'atelier, nous réunis tous autour d'un établi et nous sort avec sa forte poigne, les deux monstres qui vont nous faire transpirer et nous donner des ampoules au court d'une année !
Un riflard et une varlope traditionnels de bonne facture "Au Sorbier" en chêne vert !
Au début on trouve ça beau et excitant, puis on les maudit ,et peu de temps après on les aimes
!
Votre première pièce :
Puisque ici nous ne sommes pas dans de l'apprentissage proprement dit, mais une découverte pratique, je vous propose donc de fabriquer votre premier outil (accessoire plutôt) à la main ! Lequel ???????????
Bon personne n'a trouvé ??? Et bien votre "martyr d'établi" .
C'est une pièce de bois, d'environ 500 x 120 x 24 mm sur laquelle nous poserons plus tard des pièces de bois à travailler, destiné à protéger le plateau de l’établi des coups d'outils à bûcher ou surélever pour des coups de scies efficaces .
En effet, c'est un exercice facile pour se mettre des outils en mains et s’entraîner à corroyer correctement !
Cette une pièce utile qui peut être ne sera pas tout à fait aux cotes (car nous aurions dépasser les traits, ce n'est pas très grave) , en plus elle sera mal menée par la suite , donc !
Tout d'abord pour une pièce finie de 500 x 120 x 24 mm, trouvons nous une pièce brute débitée de environ 530 mm x 125 mm dans du 27 mm , de préférence en bois dur (le hêtre est l'idéal en apprentissage pour l’homogénéité de son grain) ,et pour ce premier exercice, choisissons un bois sec, assez sain, et assez droit au départ ! rejetez un bois trop gauche et les gros défauts si possible !
Le gauche ! C'est le fait d'une pièce "voilée" naturellement ou par un mauvais dégauchissage, que l'on nous apprenait à vérifier seulement à l’œil ! Certains aveugles (je suis méchant là ! Pour rire) le vérifie à l'aide de réglettes (voir video) .youtube.com/wa...h?v=ZQJQKkigJUA
Puis plaçons la pièce en fonction du fil du bois (1) sur l'établi prête à être corroyée, après avoir sorti la griffe au marteau un peu plus basse que le bois à dégauchir !
(1) Si le fil n'est pas dans le bon sens à être "couché" par l'outil, c'est ce que l'on appelle dans le jargon "travailler en contre fil", il y aura des éclats donc un mauvais travail ! On le vérifie en regardant sur le champ de la pièce .
La pièce prête à être travaillée sur l'établi : ci dessous le maintien par griffe traditionnelle , on presse avec la main la pièce bien à plat sur l’établi, puis on l'enfonce sur les clous limés à plat par chocs au marteau .
Si l'on ne dispose pas d'une griffe, mais d'une presse arrière et ses butées c'est royal, sinon on peut aussi se fabriquer une butée à coin (il y a pleins de moyens ,un exemple ci dessous) !
A VOS VARLOPES !! 
1/ DRESSER UN PLAT
Nous devons tout d'abord "dresser un plat" ! C'est à dire faire le "parement" de la pièce qui serait dans un ouvrage la face de référence vue finie comportant les moulurations ou l’esthétique de la matière naturelle (ex face d'une porte ou d'un limon d'escalier coté jour).
C'est aussi cette face qui portera les signes d'établissements, et sur laquelle nous appuyons les outils de traçage (ex trusquin) et de façonnages des usinage (ex bouvet), et ultérieurement plaquée sur les tables de machines (ex toupillage) .
Pour cela, on choisira évidement la plus belle face de notre pièce brute !
Finie, elle doit être corroyée parfaitement droite et plate en longueur et en largeur, en vérifiant avec la lame de l'équerre face à la lumière pour voir d'éventuels jours sur toute la surface, et surtout être non gauche!
2/ DRESSER UN CHAMP
Notre face étant calibrée, il faut maintenant "dresser un champ" de référence !
Nous choisissons le champ brut le plus beau sachant que celui ci recevra aussi moulures, rainures ou autres la plupart du temps et seront appuyés aussi des outils.
Nous plaçons la pièce cette fois ci dans la presse avec le champ à corroyer au dessus, en faisant attention au fil à coucher bien sur !
Nous sortons la pièce quand il faut vérifier l'équerrage parfait avec la face ainsi que le droit face à la lumière sur la longueur et nous la replaçons autant de fois que nécessaire jusqu'à obtention de la rectitude plane et de l’équerrage optimum !
Nota : Nous voyons souvent sur des vidéos x ou y, des gens qui finissent leurs faces avec le rabot et un copeau fin ! C'est évidement permis, pour des petites pièces courtes !!
Mais ! Il faut s'habituer en apprentissage à sortir les exercices avec seulement les outils de base ancestraux afin d'acquérir les bons gestes !
Et ce sera le cas pour tous les exercices à venir ! De manière générale, les retouches enlèvent des points et démontre l'inexpérience, c'est pour cela que c'est important pour estimer personnellement votre niveau d'acquisition des gestes et savoirs !
Notre pièce étant dressée d'un plat et d'un champ de référence, nous les établissons à l'aide du crayon en faisant deux petits traits qui se joignent sur l'angle saillant commun, et qui permettrons de les retrouver ultérieurement sur une pièce entièrement calibrée !
Puis nous nous munissons de notre trusquin.
Nota: Le pointage précis du trusquin traditionnel ce trouvera dans le prochain chapitre !
3/ TIRER DE LARGE
On tire toujours une pièce de large en premier, chose que l'on pratique même à la raboteuse.
Le but étant de calibrer notre bois en largeur évidement !
Nous traçons avec le trusquin après son réglage, depuis le champ de référence un trait sur chacune faces de la pièce (plat et face brute).
Ces traits vus par bout issus d'un trusquin traditionnel à pointe, forment un V que l'on doit produire régulièrement mais pas trop profondément sur toute la longueur . (Nous ne sommes pas des laboureurs)
Puis après avoir placée votre pièce dans la presse avec le fil dans le bon sens, nous dressons ce second champ jusqu'aux traits trusquinés, dans le jargon "moitié de trait", ce qui signifie dans le creux du V gravé par la pointe du trusquin . (voir l'illustration exagérée)
Nous vérifions de la même façon que pour le premier champ la rectitude et l'équerrage bien sur !
Nota : c'est ici que le novice généralement plante en premier !!!
en effet il est assez rare de réussir du premier coup ! Donc comme c'est une pièce d'exercice, on retrace un peu moins large de 2 mm et on recommence !! Et surtout on à perdu deux points sur la notation finale de la pièce
!
4/ TIRER D'ÉPAISSEUR
Dernière partie du corroyage d'une pièce à la main, le principe est le même que pour tirer de large !
Sauf que ici , nous traçons le trait de trusquin tout le tour (y compris les bouts de la pièce) , de manière à avoir une référence visuelle de plus pour corroyer !
Si ici aussi on ne réussi pas immédiatement droit et non gauche du premier coup, on retrace un peu plus mince (encore deux points qui sautent) !
5/ COUPER LES ABOUTS
Sachant que c'est une pièce d'exercice, nous en profitons pour abouter celle ci à la dimension demandée.
Avec l'équerre et le tranchet (ou une pointe à tracer), nous traçons un premier about sur le plat et le champ (talon de l’équerre impérativement sur les face et champ de références), puis après avoir pointé la mesure, nous traçons le second about!
A l'aide de la scie à araser, nous les coupons (moité de trait) ! Puis en posant l'équerre depuis les face et champs de références, les abouts doivent être d’équerre dans les deux sens' sans retouche et la mesure doit être exacte !
Apprenez à noter votre pièce sur 20 points:
-2 points par face pas tout à fait dressées et/ou avec jour (2 champs + 2 plats = 8 points)/
-2 points par mesures non respectées( longueur ,largeur, épaisseur = 6 points)/
-1 point par about non d'équerre (2 x 1 point)/
Temps alloué 4 heures normalement dépassé -2 points/
-2 points pour la pièce visuellement esthétique finie (salissures, rayures ,chocs ,éclats ,etc etc)
On joue avec des demi_points pour tout, sur tous les critères (ratée, partiellement réussie, parfaite ,etc)
Voilà votre première pièce finie !
En attendant la suite, ci dessous 1 video sur le corroyage manuel au plus près de la tradition !
Première pièce d'initiation et utilisations correctes des outils basiques
Vous avez déjà fait pleins de copeaux et eu pleins d'ampoules j’espère avec le façonnage de votre martyr ! Eh bien bonne nouvelle, on continue ! 
En premier lieu, nous allons faire une petite étude de l'utilisation pratique et correcte des outils à mains basiques !
En effet j'ai des questions de novices sur le sujet, que je vais développer sur une petite pièce simple corroyée et entailles diverses, à tracer et exécuter avec la scie à araser et un ciseau à bois, avant de passer à d'autres exercices cotés sur plan orthogonal de progression (comme l' illustration 2) !
LA PREMIÈRE PIÈCE D'INITIATION :
Nous corroyons un bois manuellement (pour nous entraîner encore) en fonction d'une chute qui traînerait dans l'atelier ! Environ 300 mm x 60 mm x ép disponible (18/27/34), en bois dur de préférence.
En effet cette pièce tirée de large et d'épaisseur (pas de cotation précise, mais bien droite et équarrie), servira seulement pour y produire un tracé basique et y exécuter des entailles pour s'initier aux nouveaux outils pour le novice.
Tracer correctement des pièces de bois
Dans un ouvrage traditionnel de menuiserie, il est évident que le traçage des bois est primordial ! De plus il doit être parfaitement exécuter pour une précision maximum des opérations de buchage et de sciages ultérieurs.
Il nous faut de quoi mesurer des petites pièces, un bon réglet de 30 cm est amplement suffisant!
Ensuite des outils pour tracer d'équerre et en parallèle, soit une équerre à 90° basique à lame, ainsi qu'un trusquin a pointes .
Pour matérialiser les traits, une pointe à tracer, ou mieux un tranchet !
Enfin, un crayon de menuisier ou des stylos rouge et bleu si l'on désire bien matérialiser le bois chute (futurs enlèvements) .
Pourquoi apprend t'on à tracer avec des pointes plutôt qu'avec un crayon ?
La technique de sciage ou de buchage (travail aux ciseaux ou bédanes) nécessite de laisser à l’exécution "moité de trait" pour une précision optimum (j'ai déjà abordé le sujet plus haut)!
En effet ces outils de traçages traditionnels forment sur le bois de minuscules sillons en forme d'un V , qu'il faudra suivre par le milieu ! Bref ils y en a qui coupent les cheveux en 4 ,et bien nous, nous couperons nos traits en 2 !
Un tracé initial, commencera toujours depuis le champ, ce sera utile plus tard, en cas de pièces multiples les unes contre les autres (fig A), afin de toutes les tracer avec un même piquage et un même coups d'équerre pour uniformiser très précisément leurs mesures !
De plus nous verrons que pour des tenons et mortaises, la précision passera par les champs communs des pièces qui les recevront!
1/ Piquage de la mesure au réglet : La première opération, consiste à "piquer" la mesure finie désirée de la pièces avec deux points issus de la pointe a tracer ou tranchet depuis le réglet bien à plat et parallèle au champ ! On trace au crayon généralement, un petit cercle autour pour les retrouver facilement!
2/ Tracé d'équerre depuis le piquage : En prenant notre équerre, le talon placé contre le parement et la lame contre la pointe ou le tranchet piqué, nous traçons les deux traits d'abouts.
Nous matérialisons toujours les abouts par une croix d'établissement traditionnel, qui signifie qu'il n'y a plus rien après le trait .
3/ Tracé des joues d'entailles depuis le champ : Enfin, pour notre pièce, nous traçons des joues d'entailles !
Pour un tracé optimum, il faut mettre le réglet depuis les piquages d'abouts, puis piquer sans reporter celui ci ! C'est à dire piquer après calcul progressif 30 mm puis à 70 mm puis à 120 mm sans le déplacer, (au lieu de 30 mm puis 40 mm puis 50 mm = 120 mm ), et enfin retourner le réglet vers le second piquage et répéter l’opération .
Pourquoi ? Car en général, quand nous traçons chaque fois les mesures après chaque piquage, on arrive facilement à cumuler des imprécisions !
LE POINTAGE PRÉCIS D'UN TRUSQUIN TRADITIONNEL !
Cette manipulation, se fait par chocs successifs en prenant l'outil en main, et en le frappant sur le plateau d'établi, un peu comme un marteau !
1-1bis/ En frappant la clef (comme si on enfonçait un clou avec un marteau) , pour serrer ou desserrer la semelle de la tige! Ce qui permet avec le réglet de mesurer la distance entre la pointe et celui ci !
2-2bis/ En frappant la tige (comme si l'on voulait remboîter le fer d'un marteau sur son manche) après le blocage de la clef, pour régler précisément le pointage en +/- que nos vérifions à chaque petit chocs avec le réglet !
Une fois pointé, un trusquin ne doit pas tomber par terre, ou recevoir de chocs accidentels, aux quels cas nous devrons le repointer !
Nous pouvons alors tracer nos traits parallèles sur la pièce, ici à l'axe du parement depuis le champ de référence (avec arrêts aux traits d'entailles), et à l'axe sur toute la longueur du champ depuis le parement.
RÉSUMONS LE TRACÉ DÉFINITIF DE LA PIÈCE
1/ Sur le champ de la pièce corroyée, nous piquons et traçons déjà les abouts (si votre pièce fait moins de 300 mm, tracer 280 mm par exemple, l'essentiel et de pouvoir tracer les entailles depuis chacun des abouts), puis nous les traçons à l'équerre sur le parement, et nous les matérialisons d'une petite croix.
2/ Nous piquons les mesures des entailles sur le champ de référence, puis à l'aide de l'équerre nous traçons les traits sur celui ci et sur le parement. Puis nous traçons sur le second champs les traits utiles. Enfin nous traçons la pente de l'entaille en biais sur le champ de référence !
3/ Nous trusquinons les axes des champs linéairement, puis nous trusquinons l'axe du parement (en s'arrêtant aux traits d'entailles (pour apprendre à ne pas dépasser)).
4/ nous hachurons les enlèvements des futures entailles.
Nous allons passer maintenant aux exécutions des différentes entailles de la pièce dans un ordre chronologique défini à raisons, que j'expliquerait à mesure !
Utilisation de la scie à araser, du ciseau à bois, et exécution des entailles
Nous allons passer au "bûchage" de notre pièce, c'est à dire lui pratiquer des enlèvements pour atteindre notre objectif fini !
C'est un terme ancien qui signifie faire un travail à base d'entailles, sinon on parlerai de "mortaisage", "tenonnage", "rainurage", "feuillurage", "moulurage", etc..
Le bûchage traditionnel, se pratique toujours en deux temps: Le sciage précis du maximum des possibilités, puis les enlèvements et ajustages au ciseau à bois !
Pourquoi : Par gain de temps et de fatigue !!
APPRENDRE A SCIER "MOITIE DE TRAIT":
Tout d'abord, analysons le principe ci dessous sur le détail 1/2 volontairement très agrandit !
Nous découvrons le trait "incisé" par une pointe à tracer ou un tranchet ! Celui ci forme un sillon en V mais contrairement au trait de trusquin vu plus haut, celui ci et en "bois de travers" ou "travers fil", à la fois sur le champ et le parement .
Le but du sciage parfait, et que normalement un menuisier expérimenté, ne retouche pas les joues d'un sciage (ex arasement) ! C'est pour cela que les pièces à venir doivent être brutes de sciages sans ajustements qui en en apprentissage enlève des points !
Pour optimiser chaque opération de la pièce à travailler (sciages, bûchages, etc .), celle ci doit être parfaitement maintenue sur un support (le martyr + l'établi) très stable . Dans notre cas, classiquement nous nous servirons du valet d’établi à choc ! Rien n’empêche de prendre un serre joint ou un autre modèle de valet (à came ou excentrique)à notre disposition ainsi qu'une cale assez large pour éviter le marques d'enfoncements indésirées.
Les principales fautes d'exécution de traits de scie nommées : (illustrations 1/2/3)
Nota : Le valet classique se serre par chocs au maillet par le dessus 4/, et se desserre par chocs au dos 5/ !
Nous allons maintenant scier la première entaille de notre pièce, Celle ci sera entaillée en biais!
Pourquoi commencer d'apprendre par un biais ? Eh bien parce que tout les traits de scies se font déjà ainsi, pour pouvoir "guider" la scie avec ce premier sciage qui servira de guide en cas de section complète (ex: L'about), ou servira de guide pour le bûchage au ciseau!
1/ La scie est maintenue bien verticale, et à l'aide du pouce de l'autre main, nous amorçons la coupe!
2/ Le trait de scie doit être effectué complètement jusqu’aux tracés horizontaux simultanément sur le champ et le parement !
3/ Nous exécutons le second trait de scie (a droite), à la différence que ici il faut viser de l'autre coté de la lame !
4/ Les joues de l'entaille sont terminées, nous allons pouvoir maintenant bûcher et dresser le fond au ciseau à bois !
5/ En résumé, si vous n'avez pas de pansements sur les doigts et que votre pièce n'est pas tachée de sang
, ainsi que des traits de scie précis "moitié de trait", votre premier sciage traditionnel est réussi ! On peut aussi vérifier la profondeur correcte avec le réglet !
Sinon, ce n'est pas grave il y auras des milliers de traits de scie à venir, Surtout ne pas se décourager, car presque personne n'y arrive du premier coup (moi le premier c’était il y a presque 40 ans
) !
ici en pratique :
APPRENDRE A BÛCHER AVEC UN CISEAU A BOIS :
Bien utilisé et affûté comme un rasoir, le ciseau à bois offre beaucoup de possibilités d’exécutions ! Découvrons sur l'illustration 1/ ses différentes parties nominées pour la suite des explications .
2/ En le frappant sur le manche au maillet ou à la paume :
Avec la planche servant de guide, afin de suivre précisément un tracé d'entaille (moitié de trait).
Avec le dos pour pratiquer des enlèvements, en effet le ciseau aura tendance à ressortir et ne pas se planter dans le bois .
Ou encore en raclant pour finir des fonds d'entailles inaccessibles par les bords .
3/ Avec les deux mains ou la paume et l'autre main : Dans ce principe, le ciseau s'utilise surtout sur la planche afin de servir de référence plane pour calibrer parfaitement des fonds d'entailles (presque comme au rabot à main).
Mise en garde : On ne met jamais sa main devant un ciseaux à bois, l'accident grave n'est jamais loin !!! ici des précisions ainsi que pour d'autres outils ! vissermalin.co...rsquon-bricole/
En coupe bois de fil, permet de dresser facilement un fond d'entaille, mais il faut faire attention à l'orientation de celui ci pour éviter les éclat (comme pour du corroyage classique).
En coupe en travers fil, même destination que ci dessus ,par contre les fibres du bois vont avoir tendance à s'arracher .
En coupe fauchante, qui permet de calibrer proprement en faisant un copeau en bois de travers ou parfois en contre-fil .
Ici une vidéo très détaillée de l'utilisation des ciseaux à bois ! youtube.com/wa...=CrayBirkenwald
Nous allons maintenant finir au ciseau la première entaille de notre pièce !
1 et 2/ Nous pratiquons des enlèvements assez conséquent, pour "dégrossir" en frappant au maillet le ciseau, tout en faisant attention de ne pas trop approcher les traits du tracé, afin d'éviter des éclats malheureux qui gâcheraient l'entaille finie en dépassant le tracé.
Nous amorçons la taille par le milieu de l'entaille ,et approfondissons vers les traits de scies.
Nous pouvons travailler de la planche pour bien planter , puis du dos pour limiter les enlèvements en approchant le trait . Vous apprendrez très vite à doser !
3/ En travaillant du dos du ciseau et petits coups de maillet ou de paume, nous enlevons le bois chute de milieu en approchant petit à petit le trait .
4/ En travaillant depuis la planche du ciseau, nous dressons le fond de l'entaille !
5/ Avec le réglet, nous vérifions le dressage fini du travail !
ENTAILLE N° 2 :
Celle ci s'exécute au départ comme la précédente avec le sciage, puis au ciseau nos bûchons en tout sens pour dégrossir et la finir . Nous pouvons ici mettre des coups de scie supplémentaires de dégrossissage !
Comme vous pouvez le voir, cette seconde entaille complique un peu les exercices progressifs !
Son but et d’appendre à bûcher précisément au ciseau à bois !
Normalement seule les demies joues en diagonales doivent être retouchées !(On doit deviner les parties sciées des parties bûchées )
ENTAILLE N° 3 :
La finition de l’arête saillante de l'entaille 2, nous laisse maintenant le loisir de faire l'entaille 3 !
Chose qu'il aurait été compliquée si nous avions fais l'inverse, car en effet il est préférable d'entailler bien verticale pour marquer le trait plutôt que par la pente qui formerait un angle très obtus.
Son but est d'apprendre à bûcher en biais et en fil, tout en respectant la frontière du trait de tracé entre deux entailles antagonistes!
La difficulté qui réside ici, est surtout la pente qui à donc une joue à raccorder en biais !
ENTAILLE N° 4 :
Celle ci est intéressante, car nous devons tout d'abord scier l'about précisément pour qu'il soit bien d'équerre dans les deux sens (Aie !!!!!!!!!!!! pour le martyr qui vas recevoir son premier coup de scie !!), avant de pouvoir y trusquiner en bout le tracé de l'entaille .
Ensuite, nous allons apprendre à descendre un arasement (comme pour un tenon), avant de dégrossir et de finir au ciseau la surface du fond de l'entaille .
Suivant le fil que l'on a, il faut se servir de la planche ou du dos du ciseau pour les enlèvements, afin de ne pas éclater le bois chute qui pourrait dépasser le trait !
Enfin avec la planche du ciseau en coupe fauchante, nous dressons le plat final !
ENTAILLE N° 5 :
Dernière ligne droite !! Ici l'entaille se fait classiquement maintenant comme la n°2, sauf que la difficulté est que celle ci se raccorde sur une arête verticale avec la seconde ! Donc on devine la précision du bûchage et de la finition à exécuter !
Enfin il nous reste à couper le second about, et admirer notre ouvrage !
Le principal, pour cette pièce d'initiation, est évidement d'essayer de bien faire, et de découvrir les gestes !
Et enfin apprendre à s'auto-critiquer pour voir là ou l'on à eu des difficultés et donc d'en tirer les enseignements de nos erreurs !!
Ce qui sera chaque fois au cours d'une carrière professionnelle entière ou d'une activité amateur dans le bois, l'objectif du toujours mieux et plus loin ! 
Notre amis executionbois , à décidé de faire courageusement un retour pratique de ce premier exercice ! Il faut dire que revenir 40 ans en arrière , c'est pas évident .
Cette vidéo nous décrit le cheminement et bien d'autres petits détails intéressant sur l'exercice, que l'on ne peut coucher sur le papier.
Si je devais faire dans les grandes lignes un retours sur cet exercice en video, Je dirais qu'il est préférable de prendre du hêtre plutôt que du chêne (grain plus fin) pour des pièces de progression, De plus le maintien ferme de la pièce (valet) sur un établi massif en bois dur est primordial pour la réussite de travaux à la main .
Pour ceux qui n'ont pas d'établi assez "dur", il faut essayer de ce placer à l'aplomb d'un pied , et de prendre un martyr en bois dur !
ici en pratique :
Merci Brice , à qui le tour ??
Pièces d'entailles d'apprentissage ( progressions et précisions)
Vous êtes mis en mains les outils de base !! bravo !! Alors si vous êtes toujours motivés (j'en suis sur), nous allons pouvoir passer aux travaux de perfectionnement de bûchages d'entailles .
J'ai essayé de joindre des difficultés progressives, avec des pièces esthétiques et ludiques, donc intéressantes à réaliser. Ensuite, à la fin de ce chapitre, je joindrai un petit exercice assez spectaculaire et récréatif !
Pièce d'entailles négatif-positif ("Crampons") et sciages traversant
Cette pièce corroyée à la main de préférence, à la particularité d’être taillée dans un seul parallélépipède monoxyle, qui inclus une portion positive et sa portion négative, puis elle est sciée en son milieu et doit s’emboîter et plaquer surtout sur les tracés des deux champs simultanément !
Y arriver du premier coup brut de bûchage sans retouche est rare!
En effet l'exercice démontrera l'importance du tracé initial précis et des gestes à acquérir .
De plus elle fournit une gymnastique de l'esprit qui exprime aussi la complexité de détails qu'il est important de prendre en compte tout au long de chaque ouvrage en bois que l'on exécute (mâle-femelle).
Nota: Il est important aussi dans un apprentissage sérieux, de copier et coter d'office les pièces que je vous propose en dessin orthogonal sur votre bloc A4 à petit carreau !
En effet le fait de dessiner un ouvrage, permet de bien se le représenter ensuite cérébralement et ainsi d'éviter souvent des erreurs à la fabrication !
Analyse de fabrication :
1-2/ Apres avoir corroyée correctement la pièce de bois, nous traçons sur le champ de référence les différents abouts, puis nous piquons les divisions de chaque coté en multiples de 25 mm (voir image 1) (25/50/75/100...) . Je l'ai déjà expliqué plus haut, c'est un gage de précision ! Nous traçons nos traits d'équerres depuis les piquages sur les champs et la face ! Enfin nous trusquinons les deux champs depuis la face de référence .
3/ Nous matérialisons nos enlèvements de bois chute depuis les tracés d'entailles, chaque fois une entaille positive en même temps que son équivalente négative .
Des hachures pour les entailles droites, et des arrondis pour les entailles biaises (ce qui évitera là aussi des erreurs) .
4/ Nous entaillons de manière classique, mais en bûchant chaque fois une entaille positive et sa négative immédiatement après, ce qui permet de jauger avec le réglet le droit et les mesures plus précisément (voir image 2)! Nous recherchons ici la précision des joints sur les champs, pas une finition de surface des pentes et fond d'entailles (ce qui n’empêche pas de s’appliquer) !
Nota : Ce sont ici des sciages traversants, de ce fait nous descendons le trait depuis le parement jusqu'au tracé trusquin du champ de référence, puis sans retourner la pièce, nous descendons l’arrière, le premier sciage bien fait nous sert normalement de guide !
5-6/ Nous scions les abouts du centre de la pièce afin de les détacher l'une de l'autre , puis nous les emboîtons pour découvrir notre résultat brut final !
Si tout colle directement, ben vous avez un don ou une chance à jouer à la loterie !
Sinon, par coulissage et vision face a la lumière du jour ou d'une lampe, nous déterminons les zones de frottement à recaler avec la planche du ciseau en coupes fauchantes pour ajuster !
Enfin une fois finie, nous faisons notre autocritique ! Précision du tracé, de la taille, et de l'ensemble emboîté, pour déceler ou nous devons nous appliquer dans le futur .
Nous pouvons teinter de façons différentes les deux pièces pour matérialiser l'exercice .
Ici un audacieux présent sur l'air du bois
Pièce d'entailles d'apprentissage avec finitions en pentes
Cette seconde pièce, nous fera progresser et acquérir des gestes des finitions de pentes décoratives en menuiserie ou autre (ex. pointe de diamant) !
Là, en effet nous allons dresser toutes les surfaces de pentes en termes de finitions et précisions ! Nous devinons ici que les coupes fauchantes vont être de la fête !
Sur le dessin orthogonal, nous découvrons un tracé devenu maintenant classique pour un apprenti! Rien de "sorcier", mais l'application est toujours de rigueur ! 
Analyse de fabrication :
1/ La pièce corroyée à la main , puis nous y traçons les abouts depuis le champ de référence .
2/ Nous traçons les entailles depuis le champs , et nous reportons le tout sur la face et le champs arrière, puis nous matérialisons les différentes entailles !
3/ Nous bûchons toutes les entailles traversantes, puis nous traçons les arêtes des pointes de diamant, et nous les exécutons .
4/ Nous faisons notre autocritique ! Ici les tracés doivent être évidement respectés et nos dressages de pentes doivent être droits et bien lisses brut de ciseau !
Pièce d’apprentissage en tracés de précision, menues entailles, entaille traversante et emboîtement mâle femelle
Voilà une pièce très intéressante car elle préfigure les assemblages traditionnels que nous verrons par la suite, elle est en un bloc monoxyle contenant deux éléments qui s'assembleront au final !
Celle ci comporte des "menues entailles" à faire aux ciseaux de petites largeurs, comme dans des entaillages de précisions pour de la quincaillerie par exemple!
Elle demande aussi de la patience pour faire l'entaille traversante, en effet si nous ne "dosons" pas les coups de ciseaux, nous risquons de fendre la pièce !
Nous aurons aussi à faire des chanfreins obliques de finition.
Enfin il s'agira de séparer les deux éléments, affin de les emboîter l'un dans l'autre .
A vos outils !
Analyse de fabrication :
1-2/ La pièce corroyée à la main, puis nous y traçons les abouts des deux éléments depuis le champ de référence, ainsi que les trusquinage arrêtés aux bons abouts sur les deux champs .
3/ Nous traçons les entailles depuis le champs !
Attention ! Ici les tracés s’arrêteront sur le trait de trusquin des champs, et nous ne tracerons que les divisions utiles, afin de commencer à s'habituer à éviter les traits inutiles !
4/ Nous traçons sur la face de référence, les retours d'équerres depuis le champ, puis nous y traçons ensuite les divisions manquantes .
5/ Nous pointons le trusquin et traçons toutes les divisions horizontales. (Par retournement si votre pièce est parfaitement calibrée !)
6/ Nous traçons assez fortement l’ellipse décorative, en reliant les divisions horizontales, et les divisions réciproques verticales avec des traits !
7/ Nous finissons les tracés de l'élément à séparer, puis nous matérialisons tout nos bûchages !
8/ Nous exécutons en premier l'entaille traversante, en effet c'est préférable pendant que le bloc est entier sans faiblesses pour éviter le fendage ! Je le répète ici, il faut bien doser les coups de maillets et de ciseaux ! Donc être patient et concentré.
Le principe et de percer la pièce en totalité dans un premier temps à environ 1 mm du tracé, puis de bûcher au ciseaux précisément les joues en finition .
Nota : toutes les largeurs de ciseaux peuvent être utilisées suivant les besoins !
9/ Nous bûchons les menues entailles ! Ici il y à peu de sciages, mais il est préférable de les faire à la scie sterling pour être très précis .
10/ Nous finissons l'élément à détacher, ses chanfreins et son arasement ! Attention ici, il faut bien calibrer l'épaisseur de bois a laisser en fonction de l'entaille femelle qui le recevra !
Il faudra qu'il rentre légèrement en force à l’emboîtement .
11/ Nous coupons les derniers abouts, sachant que l'about central tracé nous détachera en un même coup de scie l'élément !
Puis nous ajustons celui ci et nous lui exécutons des épaulements en fonction de l'entaille réceptrice, ainsi que le "mouchage" d'entrée de la partie mâle (ici "tenon bâtard")(mini chanfreins à la volée au ciseaux à bois) !
12/ Nous assemblons la pièce finie, et nous faisons notre autocritique .
Les tracés sont ils précis et esthétiques ?, les entailles sont elles précises et sans défaut ?, L’emboîtement des deux pièces est il précis et rentré en force ? (Nous devons pouvoir soulever la pièce complète sans quelle se désassemble !
Si votre pièce est belle, vous pourrez toujours y mettre la photo de l’être aimé, si c'est raté, ben vous y mettrez votre belle mère par exemple ! 
Pièce récréative effet torsades
J’espère que les exercices plus haut vous ont intéressés ! Maintenant je vous propose un (ou des) pièces assez spectaculaires à réaliser !
Ces décors sont assez communs chez les charpentiers des pays de l'est ou en montagne, ils sont souvent réalisés sur des poteaux, et seulement à la scie !
Pourquoi cet exercice est il intéressant ?
1/ Il permet déjà de faire l'expérience de corroyer à la main, une pièce équarrie (section carrée).
2/ Le tracé sera fait au crayon de menuisiers, afin de pouvoir effacer les traits ultérieurement .
3/ Le trusquinage se fera avec le coté sans pointe du trusquin et le crayon (effet "traînard").
4/ L’exécution des entailles se fait seulement avec la scie à araser, et permet ainsi de s’entraîner à suivre moitié de trait un tracé au crayon .(Mais rien ne vous empêches de le faire au ciseau pour de la belle finition évidemment )
Voilà pour les pièces d'apprentissage d'entailles diverses, dans le prochain chapitre, nous allons nous attaquer les assemblages traditionnels proprement dit ! 
ici un exemple concret apprentissage :
Les assemblages d'apprentissage à mi-bois en croix
Je rappelle ici en avant propos, la définition d'assemblage :
Un assemblage est le résultat d'opérations faites sur différentes pièces de bois afin de les réunir.
Trois grandes familles d'assemblages existent dans le bois :
1/ Les assemblages de travers (d'ou le non de traverse sur montant) qui assemblent deux bois plutôt en logique perpendiculaire aux fils de chaque pièces (ex tenon-mortaise) !
2/ Les assemblages en bois de bout (communément appelés entures) qui assemblent deux bois linéairement !
3/ Les assemblages en bois de fil, qui eux assemblent deux pièces en largeur par bouvetage (ex rainure-languette) !
Puisque vous êtes devenus des pros du ciseau à bois et de la scie à araser ! Disons plutôt que vous savez comment réussir des entailles correctes après les initiations vues plus haut, nous allons naturellement commencer d'apprendre des assemblages traditionnels à base d'entailles ! 
L'assemblage à mi-bois classique en croix
C'est l'assemblage basique le plus utilisé depuis la nuit des temps servant à croiser deux pièces de bois en affleurement sur un même plan !
En menuiserie (Ainsi qu'en charpente, ébénisterie , métallerie ) c'est généralement celui que nous apprendrons à réaliser correctement en tout premier !
Il est composé d'une traverse croisée avec une "pilette" ! (= petit pilier, mais appelé aussi meneau ou montant intermédiaire (suivant les régions et/ou ateliers))
Le principe parait simple, mais le processus reste à réaliser de façon ancestrale d'apprentissage qui expliquera une autre logique !
Nota : C'est ici qu'un apprenti doit apprendre et appliquer correctement les signes d'établissements !
Analyse de fabrication :
1/ Apres avoir corroyée correctement la pièce de bois contenant les deux éléments de l’exercice (environ 430mm de section 60 x 24 mmm), nous la débitons en deux morceaux égaux !
2/ Nous établissons nos deux pièces , à savoir une traverse intermédiaire et une pilette, puis Nous traçons sur leurs champs de référence les abouts (ici 200 mm) !
Ici commence la menuiserie, il faut tracer les pièces similaires en même temps, toujours dans un soucis de rapidité et de précision, pour cela on les serre avec un petit serre-joint ou dans la presse d'établi .
3/ Important En travail à la main, c'est important d'apprendre à tracer comme je vais vous l'apprendre !! En effet des bois corroyés à la main, ne sont pas assurément calibrés comme à la dégauchisseuse/raboteuse, de ce fait il y a un procédé classique pour garder de la régularité et précision, même pour des bois peu réguliers !
3a/ Depuis un about tracé de la première pièce, nous superposons le bois à assembler précisément sur ce dernier et nous mesurons la distance avec le second about, que nous divisons par 2 . Ce procédé, permet de partager précisément les jours de chaque coté d'une pièce à centrer exactement !
3b/ Nous piquons et traçons à l’équerre cette mesure !
3c/ Nous piquons et traçons à l’équerre le second trait de la joue d'entaille avec la superposition du second bois. Enfin nous répétons l'opération pour le second élément, et nous trusquinons les fond d'entailles depuis les deux parements de chaque pièces !
Nous matérialisons nos enlèvements de bois chute depuis les tracés d'entailles avec les établissements d'usinages normalisés .
4/ Nous entaillons précisément de manière classique (que vous devez savoir maintenant) et nous descendons les abouts , puis nous faisons au ciseau des minis chanfreins "d'entrées" au ciseau .
5/ Nous assemblons, vérifions, et ajustons (normalement à part les fonds d'entailles, cela devrait être parfait sans retouche, et rentrer avec de légers coups de marteau (avec une cale)) !
Enfin avec l’équerre et sa lame, nous vérifions l'équerrage et la planéité de la pièce finie .
Autocritique :
Le tracé doit être rigoureux et réaliser avec les pièces superposées.
Le sciage doit respecter le tracé, "Moitié de trait" .
La matière doit être enlevée avec soin, par de petits enlèvements et finition en coupes fauchantes.
Contrôle permanent au cour des différentes opérations.
Lors de l’assemblage les pièces ne doivent pas « serrer » de trop au risque d’éclatement, ou être flottante sans aucune tenue (traits dépassés ou retouchés).
Sommes nous 'à fleur" et non gauche sur l'ensemble de la pièce assemblée ?
Remarque : Si l’entaille est trop large ou trop profonde les corrections sont toujours visibles et peu efficaces et l’assemblage ne tiendra donc pas physiquement.
Si les pièces ne s’assemblent pas une retouche est possible mais difficile à exécuter. Seul un travail précis et rigoureux permet un assemblage correct des éléments.
Ben oui c'est pas si facile la menuiserie !!
, mais tout le monde peut y arriver si la motivation est là ! 
L'assemblage à mi-bois classique en croix à 45°
Dans ce nouvel exercice, nous déclinons le premier vers une complication d'apprentissage! A savoir d'assembler à mi-bois deux pièces avec un angle donné (ici 45°) .
Le principe reste identique, sauf que nous devons tracer par rapport à l'axe des pièces .
Analyse de fabrication :
1/ Apres avoir corroyée correctement la pièce de bois contenant les deux éléments de l’exercice (environ 540 mm de section 60 x 24 mmm), nous la débitons en deux morceaux égaux !
2/ Nous établissons nos deux pièces , à savoir deux pilettes entre-croisée (une droite et une gauche à identifier avec les demies pointes de flèches), puis Nous traçons sur leurs champs de référence les abouts (ici 250 mm) !
3/ Important Ici nos pièces n’étant pas perpendiculaire l'une de l'autre, il faut tracer les axes communs des deux éléments (à l'image du paire de ciseau). Donc entre les deux traits des abouts sur les champs, nous traçons déjà l'axe de la mesure de ceux ci (ici 125 mm).
3a/ Nous retournons sur la face de la première pièce et sur la sous face de la seconde, les axes depuis les champs . Puis nous traçons notre 45° dans le bon sens en suivant le plan dessiné (avec construction, pas avec une équerre (en menuiserie, il faut apprendre à tracer les angles connus !)).
3b/ Depuis cette ligne a 45° directrice de l'axe, nous y traçons parallèlement une joue d'entaille (ici a 30 mm).
3c/ Nous piquons et traçons la seconde joue d'entaille très précisément,En superposant la seconde pièce! Nous répétons l'opération pour tracer l'autre élément .
Enfin, nous matérialisons nos enlèvements de bois chute .
4/ Nous entaillons précisément de manière classique (que vous devez savoir maintenant) et nous descendons les abouts, puis nous faisons au ciseau des minis chanfreins "d'entrées" au ciseau .
5/ Nous assemblons, vérifions, et ajustons (normalement à part les fonds d'entailles, cela devrait être parfait sans retouche, et rentrer avec de légers coups de marteau(avec cale)) !
Enfin avec l’équerre et sa lame, nous vérifions l'équerrage et la planéité de la pièce finie .
En résumé, l'autocritique, les vérifications, etc .. sont similaires au premier exercice !
Si votre travail ci dessus est satisfaisant, Vous êtes prêts pour le dernier exercice d'apprentissage à mi-bois en croix 
ici un exercice intéressant sur l'air du bois !
L'assemblage à mi-bois classique en croix avec onglets en raccordement de moulures
Ce dernier exercice d'apprentissage, préfigure l'enseignement du "petit cadre" traditionnel, en effet il est nanti de moulures raccordées en coupes d'onglets avec des joues ravancées!
Il clos ce chapitre, et l'on doit réussir la pièce du mieux que l'on peu, avant d'allez plus loin ! 
Analyse de fabrication :
1/ Apres avoir corroyée correctement la pièce de bois contenant les deux éléments de l’exercice (environ 540 mm de section 70 x 24 mmm), nous la débitons en deux morceaux égaux !
2/ Nous établissons nos deux pièces , à savoir une traverse intermédiaire et une pilette, puis Nous traçons sur leurs champs de référence les abouts (ici 250 mm) !
3/ Tout le tracé de base se fait comme le premier exercice avec superposition des bois !
4/ A l aide du trusquin, nous traçons les arêtes des chanfreins sur toutes les faces concernées ! Et nous traçons les coupes d'onglets qui en découlent !
Attention : Ne pas se tromper de face et de sous face des deux pièces pour les tracés ravancés! En effet des faux traits avec une pointe à tracer ne s’enlèvent pas aisément ! (nous découvrirons cela plus tard quand nous allons apprendre à "replanir" les pièce (finition traditionnelle au rabot et racloir)) .Donc réflexion accrue !
5/ C'est ici qu'il faut être attentif ! Nous pouvons d'ors et déjà dégager l'entaille de la traverse, puis l'on se munie de la "scie sterling" (denture très fine), afin d'amorcer précisément et au maximum possible les coupes d'onglets, ainsi que les joues d'entaille ravancées de la pilette (scie à araser).
pourquoi ? : Les moulures (ici des chanfreins) s'usinent linéairement avec un rabot, en suivant le tracé trusquiné.
Effaçant du même coups les tracés précédents! Donc de les matérialiser avec les traits de scies, nous les retrouverons facilement et servant de guides pour les terminer .
6/ A l'aide du rabot, nous produisons les chanfreins, très précisément bien droit, bien plat et en respectant le trusquinage moitié de trait .
7/ En se servant des pré-sciages comme références, nos finissons les entaillages et les onglets, et enfin nous descendons les abouts .
8/ Apres avoir fait des petits chanfreins d'entrées, nous montons la pièce, avec de légers coups de marteau et cale, que nous ajustons au ciseau, si besoin en fonction.
En résumé, l'autocritique, les vérifications, etc .. sont similaires aux premiers exercices ! Mais ici l’esthétique est plus importante du fait que c'est une pièce moulurée ! tout doit normalement coller sans jeu, ce que l'on appelle dans le métier "vendable" ! 
Pour finir ce chapitre, dès que l'on maîtrise un peu ces exercices, il n'est pas interdit de s'en inventer d'autres et de compliquer la tache, y compris en prenant deux essences différentes (bois dur/bois tendre par exemple)! A condition bien sur d'en faire un dessin d'étude avant de ce lancer un défis tout en respectant le processus de fabrication apprise (c'est comme cela que l'on progresse) .
Les assemblages d'apprentissage à mi-bois d'angles et en "T"
La suite des apprentissages d'assemblages "à mi-bois" ci dessous, préfigureront les assemblages traditionnels "tenons/mortaises" ! En effet cette étape est très intéressante en terme de notre progression chronologique, car nous allons aborder le travail à la scie à tenons, à savoir faire des sciage en bois de fil depuis des abouts .
A vos outils (Bien affûtés j’espère !) 
Assemblages à mi-bois d'angles, droit et en coupe à 45°
Ici cette nouvelle pièce nous fait découvrir les assemblages à mi-bois d'angles, constitués pour lier deux pièces antagonistes.
Anciennement utilisés à la manière des cadres de décors ou de lambrissages, éléments de menuiserie sans action mécanique.
Ces concepts d'assemblages gagnaient du temps de façonnage à l'époque, car simplement collés et cloués par l’arrière .
Notre pièce à réaliser est constituée d'un assemblage droit et un autre en coupe à 45° destiné aux raccords d'éventuelles moulurations. Elle sera nantie de chanfreins raccordés d'onglets de fait par la coupe biaise, et arrêtés sur la partie droite.
Analyse de fabrication :
1/ Apres avoir corroyées correctement les deux pièces de bois contenant les trois éléments de l’exercice (environ 450 mm et 320 mm de section 70 x 24 mmm), nous débitons en deux morceaux égaux la plus grande !
2/ Nous établissons nos pièces, à savoir une traverse intermédiaire et les deux montants, puis Nous traçons sur leurs champs de références les abouts (ici 300 mm et 2 x 200 mm) !
3/ Tout le tracé de base se fait classiquement maintenant avec superposition des bois, y compris les coupes à 45° !
Pourquoi n'utilise t'on pas une équerre à 45° ? : Les bois corroyés à la main ne sont pas garantis calibrés comme aux machines, de ce fait, il faut raccorder des bois parfois de cotes légèrement différentes (ex 70,2 mm avec 69,9 mm) ! Donc en traçant nos pièces avec les superpositions des bois, nous obtenons la juste bissectrice qui nous garantira des joints corrects et un équerrage assuré .
4/ A l'aide du trusquin, nous traçons les arêtes des chanfreins sur toutes les faces concernées ! Et nous traçons les coupes d'onglets et d’arrêts qui en découlent ! Puis nous matérialisons de façon conventionnelle tout les usinages.
Attention je remet ici la mise en garde : Ne pas se tromper de faces et de sous faces des pièces pour les tracés ! En effet des faux traits avec une pointe à tracer ne s’enlèvent pas aisément ! (nous découvrirons cela plus tard quand nous allons apprendre à "replanir" les pièce (finition traditionnelle au rabot et racloir)). Donc réflexion accrue et si besoin, des tracés très légers aux retours à l'équerre non façonnés !
5/ C'est ici que nous allons travailler de la scie à tenon! En effet les entailles de cette pièce doivent être descendues par sciage sans retouches (si retouches il y a, on perd normalement des points).
5a/ Pour exécuter convenablement les fonds d'entailles (ou la joue d'un tenon bâtard), nous commençons par serrer notre pièce dans la presse d'établi avec un angle de 70° environ, puis nous nous munissons de la scie à tenons, puis nous amorçons le sciage du fond d'entaille par l'about, moitié de trait .(Attention d’être du bon coté en fonction de nos matérialisations d’enlèvement de bois chute)
5b/ Nous descendons le trait de scie en vertical du tracé et obliquement jusqu'au trait d'arasement du champs visible, sans dépasser l'about de l'autre champs .
5c/ Nous retournons la pièce dans la presse, puis nous descendons le second trait moitié de trait, obliquement au départ puis vers l'horizontalité à l'arrivé, en se laissant guider par le sciage précédent.
Nota : Le sciage par retournement, permet d’éviter des imprécisions ou déviances de la lame, tout en calibrant un temps soit peu le fond d'entaille (qui sera appelée joue de tenon bâtard quand nous apprendrons les tenons traditionnels).
5d/ Nous serrons ensuite la pièce au valet, et avec la scie à araser, nous descendons l'arasement de l'assemblage.
Nous répétons l’opération pour tous les assemblages, en s'appliquant particulièrement pour les coupes d'arasements à 45°.
6/ Les entailles une fois finies et ajustées, et après avoir fait les retouches si nécessaire, à l'aide du rabot, nous produisons le chanfrein du montant gauche, très précisément bien droit, bien plat et en respectant le trusquinage moitié de trait .
Puis aux ciseaux à bois, nous produisons les chanfreins arrêtés (rappelons nous l'exercice des entailles de pente).
7/ Nous montons la pièce, puis nous coupons les abouts ! (Sachant que les abouts d'entailles assemblés, se scient toujours après le montage complet et les vérifications d'usages d'équerrages, planéité et en gauche !
En résumé, l'autocritique, les vérifications, etc .. sont chaque fois similaires aux premiers exercices ! Ici Les affleurements doivent être corrects en plus de joints propres, les coupes à 45° doivent être parfaites et bien d’aplomb, sinon le raccord de chanfrein baillerait à cause d'arasements dégraissés !
Assemblages à mi-bois en "T" droit et queue d'aronde
Nous découvrons maintenant une pièce classique en apprentissage, ce sont les assemblages à mi-bois en "T" (intermédiaire) !
J'ai jumelé deux exercices en un ! A savoir un mi bois droit et un en queue d'aronde. Nous pourrons prendre deux essences différentes, et les entaillages se feront à la scie à araser et défonçage du bois chute aux ciseaux sur toutes les parties, pour s'exercer à faire des plats assemblés bien réguliers !
Analyse de fabrication :
1/ Apres avoir corroyées correctement les deux pièces de bois contenant les trois éléments de l’exercice (environ 450 mm et 320 mm de section 70 x 24 mmm), nous débitons en deux morceaux égaux la plus grande ! (Nous pouvons prendre des essences différentes)
2/ Nous établissons nos pièces, à savoir une traverse intermédiaire et les deux montants, puis Nous traçons sur leurs champs de références les abouts (ici 300 mm et 2 x 210 mm) !
3/ Tout le tracé de base se fait classiquement maintenant avec superposition des bois !
4/ Nous traçons l'entaille à queue d'aronde, Puis nous matérialisons de façon conventionnelle tout les usinages.
5/ Nous exécutons les entaillages, en commençant par les montants et les entailles femelles, puis le sciage des arasements de la traverse, puis nous bûchons tout seulement au ciseaux à bois !
5a/ Avec rigueur, nous bûchons la partie en queue d'aronde.
6/ Nous montons les assemblages indépendamment et ajustons si besoin .
6a/ L’emboîtage doit être faite légèrement au marteau avec une cale, sans trop forcer.
7/ Apres avoir coupés tout les abouts, nous vérifions nos équerrages et la planéité de l'exercice fini, puis nous évaluons notre travail et faisons notre autocritique!
En résumé, cette pièce doit être propre, précise, et surtout les assemblages doivent tenir après être rentré légèrement en force ! (Dans une piece réussie, nous devons utiliser des petits chocs pour démonter) 
Assemblages assimilés aux mi-bois, liaisons par queues d'arondes
Ici des assemblage de liaisons, issus de la charpente et utilisés en menuiserie, ébénisterie et autres !
C'est un exercice plaisant qui nous fait découvrir pour la première fois en apprentissage des concepts d"assemblages entre deux pièces véritablement solide et auto bloquants en vertical et en horizontal avec un même entaille réceptrice à plat ou sur champ), en plus d'un travail en finesse .
Analyse de fabrication :
1/ Apres avoir corroyées correctement les deux pièces de bois contenant les trois éléments de l’exercice (environ 450 mm et 260 mm de section 40 x 40 mmm), nous débitons en deux morceaux égaux la plus grande ! (Nous pouvons prendre des essences différentes)
2/ Nous établissons nos pièces, à savoir une traverse intermédiaire et les deux montants, puis Nous traçons sur leurs champs de références les abouts (ici 240 mm et 2 x 200 mm) !
3/ Tout le tracé de base se fait classiquement maintenant avec superposition des bois !
4/ Nous traçons les entailles à queue d'aronde, Puis nous matérialisons de façon conventionnelle tout les usinages.
5a/ Nous exécutons les entaillages femelles des montants, en commençant par le sciage des arasements, puis nous bûchons le reste aux ciseaux à bois !
5b/ Avec rigueur, nous scions les parties en queue d'aronde mâles de la traverse, que nous finissons ensuite au ciseau .
6/ Nous montons les assemblages indépendamment et ajustons si besoin .
5c/ Pour la seconde queue d'aronde mâle, nous coupons l'about très précisément, puis les arasements avec la scie sterling pour gagner en précision . !
Enfin nous entaillons au ciseau les joues moitié de trait des tracés.
6 bis/ Nous montons l'assemblages au marteau/cale et ajustons si besoin .
7/ Apres avoir coupés tout les abouts, nous vérifions nos équerrages et la planéité de l'exercice fini, puis nous évaluons notre travail et faisons notre autocritique!
En résumé, cette pièce doit être propre, précise, et surtout les assemblages doivent tenir après être rentré légèrement en force ! (Dans une pièce réussie, nous devons utiliser des petits chocs pour démonter) .
Nous imaginons déjà ici le potentiel de ce travail, et un apprenti peu déjà projeter des ouvrages simples à réaliser par lui même !
L'examen d'apprentissage des assemblages à mi-bois
Pièce ludique un peu casse tète, parfaite pour cet exercice de "bilan de compétences" aux apprentissages ci dessus ! (Entailles et mi-bois) 
Vous pouvez prendre des bois d'essences différentes, et corroyés aux machines (donc bien calibrés, ce qui n’empêche pas la superposition des bois aux tracés), par contre les sciages et entaillages se font tous aux outils à main évidement !
A vos blocs de Dessin pour étude et à vos outils bien affûtés ! Bons copeaux avant la suite des assemblages à apprendre !
Les assemblages d'apprentissage traditionnels tenons/mortaises (les bases)
Vous avez normalement bien assimilés les bûchages d'entailles et d'assemblages à mi-bois, ainsi que le maniement de vos outils !
De ce fait nous sommes prêt à découvrir l'essence même des divers métiers du bois !
Les fameux assemblages à bases de tenons/mortaises classiques et dérivés qui nous enseigneront par ailleurs, les concept petit cadre/grand cadre typique de menuiserie ! Bref vaste sujet !
Ce chapitre vas nous détailler les principes d’exécutions de tenons et de mortaises traditionnelles, et de notre premier assemblage qui en découlera, de façon ancestrale à la main bien sur !.
Montant=mortaise/Tenon=traverse : C'est un pense bête pour les novices qui se posent la question ? "Sur quelles partie d'un ouvrage fait on les tenons et les mortaises" ? Eh bien la réponse est dans le titre, en général M comme mortaise sur le montant, et T comme tenon sur la traverse !
La pièce d'apprentissage, bûchages de mortaises !
En menuiserie, on à l'habitude de s'occuper des parties femelles en priorité ! Ce n'est pas de la galanterie (même si nous sommes galant), c'est une logique professionnelle importante, de chaque fois "voir le trou avant de faire la cheville" (ex voir la mortaise avant de faire le tenon, voir la rainure avant de faire une languette, ou encore voir la baie de maçonnerie avant de faire une fenêtre) ,bref toujours mesurer un comblement depuis un vide existant avant de l'exécuter ! 
Pour cet exercice, libre à vous de prendre une pièce corroyée à la machine, en bois dur sec et sain de préférence (chêne, hêtre ...) !
Il est constitué d'une pièce de bois montant mortaisé depuis les champs (d'une mortaise débouchante droite, d'une mortaise "borgne", d'une mortaise débouchante "désaboutée", et d’une mortaise latérale débouchante depuis la face). Bref de quoi apprendre les principaux cas de figures !
Analyse de fabrication :
1/ Apres avoir corroyée correctement une pièces de bois (environ 360 mm de long, et de section 70 x 24 mmm), nous établissons et nous traçons les abouts !
2/ A l'aide de notre réglet et de l'équerre, nous traçons les abouts de mortaises sur le champs de référence, puis nous retournons les traits vers le second champs et sur la face pour la mortaise placée en vue de face. (nous piquons légèrement pour ne pas faire de faux traits compliquer à enlever en cas de finition)
Nota : Pour orienter le bûchage de l'about biais de la mortaise "désaboutée", nous traçons au crayon un trait correspondant a la pente désirée sur la face .
3/ Nous traçons ensuite à l'aide du trusquin avec pointes doubles, les traits de l'épaisseur de chaqu'unes sur les deux champs. La semelle du trusquin s'appuie impérativement sur le parement de la pièce.
Nota : L'écartement des deux traits doit correspondre à l'épaisseur du bédane, en effet nous "affûtons" avec une lime douce les pointes du trusquin avec le bédane comme référence (ici 8 mm pour des bois de 24 mm à mortaiser et ultérieurement ceux qui seront à tenonner.
Installation d'une pièce à mortaiser à la main :
Notre poste de travail se situera au dessus d'un pied d'établi, ceci pour avoir un une surface dense qui annulera complètement d'éventuels effets rebonds ! Il faut dire que le bûchage des mortaises demande de conséquents chocs au maillet .
La pièce est posée Légèrement en biais sur le martyr pour bien protéger l'établi, et maintenue fortement au valet et une cale . (à vous de déterminer votre confort de travail en fonction de ces paramètres).
4/ L'exécution des mortaises:
Nous allons déjà étudier le bûchage physique vu de l’intérieur du bois ! (illustration 1)
Les mortaises débouchantes s’exécutent depuis les deux champs, en deux temps moitié par moitié de la largeur d'un montant, en somme nous faisons deux mortaises borgnes superposées qui se rejoignent ! Rien de sorcier .
a/ L'amorce du bûchage depuis le premier champ à environ 2 mm en retrait du tracé .
b/ Bûchage maximum depuis la glace du bédane .
c/ Bûchage maximum depuis le biseau du bédane .
d/ L'amorce du bûchage depuis le second champ à environ 2 mm en retrait du tracé après retournement de la piece .
e/ Bûchage maximum depuis la glace du bédane .
f/ Bûchage maximum depuis le biseau du bédane . et dégorgement de la mortaise (dégorgeoir) .
g/ Finition précise des abouts de mortaises .
Le Bûchage pratique :
Pour la première opération, la glace du bédane étant orientée vers l'ouvrier, on enlève un copeau. Un novice peut se servir de la lame de l’équerre pour orienter bien d'aplomb latéralement son outil.
L'outil est tenu presque verticalement, à peine penché en arrière, à 2 mm du trait qui limite la mortaise, puis ensuite incliné en avant à 45° environ pour tailler le copeau.
Cette manœuvre est répétée autant de fois qu'il est nécessaire pour atteindre la demi-profondeur de la mortaise.
Pour la seconde opération, le bédane étant tenu surtout verticalement, le biseau tourné vers l’ouvrier, celui-ci coupe le bois par tranches verticales sur toute la largeur de la mortaise. On peu incliner le bédane si on a du bois retors ou des défauts du bois !
Enfin sur quelques milimetres de profondeur, avec la glace du bédane et le maillet nous bûchons précisément aux moitiés de traits le tracé les abouts.
Apres avoir retourné la pièce, on exécute la deuxième moitié depuis le second champ, exactement comme la première demi mortaise sans retoucher les faces latérales au ciseau .
Principaux défauts d'usinages des joues de mortaises : Ceux ci sont surtout le fait de non symétrie aux retournements, qui occasionneront au montage avec un tenons des désordres de dévers de faces ou de champs ! Il peuvent aussi occasionner des fendages !
En tous cas on peu retoucher, mais les tenons seront flottants ou à compenser, donc temps perdu, colle et points en moins ! 
La mortaise étant bûchée brute des deux moitiés et marquée précisément aux traits d’abouts, nous devons dégorger celle ci des derniers éclats coincés, pour cela nous nous munissons du dégorgeoir (petit pièce de bois dur arêtes vives d'épaisseur = mortaise - 0,5 mm env) que nous enfonçons au maillet dans la mortaise en porte à faux sur le martyr .
Enfin nous finissons précisément la mortaise en calibrant ses abouts en longueur avec le bédane et le maillet, la pièce serrée dans la presse pour orienter au plus confortablement notre travail.
Les vérifications sont faites à l'aide du réglet, ou de la lame de l'équerre !
Nota :Un ouvrier qualifié, dresse directement ses abouts depuis les précédentes opérations sans desserrer sa pièce , la planche du bédane et l’œil faisant foi avec l'expérience ! le dégorgement se faisant à la fin !
D'ailleurs en anecdote, les jeunes compagnons jadis, devaient présenter des pièces mortaisées finies, mais non dégorgées comme preuve de non montage à blanc, car c'est l'ancien qui montait les assemblages la première fois après dégorgement, et cela devais coller du premier coups !
Dans le cadre de notre pièce d'exercice, nous commençons par la mortaise débouchante droite, puis la mortaise débouchante "désaboutée, la mortaise borgne et enfin la mortaise latérale est à exécuter en dernier (sinon nous risquons d'éclater) ! puis on coupes les abouts de la pièce finie .
Principaux défauts d'usinages aux abouts de mortaises : Ceux ci sont surtout le fait de dépassement du droit en creux ou du tracé des abouts "mangé", qui occasionneront au montage avec un tenons des faiblesses de solidité et d'équerrages des ouvrages fini (ex porte qui baisse du nez) .
En tous cas on peu compenser en façonnant les tenons en fonction ou en ajoutant des "flipots" , donc temps perdu, colle et points en moins ! 
autocritique :
Sachant qu'une mortaise mal exécutée compromettra la solidité de l'assemblage, des désordres de planéités ou d’équerrages , nos différentes mortaises sont elles propres, droites, les abouts réussi et au moitié de trait des tracés .
Si les pièces de base sont mal corroyées ou serrées hors d'aplomb sur l'établi (faux équerre du champ) , l'exécution des mortaises s'en ressentira et la valeur de l’assemblage fortement dégradé.
Si nous avons fendu, c'est que nous n'avons pas bûché assez perpendiculairement, le bédane partant plutôt en biais et en essayant de rattraper maladroitement ! Il y a risque de fendage aussi , si on produit de trop gros enlèvements suivant les propriétés des différentes essences de bois !
Voilà pour la La pièce d'apprentissage, bûchages de mortaises, cela parait compliqué, mais après une demi mortaise, on comprend très vite le sens des choses, et nous serons prêts pour une pièce assemblée, (après la pièce d'apprentissage suivante bien sur !) 
La pièce d'apprentissage, sciage de tenons
Nous avons un peu expérimenté la scie à tenons dans les précédent chapitres ! Ici nous allons descendre des tenons afin d'analyser le façonnage manuel de ceux ci !
C'est un exercice incontournable avant de faire de véritables assemblages, nous pouvons pour cet exercice prendre une pièce corroyée à la machine (En hêtre de préférence) .
Ci dessous, nous découvrons une pièce comportant deux tenons à réaliser ainsi que son dessin orthogonal .
Un tenon tout à fait classique avec arasements d'équerres , et un tenon "désabouté" avec arasements biais !
Cette exercice a pour but de s'initier au sciage de tenons, et de faire la synthèse correct du travail rendu ! En effet ces assemblages seront à la base de toute une carrière professionnelle dans les métiers du bois , alors il vaut mieux connaitre nos mauvais gestes rapidement .
Analyse de fabrication :
1/ Apres avoir corroyée correctement une pièce de bois (environ 320 mm de long, et de section 70 x 24 mmm), nous établissons et nous traçons les abouts !
2/ A l'aide de notre réglet et de l'équerre, nous traçons sur le champs de référence les arasements, puis nous retournons les traits vers le second champs en passant précisément par la face . (attention au décalage de piquage à prendre en compte pour l'arasement biais pour éviter des faux traits qui enlèvent des points à la correction !(voir dessin orthogonal)
3/ Nous traçons ensuite à l'aide du trusquin avec pointes doubles, les traits d'épaisseur des tenons sur les deux champs ainsi que sur les bouts de la pièce .
La semelle du trusquin s'appuie impérativement sur le parement de la pièce, rappelons le !
Puis nous matérialisons les enlèvements par signes établissements conventionnels (des ronds pour arasements depuis les faces, et des traits (couleur) pour les arasements sur champs) .
4/ Nous allons descendre les joues de tenons, avec la scie à tenon ! Arrêtons nous un instant sur l'analyse physique des enlèvements par traits de scie de cette opération !
a/ Nous amorçons le sciage depuis le bout !
b/ Nous descendons cette amorce en pente jusqu'au tracé de l'arasement.
c-d/ Apres retournement de la pièce, nous descendons la joue complète, en se laissant guider par le premier sciage de façon horizontale .
Nota : Si les trusquinages sont bien suivi moité de trait, avec cette technique de sciage par retournement, les joues seront propres et planes !
4/suite ci dessous, le maintient correct de la pièce dans la presse, et les étapes de sciages avec la scie à tenons !
a/ Amorce du sciage sur le bout de la pièce .
b/ Nous descendons cette amorce en pente jusqu'au tracé de l'arasement.
c/ Nous répétons l'opération sur la seconde joue .
d/ Apres retournement de la pièce, nous descendons la joue complète, en se laissant guider par le premier sciage de façon horizontale .
e/ Nous répétons l'opération sur la seconde joue .
Défauts de sciages des joues de tenons :
Sciage parfait: pour comparer avec les défauts, il faut qu'un tenon parfait soit épais moitié de trait de trusquin, et le futur emboîtement se fera en pression de paume ou par chocs modérés!
Sciage fort: les tenons sont plus épais que le tracé initial du trusquin, donc risque de fendage au montage . (défaut qui peut être retouché, mais enlève des points en apprentissage) .
Sciage faible: les tenons sont moins épais que le tracé initial du trusquin, donc flottement de l'assemblage final au montage et solidité diminuée. Dans le jargon professionnel, "On dit un tenon rentré à coups de casquette!"
(vive la colle et les copeaux pour compenser).
Sciage faux "gras": les tenons sont amorcés au tracé initial du trusquin, Mais ils s'épaississent vers l'arasement, donc donc risque de fendage au montage .(défaut qui peut être retouché, mais enlève des points en apprentissage) .
Sciage faux "dégraissé": les tenons sont amorcés au tracé initial du trusquin, Mais ils s'amincissent vers l'arasement, donc jeu de l'assemblage final au montage . Dans le jargon professionnel, "On dit un tenon qui danse" (mouvement de hanches sans bouger la tete) (raté, à refaire)
Sciage faux "devers": les tenons sont amorcés au tracé initial du trusquin sur les abouts, Mais ils s'épaississent et s'amincissent individuellement vers les arasements, ou alors ils ne sont pas parallèles à l'amorçage depuis les bouts donc "C'est mort !!!" 
Evidemment, les défauts peuvent en plus s’additionner , au quels cas, il vaut mieux recommencer l'exercice jusqu’à obtention d'un usinage acceptable !
5/ ci dessous, le maintient correct de la pièce sur son martyr, et les étapes de sciages d'arasements avec la scie à araser !
a/ Amorce du sciage d'un arasement .
b/ Nous descendons cette amorce en en horizontal jusqu'au sciage des joues. Nous répétons l'opération pour le second arasement , et pour le second tenon .
c/ Nous traçons le "désabout" et l'about de tenon .
d/ Nous scions le désabout et les abouts .
E/ nous vérifions notre pièce finie (mesures et angles) et nous faisons notre autocritique !
Défauts de sciages des arasements de tenons :
Sciage parfait: pour comparer avec les défauts, il faut que les arasements d'un tenon parfait soit moitié de trait brut de sciage, , et à l'emboîtement ils devront "coller" sans jours à leur montant mortaisé respectif !
Sciage faux "dégraissé": les arasements sont amorcés au tracé initial du trusquin, Mais ils s'amincissent vers la joue du tenon, donc l'assemblage collera finalement au montage mais perdra en résistance, de plus il produit un jours visible depuis les champs. On a parfois recours au dégraissage pour certains assemblages à faire "coller" de préférence qu'en parement (ex sur parquet de Versailles dégraissage en faux parement) .
Sciage faux "gras": les arasements sont amorcés au tracé initial, Mais ils s'épaississent vers la joue du tenon, donc les arasements ne "collerons" pas en parement .(défaut qui peut être retouché, mais enlève des points en apprentissage) .
Sciage fort: les arasements sont plus long que le tracé initial, donc risque de surcote au montage . (défaut qui peut être retouché, mais enlève des points en apprentissage) .
Sciage faible: les arasements sont moins longs que le tracé initial, donc risque de sous cote ! (parfois c'est préjudiciable à l'équerrage et la qualité demandée dans certains ouvrages) .
Sciage en faux équerre: les arasements sont en biais léger par rapport au tracé initial de la face de la pièce , donc l'ouvrage général ne sera pas d'équerre une fois monté ! (défaut qui peut être retouché, mais enlève des points en apprentissage) .
Sciage "mordu": Le trait de scie dépasse le plat de la joue, donc c'est un amorce de cassure assurée! On le teste en frappant sèchement le tenon sur l'établi ! Cela peut nuire à certains assemblages qui demandent de la bonne résistance mécanique .
Voilà encore de quoi lire et se former, il est impératif de passer par ces deux exercices, et de les réussir avant de passer au prochain chapitre, qui seront nos premiers assemblages traditionnels tenons et mortaises de bases ! 
Donc à vos scies !
ici le types de cours à notre époque :
Les assemblages d'apprentissage traditionnels tenons/mortaises/enfourchements pratiques
Assemblages d'angle et intermédiaire à tenons/mortaises traditionnels
Nous y voilà, le cap le plus important à passer en terme d'apprentissage d'assemblages en bois !
Pour les novices, c'est le mythique "Mon premier tenon et mortaise", qui est redouté, mais pas si redoutable contrairement aux exercices futurs qui en découlent !
Cette pièce, constituée de trois éléments (un montant, une traverse haute, et une traverse intermédiaire), assemblés tenons et mortaises, dont un ensemble "épaulé" (épaulement) avec "barbette" (renfort d'épaulement) constituant l'assemblage d'angle.
L'exercice est exécuté évidemment à la main, et normalement en apprentissage le corroyage aussi !
C'est ainsi seulement que nous découvrons toute la science de nos anciens, qui faisaient avec leurs moyens des chefs d’œuvres, et nous palpons ici la vraie substance de notre art qu'ils nous ont transmis au cours des siècles !
Analyse de fabrication :
1/ Apres avoir corroyées correctement les pièces de bois (environ 1p de 370 mm + 2ps de 270 mm de long, et de section 70 x 24 mmm), nous établissons montant/traverses et nous traçons les abouts !
2/ A l'aide de notre réglet et de l'équerre, nous traçons sur les champs de références les mortaises et les arasements de tenons des pièces respectives, puis nous retournons les traits vers les seconds champs en passant précisément par la face pour les arasements .
3/ Nous traçons ensuite à l'aide du trusquin avec pointes doubles, les traits d'épaisseur des tenons et des mortaises sur tout les champs concernés ainsi que sur les bouts .
La semelle du trusquin s'appuie impérativement sur le parement des pièce, et nous traçons toutes les pièces tenons et mortaises en une seule fois sans poser le trusquin afin de ne pas perdre le pointage précis !
Puis nous matérialisons les enlèvements par signes établissements conventionnels (des ronds pour arasements depuis les faces, et des traits (couleur) pour les arasements et mortaises sur les champs) .
4/ Nous exécutons au bédane et maillet déjà les mortaises, puis la barbette (Partie femelle qui recevra le renfort d'épaulement) !
5/ Nous descendons les joues de tenons, avec la scie à tenon , puis nous arasons avec la scie à araser ! Puis nous traçons l'épaulement et son renfort (mesure généralement le tiers de la largeur du tenon, mais on arrondi), et nous les scions. Enfin nous "mouchons les tenons".
Moucher des tenons : C'est l'action de faire un micro chanfrein à la volée au bout des tenons (ou parties mâles d'autres assemblages)avec un ciseau à bois , afin de favoriser leurs pénétrations dans la mortaise au montage !
6/ Apres montage à blanc ou tout devrait normalement "coller", nous vérifions équerrage et planéité et évaluons notre pièce, si il y a des retouches, évidemment nous perdons des points !
Apres montage définitif, nous coupons tous les abouts !
Principaux défauts d’assemblages ! Ce sont les imperfections qui sont vues seulement après montage à blanc des pièces.
Je vais décrire surtout les devers ! Hormis pour les faux équerrages qui sont évidents (mauvais sciage des arasements) et le désafleur parallèle (mauvais trusquinage ou traits dépassés ou mangés) , tout le monde doit avoir compris les antécédents de malfaçons en fonction du dernier chapitre sur Principaux défauts d'usinages de mortaisages et de sciages des tenons .
Sachant en résumé, que les défauts sont multiples et additionnables, nous devons faire notre propre enquête afin de nous remettre en cause justement et trouver d'ou viennent nos erreurs et imperfections ! (tenons gras, dégraissé, non parallèles aux tracés, etc etc ..) 
1/ Dévers latéral : Les arasement collent partout, mais la traverse vrille autour d'un axe, ce qui occasionne un manque de bois d'un coté, et un désafleur de l'autre coté de l'arasement ! Ces désordres se situeront surtout aux usinages non parallèles des mortaises et/ou des joues des tenons !
2/ Dévers longitudinal : le montant et la traverse sont à fleur, mais le montant déverse depuis la traverse et seul un arasement colle ! Ces désordres se situeront surtout au niveau des arasements et/ou de sciage en faux aplomb des joues (gras/dégraissés, etc .)!
Et si toutefois nous avons les deux en même temps, il est temps de retourner au chapitre précédent ! 
Pour cette pièce, ainsi que les deux suivantes, afin de parfaire l'apprentissage, il est recommandé de les faire chaque fois en double ! A savoir une en bois dur, et une en bois tendre (ex hêtre et sapin), pour appendre à travailler suivant les essences, et ainsi doser nos efforts de gestes à prodiguer sur les outils .
Assemblages d'angle et intermédiaire à tenons/enfourchements traditionnels
Nous partirons ici sur le même format de pièce que la précédente, sauf que les assemblages seront des enfourchements!
Un enfourchement d'angle, et un enfourchement central (qui nous ramènes à l'utilité de notre apprentissage d'entailles, scie+ciseau à bois) .
La différence ici, est que pour cet exercice nous nous servirons principalement des scies, le bédane ne sera utile que pour dégorger l’enfourchement par enlèvements successifs et dresser son about .
Analyse de fabrication :
1/ Apres avoir corroyée correctement les pièces de bois (environ 1p de 370 mm + 2ps de 270 mm de long, et de section 70 x 24 mmm), nous établissons montant/traverses et nous traçons les abouts !
2/ A l'aide de notre réglet et de l'équerre, nous traçons sur les champs de référence les enfourchements,tenons et leurs arasements sur les pièces respectives, puis nous retournons les traits vers les seconds champs en passant précisément par la face pour les arasements .
3/ Nous traçons ensuite à l'aide du trusquin avec pointes doubles, les traits d'épaisseur des tenons et des enfourchements sur tout les champs concernés ainsi que sur les bouts .
La semelle du trusquin s'appuie impérativement sur le parement des pièce, et nous traçons toutes les pièces tenons et enfourchements en une seule fois sans poser le trusquin afin de ne pas perdre le pointage précis !
Puis nous matérialisons les enlèvements par signes établissements conventionnels (des ronds pour arasements depuis les faces, et des traits (couleur) pour les arasements et enfourchements sur les champs) .
4/ Nous descendons les joues de tenons (extérieur aux traits de trusquin) et de l'enfourchement (intérieur des traits de trusquin), avec la scie à tenons, et classiquement nous arasons ensuite le tenon avec la scie à araser !
Puis à l'aide du bédane par petits enlèvements nous dégorgeons l'enfourchement et nous dressons son about (comme une mortaise) , et enfin nous produisons les entailles de l'enfourchement central (bûchage classique d'entaille) .
5/ Le montage se fait classiquement au marteau par petit coups secs, ici seul le mouchage à l'enfourchement central suffit !
Enfin nous vérifions équerrage et planéité, et nous évaluons notre pièce !
Les malfaçons et erreurs ,viendrons des même critères que la pièce précédente !
Apres montage définitif, nous coupons tous les abouts !
N'oublions pas de faire cette pièce en double en deux essences différentes !
Assemblages d'angles enfourchements doubles/flottage et intermédiaire à tenons mortaises doubles traditionnels
Quand en menuiserie ou autre, nous avons des pièces épaisses à assembler, mais en plus avoir une bonne résistance mécanique des assemblages, nous recourons aux doublement (voire triplement dans certains cas) des tenons mortaises et enfourchements !
De plus nous allons découvrir ce qu'est un flottage (assemblage présent dans les appuis fenêtres notamment afin de faire ruisseler l'eau ).
Cette pièce d'apprentissage, devrait être corroyée à la main ! L’intérêt est que les pièces sont de sections carrées, et il faut être vigilant au choix des faces et champs ! Je sais ......
, mais un bon apprentissage prend tout en compte !
Analyse de fabrication :
1/ Apres avoir corroyée correctement les pièces de bois (environ 1p de 370 mm + 3ps de 230 mm de long, et de section 40 x 40 mmm), nous établissons montant/traverses et nous traçons les abouts !
2/ A l'aide de notre réglet et de l'équerre, nous traçons sur les champs de référence les enfourchements, flottage, tenons et leurs arasements sur les pièces respectives, puis nous retournons les traits vers les seconds champs en passant précisément par la face pour les arasements .
3/ Nous traçons ensuite à l'aide du trusquin avec pointes doubles, les traits d'épaisseur des tenons et des enfourchements sur tout les champs concernés ainsi que sur les bouts .
La semelle du trusquin s'appuie impérativement sur le parement des pièce, et nous traçons toutes les pièces tenons et enfourchements en une seule fois sans poser le trusquin afin de ne pas perdre le pointage précis !
Important : Ici nous avons des doubles à tracer, pour ce fait, nous pointons déjà le trusquin à 8 mm du parement, et après avoir tracer toutes les pièces, nous repointons le trusquin à 8 mm depuis l'extérieur du premier tracé, afin de tracer les doubles aussi sur toutes les pièces depuis le parement !
Jamais de tracés par retournements, surtout en corroyage main !
Puis nous matérialisons les enlèvements par signes établissements conventionnels (des ronds pour arasements depuis les faces, et des traits (couleur) pour les arasements et enfourchements sur les champs) .
4/ Nous bûchons déjà les mortaises doubles (même principe que les simples).
Nous descendons les joues de tenons (extérieur aux traits de trusquin), l'enfourchement (intérieur des traits de trusquin) ainsi que le flottage, avec la scie à tenon, et classiquement nous arasons ensuite les tenons et le flottage avec la scie à araser ! (même principe que des simples)
Puis à l'aide du bédane par petits enlèvements nous dégorgeons les enfourchement et nous dressons leurs abouts.
5/ Le montage se fait classiquement au marteau par petit coups secs, ici seul le mouchage aux tenons centraux suffit !
Enfin nous vérifions équerrage et planéité, et nous évaluons notre pièce !
Les malfaçons et erreurs ,viendrons des même critères que la pièce précédente !
Apres montage définitif, nous coupons tous les abouts !
J'espère que les explications ci dessus, pour vos premiers tenons et mortaises sauront vous guider et vous aider à réussir !
Ici l'exercice premier par excellence, c'est le tabouret pied droit pour concrétiser la compréhension de l'apprentissage à la main ! Corroyage, établissements, et tenons/mortaises simples :
Nous allons par la suite évidemment passer sur des exercices de plus en plus intenses , mais oh combien intéressant !
Mais il faut déjà avoir la moyenne a ceux ci ! 
Les assemblages d'apprentissage traditionnels tenons/mortaises/enfourchements pratiques (suite)
Assemblages intermédiaires biais à tenon/mortaise/enfourchement traditionnels
Cette pièce de progression dérive des exercices précédents, elle à le mérite de nous faire assembler en biais des tenon/mortaise et enfourchements traditionnels, et surtout de nous initier aux travaux d'épures qui seront légion dans une carrière ! 
En effet, nous n'aurons pas souvent des éléments connus, donc il faut dessiner les travaux en vraie grandeur afin d'y piquer nos tracés .
Tracé d'une épure :
Un tracé d'épure ce pratique le plus souvent sur un morceau de panneau en dérivé (contreplaqué, lamifié, aggloméré, etc ).
Son but est de tracer aux instruments (règle, mètre, équerre, compas, crayon 3h, ect .) complètement ou partiellement généralement à l'échelle 1, des éléments de fabrications non connus ( biais, cintre, géométrie dans l'espace, etc ..), afin de pouvoir y tracer les bois directement en position, ou d'y relever des mesures et angles utiles .
Le processus est chaque fois identique ! Il faut croiser des lignes fuyantes, bien droites, fines, infinies, afin que leurs intersections nous donnent des points précis !
A/ Nous traçons à l'équerre (instrument (petits tracés) ou Pythagore 3-4-5 (grands tracés)) et à la règle deux axes directeurs de niveau et d'aplomb!
B/ Nous Mesurons et traçons ensuite les directeurs des éléments à rechercher .
C/ Enfin à l'aide de nos bois corroyés en position, nous traçons les détails utiles (largeurs, épaisseurs, intersections d'assemblages, etc )!
Pourquoi ?
Les bois corroyés à la main ainsi qu'aux machines, ne sont généralement pas calibrés véritablement comme le dessin d'étude !
En effet on peut avoir un peu forcé le corroyage en plus ou en moins, ou des pièces ne sont pas toutes de même largeur (micros différences), donc sur les tracé directeurs, on se sert des pièces pour finaliser le tracé de l'épure ,et donc s'assurer de la précision finale de notre ouvrage !
C'est le même principe que l'on applique en traçant nos largeur de pièces sur le champ d'un montant par position des traverses ! (ex: sur l'étude la traverse mesure 70 mm de largeur , et le corroyage ne fait que 69 mm !)
Le piquage des bois, se fait au tranchet ou avec le crayon en traits fins, en relevant depuis les points d'épure de minuscules marquages depuis les arêtes de la pièce à tracer, qui nous permettront ensuite de tracer classiquement et précisément les champs avec l'équerre !
Attention de bien maintenir la pièce plaquée sur l'épure et de ne pas bouger au piquage ! (Parfois on utilise une quille bridée au plafond ou des serres joints quand il y à plusieurs pièces superposées sur un piquage compliqué).
Analyse de fabrication :
1/ Apres avoir corroyées correctement les pièces de bois (environ 1p de 360 mm + 2ps de 320 mm de long, et de section 70 x 24 mmm), nous établissons pilette/traverses !
Puis nous traçons l'épure et nous y positionnons un à un nos bois à piquer .
2/ A l'aide de l'équerre et du tranchet, nous traçons les assemblages sur les champs de référence à l'aide des piquages relevés, puis nous traçons les arasements biais en reliant les tracés de champs sur les faces !
3/ Nous traçons ensuite à l'aide du trusquin avec pointes doubles, les traits d'épaisseur des tenons et des enfourchements sur tout les champs concernés ainsi que sur les bouts, puis nous établissons les enlèvements d'assemblages .
4/ Nous bûchons déjà la mortaise ainsi que l'entaille d'enfourchement central sur la pilette, puis nous descendons les joues du tenon et de l'enfourchement avec la scie à tenons, et enfin nous dégageons et arasons le tout.
5/ Le montage se fait classiquement au marteau par petit coups secs, ici seul le mouchage au tenon suffit !
Montage et ajustements terminés, nous repartons à l'épure pour y présenter la pièce brute, et vérifier l'exactitude finale (voir illustration)
6/ Apres vérification équerrage biais et de planéité, montage définitif, puis nous coupons tous les abouts et nous évaluons notre pièce !
Assemblages à tenon/mortaise/enfourchement atypiques
Cette pièce particulière, inclus des tenons et mortaises atypiques parfois applicables à certains ouvrages ! 
Son but est évidement d'en faire connaitre les principaux, de les étudier et de les pratiquer!
Ici aussi, nous partirons d'une épure, puis au final nous commencerons à nous munir du rabot pour faire du replanissage (finition des travaux en bois à l'ancienne)!
Nous pouvons multiplier les essences pour diversifier les usinages et se faire la main !
Analyse de fabrication :
1/ Apres avoir corroyées correctement les pièces de bois (environ 2p de 350 mm x 70 mm x 24 mm + 3ps de 260 mm x 70 x 24 mmm), nous établissons montants/traverses !
Puis nous traçons l'épure et nous y positionnons un à un nos bois à piquer .
2/ A l'aide de l'équerre, nous traçons les assemblages sur les faces champs de référence à l'aide des piquages !
Les montants seront tracés en miroir depuis un seul piquage, comme cela ils seront identiques malgré de supposées différences , les traverses seront tracées elles aussi ensembles par pressage (2A)!
Nous traçons ensuite à l'aide du trusquin avec pointes doubles, les traits d'épaisseurs des tenons et des enfourchements, ainsi que les autres assemblages classiquement au réglet et à l'équerre sur toutes les surfaces concernées, puis nous établissons les enlèvements d'assemblages .
3/ Nous bûchons les parties femelles au bédane et au ciseaux , après les avoir dégrossi avec des perçages au vilebrequin et des mèches pour les parties tranchées .
3 bis/ Nous descendons les joues des différents tenons et enfourchements avec la scie à tenons, et enfin nous dégageons et arasons le tout.
4/ Le montage se fait classiquement au marteau par petit coups secs, après le mouchage utile des éléments !
Montage et ajustements terminés, nous démontons les bois, puis nous arasons les bouts des montants.
5/ A l'aide du rabot et de la presse d'établi, nous exécutons les chanfreins, puis nous replanissons les parties inaccessibles après montage définitif, afin de les blanchir très proprement sans éclat, tout en supprimant les traits de tracés .
Nota : C'est ici que l'on découvre l’intérêt de traits légers aux tracés ainsi que l'absence de faux-traits , en effet on ne doit pas réduire les pièces en épaisseur ou en largeur par de gros enlèvements avec le rabot ! Son affûtage doit être absolument parfait et faire des copeaux de l'ordre de centièmes de millimètres seulement !
Les signes d'établissements eux aussi disparaissent! Donc on les retrace en plus petit sur les parties cachées d'assemblages !
Apres vérification équerrage et de planéité, montage définitif, puis nous coupons tous les abouts d'assemblages avec une scie a dos , ou la scie a araser , et nous replanissons le tout ultimement, et nous évaluons enfin notre pièce !
Nota : Nous devons aussi casser toutes les arêtes avec un très léger coup de rabot pour parfaire la finition, avant et après montage suivant les cas !
Pièce d'examen tenon/mortaise/Enfourchement traditionnels
Ici nous découvrons une supposée pièce d'examen de premier trimestre d'apprentissage ! Elle contient à peu près un résumé de ce que nous devrions maîtriser à cet instant .
Elle représente un cadre composé de deux montants , trois traverses dont une en biais , et d'une pilette croisée par mi-bois au centre .
Le travail est fait depuis une épure à tracer, avec des bois normalement corroyés à la main.
Il n'y a pas de replanissage prévu afin d'évaluer nos acquisitions et nos défauts à corriger .
Elle sera en trois essences différentes au choix (dur, tendre, mi-dur) mais dans l'ordre du dessin de présentation ! Donc à vous de décider si les montants seront en sapin ou en hêtre par exemple !
Pour la bonne nouvelle, les pièces suivantes pourront être corroyées à la machine !
Afin de pouvoir se concentrer sur plus de difficultés évidement ! 
Assemblages d'apprentissage à queues droites et à queues d’aronde
Nous voilà à une parenthèse d'apprentissage à la main très intéressante et assez mythique chez les novices: Les fameuses queues d'aronde (et queues droites) traditionnelles.
Assemblages d'angles généralement utilisés dans de la "caisserie" (Tiroirs, coffres, coffrets, boites, caissons, etc..) !
En effet, à l'école on apprend épisodiquement ces diverses techniques, enserrées en plusieurs fois au cours des travaux de progressions, ce qui coupe un peu la monotonie (c' est le cas avec les entures aussi généralement ).
Ici je vous propose les quatre grands principes les plus utilisés en un seul exercice, mais rien ne vous empêchera de faire chacun d'eux indépendamment !
Donc au programme :
Queues droites ou coin de boite.
Queues d'aronde de menuisier.
Queues d'aronde d'ébéniste découvertes.
Queues d'aronde d’ébéniste recouvertes.
Ainsi que deux exercices de queues d'aronde coulissantes !
Le tout a faire évidement à la main ! Le corroyage à la machine est permis, mais il serait préférable dans l'absolut de corroyer les pièces à la main pour apprendre à dresser du mince et large pour apprendre encore a superposer les bois pour exécuter du travail précis même en cas de disparités éventuelles du calibrage manuel des différentes pièces .
A vos outils et vos bouts de bois !
Corroyage des bois et "recalage" des abouts
Une étape nouvelle dans le corroyage, arrive ici pour ces prochains exercices! Il s'agit du "recalage" d'abouts ?
Le recalage est le fait de calibrer les abouts de pièces parfaitement droit et d’équerre afin d'y pratiquer ensuite des assemblages propres et précis, sachant que à l'époque il n'y avait pas de scie circulaires pour cette opération.
1-2/ La première étape, reste évidement de tracer les abouts de pièces à la bonne longueur, puis de les scier précisément au trait, mais très légèrement gras !
Boites à recaler :
Appelées aussi bois ou guides à recaler, ces dispositifs montés permettent de calibrer d'équerre ou avec un angle défini (45° par exemeple), précisément les coupes angulaires en about des pièces a assembler.
Il existe un grand nombre de procédés, que les ouvriers se fabriquent au gré de leurs besoins et en fonction de leurs sensibilités manuelles .
Il y a deux grands principes que je présente ici, la boite verticale qui se serre dans la presse avant de l'établi, et la boite horizontale, qui se place à plat sur l'établi !
3/ Recalage vertical :
Nous plaçons la pièce a recaler dans la boite, puis nous serrons le tout dans la presse avant de l'établi, en prenant soin de bien plaquer partout et de positionner le "moitié de trait au guide .
Le réglage se fait par petits chocs au marteau pour parfaire ce positionnement.
A l'aide de la varlope ou d'un rabot, nous dressons l'about en prenant toutes les précautions à ne pas "manger" le guide, et ne blanchir que notre pièce.
Une astuce pour bien s’amender de l'opération, consiste à crayonner le guide afin d'avoir des repères visibles en cas de dépassements .
3 bis/ Recalage horizontal :
Nous plaçons la pièce à recaler contre le guide de la boite, puis avec un valet ou autre, nous serrons le tout ! Des petits choc au marteau permettent de régler au plus précis notre travail.
En posant contre le guide notre varlope ou rabot sur le champs (à condition que celui ci soit bien d'équerre à la semelle). Puis avec un mouvement de va et viens bien plaqué, nous calibrons notre about .
4/ Enfin, nous desserrons notre pièce, puis nous vérifions à l'aide de l'équerre le droit et l'équerrage. Et nous répétons l'opération sur toutes nos pièces jusqu'à obtention d'un parfait calibrage géométrique et de longueur de nos pièces .
Enfin nous établissons les éléments sur les champs (classiquement montant/traverses) .
En résumé : Il ne s'agit pas ici de corroyer véritablement par de gros enlèvements, mais de "blanchir" notre sciage d'about déjà normalement scié précisément .
Si notre mesure est forte, bien sur qu'il faut insister jusqu'à obtention de nos cotes précises .
Les queues droites ou coin de boite
Nous arrivons au premier exercice de ce chapitre, à savoir les queues droites que nous avons tous vus un jour sur des boites ou caisses anciennes !
C'est le plus basique assemblage à apprendre, car en fait ce n'est qu'une série de mini enfourchements traditionnels sur les angles d'un ouvrage .
Le tracé théorique des queues droites:
1/ La largeur et l'about d'équerre de notre pièce est dessinée, puis nous y traçons parallèlement à l'about l'épaisseur du bois à assembler (a-b) !
2/ Nous traçons une diagonale quelconque fuyante (a-c).
3/ Nous calculons le nombre de queues utiles en fonction du cube le plus approchant pour chacun des tenons ! Le but est d'avoir un nombre rationnel d'exécution et de solidité des queues d'assemblages.
Exemple ici : les bois mesures 15 mm d'épaisseur donc vu de dessus l'assemblage sera de 15 mm x 15 mm, donc logiquement au "cube" un tenon devrait théoriquement faire 15 mm de large .
Nous divisons la largeur à assembler en queues droites toujours par un chiffre impair (5-7-9 etc ) afin d'avoir toujours deux joues de tenons ou de mortaises en miroir esthétiquement sur les champs supérieur et inférieur d'un même ouvrage !
Soit 120:5 = 24 mm /// 120:7 = 17,1 mm /// 120:9 = 13,33 mm .
Nous avons le choix entre 7 queues de 17,1 mm et 9 queues de 13,33 mm approchant des 15 mm arbitraire du cube ?
Nous prendrons 7 queues de 17.1 mm de manière à économiser du travail !
En effet 9 queues de 13,33 mm seraient aussi compatibles mais nous obligerait à exécuter deux assemblages supplémentaires par angle ! Sur une caisse complète, voire une série de caisse serait très chronophage ! (je rappelle ici que nous sommes dans du travail traditionnel à la main !)
Nous divisons la diagonale quelconque en 7 parties égales (important : Plus longue que la droite à diviser) (ici au réglet en ligne 20/40/60/80/100/120/140), on peut aussi se servir du compas évidement .
4/ Nous traçons une droite depuis reliant la dernière division (7) au point b. Puis nous traçons toutes les parallèles à (b-7) depuis les points 6-5-4-3-2-1, ce qui nous fractionne précisément notre tracé d'épaisseur de l'assemblage. (théorème de Thalès).
5/ Nous traçons toutes les queues à l’équerre .
6/ Nous matérialisons les enlèvements .
En résumé, traditionnellement ce tracé devra être fait en amont du tracé final directement sur un des bois qui servira de référence .
Sur l'illustration 2 , deux exemples de tracés théoriques avec des bois différents !
Tracé pratique de l'assemblage à queues droites:
1/ Tout d'abord, après avoir recaler précisément et établi toutes les pièces en montant et traverse, nous traçons les arasements de l'assemblage à l’équerre, après avoir piqué les épaisseurs par superposition des bois sur nos deux pièces .
Nota Important pour tous les exercices de queues droites et d'aronde:
N'oublions pas que nous sommes dans du travail traditionnel manuel, donc les imperfections de corroyages sont toujours anticipées ! (Nous l'avons déjà fait pour des exercices précédents).
Ex : Si la partie montant mesure 14,5 mm d'épaisseur et que la partie traverse fait 15,5 mm , l'assemblage lui sera précis dans sa longueur finie en prenant en compte les éventuelles différences .
Il y a aussi parfois des biais ou défauts qu'ils faut anticiper! Donc nous positionnons le bois de façade bien d'équerre et nous tracerons à la fois l'équerrage d'épaisseur théorique pour calibrer les queues , ainsi que le biais à contrebalancer pour réduire les entailles queues en fonction et avoir un assemblage parfaitement ajusté (fig 5)!
2/ Nous effectuons au crayon bien taillé la construction géométrique des divisions des queues de l'assemblage.
Puis au tranchet ou la pointe à tracer, nous traçons les joues des queues mâles/femelles .
2 bis/ Nous traçons ensuite les queues sur les abouts des deux pièces conjointement après les avoir superposée et serrées dans la presse ou autre .
2 ter/ Nous traçons enfin complètement nos bois et nous matérialisons précisément les enlèvements de bois chute des parties femelles !
Nous sommes enfin prêts à tailler !
Analyse de fabrication de l'assemblage :
Maintenant que nous maîtrisons les outils, rien de sorcier ici ! Les queues droites ne sont en fait que de minis enfourchements multiples à exécuter classiquement, mais très précisément avec la scie à dos pour petits sciages !
1/ Nous descendons les joues des tenons et entailles de tous les tracés et sur les deux pièces, en prenant soin de ne pas se tromper de coté de trait à scier .
2/ Nous pouvons dans notre cas, araser les tenons extrêmes du montant.
3/ Les parties femelles sont déjà légèrement entaillées depuis l’intérieur du montant, afin de marquer précisément les fonds d'enfourchements .
4/ La pièce est retournée ,puis on entaille définitivement et précisément l'ensemble .
5/ La seconde pièce (la traverse) est entaillée à son tour de la même manière .
6/ Nous assemblons notre exercice, par petits chocs secs, en prenant garde que tout s’emboîte régulièrement sans trop forcer et risquer du fendage.
Puis nous contrôlons la précision avant d'éventuelles retouches en maintenant les bois bien d'équerre !
Les queues d'aronde de menuisier
Les queues d'aronde de menuisier, sont issues du coin de boite précédent dans sa conception générale! A savoir que les queues sont définies aussi par la logique du cube de celles ci, sauf que nous incluons sur les rives des tracés de demi-queues.
D'ailleurs les guides de queues industriels sont basés sur ce principe, que les parties femelles sont équivalentes au parties tenons .
Le tracé théorique des queues d'aronde de menuisier:
1/ La largeur et l'about d'équerre de notre pièce est dessinée, puis nous y traçons parallèlement à l'about l'épaisseur du bois à assembler (a-b) !
2/ Nous traçons une diagonale quelconque fuyante (a-c).
3/ Nous calculons le nombre de queues utiles en fonction du cube le plus approchant pour chacun des tenons ! Le but est d'avoir un nombre rationnel d'exécution et de solidité des queues d'assemblages.
Exemple ici : les bois mesures 15 mm d'épaisseur donc vu de dessus l'assemblage sera de 15 mm x 15 mm, Je n'ai pas fait exprès, mais ici dans l'exercice on arrive au cube parfait avec 15 mm de large .(Rien ne vous empêche d'avoir des bois d'une largeur différente de l'exemple pour apprendre à calculer et tracer) . J'ai donc fait quand même la division tracée classique !
Nous divisons la largeur à assembler ici, toujours par un chiffre pair (6-8-10 etc ) afin de pouvoir tracer ultérieurement des demi-queues en rives !
Soit 120:6 = 20 mm /// 120:8 = 15 mm /// 120:10 = 12 mm .
Nous prenons évidement le choix de 8 divisions de 15 mm arbitraire du cube !
Ratio parfait de manière à économiser du travail !
Nous divisons la diagonale quelconque en 8 parties égales (important : Plus longue que la droite à diviser) (ici au réglet en ligne 17/34/51/68/85/102/119/136), on peut aussi se servir du compas évidement .
4/ Nous traçons une droite depuis reliant la dernière division (8) au point b. Puis nous traçons toutes les parallèles à (b-8) depuis les points 7-6-5-4-3-2-1 , ce qui nous divise précisément notre tracé d'épaisseur de l'assemblage. Puis nous traçons toutes divisions à l’équerre depuis l'about de la pièce.(théorème de Thalès).
5/ Nous traçons des diagonales en croix à chaque division .
6/ Nous construisons un petit tracé de 1/7 (1 cm horizontal pour 7 cm vertical) afin de trouver la pente utile des queues d'aronde.
Nous prenons cette pente avec une fausse équerre (ou un rapporteur quand on dessine), Puis avec ce réglage, nous traçons toutes les queues et demi-queues depuis les points d'intersections de toutes les croix de chaque divisions .
Nota : Les queues d'aronde doivent avoir une pente d'environ 78°(1/5), mais suivant les cas (charpente, grosses sections, décors, essence de bois, etc ) nous pouvons allez jusqu'à 1/8 (les jauges à tracer vendues dans le commerce vont de 1/4 à 1/8).
7/ Nous matérialisons les enlèvements pour découvrir visuellement nos queues d'arondes de l'assemblage d'angle parfaitement symétriques les unes au autres.
En résumé, traditionnellement ce tracé devra être fait en amont du tracé final directement sur un des bois qui servira de référence en cas de tracé multiples.
Sur l'illustration 3 , deux exemples de tracés théoriques avec des bois différents !
Tracé pratique de l'assemblage à queues d'aronde de menuisier :
1/ Comme pour l’exercice précédent à queues droites, nous positionnons nos bois pour piquer et tracer d'équerre l'assemblage .
2/ Nous effectuons le tracé étudié plus haut sur le montant, puis nous effectuons la construction des pentes que nous reprendrons avec la fausse équerre .
Nous traçons les queues d'aronde, puis nous matérialisons nos enlèvements .
La question des novices est toujours "Comment trace t'on la seconde pièce" ?
La réponse est que la seconde pièce sera tracée par superposition de celle ci une fois exécutée propre ! 
Nous le découvrirons un peu plus bas !
Analyse de fabrication de l'assemblage :
1/ Apres avoir placée verticalement la pièce à exécuter dans la presse, nous descendons les traits de scies de toutes les joues avec la scie sterling ou autre à petite denture .
2/ Nous plaçons notre pièce horizontalement, puis nous arasons les tenons de rives .
3/ Nous plaçons la pièce serrée sur le martyr, et nous entaillons en deux temps les enlèvements classiquement (comme les exercices précédents) .
4/ La seconde pièce est tracée par le positionnement de la précédente parfaitement exécutée .
D'abord avec le tranchet ou pointe à tracer, nous traçons depuis les joues des queues mâles bien plaquées leurs profils sur la seconde pièce, puis avec une équerre nous traçons les verticales des joues sur les deux faces.
5/ A l'aide de la scie sterling, nous descendons les queues femelles .
6/ La pièce placée serrée sur le martyr, nous exécutons l'entaillage classiquement .
7/ Nous procédons au montage de l'assemblage par petits chocs et aux retouches éventuelles .
Nota : Il est d'usage de "moucher" au ciseau les arêtes cachées des tenons de queues d'aronde, afin de faciliter l'engagement de montage!
8/ Nous vérifions l’équerrage, et nous évaluons notre travail .
Les queues d'aronde d'ébéniste découvertes
Les queues d'aronde d'ébéniste, sont de conception plus élaborées que les autres, à savoir qu'il y a un calcul défini afin d'avoir une esthétique mobilière plus fine .
Elles sont dévolues le plus souvent aux tiroirs !
Les queues découvertes, sont utilisées aux traverses arrière, ou aux traverses avant à condition qu'il y ait une façade ou un habillage par moulures rapportées pour les dissimuler.
Le tracé théorique des queues d'aronde découvertes d'ébéniste:
Nous devons en premier lieu proportionner celles ci avant calculer le nombre exact et rationnel de celles ci dans un ouvrage !
1/ Formes et proportions des tenons extrêmes et intermédiaires :
Pour avoir la forme utile des tenons, nous devons déjà tracer un carré ayant pour coté l'épaisseur du bois de la façade à assembler, qui correspondra pour la longueur de ceux ci, mesure nommée E.
Puis nous divisons E par 5 pour trouver une division nommée a.
E = Longueur des queues d'aronde.
E = Épaisseur du bois de façade à assembler.
a = E/5
On en déduit ici que les queues d'arondes d’ébéniste auront toujours une pente d'environ de 1/5 soit environ 77°-79° (suivant les arrondi de calculs)
Dans notre exercice, la façade mesure 20 mm d'épaisseur, donc (E:5 =a) 20 mm : 5 = 4 mm.
Le profil d'un tenon en rive aura un ratio de proportion = 2a//3a
Le profil d'un tenon intermédiaire aura un ratio de proportion = a//3a
Dans notre exercice, le tenon de rive 2a//3a = 2X4//3X4 = 8//12 mm est contenu dans un rectangle, et le tenon intermédiaire sera un trapèze de a//3a =4//3x4 = 4//12 mm .
Ci dessous notre exercice, et deux autres exemples avec des cotes différentes !
2/ Répartition des queues d'aronde:
Maintenant que les proportions des tenons de notre pièce sont effectuées ci dessus, nous devons répartir après avoir calculé le nombre exact rationnel de queues d'aronde !
Nombres de queues d'aronde :
Pour simplifier le travail, formule ancestrale existe, N = (L-3a) : (E+a)
N = nombre de queues d'aronde.
L = largeur de la pièce ou longueur de répartition.
E = épaisseur de la pièce de façade (= longueur des queues découvertes).
a = E:5
Notre pièce de façade d'exercice mesure 120 mm de largeur x 20 mm d'épaisseur !
Nous appliquons la formule !
N = (L-3a):(E+a) = (120 mm - (3 x 4 mm)):(20 mm + 4 mm) = (120 mm - 12 mm):24 mm = 108 mm:24 mm = 4,5
Nous trouvons 4,5 queues d'aronde , donc arrondi 4 queues et sa décimale 0,5 qui sera "diluée" dans le tracé général !
3/ Le tracé théorique complet d’après le calcul traditionnel :
1/ La largeur et l'about d'équerre de notre pièce est dessinée, puis nous y traçons parallèlement à l'about l'épaisseur du bois à assembler (a-b) ici 20 mm !
Nous traçons ensuite les tenons de rives en fonction de leurs proportions calculées de 1/5.
2/ Nous traçons classiquement maintenant une diagonale quelconque fuyante (a-c).
3/ Sur la diagonale quelconque, nous traçons 4 divisions correspondantes au nombre de queues définies par la formule de calcul . (ici au réglet en ligne 30/60/90/120 ), on peut aussi se servir du compas évidement.
Puis nous relions la 4 eme division avec l'extrémité de la pente du tenon de rive inférieur.
4/ Nous traçons toutes les parallèles à (b-4) depuis les points 3-2-1 !
Puis en parallèle nous traçons d'autres divisions avec la même mesure de 30 mm ou du même écartement de compas depuis l'extrémité de pente du tenon supérieur placé sur l'autre l'autre rive de la pièce , que nous nommerons a/b/c/d.(théorème de Thalès).
5/ Parallèlement aux pentes des tenons de rives préexistants, avec une fausse équerre ou un rapporteur, nous traçons toutes les joues des queues d'aronde.
6/ Nous matérialisons les enlèvements pour découvrir visuellement nos queues d'arondes de l'assemblage d'angle parfaitement équilibrées prêtes à être taillées une fois tracées sur nos bois .
En résumé, comme pour les exercices précédents, ce tracé devra être fait en amont du tracé final directement sur un des bois qui servira de référence en cas de tracés multiples.
Sur l'illustration 2 , trois exemples de tracés théoriques avec des bois différents !
Il est à noter, que nous découvrons souvent un nombres de queues d'aronde restreint sur certain tiroirs d'ouvrages mobiliers, ne correspondant pas au calcul "académique" du nombre de queues étudié en apprentissage !
En effet pour un gain de temps d’exécution, on peu diviser en quatre ou en trois (alors que calculé à cinq traditionnellement), tout en ayant évidement tracé au préalable les proportions des tenons classiquement ! (les trois exemples supérieurs de l'illustration 2)
Tracé pratique de l'assemblage à queues d'aronde d'ébéniste découvertes :
1/ Comme pour l’exercice précédent à queues d'aronde de menuisier, nous positionnons nos bois pour piquer et tracer d'équerre l'assemblage .
2/ Nous effectuons le tracé étudié plus haut sur le montant, puis nous effectuons la construction des pentes que nous reprendrons avec la fausse équerre .
Nous matérialisons nos enlèvements d'entailles .
Analyse de fabrication de l'assemblage :
L’exécution ci est similaire aux queues d'aronde de menuisier du paragraphe précédent !
1/ Apres avoir placée verticalement la pièce à exécuter dans la presse, nous descendons les traits de scies de toutes les joues avec la scie sterling ou autre petite denture .
2/ Nous plaçons notre pièce horizontalement, puis nous arasons les tenons de rives .
3/ Nous plaçons la pièce serrée sur le martyr, et nous entaillons les enlèvements classiquement (comme les exercices précédents) .
4/ La seconde pièce est tracée par le positionnement de la précédente parfaitement exécutée .
D'abord avec le tranchet ou pointe à tracer, nous traçons depuis les joues des queues mâles bien plaquées leurs profils sur la seconde pièce, puis avec une équerre nous traçons les verticales des joues sur les deux faces.
5/ A l'aide de la scie sterling, nous descendons les queues femelles .
6/ La pièce placée serrée sur le martyr, nous exécutons l'entaillage classiquement .
7/ Nous procédons au montage de l'assemblage par petits chocs et aux retouches éventuelles .
8/ Nous vérifions l’équerrage, et nous évaluons notre travail .
Les queues d'aronde d'ébéniste recouvertes
Les queues d'aronde d'ébéniste recouvertes, sont dévolues le plus souvent aux tiroirs avec façade monoxyle la face faisant finition ou re-plaquée !
La complication est que l'épaisseur du bois de recouvrement de l'assemblage doit être pris en compte dans les calculs d'élaboration !
Le tracé théorique des queues d'aronde recouvertes d'ébéniste:
Nous devons ici aussi en premier lieu calculer le nombre exact et rationnel de celles ci dans un ouvrage !
1/ Formes et proportions des tenons extrêmes et intermédiaires :
Pour avoir la forme utile des tenons recouverts, nous devrons tenir compte du recouvrement désiré !
Nous devons déjà tracer un carré ayant pour coté l'épaisseur du bois de la façade à assembler - l'épaisseur du recouvrement désiré, qui correspondra pour la longueur de ceux ci, mesure nommée E.
Puis nous divisons E par 5 pour trouver une division nommée a.
E = Longueur des queues d'aronde.
E = Épaisseur du bois de façade à assembler - l'épaisseur du recouvrement.
a = E/5
On en déduit ici aussi que les queues d'arondes d’ébéniste auront toujours une pente d'environ de 1/5, quelles soient découvertes ou recouvertes, soit environ 77°-79° (suivant les arrondi de calculs)
Dans notre exercice, la façade mesure 20 mm d'épaisseur, donc
E = 20 mm - 5 mm
a = (20 mm - 5 mm) : 5 = 15 mm : 5 mm = 3 mm.
Le profil d'un tenon en rive aura un ratio de proportion = 2a//3a
Le profil d'un tenon intermédiaire aura un ratio de proportion = a//3a
Dans notre exercice, le tenon de rive recouvert 2a//3a = 2X3 mm//3X3 mm = 6//9 mm est contenu dans un rectangle, et le tenon intermédiaire recouvert sera un trapèze de a//3a =3//3x3 mm = 3//9 mm .
Ci dessous notre exercice, et deux autres exemples !
Il est à noter que pour des bois d'épaisseurs très fines, le calcul de proportion donne des mesures très petites et souvent avec des décimales ! Donc c'est au praticien d'évaluer la proportion arrondie au dessus ou au dessous de la mesure en fonction de l’esthétique et de l'essence de bois utilisée comme le montre le dernier exemple ci dessous.
2/ Répartition des queues d'aronde:
Maintenant que les proportions des tenons de notre pièce sont effectuées ci dessus, nous devons répartir après avoir calculé le nombre exact rationnel de queues d'aronde !
Nombres de queues d'aronde :
La formule N = (L-3a) : (E+a) s'applique ici aussi ! sauf que E calculé précédemment pour les proportions doit être ajouté à l'épaisseur du recouvrement désiré comme s'il s'agissait de queues découvertes . Sinon le calcul serait impossible.
N = nombre de queues d'aronde.
L = largeur de la pièce ou longueur de répartition.
E = épaisseur de la proportion + recouvrement = épaisseur totale de la pièce .
a = E:5
Notre pièce de façade d'exercice mesure 120 mm de largeur x 20 mm d'épaisseur (15 mm + 5 mm) !
Nous appliquons la formule !
N = (L-3a):(E+a) = (120 mm - (3 x 3 mm)):(20 mm + 3 mm) = (120 mm - 9 mm):23 mm = 111 mm:23 mm = 4,82
Nous trouvons 4,82 queues d'aronde , donc arrondi 4 queues et sa décimale 0,82 qui sera "diluée" dans le tracé général !
3/ Le tracé théorique complet d’après le calcul traditionnel :
1/ La largeur et l'about d'équerre de notre pièce est dessinée, puis nous y traçons parallèlement à l'about l'épaisseur du bois à assembler (a-b) ici 20 mm , puis nous y traçons parallèlement le recouvrement de 5 mm inclus !
Nous traçons ensuite les tenons de rives en fonction de leurs proportions calculées de 1/5 depuis le recouvrement .
2/ Nous traçons classiquement maintenant une diagonale quelconque fuyante (a-c).
3/ Sur la diagonale quelconque, nous traçons 4 divisions correspondantes au nombre de queues définies par la formule de calcul . (ici au réglet en ligne 30/60/90/120 ), on peut aussi se servir du compas évidement . Puis nous relions la 4 eme division avec l'extrémité de la pente du tenon de rive inférieur.
4/ Nous traçons toutes les parallèles à (b-4) depuis les points 3-2-1 !
Puis en parallèle nous traçons d'autres divisions avec la même mesure de 30 mm ou du même écartement de compas depuis l'extrémité de pente du tenon supérieur placé sur l'autre l'autre rive de la pièce , que nous nommerons a/b/c/d .(théorème de Thalès).
5/ Parallèlement aux pentes des tenons de rives préexistants, avec une fausse équerre ou un rapporteur, nous traçons toutes les joues des queues d'aronde, évidement à l’intérieur du recouvrement .
6/ Nous matérialisons les enlèvements pour découvrir visuellement nos queues d'arondes de l'assemblage d'angle recouvert parfaitement équilibrées prêtes à être taillées une fois tracées sur nos bois .
En résumé, comme pour les exercices précédents, ce tracé devra être fait en amont du tracé final directement sur un des bois qui servira de référence en cas de tracés multiples.
Sur l'illustration 2 , trois exemples de tracés théoriques avec des bois différents !
Il est à noter, que pour un gain de temps d’exécution, ici aussi on pourrait diviser en quatre ou en trois (alors que calculé à cinq traditionnellement), tout en ayant évidement tracé au préalable les proportions des tenons classiquement ! (les trois exemples supérieurs de l'illustration 2)
Tracé pratique de l'assemblage à queues d'aronde d'ébéniste découvertes :
1/ Comme pour l’exercice précédent à queues d'aronde de menuisier et d'ébéniste découvertes, nous positionnons nos bois pour piquer et tracer d'équerre l'assemblage .
2/ Nous traçons sur le montant la longueur des queues d'arondes ! Attention ici ,il faut bien entendu avoir pris en compte la diminution du recouvrement des queues au recalage des abouts, sinon nous serions trop long à la cote finale de l'exercice !
3/ Nous effectuons le tracé étudié plus haut sur le montant, puis nous effectuons la construction des pentes que nous reprendrons avec la fausse équerre .
Nous matérialisons nos enlèvements d'entailles .
4/ Nous trusquinons le recouvrement en fonction des longueurs de queues tracées précédemment sur l'about de la traverse de façade.
Analyse de fabrication de l'assemblage :
L’exécution ci est similaire aux queues d'aronde d’ébéniste du paragraphe précédent, sauf que l'exécution est compliquée par l’aspect "borgne" des entailles de queues femelles !
Ici résidera donc toute la dextérité d'un futur ébéniste confirmé ! Donc apprenez !
1/ Apres avoir placée verticalement la pièce à exécuter dans la presse, nous descendons les traits de scies de toutes les joues avec la scie sterling ou a dos (petite denture) .
2/ Nous plaçons notre pièce horizontalement, puis nous arasons les tenons de rives .
3/ Nous plaçons la pièce serrée sur le martyr, et nous entaillons les enlèvements classiquement (comme les exercices précédents) .
4/ La seconde pièce est tracée par le positionnement de la précédente parfaitement exécutée .
D'abord avec le tranchet ou pointe à tracer, nous traçons depuis les joues des queues mâles bien plaquées leurs profils à l’intérieur du recouvrement sur la seconde pièce, puis avec une équerre nous traçons les verticales des joues sur les deux faces.
5/ A l'aide de la scie sterling, nous descendons les queues femelles .
Ici nous découvrons l'aspect technique du sciage en biais sur deux axes précisément sans dépasser le tracé !
6/ La pièce placée serrée sur le martyr mais plutôt face à l'exécutant, puis nous procédons à l'entaillage classiquement, mais très précisément et délicatement pour ne pas éclater ou fendre .
7/ Nous procédons au montage de l'assemblage délicatement par petits chocs et aux retouches éventuelles .
8/ Nous vérifions l’équerrage, et nous évaluons notre travail .
Les queues d'aronde coulissantes
Apres l'apprentissage des quatre grands principes ci dessus, je vais maintenant ajouter deux exercices de queues d’aronde parfois présent dans des tiroirs traditionnel!
Il s'agit des queues d'aronde coulissantes destinées souvent à de tout petits tiroirs ou l'assemblage des traverses arrière de tiroirs.
Deux grands principes existent : (1) La demi queue d'aronde à mi-bois et (2) la queue d'aronde à tiers bois !
Les pentes sont toujours définies de 1/5 (78°), mais pratiquement chaque fois arrondies à cause des décimales millimétriques compliquées à retranscrire sur de menus ouvrages !
Le tracé théorique des queues d'aronde coulissantes:
1/ Dans notre exercice, La demi queue d'aronde à mi-bois sera placée à 8 mm de profondeur afin d’arrondir la mesure d'axe qui est de 7,5 mm !
La pente de la demi-queue sera de 2 mm arrondi (la pente a 78° au rapporteur donnant 1,7 mm)
2/ Dans notre exercice, la queue d'aronde à tiers bois sera profonde de 5 mm avec deux pentes de 1 mm (ici 1/5)
Rien de plus simple !
Tracés pratique des assemblages à queues d'aronde coulissantes :
Dans le cadre de l'exercice général, cette partie servira de "séparation" qui verrouillera la pièce entière finie .
1/ Nous traçons l'emplacement centré des assemblages sur les deux montants consécutivement après serrage .
2/ Nous traçons les arasements sur la partie traverse de séparation avec une autre traverse déjà executée pour calibrer la précision .
3/ Nous traçons les pentes des queues et demi queues d'arondes sur toutes les pièces réciproques.
4/ Nous traçons les arasements sur toutes les faces concernées.
Analyse de fabrication de l'assemblage :
1/ Nous descendons déjà les arasements d'entailles verticales des montants.
Pour cela un astuce traditionnelle est utilisée, nous nous servons de la scie sterling ou autre petite denture guidée directement par la traverse recalée bien serrée sur la moitié de trait.
2/ Au ciseau à bois, nous dégageons et calibrons les fonds d'entailles.
3/ Avec un ciseau large et parfaitement affûté, nous profilons les pentes des queues d'aronde.
4/ Avec le réglet, nous vérifions le droit de nos entailles finies et ajustons si besoin .
5/ Nous exécutons les arasements des parties mâles de la traverse !
Nota : Ici les arasements de queues d'aronde sont si ténus, que l'on peut directement les marquer au tranchet, puis les finir au ciseau à bois!
En effet il serait délicat de faire un trait de scie de moins de 1 mm.
6/ Les pentes des queues d'arondes sont terminées au ciseau précisément .
7/ Les droit des entailles et des pentes sont ajustée puis vérifiées avec le réglet .
8/ Nous montons et ajustons les assemblages un par un, par petit chocs délicats au marteau et la cale ! ( un bon assemblage pour des tout petits ouvrages devrait normalement coulisser par une pression de la de la main !).
9/ Nous montons enfin notre pièce d'apprentissage des queues d'arondes traditionnelles complète .
10/ nous vérifions l'équerrage et nous évaluons notre travail .
Voilà pour ce chapitre bien dense!
Nous avons le choix bien sur de faire les six exercices indépendamment, ou entier l'ensemble avec d'autres cotes si désiré, voire même y ajouter un fond .
Vous pouvez soit replanir cette pièce pour découvrir de beaux assemblages finis, soit la laisser en l'état pour garder le visuel des tracés traditionnels !
Ici un bel exemple de travail d'apprentissage utile des queues droites et d'arondes présent sur l'air du bois !
Assemblages d'apprentissage les entures
Nous arrivons à une seconde parenthèse dans l'apprentissage à la main de base, qui est comme le chapitre précédent des queues d'arondes et droites, normalement "dilué" dans le programme général afin de faire des exercices coupant un peu la monotonie.
Les entures sont des assemblages linéaires entre deux pièces de bois !
Elles nous permettent d'unir en ligne droite, en ligne droite avec une courbe tangentielle, ou encore deux pièces cintrées tangentes (ex plein cintre ou anse de panier) !
Il y a un grand éventail des principes d'entures déclinés qui sont utilisés dans les métiers du bois. De ce fait dans l'apprentissage de base nous étudions généralement trois exemples, pour apprendre et comprendre les actions physiques et mécaniques de cette grande famille d’assemblages.
Enture d'assemblage en sifflet résistante en compression.
Enture d'assemblage en queues d'aronde résistante en traction.
Enture d'assemblage à trait de Jupiter résistante en tout sens.
Enture à sifflet
Les entures à sifflets sont dévolues principalement pour raccorder deux bois mécaniquement travaillant principalement en compression!
On les rencontre parfois sur des poteaux rénovés en charpente, ou sur des pieds et montants rénovés de mobilier ou autres, en menuiserie et ébénisterie .
Il existe une grande quantité différentes en termes d'usinage, le tout est d’être discret et solide .
Ci dessous nous allons faire une enture en triple sifflets qui a l'avantage d’être auto serrant en compression avec une parfaite tenue latérale sans "vriller" .
De plus cet assemblage nous permet de "mixer" le principe tenons et enfourchements . 
Analyse de fabrication :
1/ Le tracé reste classique, après corroyage à la main de préférence.
Toutefois ici dans cet exercice vous avez le choix des épaisseurs de sifflets!
Soit vous faites une division Thales (comme l'illustration), soit vous faites la partie enfourchement avec des cotes arrondies ou en fonction de vos outils!
Mais on doit toujours rester dans une moyenne de trois tiers ! (ex 14/12/14 mm ou 13/14/13 mm) .
2/ L'exécution reste classique, sauf qu'il faut redoubler de précision et de logique !
Nous descendons déjà les sifflets extérieur avant de dégrossir et bûcher le sifflet intérieur.
Il y à parfois de l’ajustage chronophage au ciseau à bois si nous décidons de ne pas scier moitié de trait par précaution, à vous de décider de votre dextérité .
Analyse pratique de façonnage de l'assemblage
1/ Le tracé reste classique, commun par serrage des deux pièces antagonistes!
2/ Les joues sont descendues avec la scie à tenons des deux pièces (Nous laissons les traits légèrement "gras" afin de dresser ultérieurement au ciseau à bois si nous ne sommes pas sur de notre dextérité) .
3/ Nous arasons les bois chutes des deux pièces classiquement avec la scie à araser.
4/ Nous effectuons le "dégrossissage" des sifflets centraux des deux pièces, afin que nos sciages suivant ne "rippent" pas à cause des joues déjà effectuées.
5/ Le sciage des petites joues des sifflets centraux sont descendues avec la scie sterling.
6/ Les sifflets centraux sont bûchés et finis avec bédane/ciseau.
7/ Nous procédons petit à petit à l'assemblage des deux éléments par petits chocs au marteau, tout en démontant autant de fois qu'il y aurait à ajuster !
8/ Nous vérifions les alignements de l'assemblage classiquement en même temps que la précision de l'ensemble des joints .
9/ Nous coupons les abouts puis replanissons l'exercice avec le rabot, tout en maintenant l'assemblage serré .
Enture à queues d'aronde
Les entures à queues d'aronde sont dévolues principalement pour raccorder deux bois mécaniquement travaillant principalement en tension !
On les rencontre surtout sur des pièces de charpente, ou l'on place des systèmes assemblés en queues d'aronde partout ou les bois doivent être bloqués pour annuler des glissement éventuels par traction.
Il existe ici aussi plusieurs moyens usinés s'adaptant à chaque cas pour une solidité optimum .
Ci dessous nous allons étudier une enture de charpente/menuiserie souvent utilisée au japon notamment, qui est ensuite souvent croisée dans une entaille ou un enfourchement d'un pied ou d'un poteau afin de bloquer latéralement l'assemblage par pression !
Analyse de fabrication :
1/ Le tracé reste classique, après corroyage à la main de préférence.
Toutefois ici dans cet exercice vous avez le choix des largeurs et épaisseurs de votre pièce !
Nota : Les queues d'arondes sont toujours dans une logique carrée de leurs encombrements (ex ici bois de 70 mm de large = longueur de queues 70 mm .
La pente est entre 1/6 à 1/8 environ (suivant les cotes arrondies), avec une logique générale de moitié de bois entre mâle/femelle pour la largeur des queues d'aronde!
Le plat commun central est = à la longueur de queues .(toujours les 3/3)
Généralement dans cet exercice d'apprentissage on prend souvent deux bois différents pour bien visualiser le résultat (mais de densité similaire) .
2/ L'exécution reste elle aussi classique, en précision et logique !
Nous descendons déjà les plats d'entailles à la scie à tenon avec un peu de "gras", puis nous dressons au ciseau coupe "fauchante", avant de s'affairer aux entailles de queues d'aronde.
Analyse pratique de façonnage de l'assemblage
1/ Le tracé reste classique, commun par serrage des deux pièces antagonistes!
2/ Les joues sont descendues avec la scie à tenons des deux pièces (Nous laissons les traits légèrement "gras" afin de dresser ultérieurement au ciseau à bois si nous ne sommes pas sur de notre dextérité) .
3/ Nous arasons les bois chutes des deux pièces classiquement avec la scie à araser.
4/ Nous effectuons l'entaillage des queues femelles sur les deux pièces au ciseaux à bois et maillet/main .
5/ Le sciage des abouts de queues mâles sont descendus avec la scie sterling (nous pouvons les recaler au rabot si besoin) .
6/ Les queues mâles sont sciées à leurs arasements avec la scie sterling .
7/ Nous procédons au bûchages et dressages des pentes des queues d'arondes mâles au ciseau à bois!
8/ Nous procédons petit à petit à l'assemblage des deux éléments par petits chocs au marteau, tout en démontant autant de fois qu'il y aurait à ajuster ! Nous vérifions au final les alignements de l'assemblage classiquement en même temps que la précision de l'ensemble des joints .
9/ Nous coupons les abouts puis replanissons l'exercice avec le rabot, tout en maintenant l'assemblage bien posé à plat .
Ci dessous un exercice d'enture à queues d'aronde bien réussi et tres détaillé similaire a ce chapitre ! 
Enture à trait de Jupiter du menuisier
L'enture à trait de Jupiter, reste la plus aboutie de cette famille d'assemblage !
En effet la tenue dans les trois dimensions est complète (si elle comporte des tenons), en plus d’être verrouillée mécaniquement par une clef en forme de coin enfoncée en force .
Il existe plusieurs combinaisons pour les exécuter en fonction des besoins, à l’origine plutôt en charpente et en aplomb des champs comme l'exemple en lien ci dessous .
En menuiserie elle est plutôt utilisée en relation avec des pièces cintrées, mais nous l’étudierons en apprentissage déjà linéairement.
Elle est assemblée à plat pour les raisons évidente d'éventuels moulurages, rainurages, ect, afin d'avoir une continuité de logique petit cadre traditionnel avec le verrouillage par clef dissimulé comme l'exemple en lien ci dessous .
Analyse de fabrication :
1/ Le tracé reste classique, après corroyage à la main de préférence.
Ici dans cet exercice quand c'est notre première enture a trait de Jupiter, il est préférable de se tenir aux cotes précises du dessin, afin de pouvoir s'y référer des que besoin !
Généralement dans cet exercice d'apprentissage on prend souvent deux bois différents pour bien visualiser le résultat (mais toujours de densité similaire) .
2/ L'exécution reste elle aussi classique, en précision et logique !
Nous descendons déjà les plats d'entailles à la scie à tenon avec un peu de "gras", puis nous dressons au ciseau coupe "fauchante", avant de s'affairer aux entailles secondaires et tertiaires .
La clef doit être taillée dans du bois dur et de fil, de préférence débité par fendage avant de la corroyer!
Nota : Il y a deux écoles pour le principe de clef !
En effet il peut y avoir une seule clef monoxyle en forme de coin, auquel cas les abouts d'entailles doivent être biaisés (comme dans notre exercice) .
Sinon nous pouvons laisser les abouts d'entailles d'équerres, et faire une clef en deux pièces de pente, rentrées en force de part et d'autre de la pièce.
Le blocage se fera donc l'une contre l'autre des demi clefs dans la mortaise formée au montage final de l'exercice (utilisée en charpente).
Analyse pratique de façonnage de l'assemblage
1-1bis/ Le tracé reste classique, commun par serrage des deux pièces antagonistes!
Deux solutions s'offrent à nous, "cote à cote" classiquement (piquage des mesures au compas depuis l'axe), ou pour être sur de la précision, bout à bout ce qui évitera le retournement d'erreurs !
2/ Les joues d'entailles sont descendues avec la scie à tenons des deux pièces (Nous laissons les traits légèrement "gras" afin de dresser ultérieurement au ciseau à bois si nous ne sommes pas sur de notre dextérité a la scie ) .
3/ Nous arasons les bois chutes des deux pièces classiquement avec la scie à araser.
4/ Nous effectuons l'entaillage secondaire sur les deux pièces en dégrossissant de quelques traits de scie.
5/ Au ciseaux à bois et maillet/main nous bûchons précisément l'entaille secondaire en préservant précisément le tracé du champs de la pièce .
6/ Au ciseaux à bois main et coupe fauchante nous calibrons proprement le tout .
7/ Nous procédons par sciage en fonction de notre dextérité des joues approfondies de l'entaille secondaire des deux pièces !
8-8bis/ Au bédane, nous dressons l'about refouillé de l'entaille secondaire, puis nous entaillons les petits tenons et mortaises des deux pièces délicatement avec rigueur .
9/ Nous montons et ajustons si besoin l'assemblage complet, par petits chocs au marteau jusqu'à obtention du bon résultat souhaité .
10/ Nous taillons précisément la clef et ses pentes au rabot .
11/ Nous ajustons la clef, et nous verrouillons définitivement l'assemblage par chocs .
12/ Nous coupons les abouts et nous arasons la clef, et nous replanissons proprement notre pièce.
En règle générale, les entures doivent être executées parfaitement en ébénisterie et menuiserie, ou la solidité en plus de la discrétion est le critère principal !
Pour finir, Les entures traditionnelles étaient évidement pratiquées jadis communément, mais à notre ces beaux assemblages tendent à disparaître au profit des liaisons mécaniques et de la performance des colles modernes !
En apprentissage, elles restent un gage d'excellence de les réussir, en plus d'exercices très intéressants à pratiquer .
Voilà pour ce chapitre sur les bases d'apprentissage à la main à la découverte des entures traditionnelles !
Nous allons pouvoir nous pencher principalement maintenant sur l'apprentissage du petit cadre et dérivés ancestraux! 
Présentation des assemblages d’apprentissage petit cadre/grand cadre
En menuiserie "petit cadre/grand cadre", c'est un peu l' ADN ancestral de notre métier !
Le petit cadre : Pour résumer ce principe général, toutes les moulurations, feuillurages, panneautages, lames de persiennes, ect,, sont maximum à fleur ou en retrait de la face du bâtit principal, sur un ou les deux parements!
L’utilisation du petit cadre est très commune en intérieur (menuiseries, mobilier, lambrissage, etc) .
Ci dessous un exemple présent sur l'air du bois .
Le grand cadre : Pour résumer ce second principe général, les moulourations, décors, panneaux, ouvrants secondaires, ect, sont embrevés depuis les champs et en saillie depuis la face du bâtit sur un ou les deux parements.
Le grand cadre, permet de construire des projets de menuiseries beaucoup plus travaillées, fonctionnelles par ouvrants secondaires, visuellement et de fait plus solide et sécurisante (ex portes d'entrées, d’églises, cochères, ect ) .
Ci dessous exemples présents sur l'air du bois .
Maintenant que nous avons appris dans la première partie de ce pas à pas, la réalisation classique des assemblages en bois utilisés traditionnellement, nous allons élaborer les diverses techniques d'assemblages indispensables pour la fabrications de projets concrets .
En effet nous avons déjà réaliser des tenons et des mortaises réussies plus diverses liaisons! Maintenant il faut leurs appliquer les différents usinages usuels (moulures, feuillures, rainures, etc), afin de réaliser des ensembles cohérents constitués de plusieurs pièces de bois en "collision" !
La petite histoire :
D'après les travaux de Eugène Violet le duc (parfois décriés), le petit cadre moderne que l'on connait (tenon/mortaise avec ravancement/coupe d'onglet) apparaîtrait entre le XIII et XIV eme siècle !
Pour résumer rapidement, avant le XIII siècle, ce seraient planches bouvetées ferrées, puis batis assemblés coupes droites et moulures plutôt sculptées et autres taillées au tarabiscot et arrêtées avant les assemblages afin de ne pas les affaiblir (fig 1)! (Au conditionnel par le manque d'informations et de vestiges sur presque 1 millénaire)
Les menus travaux étant plus ou moins fait d’après les techniques de la charpente (charpentier de petite cognée puis au xv siecle les huchiers nos ancêtres professionnels), appliquées à plus petites échelles sur pièces de bois !
chassis-fenetr...s_tiercelin.pdf
Sachant que les fouilles archéologiques de la romaine Pompei détruite en 79 apr J-C, ont mis à jour du mobilier carbonisé qui a déjà toutes les caractéristiques petit cadre que l'on connait (fig 2)!
De plus d'autres mobiliers découvert plus tard parfaitement conservés en Egypte, présentent aussi ces caractéristiques. (fig 3) Chaise trône datant d'environ 1300 ans avant J-C (petit cadre sophistiqué sur son dossier).
Bref les artisans des métiers du bois ont à priori réussi très tôt des assemblages aboutis avec de l'outillage proche de celui que l'on connais aujourd’hui .(peintures romaines, égyptiennes antique)
Ci dessous une étude historique chronologique très enrichissante sur le sujet, puisée sur un site qui est une merveille conservatoire des connaissances détaillées des menuiseries de l'époque moderne (depuis la renaissance) !
(à consulter sans modération) chassis-fenetr...nfo/etudes.html
La logique petit cadre !
Les professionnels de l'époque, ont cherchés à pousser en continuité les moulures, feuillures et rainures linéairement afin de gagner en rapidité de leurs travaux, mais en cherchant à préserver la solidité optimum des assemblages .
Sur l'illustration 1/ on aperçoit des bois façonnés linéairement tels que l'on aurait poussés moulures rainures au rabot dédiés à main !
Pour réunir ces deux pièces, le plus simplement étant de faire deux coupes à 45° ,puis de les assembler avec un pigeon ou faux tenon.
Ce procédé pratique, esthétique, est utile pour des ouvrages légers, utilisés traditionnellement par les ébénistes dans des portes de mobilier.
Même si l'on parvient à faire des éléments assez solide, ces assemblages ne sont pas du tout adaptés à des travaux de menuiseries plus lourdes et régulièrement fonctionnelles dans une habitation .
Donc les anciens ont cherchés à appliquer le tenon/mortaise aux bois linéairement travaillés comme sur l'illustration 2/ .
On devine ici qu'un assemblage tenon/mortaise centré ne convient pas au premier abord, en effet comment raccorder la moulure, la rainure, tout en étant couvrant sans vide sur le bout du montant ?
La réponse est que l'assemblage tenon/mortaise doit être placé stratégiquement dans l'épaisseur de la pièce, afin de couvrir en totalité au ras la rainure, et ainsi de descendre l'arasement d'un seul coup de scie .
Puis nous devons entailler la moulure dans le montant et y pratiquer un onglet de raccordement à 45°, ce que l'on nomme un "ébarbement".
Cet ébarbement, vas au final recevoir le "ravancement" d'arasement du tenon , afin de pouvoir y couper aussi un onglet à 45° pour épouser après montage l'onglet de mortaise .
Ainsi nous obtenons un assemblage solide, dépourvus de vide, en plus d'un raccord parfait de la moulure !
Pour finir, à l’ère des machines à bois, nous avons inventé le "contre profil" 3/, qui permet un raccordement petit cadre parfait et usinable rapidement en série.
Cependant, le résultat final reste visuellement traditionnel, mais enlève l’authenticité de l'assemblage ancestral dans ce cas, d'un point de vue de puriste comme moi ! 
La logique grand cadre !
Si le petit cadre convient parfaitement à des travaux surtout d'intérieurs, nos aïeux ont pratiqués couramment aussi du grand cadre afin de construire des ouvrages plus imposant et solides exposés aux intempéries et faisant preuves de résistance contre des incursions étrangères non désirées !
Le grand cadre reste le summum artistique des menuiseries d'ouvertures, le plus souvent placées sur des bâtiments bourgeois ou monumentaux !
Les premiers grands cadres, se faisaient à partir de bois grosses sections monoxyles (bâtit/moulures) assemblés comme à petit cadre, mais ou l'on pratiquaient de larges "élégis" (amincissements par enlèvements de bois sur les faces) pour réduire l'épaisseur de bâtit afin de l'articuler dans un dormant réduit et faire ressortir les moulurations !
Par contre une grosse quantité de bois nécessaire et une exécution chronophage ont eu raison de ces premiers travaux .(1/)
Le grand cadre abouti, permet une économie de bois et de temps ! En effet on peut ainsi assembler "à blanc" un bâtit solide et rapidement exécuté, sur lequel nous installerons après recalage des faces au rabot, des moulures rapportées ou autres par embrèvement simple ou doubles qui seront un gage d’étanchéité et de solidité .(2/)
bel exemple ici d'une pièce grand cadre d'examen ! lairdubois.fr/..._comment_206494
Voilà une rapide présentation de ce qui nous attend dans la suite de ce pas à pas !
On devine ici que nous devrions avoir des rabots dédiés (à moulures, bouvets et feuillerets, à plates bandes).
De ce fait, les usinages linéaires pourront être effectués à l'aide d'une défonceuse ou d'une toupie, si l'on ne possède pas des outils anciens ! 
Assemblages d'apprentissage petit cadre (raccordements, moulures, rainures, feuillures)
En première année d'apprentissage, nous apprenions le B-A BA du petit cadre pratique en trois phases principales:
1/ Le raccordement de moulures.
2/ Le raccordement de rainures.
3/ Le raccordement de feuillures.
Sachant que plus tard dans le métier, elles sont évidement "mixées" entre elles pour parvenir à construire des éléments complexes (portes, persiennes, fenêtres à la française, lambris, etc etc ...).
Ces pièces étaient faites exclusivement à la main corroyage compris, pour apprendre à contrebalancer d'éventuels défauts de précision de ce dernier !
De plus à partir de maintenant, les pièces d'apprentissages doivent être rendues finies replanies (plus bas un petit chapitre sur l'exécution du replanissage traditionnel) 
Pour résumer, dans ce chapitre je détaillerai chacune des opérations et leurs spécificités d'exécutions.
Ravancements, ébarbements, diminutions, barbettes d'épaulements ??? = "comblements"!
Avant d'aller plus loin, nous devons nous familiariser avec de nouveaux termes techniques et leurs fonctions pratiques!
En effet jusqu'à maintenant, nous avons plutôt taillés des pièces ou la notion de raccords se limitent aux assemblages bruts entre deux deux pièces de bois équarries le plus souvent "nues" de tout usinages secondaires.
Quand on pratique des moulures, des feuillures, des rainures sur des bois à relier, elles provoquent des accidents qui perturbent la cohésion plane des assemblages, et occasionnent des vides disgracieux et des affaiblissements qui altèrent la solidité de ceux ci !
Donc nous devons contrebalancer tout celà par des entaillages précis qui règlent la question esthétique et de solidarité mécanique des assemblages, en plus d’être au plus simples et rapides de mise en oeuvre.
Le ravancement d'arasement: (Autrefois appelés barbe rallongée), nomme un décalage égal à la largeur d'une moulure ou d'une feuillure afin de combler et raccorder les ensembles.
L'ébarbement: Nomme un entaillage égal à la largeur d'une moulure, afin d’accueillir le ravancement d'arasement réciproque, les deux se joignant par deux coupes appelées "onglets" d'un angle désiré, taillés chacun à la bissectrice de ce dernier.
La barbette: Nomme un renfort d'épaulement du tenon, égal à la profondeur d'une rainure linéaire, afin de la combler en bout d'un montant .
Je vais déjà expliquer ci dessous ces principes sans assemblage tenon/mortaise afin de bien les définir .
1/ La rencontre d'un montant et d'une traverse classique nus de tout usinage, ne pose pas de problème!
En effet, une simple coupe droite permet à une traverse de plaquer en totalité le champs du montant.
2/ La rencontre d'un montant et d'une traverse moulurés, est constituée d'un "ravancement" pénétrant un "ébarbement" avec deux onglets se joignant, ce qui permet de raccorder les moulures, tout en masquant proprement par le comblement de l'assemblage en bout du montant .
3/ La rencontre d'un montant et d'une traverse feuillurés, est constituée d'un "ravancement" pénétrant en totalité la feuillure linéaire du montant, ce qui permet de raccorder les feuillures sans jeu, tout en masquant proprement par le comblement de l'assemblage en bout du montant .
4/ La rencontre d'un montant et d'une traverse rainurés, est constituée d'une "barbette" pénétrant en totalité la rainure linéaire du montant, ce qui permet de raccorder les rainures sans jeu, tout en masquant proprement par le comblement ici aussi de l'assemblage en bout du montant .
Ici la barbette est longue, à l'avenir, elle se trouvera placée dans l'épaulement d'un tenon !
Apres avoir vus ces derniers points importants, nous allons faire trois pièces d'apprentissage basiques, ou les tenons/mortaises seront axés (8/8/8 mm), afin de nous familiariser avec le travail à accomplir manuellement de chacun des principes.
Pièce d'apprentissage petit cadre raccordements de moulures
Cette première pièce, a pour but d'apprendre le raccordement des moulures dans un ouvrage complexe traditionnel!
Elle est composée d'un montant 340 mm x 70 mm x 24 mm recevant une traverse basse et une traverse intermédiaire 270 mm x 70 mm x 24 mm, le tout assemblé tenons/mortaises et orné d'un chanfrein méplat 15 mm de large x 8 mm de retombée au ras du tenon axé ! (Donc sans diminution)
La difficulté de l'apprentissage ici, sera principalement de raccorder la moulure traditionnellement et proprement par les onglets à 45° de chaque assemblage, contenus dans un ravancement et un ébarbement .
Analyse de fabrication :
1/ Apres avoir corroyées et établies correctement les pièces de bois, nous établissons montant/traverses et nous traçons les abouts !
A l'aide de notre réglet et de l'équerre, nous traçons sur les champs de références les mortaises et les arasements de tenons des pièces respectives, puis nous retournons les traits vers les seconds champs en passant précisément par la face pour les arasements .
Nous traçons sur les champs de traverses toujours serrées ensembles, les ravancements égaux à la largeur de la moulure (ici 15 mm).
Apres avoir desserrés, nous traçons l'arasement ravancé sur les parements de chacune des traverses, ainsi que les arasements de référence non ravancés en faux parement .
Nous trusquinons ensuite sur toutes les pièces les assemblages tenons/mortaises (8/8/8 mm) et les traits de la moulure chanfrein (15 mm de large sur les faces et 8 mm de retombée sur les champs).
Enfin, nous traçons les onglets ici à 45° sur tout les parements concernés, puis nous matérialisons nos enlèvements de bois chutes.
2/ Nous mortaisons au bédane le montant, et nous descendons les joues de tenons.
Ensuite à l'aide de la scie sterling, nous scions au maximum les coupes d'onglets, afin de retrouver les emplacements de ceux ci Apres avoir chanfreiner linéairement.
3/ Nous façonnons au rabot les chanfreins linéairement sur toutes les pièces.
4/ Nous arasons les tenons, puis nous exécutons l'épaulement de traverse basse, et nous finissons les onglets prés amorcés.
Nous exécutons ensuite les ébarbements du montants, ainsi que les onglets.
5/ Apres avoir mouchés les tenons, nous montons la pièce et nous ajustons si besoin au ciseau à bois, précisément les coupes d'onglets jusqu’à obtention de jointures parfaites.
Nota : Si les coupes d'onglets plaquent parfaitement bien avant que les arasements plaquent bien eux mêmes (environ 0,5 mm maximum), c'est préférable car le "coups de serre joint final" compressera légèrement les coupes, leurs assurant ainsi un peu de marge de bois en cas de séchage! En effet dans le temps les coupes d'onglets ont toujours tendance à bailler !
Analyse pratique du façonnage de l'exercice
A partir de maintenant, les apprentis doivent maîtriser le geste pour la taille des assemblages de bases! Donc les explications illustrées seront concentrées seulement sur les singularités nouvelles !
1/ Le tracé doit ce faire classiquement au départ, toujours depuis les champs, en mesurant les cotes d'usinages nues (abouts, puis largeur de montant pour les traverses et abouts puis largeur des traverses sur le montant)!
2/ Toujours depuis les champs, nous traçons les ravancements égaux à la largeur désirée de moulure sur les traverses (15 mm dans notre cas).
Sur tout les bois depuis les champs tracés, nous traçons les traits utiles sur les parements, puis nous traçons les seconds champs.
Nota : Je rappelle ici que seuls les traits de coupes et d'arasement doivent être tracés proprement au tranchet!
Les traits de renvois doivent être tracés finement au crayon ou par piquages d’arêtes, pour éviter les faux traits en parement, qui sont sources d'erreurs et de replanissages plus invasifs et chronophages (En effet, un trait de tranchet peut être profond 7/10 de mm).
3/ Apres avoir exécutés les mortaises et les joues de tenons, nous marquons au maximum à l'aide de la scie sterling les coupes d'onglets "ras de trait" précisément sur le tracé de toutes les pièces .
Le but est de laisser des "empreintes-guides" assez profondes afin de retrouver les tracés de coupes d'onglets précisément, après le façonnage des moulures pour les terminer .
Il existe la méthode avec une demi boite à coupe sans avoir a tracer ni pré scier les onglets, que nous découvrirons plus tard après avoir appris déjà la méthode ancestrale ici ! (Dus-moins pour les coupes à 45°)
4/ A l'aide du rabot, et en suivant parfaitement le trusquinage, nous façonnons les chanfreins !
5/ Les chanfreins étant finis linéairement, nous arasons les tenons ainsi que l'épaulement, puis nous finissons les coupes avec scie et ciseaux à bois des traverses.
6/ A l'aide de ciseaux à bois, nous entaillons précisément les ébarbements et onglets dans le montant.
Nota : l'ébarbement en bout du montant peut être dégrossi avec la scie sterling !
7/ Les assemblages sont montés et démontés en fonction des ajustages éventuels, afin de parfaire les jointures d'arasement et d'onglets.
8/ Apres avoir ajusté, nous "replanissons" les champs qui seront inaccessibles après montage définitif (Voir chapitre replanissage et finitions plus bas)!
9/ Nous montons définitivement notre pièce, puis vérifions l’équerrage!
En aparté la finition manuelle traditionnelle d'un ouvrage au rabot, le "replanissage"
Le replanissage, représente la méthode de finition ancestrale avant que l'on ait eu accès au papier de verre et ponceuses modernes.
Il se réalise au rabot parfaitement affûté avec très peu de "fer", produisant un copeau "transparent" très fin.
Le but est d'affleurer et de redresser (en cas de devers) les assemblages parfaitement, et de "blanchir" définitivement notre travail avant traitement les faces et champs (teinte,cire etc ..), afin d’effacer les traits de tracés et autres traces d'exécutions éventuelles. 
1/ La première étape, est de blanchir logiquement toutes les parties qui seront inaccessibles après montage définitif d'un ouvrage! (Champs intérieur, panneaux ...).
2/ Apres montage définitif et aboutage, nous replanissons avec un mouvement linéaire continu du rabot, les champs extérieurs en prenant soin de ne pas faire d'éclat sur les bois de bout, tout en préservant l'équerrage.
3/ Si nécessaire : Avec un mouvement circulaire du rabot bien appuyé à plat (suite de coupes fauchantes), nous affleurons et/ou redressons les assemblages en cas de léger devers, puis nous vérifions par glissements avec la lame d'équerre le droit du replanis .
4/ Tout étant maintenant affleuré, nous blanchissons définitivement les traverses avec une coupe fauchante bien appuyée linéairement .
5/ La dernière opération étant le blanchiment du montant, avec ici aussi une coupe fauchante linéairement au ras des jointoiements .
nota : Il est évident que nous devons faire attention aussi au sens du fil du bois "à coucher" pour ne pas faire d'éclat, Les illustrations ci dessous sont informatives donc faites appel à la logique du geste !
Un blanchiment réussi résulte de faces lisses et satinées agréables à l’œil.
Enfin il est aussi logique de commencer par le replanissage du faux parement d'un ouvrage, afin de conserver le parement à la finition finale ! 
En résumé, avec un bon rabot (le votre) le replanissage est tout a fait adapté évidement, toutefois pour les gens qui veulent vraiment travailler manuellement de façon assidue sur de beaux ouvrages, l' investissement dans un rabot dévolus uniquement à cet usage est recommander , ex ici : youtube.com/wa...KxHM&t=303s
Nous avons coutume de casser les arêtes au papier de verre à notre époque !
Nos anciens après le replanissage avaient une astuce pratique, ils prenaient une poignée de copeaux (de corroyage main) pour faire un tampon, et frottaient toutes leurs arêtes avec vigueur juste pour enlever le "coupant" (c'est pour cela que dans les ouvrages d'époques, nous découvrons souvent des arêtes encore bien vives).
Les arêtes cassées au rabot de paumes se faisaient aussi dans de plus grands ouvrages et plutôt sur les chantiers.
Je n'aborderais pas ici la finition au racloir!
Retournons maintenant à notre exercice pratique d'apprentissage!
Finition pratique de la pièce d'apprentissage
1/ La première opération est de couper tous les abouts de pièces et de tenons une fois le montage final terminé (Normalement après chevillage et/ou collage).
Nota : Les pièces d'apprentissage doivent être démontables pour la correction complète par le professeur. Je rappelle ici que des assemblages biens fait s'assemblent par très petits chocs ou bonne pressions de paume, ils ne doivent ni rentrés à coups de "casquette" (flotter) ni à coups de "masse" (en force) (mots populaires d'ateliers pour apprentis)!
2/ Apres avoir placé la pièce dans la presse d'établi, nous replanissons déjà le champ extérieur contenant l'about du montant .
3/ Nous replanissons le second champ de la pièce comportant les abouts de tenons !
4/ Nous replanissons et blanchissons déjà la surface du faux parement de la pièce afin de préserver le parement pour la finition finale .
5/ après avoir replanis tous les assemblages, nous blanchissons les traverses .
6/ Nous blanchissons le montant .
7/ Voila cette première pièce petit cadre raccord de moulure à onglets est terminée, elle doit être assez satisfaisante pour ce que l'on appelle dans le métier "vendable" !
A vous de vous noter et d'évaluer si cette pièce serait acceptée par vous même en tant que client !
Passons aux deux autres pièces ! 
Pièce d'apprentissage petit cadre Raccordements de rainures
Cette seconde pièce, a pour but d'apprendre le raccordement de rainures dans un ouvrage complexe traditionnel!
Elle est composée aussi d'un montant 340 mm x 70 mm x 24 mm recevant une traverse basse et une traverse intermédiaire 270 mm x 70 mm x 24 mm, le tout assemblé tenons/mortaises et usinée d'une rainure de 8 mm sur les champs, centrée de 15 mm de profondeur .
La difficulté de l'apprentissage ici, sera principalement de tracer précisément les diminutions de mortaises, et de scier une barbette de comblement depuis l'épaulement du tenon .
Analyse de fabrication :
1/ Apres avoir corroyées et établies correctement les pièces de bois, nous établissons montant/traverses et nous traçons les abouts!
A l'aide de notre réglet et de l'équerre, nous traçons sur les champs de références les mortaises et les arasements de tenons des pièces respectives, puis nous retournons les traits vers les seconds champs en passant précisément par la face pour les arasements .
Puis nous traçons les "diminutions" et l'épaulement de mortaises sur les champs du montant.
Ici pas de ravancements, le tracé brut est classique!
Nous trusquinons ensuite sur toutes les pièces, les assemblages tenons/mortaises (8/8/8 mm) et les traits de la moulure chanfrein (15 mm de large sur les faces et 8 mm de retombée sur les champs).
Sachant que le trusquinage avec pointes doubles peut être effectué linéairement sur les champs intérieurs, car la rainure de l'exercice ici est aussi de 8 mm de largeur et elle est placée en alignements des assemblages.
Puis nous matérialisons les enlèvements par les établissements conventionnels (des ronds pour arasements depuis les faces, et des traits (couleur) pour les arasements et mortaises sur les champs) .
2/ Exécutions des mortaises et sciage de joues de tenons classiquement!
3/ Façonnage des rainure au bouvet à approfondir.
4/ Arasements des tenons et exécution de l'épaulement et de sa barbette de 15 mm pour le comblement.
5/ ajustage montage.
Analyse pratique du façonnage de l'exercice
1/ Ici rien de sorcier pour tracer cette pièce d'apprentissage, en effet une simple rainure ne change pas d'un tracé classique "nu", en effet les diminutions se produirons de fait avec le façonnage au bouvet!
La seule singularité est de tracer sur le champs du montant les "diminutions" en longueur des mortaises égales à la profondeur de la rainure désirée (ici 15 mm) .
2/ Le façonnage des rainures se produisent traditionnellement avec le "bouvet à approfondir", après avoir mortaisé le montant et descendues les joues des tenons des traverses.
Je n'ai pas dessiné cet outil qui est par ailleurs assez facile d'usage.
Après le réglage de l'outil, il faut bien sur plaquer le guide toujours depuis les parements de pièces, et commencer "à marquer" la rainure depuis bout de la pièce avant de passer linéairement !
voir vidéo à environ 9'35" avec cet outil mythique le Stanley 45 : youtube.com/wa...h?v=etHYJPxu8q8
Ici par notre amis dneis parfait pour découvrir les bouvets deux pièces à approfondir traditionnels :
lairdubois.fr/..._comment_206815
3/ Apres avoir arasé, nous traçons et scions l'épaulement et sa barbette de comblement sur le tenon de la traverse basse. Nous pouvons si besoin ajuster au ciseau à bois .
4/ Nous montons "à blanc" et ajustons nos assemblages si besoin.
5/ Nous aboutons et replanissons notre exercice, puis nous évaluons notre travail! (Encore une fois est il "vendable ?)
Petit complément d'apprentissage intéressant !
Apres avoir replanit classiquement notre pièce, nous pouvons lui adjoindre un petit panneau!
Celui que je vous ai illustré est un panneau "à glace" (une ou deux faces lisses) avec ici une entrée en rainure par "mollets" (sorte de grands chanfreins méplat réalisé au rabot) .
Nota : Le panneau peut aller de 8 mm d'épaisseur (glace des deux cotés), jusqu’à 16 mm maximum (avec mollets) pour ne pas dépasser le parement de la pièce!
La particularité, est qu'il faut faire un petit tracé pour déterminer et trusquiner sur le plat et les champs, la pente désirée en fonction de la rainure . (Ni trop large sur le plat, ni trop fine sur les champs)
Amusez vous !!
Pièce d'apprentissage petit cadre Raccordements de feuillures
Cette dernière pièce, a pour but d'apprendre le raccordement de feuillures dans un ouvrage complexe traditionnel!
Elle est composée d'un montant 340 mm x 70 mm x 24 mm recevant une traverse basse et une traverse intermédiaire 270 mm x 70 mm x 24 mm, le tout assemblé tenons/mortaises et usinée d'une feuillure de 16 mm de retombée sur les champs, et de 15 mm de largeur sur le parement.
La difficulté de l'apprentissage ici, sera principalement de tracer et d'exécuter précisément les diminutions de mortaises et de façonner des ravancements de comblement sur la feuillure du montant.
Analyse de fabrication :
1/ Apres avoir corroyées et établies correctement les pièces de bois, nous établissons montant/traverses et nous traçons les abouts!
A l'aide de notre réglet et de l'équerre, nous traçons sur les champs de références les mortaises et les arasements de tenons des pièces respectives, puis nous retournons les traits vers les seconds champs en passant précisément par la face pour les arasements.
Nous traçons sur les champs de traverses toujours serrées ensembles, les ravancements égaux à la largeur de la feuillure (ici 15 mm).
Apres avoir desserrés, nous traçons l'arasement ravancé sur les parements de chacune des traverses, ainsi que les arasements non ravancés en faux parement. (encore une fois, attention a éviter les faux traits).
Nous trusquinons ensuite sur toutes les pièces, les assemblages tenons/mortaises (8/8/8 mm) et les traits des feuillures (15 mm de large sur les faces et 16 mm de retombée sur les champs).
Puis nous matérialisons les enlèvements par établissements conventionnels (des ronds pour arasements depuis les faces, et des traits (couleur) pour les arasements et mortaises sur les champs), et enfin des traînées pour les feuillures .
2/ Nous exécutons traditionnellement les assemblages (mortaises et joues de tenons) .
3/ A l'aide d'un feuilleret, d'un guillaume, nous façonnons les feuillures linéairement sur toutes les pièces!
Je rappelle ici qui si vous ne disposez pas des outils spécifiques manuels, et que vous ne désirez pas investir, pour ces exercices, vous pouvez faire des feuillures et des rainures aux machines!
4/ Nous arasons les tenons.
5/ Nous montons et ajustons notre pièce.
6/ Avant le montage definitif, nous replanissons les champs classiquement.
9/ Nous montons définitivement notre pièce, puis vérifions l’équerrage classiquement.
Analyse pratique du façonnage de l'exercice
1/ Le tracé de base reste classique, mais on trace en plus les ravancements sur les champs des traverses (15 mm), ainsi que les diminutions de feuillure sur le montant (15 mm).
2/ Le trusquinage des assemblages tenons mortaises de 8 mm reste à 8 mm des parements, ce qui permet au trusquinage de la feuillure (retombée de 16 mm), d’être alignés sur ceux ci .
3/ Le façonnage des feuillures s'exécute depuis la presse de l'établi, rien de sorcier, sauf un réglage des outils précis un affûtage parfait évidement !
Encore par notre amis dneis une présentation pratique pour faire des feuillures !
lairdubois.fr/...uillure-avec-un
Ici un gars incroyable qui fabrique et restaure des rabot (dans cette vidéo un feuilleret en fonction).
youtube.com/wa...h?v=rCjSava7rvQ
4/ Apres avoir descendus les arasement de tenons, nous taillons l'épaulement du tenon de la traverse basse.
Celui ci est simplement scié au ras du ravancement et éventuellement fini proprement au ciseau à bois.
On devinera ici que le façonnage de la feuillure a diminué de fait les tenons en largeur, et qu'il était impératif d’anticiper cela au tracé du montant par des diminutions des mortaises sur le montant!
5/ Nous montons et ajustons notre pièce.
6/ Avant le montage définitif, nous replanissons les champs classiquement.
9/ Nous montons définitivement notre pièce, puis vérifions l’équerrage classiquement.
Voilà ! Plein de nouvelles choses à apprendre et maîtriser avant de continuer vers le travail complexe du petit cadre traditionnel ! 
Assemblages d'apprentissage petit cadre (raccordements composés, moulures, rainures, feuillures)
Maintenant que nous avons vus des éléments raccordés indépendamment dans des assemblages tenons/mortaises (moulures, rainures, feuillures), nous allons maintenant entrer dans l'univers ancestral de l'art des assemblages complexes, ceux qui nous permettent de réaliser sans limite tout ouvrages de menuiserie traditionnelle !
Evidemment, les procédés ont évolués de manière exponentielle depuis ce dernier siècle, et beaucoup d'entres vous seront peut être décontenancés par les bases classiques.
En effet, un novice autodidacte qui aurais démarré sa passion en piochant par ci par là (video, livres, revues, forum, etc .), aura généralement des difficultés à reprendre des fondamentaux .
La mode est au lamellos, dominos, collages performant, qui assemblent des bois aboutés mécaniquement très précis!
Donc connaitre, comprendre et maîtriser les bases de nos métiers, permet ensuite d’appréhender tout ouvrages en termes de solidité, esthétique, logiques, avec les moyens d'un atelier équipé contemporain.
L'épure des prochaines pièces
Afin de simplifier notre approche des pièces à venir, nous allons tracer une épure commune à toutes!
Nous avons déjà tracé une épure dans des exercices précédent, donc nous connaissons la technique !
Ici nous apprendrons à construire en plus un angle connu de 60° avec un compas, ainsi que trouver la vraie longueur de la traverse biaise .
Ceci afin de commencer a nous familiariser avec les finesses de l'art du trait, la genèse incontournable de tout ouvrage de maîtrise. 
Après avoir tracé le montant et la traverse basse, nous tracerons la traverse intermédiaire biaise depuis une cote de 100 mm appliquée au montant depuis le champs de la traverse basse, et la construction de l'angle recherché 60°.
Depuis cette fuyante inclinée à 60°, nous traçons la largeur et les abouts de la traverse intermédiaire .
Nota : Je rappelle ici que quand les bois sont corroyés à la main, les largeurs de ceux ci sur l'épure seront obligatoirement tracées avec les pièces depuis les lignes directrices de construction du dessin!
Afin que d'hypothétiques variations des cotes soient prises en compte pour garder la précision des tracés! (ex si l'épure est tracée avec des largeurs de 70 mm , et que la traverse intermédiaire mesure 68,5 mm, la largeur de mortaise et d'ébarbement ne seront pas précises !).
Pour tracer un angle à 60° depuis un point précis:
1/ Il suffit de prendre la mesure précisément d'un segment de droite (a-b) avec un compas. (Sur notre épure le segment a-b, correspond à la cote 100 mm et l'about du montant).
2-3/ Avec ce compas réglé, en prenant comme centre a et b, nous traçons deux arcs de cercles, qui se croisent générant un point c .
4/ En traçant deux droites passant par a et b depuis c, nous obtenons un triangle équilatéral avec trois angles de 60° .
Nota : Si nous traçons les hauteurs de ce triangle, logiquement nous obtenons des angles à 30° !
Enfin pour parachever cette épure, nous traçons les largeurs/profondeurs de moulures/rainures/feuillures (ici toutes identiques 15 mm), afin de trouver les futur coupes d'onglets, ainsi que les vraies largeurs d’assemblages diminués et aboutés !
Piquage du tracé depuis l'épure
Le piquage traditionnel se pratique avec un crayon à mine dure, et parfaitement appointé !
Je rappelle ici que seuls les traits utiles pour de l'entaillage, sciage, etc, sont a faire avec le tranchet (et trusquin) afin de pouvoir facilement effacer des faux traits et/ou ceux de constructions diverses.
1/ Apres avoir établi nos bois, nous traçons un trait avec l’équerre depuis chacun d'un champ des deux traverses, afin de les positionner précisément sur l'épure, et de pouvoir y placer le montant ! (Nous évaluons le bois nécessaire en longueur évidement, avant de tracer ces traits) .
2/ Apres avoir bien positionnées les pièces, tout en partageant le bois chute des abouts, nous traçons les arasements théoriques en se servant du montant comme règle !
3/ De la même manière, nous traçons les abouts des tenons .
4-4 bis/ Nous piquons sur les champs du montant avec de petits traits ou très légèrement au tranchet , les arêtes des champs de traverses, ainsi que tout les abouts .
5/ A l'aide de l'équerre, nous traçons complètement les arasements primaires, et les abouts sur les plats et champs de toutes les pièces .
6/ Apres avoir tracé les moulures/feuillures sur l'épure (ici tous de profondeurs identiques), nous pouvons prendre les cotes de diminutions et de ravancements d'arasements, et les reporter et les tracer sur toutes les pièces pour finaliser le tracé secondaire (au tranchet) .
7/ Nous finalisons par le tracé tertiaire de toutes les pièces (trusquinage, entaillages, coupes d'onglets) et nous établissons les opérations de tailles, avec les marquages conventionnels !
Les trois prochaines pièces peuvent être mécaniquement corroyées (dégau/rabo) et usinées (toupie ou défonceuse) pour, feuillures, rainures .
Toutefois , il est préférable ici de faire encore les assemblages et les chanfreins à la main !
Apres les trois exercices de ce chapitre, les assemblages pourront être eux aussi dégrossis aux machines traditionnellement. (Mortaiseuse, et scie à ruban ou circulaire à la toupie pour les joues de tenons) !
Seul resteront les arasements et entaillages précis que l'on ne peut faire que manuellement (Onglets, ébarbement, épaulements, ect .)
A partir de maintenant, un apprenti doit savoir gérer seul, la lecture du dessin et des illustrations, afin de faire lui même en théorie couchée sur le papier, l'analyse de fabrication , son épure, sa fiche de débit et évidement l’exécution de sa pièce grâce à son acquis pratique antérieur .
Pourquoi ?
La méthode d'apprentissage, cherche avant tout à préparer le futur praticien d'appréhender l'étude et la réalisation d'un projet dans son entier!
Il faut qu'à terme l'ouvrier, maîtrise l'ensemble des interactions au cours de la fabrication de son ouvrage, et qu'elles soient parfaitement claires et complètes à l'esprit, depuis le premier schéma jusqu"à la pose de ce dernier .
Bref s'endormir avec c'est le secret .
Pièce d'apprentissage assemblages petit cadre moulures/rainures
Description de l'exercice :
Cette pièce d'apprentissage, consiste à assembler dans un montant de 350 mm x 70 mm x 24 mm , une traverse basse de 300 mm x 70 mm x 24 mm et une traverse intermédiaire inclinée à 60°, de longueur encore indéterminée x 70 mm x 24 mm !
L'ensemble comporte une rainure de 15 mm de profondeur x 6 mm de largeur et une moulure (chanfrein) de 15 mm de large x 7 mm + carré de 3 mm de retombée sur le champs ! (corroyage et usinages de la rainure mécaniquement autorisé).
1/ Rédiger l'analyse de fabrication .
2/ Réaliser cet exercice après en avoir tracé l'épure, avec assemblages traditionnels (8 mm centrés) et les chanfreins (à la main) raccordés à coupes d'onglets .
Pièce d'apprentissage assemblages petit cadre moulures/feuillures
Description de l'exercice :
Cette pièce d'apprentissage, consiste à assembler dans un montant de 350 mm x 70 mm x 24 mm , une traverse basse de 300 mm x 70 mm x 24 mm et une traverse intermédiaire inclinée à 60°, de longueur encore indéterminée x 70 mm x 24 mm !
L'ensemble comporte une feuillure de 15 mm de profondeur x 14 mm de retombée et une moulure (chanfrein) de 15 mm de large x 7 mm + carré de 3 mm de retombée sur le champs ! (corroyage et usinages de la feuillure mécaniquement autorisé).
En cas de feuillures exécutées avec une scie circulaire (récupération de parcloses), nous pouvons utiliser les chutes avec coupes d'onglets pour découvrir ce principe .
1/ Rédiger l'analyse de fabrication .
2/ Réaliser cet exercice après en avoir tracé l'épure, avec assemblages traditionnels (8 mm centrés) et les chanfreins (à la main) raccordés à coupes d'onglets .
Pièce d'apprentissage assemblages petit cadre double parement moulures/rainures
Ici cette pièce, nécessite une épaisseur des bois corroyés de 30 mm, nous garderons des assemblages de 8 mm centrés si nous ne possédons pas de bédane de 10 mm, mais avec une rainure de 8 mm de largeur .
La particularité de l'exercice, est de travailler sur deux parements, induisant des onglets et ébarbements traversant.
J'ai ajouté un renfort d'épaulement dans une barbette, parfois utile dans certains travaux, afin d'éviter des jours inesthétiques en cas de retrait.
Un panneau (facultatif) peut y être ajouté!
Description de l'exercice :
Cette pièce d'apprentissage, consiste à assembler dans un montant de 350 mm x 70 mm x 30 mm , une traverse basse de 300 mm x 70 mm x 30 mm et une traverse intermédiaire inclinée à 60°, de longueur encore indéterminée x 70 mm x 30 mm !
L'ensemble comporte une rainure de 15 mm de profondeur x 8 mm de largeur et une moulure (chanfrein) sur les deux parements, de 15 mm de large x 7 mm + carré de 4 mm de retombée sur le champs ! (corroyage et usinages de la rainure mécanique autorisé).
1/ Rédiger l'analyse de fabrication .
2/ Réaliser cet exercice après en avoir tracé l'épure, avec assemblages traditionnels (8 mm ou 10 mm) et les chanfreins (à la main) raccordés à coupes d'onglets .
Le panneau (facultatif):
Un travail facultatif est possible pour commencer à se familiariser avec le petit cadre complet, c'est de faire un panneau sur cette pièce ! 
Dans cet exercice, c'est intéressant, car nous devons prendre les cote à l'épure !
Nous découvrons ici qu'il ne suffit pas d'ajouter bêtement 15 mm aux cotes (le panneau serait trop court), en effet le biais induit un tracé d'épure pour avoir les mesures exactes.
Description de l'exercice :
1/ Tracer et matérialiser le panneau à l'épure .
2/ Exécuter la fabrication complète du panneau (épaisseur environ 15 mm), avec une plate bande (40 mm) sur le parement et "à glace" en faux parement.
Chapitre incontournable de maîtriser avant de passer à la suite !
En effet nous allons aborder dans l'avenir des éléments particuliers d'assemblages et d'usinages qui pourraient impacter la construction d'ouvrages complexes si ils ne sont pas contrebalancés ! 
Un exemple type présent sur l'air du bois /
On continue ???????????
A suivre ,et n’hésitez pas à me commenter sur ce nouveau projet :

Discussions
Excellente initiative je trouve que de replacer les bases du travail sont importante notamment dans l époque que l on vie où la course a l armement fait rage.
).
Je note deux petits oublis, le café pour la pause et les stones pour la musique ( c est du rock alors c est bon
Bravo pour ce nouveau fil très pédagogique. Je pense qu'il intéressera les débutants et même les moins débutants qui ont "séché" les cours pour ne les avoir jamais suivis.
Une nouvelle lecture intéressante en perspectives je vais suivre sa avec intérêt une fois de plus
Encore une bonne initiative Sylvain au top
.
Les scie Crown sont vraiment bien j’en ai deux qui traîne à l atelier , achetez sans hésiter
Merci sylvainlefrancomtois je vais suivre avec intérêt ton pas a pas.
Je rajouterai peut être de quoi percer dans la caisse à outils.
Pour le riflard, la varlope et le rabot de’ finition tu conseilles quoi comme taille? (#5, #6, et #5 ou 4 va autre lame) ?
varlope en 60 mm (fer) rabot en 50 mm (fer)
Merci
Pour la caisse à outils, tu pourrais aussi citer le pas pas de fof.
Calcaneus bien vu ! c'est fait
Sylvain toujours au top!
Ta photo d'atelier d'apprentissage me rappelle la tenue brune et le béret qui étaient encore de mise en 1968 (le jeu consistait à couper au ciseau la petite queue du béret, c'était le baptême du béret des nouveaux!)
Une question, M'sieur! Le bic, pourquoi bleu et rouge ?
pour représenter le vertical ou l' horizontal sur une coupes d'un dessin
sylvainlefrancomtois Merci M'sieur!
merci a toi pour se pas a pas
Je suis novice dans le bois je travail quasiment que a la main et j’avoue connaitre très mal les assemblages (tenon mortaise pour le moment) et j'ai beaucoup envie d’apprendre plus, du coup je vais suivre ton pas a pas
encore merci a toi et a tous ceux qui partage leur savoir !
Bonjour,
le plaisir d'apprendre en bonne compagnie est décuplé par la générosité du "formateur".
Merci sylvainlefrancomtois
Bonjour,
Merci beaucoup pour toutes ses informations et formations.
Claude
Encore un très beau chapitre du livre de Mr Sylvain qui s'annonce... Vivement la suite ;-)
merci a tous des encouragements , ça fait toujours plaisir !
Merci pour le partage et le temps que cela représente, et pour un pro Ce n’est pas gratuit...
J’apprécie vraiment et attends vivement la suite.
Excellente idée
Je m'abonne sur le champ.
merci , c'est grâce a ton post sur ton enture qui m'a donné l'idée !
Super!
Et ça va dans le sens des Challenges proposés par Folgansky .
Top... Vivement la suite. Merci :D
Génial ! Merci Sylvain ! L'air du bois est une véritable école de formation !
Excellent, merci Sylvain pour tes précieux conseils et ta bienveillance.
Merci beaucoup pour ces dossiers très bien construit ! J’aimerais tellement avoir des bouquins les pas-a-pas de l’air du bois ! Ça n’existe pas un éditeur collaboratif ou un truc du genre ?!
ça c'est une excellente idée, je vote pour. Y'a t-il un éditeur dans l'assemblée ?
+1
+1
Chatawak
Merci pour le partage, et le rappel des bases...

Pour la musique on verra, mais le reste je prends. Merci encore.
Très bonne initiative !
Nickel ! Pour le gauche tu aurais pu parler des règles de bornoyage, ou d'un contrôle sur surface plane, et du pied de biche/valet pour le maintien (et éviter le recul quand on recule le rabot), sinon c'est impeccable ! Et je te rejoins sur le fait que cette première opération mal faite, c'est tout le travail qui va s'en ressentir, et c'est autant valable en travaillant sur machine.
Une pièce de cette taille, avec l'habitude, ça doit prendre une quinzaine de minutes à faire à la main, abouts sciés !
merci ! je vais préciser pour le gauche ! Soit dit en passant je préciserais que l'on nous apprenais sans réglettes ,juste à l’œil !
Peut-être suis je ignorant, mais il aura fallu que quelqu'un poste ici des règles à bornoyer pour que j'ajoute ce terme à mon vocabulaire, les deux réglettes ou tasseaux je connaissais quand même le principe mais comme dit Sylvain : à l’œil.
sylvainlefrancomtois Je le fais quasi tout le temps à l'oeil aussi pour les bidules de cette taille, mais bon au début, les deux règles, ça permet de se rassurer.
Salut à tous,
Sylvain, j'ajoute au concert de louanges, j'adore cette page!
remarque peut-être naïve, mais si tu as un plan de travail a peu près plan, ça parait facile de vérifier que la pièce n'est pas gauche sans règle à bornoyer : il suffit de la poser à plat, de voir si elle ne bouge pas et si il n'y a pas de jour dessous, non?
Fof oui complètement !
kaj
celui là ??
LionelDraghi parfaitement , mais le but c'est apprendre à le faire non gauche et vérifié à l’œil ! A l'école c’était interdit , y compris sur la semelle de la varlope ! Tout ça pour former parfaitement l'oeil et la main !
sylvainlefrancomtois oui je ferme le gauche
Super je vais surveiller cela de prés et j attends la suite avec impatient . Nous sommes à peu prés d'age donc j'ai commencé comme toi puis après pour les bois plus important on m' a appris une méthode avec un feuilluret est deux règles à bornoyage à coulisse. Puis dressage presque en travers au riflard puis finition à la colombe. Mais c'est peu Etre de la triche
Non pas de triche ! mais seulement utilisation après avoir appris ! Pour gagner du temps et de l'argent !
Tiens, cela me fait penser à Roubo, il évoque cette méthode dans le texte associé à la planche 14 (voir notamment les figures 1 et 2 de la planche 14).
Voir par ici pour plus de détails.
Je trouve ça très bien il faut temps s'en temps remettre en mémoire le début pour bien comprendre le travail
Hello Sylvain,


j'ai commandé mon Stanley n 5 et un tiers-point ce week-end, dès que je les ai reçus je m'y mets.
C'est ma voisine qui va être contente si j'abandonne la rabo-degau...
Dans le dernier bulletin municipal de mon bled ils rappelaient les jours et horaires pour l'utilisation des outils bruyants et dans la liste était précisé pour la 1ere fois raboteuse, je me suis visé...
Aïe...
Kentaro ouille !!
Olivier Vernhettes Un tiers point pour un rabot ?




Ok je sors
dependancesbois Je préfère....
dependancesbois un vieux tiers point limé ça fait un affiloir pour le racloir
Olivier Vernhettes soit gentil avec les voisins et offre leur un casque anti bruit
Stef64 je vais y penser, surtout si je me fais recaler a la fin de ma 1ere année d'apprentissage par maître sylvainlefrancomtois


kaj et oui un outil même usé sert toujours ! C'est ça qui est top.
Olivier Vernhettes
Merci pour ce premier cours.
Il ne faut pas labourer !
Merci beaucoup sylvainlefrancomtois ! Après de premiers exercices sur ce thème pendant le confinement (mais sans les points), je vais retenter en tenant compte de tes conseils.
Question pour tirer d'épaisseur : on voit parfois (chez les anglo-saxons principalement) chanfreiner les 4 côtés de la pièce puis attaquer par des coup de riflard en diagonale avant de finir dans le sens du bois. Différence de tradition dès qu'on traverse une mer ou manifestation d'une moindre maîtrise du geste ?
oui , il y a des techniques un peu différentes partout dans le monde ! mais restons français !
Par contre rien ne t’empêche d’expérimenter les deux et de faire un retour d’expérience , ce serait intéressant .
Merci beaucoup. J'ai toujours été passionné par le travail du bois mais sans jamais avoir franchi le pas. Depuis une petite année j'essaie de travailler. Par manque de moyen je me suis mis à travailler à la main et j'en prend un grand plaisir et de plus en plus. Votre post est super intéressant et j'y reviendrais plusieurs fois. Encore merci
Bonjour Sylvain
L arbre et son bois sont un immense cadeau fait à l l'homme. Quelques initiés le magnifie. En nous proposant cet enseignement vous ouvrez la forêt des possibles.
Je suis moins qu un débutant, je n ai pas été autorisé a oeuvrer la matière la plus noble que je connaisse; alors,je vous suis infiniment reconnaissant de nous proposer vos connaissances.
Grand merci. A bientôt de vous lire.
PHILIPPE
y pas de quoi ! merci
Bonjour à tous
Est ce que quelqu'un pourrai m'expliquer comment faire pour reconnaitre le sens du fil du bois
Exemple sur la photo jointe.(Si j'arrive à la mettre)
Je vois bien le fil du bois mais je ne sais pas si il faut travailler la pièce de gauche à droite ou contraire
Merci de m'accorder un peu de votre temps
Daniel
Bonjour Pickup27
Le sens du fil est le sens dans lequel tu vas coucher les fibres du bois en travaillant avec ton outil. Un peu comme lorsqu'on caresse son chien (ou son chat) : mieux vaut le faire dans le sens du poil qu'à rebrousse-poil (à contre-fil pour le bois).
Dans l'exemple que tu donnes, pour travailler le champ supérieur sur ta photo, j'essaierais de le travailler de gauche à droite :
Pour le champ inférieur, comme il y a un nœud, ce sera plus compliqué : en partant un peu après le nœud, tu devrais pouvoir le travailler de gauche à droite. Sur le nœud, il faudra avoir un outil bien affuté et regarder quelle orientation donne le mieux.
J'ai utilisé le conditionnel car comme souvent avec le bois, il faut faire des essais, ressentir le comportement de l'outil et observer le résultat. En plus, il n'y a ici qu'un petit morceau de ta planche : l'orientation du fil peut évoluer à d'autres endroits. A force d'expérience, on apprend à "lire" le comportement du bois sous l'outil.
Bons essais !
Parfois le fil n'est pas facile a déterminer! Donc dans le doute, tu fais une ou deux passes de rabot , et tu verras vite le sens ou il n'y a pas ou très peu d'éclats (e cas de fil tortueux)
Pickup27 Pas facile de donner une réponse sur une photo d'un petit morceau mais je rejoins assez RedGuy .
Il te faut aussi sur des morceaux de faible largeur regarder le côté de la face que tu vas raboter, c'est ce qu'à dit Sylvain : > On le vérifie en regardant sur le champ de la pièce .
Comme dans ce dessin tiré de ce livre.
Après on comprend beaucoup mieux à force de pratique et d'observation, et des fois sur un morceau on y arrive pas et on ne comprend pas.
L'exemple du poil de chat de RedGuy est super.
Je confirme : l'image des poils de chat est tout à fait évocatrice... sauf que c'est beaucoup plus facile à voir pour un chat que pour un morceau de bois
Avec un peu de chance, la fibre du bois est parallèle, et l'usinage se fait aisément dans les deux sens.
Et puis, pour certains morceaux, on s'aperçoit au rabotage que les fibres se relèvent : dans ce cas, je retourne le sens de l'usinage pour la prochaine passe de rabotage. C'est pour cela aussi qu'il faut faire des petites passes... ça permet d'en faire plusieurs et de contrôler le résultat.
Et puis, parfois, le bois est ondé... et le sens du fil s'inverse sur la même pièce de bois ! Dans ces cas-là, c'est toujours un compromis à trouver, et du ponçage assuré plus tard...
Voilà mon petit retour d'expérience sur la question.
dependancesbois
sylvainlefrancomtois faut bien écouter le professeur et s'entraîner !

Ah oui! Mais le plus difficile c'est de s’arrêter de faire des copeaux juste au bon moment!
kaj
RedGuy merci pour les explications,je vois que ça n'est donc pas toujours évident
JBRosset merci
dependancesbois je vais passer le rabot sur le dos du chat pour mieux comprendre:
Pickup27
dependancesbois t'es en contre fil , c'est pas bien !!!
excellent on ne peux expliquer mieux !
Une question: Les chats exotiques ont ils des poils dans les deux sens?
Chat dépend.....
Herlem oui y des chats nus !
google.com/sea...920&bih=937
dependancesbois j'ai tout compris
comme ça c'est très clair
sylvainlefrancomtois kaj
Plus dur :
images.app.goo...TZ9s7MxYF5JLAZA!
Bonjour à tous
Une autre question:
Quand sylvainlefrancomtois parle de protéger le plateau de l'etabli des coups d'outils a bûcher qu'est ce que cela veut dire
Les outils de types ciseaux, bédanes ! ainsi que parfois perçages
sylvainlefrancomtois merci,c'est le mot bûcher que je ne connaissais pas
Pickup27 Bucher = enlever du bois ! blb-bois.com/d...ois/ciseau-bois
Merci beaucoup sylvainlefrancomtois pour ce nouvel exercice. T'es vues sont très claires.
Peut-être une suggestion ;
Est ce qu'il ne serait pas plus pratique de créer pour chaque exercice un pas à pas différent ?
Ça permettrait de ne pas être trop long, tes explications plus les commentaires.
On pourrait regrouper ces pas à pas dans une collection.
J'ai déjà trouvé une planche en chêne, je m'y met.
Ce chapitre est très long oui car j'ai expliqué en détail les procédés aux outils pour des novices vraiment débutants! les prochains exercices, seront expliqués seulement en analyse de fabrication ! je n'avais pas le choix
Ce qui est long c'est la suite des exercices plus tous les commentaires. Pour glisser du début du pas à pas à la fin pour écrire un commentaire j'ai le doigt qui chauffe sur l'écran
Merci papa ça m'a bien servi ...hâte de lire la suite et surtout de pratiquer ...fière de toi
Marion68320 c'est un peu a cause de toi que je fais ce pas à pas ,moi aussi je suis fier de moi

sylvainlefrancomtois de ta fille et de ton pas à pas
kaj Hello Jacky
Des deux !! Ma fille fait une reconversion pro en menuiserie, tu parles je suis au anges !
sylvainlefrancomtois tu peux !
bienvenue au club, Marion68320 et bonne continuation pour la suite.
C'est très généreux de ta part de ne pas garder le meilleur prof de l'Air du Bois pour toi toute seule !
trente six seb
De toutes façons à l'époque mes apprentis étaient quelque part tous mes enfants !
sylvainlefrancomtois on peut tous t'appeler papa alors ???

On est tous quelque part un peu tes apprentis
non surtout pas !! je vais passer pour quoi avec des gosses dans tout les coins !
Sylvain, je peux être ton frère mais pas ton fils ça c'est sûr!
kaj
Après rifle et rifle
maintenant pan et pan dans l'atelier
et toujours un excellent professeur
Merci
Merci beaucoup pour cet excellent pas à pas.
Les illustrations sont excellentes et tout est extrêmement bien détaillé ! Un grand Merci pour ce travail. Tu es vraiment un Papa du pas à pas !
Krazymins plutôt professeur petit à petit !
sylvainlefrancomtois
Wahou!!!!!
Quel boulot! Tu nous a préparé une (ou plusieurs) belle(s) séance(s) de travail! je vais m'y mettre dés demain matin et je pense en avoir pour quelques jours (voir semaines)
Mais merci de passer du temps pour nous montrer les bases de ce beau métier qui est le travail du bois
Cordialement
Yann
Génial ! Maintenant je continue de faire mais en conscience !
Le rappel des bases, à n'importe quel niveau d'ailleurs, ça remet dans l'axe.
Bravo, et merci pour cet exercice de patiente : détailler quelque chose que l'on fait comme on respire.
Très utile pour avoir les gestes et le vocabulaire précis (pour moi bûcher, c'était réviser pour mes examens!).
Et les illustrations sont très belles, la aussi on voit qu'il y a eu un énorme travail pour transmettre.
Alors un grand merci.
(Tandis que, dans le silence de notre inconscient collectif, tourne au-dessus de nos têtes l'idée déjà évoquée d'un livre communautaire tirée de tous ces beaux pas à pas!)
Oui, cette idée de livre tourne en effet dans ma tête. C'est très clairement une idée excellente. Peut-être un nouveau sujet pourrait-il être ouvert pour en parler plus sérieusement ? D'ailleurs, si besoin pour corrections ou autres, je suis toute prête à m'investir dans ce projet.
Et bien sûr, un grand merci encore à Sylvainlefrancomtois pour ce riche partage de connaissances et d'expérience.
Manuela
Ça serait génial
J'y réfléchi ! merci
En attendant, je mets en pratique.
Entaille n1
Herlem tu as bien raison prend ton temps c'est pas une course !
tu as corroyé à la main ?
Oui oui !
J'ai commencé avec mon fer de rabot qui n'était pas parfaitement affûté, j'avais du mal avec de l'arrangement à un bout de ma planche. Fil qui change de direction. J'ai fini par ré affûter mon fer et.... C'est devenu plus facile.
L'importance des outils parfaitement affûtés s'est bien confirmé.
Herlem super retour !merci
Belle initiative il faudrait que j'ai du temps pour faire des vidéos de formations plus approfondis, je recherche justement un défit a faire mais avec un exercice simple, les plans de l'apprentissage de KAJ m'inspire.
Le tenon et mortaise à la main reste le plus recherché, après on peu décliner sans limites les exercices !(petit cadre grand cadre)
A travailler de concert je pense que l'on pourrait faire quelques choses le tenon mortaise a la main a déjà été traité sur ma chaîne
Tenon mortaise à la main sur ta chaîne executionbois ? Un lien?
José Das Neves youtube.com/wa...h?v=GVl0JuPu3Ek
sylvainlefrancomtois comment m'as tu repéré nom de la chaîne pas identique a ma présence sur le site et c'est fait exprès!!!!!
executionbois Ah ah, mais vous êtes mondialement connu très cher maître professeur !
executionbois en fait je sais plus ?? j'espere pas avoir fait une gaffe !!
sylvainlefrancomtois non mais je ne veux pas tomber dans le système abonnement pouce bleu etc etc
Mais sans abonnement, on ne reçoit pas les nouvelles vidéos et ça c'est très triste.
Bravo félicitations. Très instructif, très pédagogique.
Super boulot.
Bravo et merci Sylvain , je me répètes mais j'aimerais ce livre , des belles illustrations comme ça avec ces explications ! ( la version papier pour l'atelier ou la détente " sans écrans " ! )
J'y pense , je vais voir ou ce pas à pas me mène !
Ce serait le livre "ultime" !!!! En cas de financement participatif je crois que rien qu'avec l'air du bois se serait un challenge gagné !
Moi je prends !
dependancesbois
Super travail avec de superbes illustrations Sylvain, comme d'habitude... Je ne manquerai pas de dire à mes élèves d'aller voir ce pas à pas très accessible.
On aurait presque envie que les illustrations se mettent en mouvement !
Je vais allez voir chez Pixar !
Je peux peut-être lui demander il utilise un marteau aussi c'est ici
trêve de plaisanterie, tes illustrations sont formidables
kaj merci Jacky , pascale m'a dit que nous allions peut être bientot en parler autour d'une bonne bouteille !
Super je retourne dans l'univers de l'école professionnel
Toujours aussi excellent. Manque plus que des vidéos pour qu'on puisse apprécier les talents de l'expert !
merci j'ai hâte d'avoir des retours de personnes débutantes , j’espère pour voir si c'est efficace !!
sylvainlefrancomtois peux tu me faire parvenir un projet je vais essaye de faire une video ce serait sympa non?
on lance un chalenge sur l'ADB
j'attend une réponse collégiales
executionbois En fait c'est pas bête ! si tu faisais des petites videos ,exemple sur une entaille scie ciseau exactement comme j'explique la progression pour illustrer en pratique mes dessins (planche ,biseau, coupe fauchante ), je pourrais mettre en lien !
je connais pas ce sujet si tu as un plan je veux bien m'y coller.
executionbois et sylvainlefrancomtois
Je vote pour !
J'en profite pour partager mon avancement. Je suis sur l'e taille 4
Herlem je n'ai pas la pièce dans les mains, mais c'est du bon travail de visu !
sylvainlefrancomtois
Je privilegie la qualité, ça me prend beaucoup de temps.
Je suis certain que des vidéos aideraient à comprendre les meilleurs gestes. Peut-être aussi à comprendre comment ça se passe avec des outils qui coupent(bien sur que ça dépend aussi du bois). Je me demande si je tarde pas un peu trop entre 2 affûtages...
La question de l'affutage!
Là aussi il faudrait démystifier ça. Un ciseau qui ne coupe plus bien,il ne faut pas plus de 23 secondes pour lui redonner du tranchant.
Et je le vois souvent avec mes étudiants. Ils vont à la pierre avec retenu car ils ont l'impression qu'il faut beaucoup de temps.
Alors que, plus on y va , plus on est adroit et rapide!
José Das Neves
Oui mais combien de temps d'utilisation entre 2 affûtages ?
La est la question.
Il me faut a chaque fois 5 bonnes minutes.
Manque de pratique ?
J'affute peut être trop tard ?
José Das Neves +1
Herlem tu t'en aperçois quand tu ne peu plus rouler correctement un copeau fin en coupe fauchante !(tu ne peux plus te raser avec)
Ensuite çela deviens vite instinctif , t’inquiète pas on y est tous passés 
Herlem J'ai en permanence une pierre fine a proximité souvent elle reste sur l'établi je fais 2 a 3 aller retour dessus et c'est reparti.
sylvainlefrancomtois nous allons affûter nos ciseaux preter par l afpa si j ai un soucis je pense qu un cours privé ne serait pas de refus ce week-end

Le copeau qui roule, c'est un bon truc, je vais y faire attention.
Quand j'y pense, c'est clair que je laisse trop de temps entre 2 affûtages.
Marion68320 je pense qu'il n'y aura pas de problème, ça s'apprend très vite !
Marion68320 cest Pô juste d'avoir un papa avec ce Savoir et ce Savoir-Faire, et aussi cette envie de transmettre !!! Je tiens à préciser que je tiens beaucoup à mon papa, il a un défaut, il n'est pas menuisier !!!
Encore bien travaillé sylvainlefrancomtois

Ardennais merci !
Merci ! A ton avis de formateur, ce n'est pas trop hard ??? je ne me rend plus compte c’était y 42 ans !
je prépare un truc pour ce WE les entaille première partie
je vais essayer de suivre la procédure a la lettre donc peut être pas ci évident que ça car là je retourne a l'école.
executionbois
Super cela fait trois quatre fois que je relie avec intérêt . Mais la barre est placée haut me semble t'il. Il faut s'accrocher
Merci pour tout
c'est a peu près ce que l'on avait en apprentissage ! mais en moins ludique et avec des temps donnés aux exécutions à respecter !
Je suis étonné de voir que tu fais les mi-bois en sciant seulement les arasements et en buchant le reste
c'est plus rapide que de scier l'arasement + la joue ? Instinctivement j'aurais scie, une scie bien affûtée suit quasi-automatiquement la ligne, mais je suppose qu'avec l'expérience on fait de même au ciseau.
Sinon en aparté, ton cours est une mine d'informations, mais a mon sens ça manque de réalisation "concrète". Très franchement, en tant qu'amateur avec un temps disponible d'une demi-heure/jour je me vois très difficilement enchaîner les pièces d'apprentissage sans utilité particulière pendant des semaines. Bon à part ça a mon avis c'est un très bon programme pour un apprentissage pro ou pour quelqu'un qui a vraiment beaucoup de temps disponible
Ah et je suis époustouflé par le travail de modélisation 3d que tu fournis
"mi-bois en sciant seulement les arasements et en bûchant le reste" tout dépend de l'exercice demandé (travail au ciseau ou à la scie) pour progresser !
Je refais mon apprentissage (il y a 42 ans) revisité, donc il faut penser 3 jours et 1/2 par semaine à l'époque à l'atelier (journée de 8 heures) semaine de 40 h à l'époque) !
Les boiseux de l'air du bois , reprendrons ce qui les intéressent et cela permet de se situer techniquement chacun son niveau!
Définition didactique: , adjectif
Sens 1 Qui a pour but d'instruire.
Exemple : Utiliser un registre didactique, une transposition didactique, du matériel didactique, etc.
Synonyme : pédagogique
Si ce n'est pas didactique, je sais pas comment c'est autrement ?
Arf ! Du coup les deux se font ? Intéressant ! Faudrait que j'essaie, ça doit être super rapide si le fil va dans le bon sens.
Après c'est mon sentiment il faut le prendre comme tel mais je vais peut peut-être tenter tenter la dernière
benjams c'est pour cela qu'on ne remplace par un prof, un maître, etc par un simple livre. En complément des écrits, l'apprentissage passe par des essais/erreurs. C'est pour cela que le maître ou le professeur, lorsque qu'il apprend à ses jeunes, contextualise (terme pédagogique qui veut dire en gros "trouver une situation dans la vie professionnelle ou le jeune apprenti va retrouver ce geste, ce savoir, cette compétence sur un chantier, un ouvrage, etc..). Ici, sylvainlefrancomtois permet à chaque amateur sur ce cet espace d'amoureux du bois de commencer un exercice selon son niveau, ses connaissances et sa maîtrise du geste. Libre à chacun de faire une demi heure par ci par là ou une journée complète. De même pour les différents exercices, il est tout à fait possible de transposer un exercice en un petit ouvrage utile. Les assemblages seront les mêmes mais l'œuvre sera différente et utile. Donc si, étant enseignant, ceci est didactique
. Bon copeaux
J'ai édité mon premier message, didactique n'est peut-être pas le terme...
La critique que je voulais faire c'est que ce côté très technique et le manque de réalisation peut rebuter. Le côté positif c'est que l'absence d'enjeu fait que certains vont être plus à l'aise pour tenter des nouvelles choses. Personellement, c'est pas trop mon cas, j'ai fait mon premier tenon mortaise dans ma cave sans la moindre pression en me disant que si c'était pas assez serré, je collerais un bout de bois sur les joues du tenon pour réparer. Bref tout ça pour dire que ça reste mon avis personnel. Je trouve qu'il y a un a mon avis un poil trop d'injonctions sur ce site, j'insiste, ça n'est que mon avis personnel
Après en soi je lit ca plus comme une encyclopédie.
benjams injection est un poil exagéré certains donnent des pistes, libre à chacun de faire comme il le souhaite. Les conseils et les expériences vont dans les deux sens, nul n'a la science infuse l'apprentissage n'est jamais terminé.
Calme et sérénité
C'est incroyable comment le moindre mot peut-être relevé ici
kaj c'est diffus mais il y a des sujets qui donnent systématiquement lieu à des injonctions presque religieuses
(les angles d'affutage, la hauteur des établis, les outils japonais...). C'est une minorité, on est d'accord, mais une minorité a ne pas faire grossir
benjams
Ardennais
kaj Coucou Jacky , "l'apprentissage n'est jamais terminé." Si !! quand on est mort !
Bonbonveronbi
sylvainlefrancomtois mais au final, tes mi-bois, tu les buches ou tu les scie ?
benjams lis bien les exercices, les deux ! Dans la réalité c'est suivant les besoins et les moyens de chaque situation , il faut savoir faire les deux ! Comme l'a dit Ardennais
Salut benjams
, mais quel bonheur de raboter dans le silence en écoutant sa musique.
Je reprends le fil avec un peu de retard
Pourquoi te stresser, fais comme tu le sens
sylvainlefrancomtois nous délivre l'enseignement qu'il a reçu et qui permet d'exercer par la suite sans mauvaises surprises.
Maintenant ce n'est qu'une ligne directrice avec l'enseignement des bons gestes, libre à nous de les appliquer stricto sensu, nous ne passons pas d'examen et personne ne nous jugera à la fin.
Pour l'instant j'en suis à sortir du copeau au rabot en essayant d'être droit et d'équerre, je préfère ne pas appliquer le système de notation préconisé ...
Alors profite
Olivier Vernhettes
sylvainlefrancomtois j'en profite pour poser 2 questions.
1 - Sur ma photo j'ai un Goldenberg 42 en premier plan, il a une lumière tellement étroite qu'au début je pensais ne pas pouvoir m'en servir car la lame l'a fermait totalement.
Finalement en jouant sur les réglages j'ai une très fine ouverture qui dégage du copeau très mince et je m'en sers pour raboter avec précision ou finir les passes de celui qui est derrière et qui me sort du copeau énorme avec sa grosse lumière.
Est-ce correct ?
2 - L'autre est un Peugeot 44 avec une feuillure de chaque coté, quelle en est l'usage ?
Merci
Olivier Vernhettes Hello
Pour la question 1 oui c'est bon, tu nous fait un peu le résumé de dégrossir au riflard, puis de corroyer propre a la varlope ! (bien qu'au rabot tu perd du temps)
pour la question 2 c'est un rabot à élégir , donc à façonner un élégi, ou à nettoyer des feuillures précisément !
Super, merci
Pour le riflard, j'ai un Stanley n°5 commandé depuis le 8 juin chez le plus mauvais fournisseur du net...il va bien finir par arrivé
La varlope j'ai pas mais je guette LBC
J'en suis seulement au 1er exercice d'entailles. C'est vrai que ça prend du temps voir même beaucoup de temps. Pour moi, le fait que ce soit un exercice sans autre but que d'apprendre à un gros avantage.
Pas de stress quand au montage.
On peut se concentrer uniquement sur une pièce et le travail qu'on y fait, pas d'assemblage. Si c'est réussi-> joie, gaieté, bonheur.
Si c'est raté-> c'est pas bien grave.
Du coup, je fais ça sereinement.
C'est le bon procédé ici ! du courage
Et plus ça avance, plus on en sait (on croit en savoir)... Le passage à la pratique cet été va être un grand moment... Merci encore pour ce formidable partage....

Merci Sylvain pour ce partage!
As tu envisagé une edition PDF de ce cours pour une lecture plus aisée (je préfére la papier!), l'impression ne rendant pas justice a la qualité des remarquables illustrations de ton Pas à Pas.
je vais peut être proposer un livre par le bouvet si cela continue d’être suivi aussi bien ? (je ne m'attendais pas à cela) .
En ecrivant mon commentaire je pensais aux editions du vieux chene... mais le bouvet ca marche aussi
Le travail a la main a le vent en poupe en ce moment.
sylvainlefrancomtois MAIS QUELLE BONNE IDEE !!!!!!

Hugues Hovasse - BLB-bois si tu nous entends ...
dependancesbois sylvainlefrancomtois Oui, voilà un sujet très intéressant, qui rejoint une partie de nos préoccupations actuelles autour du travail du bois aux outils à main. Je vais en parler à mes collègues Luc et Christophe de notre équipe "bois". Et Sylvain, si tu as déjà quelques ébauches d'idées sur la façon dont on pourrait concrétiser les choses, n'hésite pas à m'en parler par e-mail.
Hugues Hovasse - BLB-bois hello hugues j'y réfléchi depuis le début , mais j'attend encore un peu les chapitres à venir et des retours !
Bonjour à tous,
Je découvre ton travail sylvainlefrancomtois, quel bonheur et quel cadeau tu fais là à ceux qui, comme moi, cherchent à avancer par petits pas pour commencer, mais par petits pas dans la bonne direction ! Un immense merci pour cette transmission à nous tous, inconnus de toi mais qui te sommes très reconnaissants.
Sait-on si ce projet PDF / livre est en cours ?
La première des choses que je me suis dites en voyant tes différents pas à pas, c'est qu'il fallait que je déchiffre ça ailleurs que devant un écran : avec ma liseuse dans l'atelier, ou encore avec une équerre, une règle et compas devant mon bureau pour l'art du trait.
Je serais extrêmement intéressé par une version papier ou PDF, bref, "portable" pour être amenée près de mes travaux.
Cinq Sens du Bois Hello merci des compliments , mais la version papier n'est pas au programme ! J'y pense mais ce sont des centaines ou milliers de pages depuis 5 ans
sylvainlefrancomtois Merci pour ton retour ! C'est assez logique en effet !
).
En revanche, je viens de faire un petit test rapide...
J'ai "nettoyé" rapidement la page web en supprimant des balises par ci par là, et sauvegardé la page en format PDF. Le résultat n'est pas si mal pour info (144 pages quand même
Edit: j'ai préféré supprimer le lien, effectivement il n'est pas tout à fait en phase avec l'esprit du site.
Cinq Sens du Bois ce qui me dérange dans l’export en pdf c’est que c’est par définition une version figée du contenu de l’auteur. Une version où l’auteur perd le lien avec son public. Une version amputée d’une partie de sa richesse.
Sans parler que c’est complètement sorti de son contexte.
La richesse des contenus ici est aussi de s’interconnecter.
Une sortie en livre, ça serait différent, parce que c’est un autre média.
sylvainlefrancomtois Bonjour,
Ce projet papier/livre/pdf me tient beaucoup à cœur et j'ai bien conscience que c'est énormément de travail. J'ai déjà repris sous word un grand nombre de vos pas à pas. Je peux les reprendre tous si vous le souhaitez, effectuer une correction syntaxique et orthographique si nécessaire ou autres. Bref, si je peux vous aider à mener ce projet à terme, je le ferais avec plaisir et ce serait un juste retour des choses au vu de tout ce que vous m'avez déjà apporté ainsi que d'autres sur ce site ou ailleurs d'ailleurs). Je me tiens donc à votre disposition.
Amicalement,
Manuela
Cinq Sens du Bois Je suis plutôt d'accord avec Boris (même si je n'ai pas vraiment mon mot à dire), une version livre me semblerait plus adaptée.
Quoiqu'il en soit, je vous informe que le lien de téléchargement ne fonctionne pas.
Boris Beaulant Manuela Merci pour vos retours, effectivement je vous rejoins sur le fait qu'on perde l'intérêt de l'évolution et des retours via les commentaires notamment. Je ne cherchais pas à mal, surtout à trouver la meilleure manière d'amener l'air du bois dans l'atelier :). Toutes mes excuses si mon initiative a posé problème.
Merci à tous de ces lumières et reponses qui m'aident à réfléchir ! Je vais écrire la fin de ce pas a pas et décider ensuite , il y a déjà tant d'éditions sur le sujet !
Cinq Sens du Bois pour moi pas de soucis , il y a plein de gens qui impriment des parties de mes explication pour l'atelier ! (en fait ce que je donne sert à cela) .
Cinq Sens du Bois : le lien vers le pdf ne fonctionne pas ...
Salut à tous (première intervention sur ce site ma-gni-fique à tous points de vue, je remercie et félicite donc Boris Beaulant au passage).
Je suis moi aussi lecteur de ce super article de sylvainlefrancomtois, et export, livre, etc. ou pas, je pense qu'il serait déjà intéressant de faire un petit travail d'édition sur cette page-même, pour y corriger l'orthographe, la ponctuation, etc. C'est quelque chose que je pourrais faire, mais comment procéder, techniquement ?
sylvainlefrancomtois Manuela ourea
Si l'idée de partir sur une édition papier est une volonté, une idée (c'est une simple proposition !) pour permettre à plusieurs de contribuer aux relectures, consisterait par exemple à faire un document collaboratif (Google Docs ? Malheureusement je ne crois pas qu'il existe d'équivalent dans le domaine du logiciel libre type Framasoft). Dans certaines associations dans lesquelles je suis impliqué, nous y recourrons régulièrement pour produire un compte rendu et l'annoter en effectuant des commentaires. C'est une autre dimension car ici il y a des centaines de pages, mais ça pourrait être une méthode de travail (parmi d'autres).
J'aimerais vous proposer mon aide, mais ce ne serait pas honnête de ma part car mon temps est impliqué ailleurs cette année.
En revanche je peux aider sur des conseils ponctuels si besoin, ce serait avec grand plaisir. Si cette méthode vous intéresse, je peux faire un exemple : un lien vers un "Google Drive" - désolé, ca pique quand j'encourage l'utilisation des produits des GAFAs mais encore une fois, je ne connais pas d'équivalent :( -, un lien "Drive" donc sur lequel on pourrait imaginer un document par article du pas à pas, à relire, commenter, corriger, pour in fine déclarer comme "terminé" avant de les regrouper tous pour en reconstituer l'ensemble. Encore une fois, c'est une simple idée à envisager. Mais effectivement, je rejoins Manuela sur le fait que Sylvain, ton travail est exceptionnel, et une version papier accessible à ceux que les outils numériques rebutent me semble, à titre personnel, porter une grande valeur - et je ne crois pas qu'elle dégraderait celle de l'air du bois, qui est une vraie perle pour beaucoup d'entre nous, je tiens à l'écrire quitte à radoter ce qui a déjà été dit ici et ailleurs.
Elibaudiere j'ai préféré enlever le lien, rejoignant à la réflexion l'avis de Boris et Manuela.
Cinq Sens du Bois, l'équivalant Google Docs à la sauce Libre, c'est Framapad (framapad.org/fr/)
Ce qui est fâcheux avec l'externalisation du processus de correction, c'est que ça faite un boulot monstre à Sylvain pour réintégrer les corrections ensuite. Mais à cette heure, je n'ai pas d'autre solution technique à vous proposer.
MAIS, en ce moment et à mes heures creuses (même si j'en ai pas), je suis en train d'implémenter une première version de l'idée que j'avais lancé il y a 2 ans : Les collectifs.
Mon travail est loin d'être fini là dessus et cela lève beaucoup de nouveau problèmes. Mais ça pourrait être une réponse à votre besoin d'accès en écriture à plusieurs à une publication. Reste que ça ne sera pas non plus du niveau de finesse collaborative des Google Docs & Cie. Enfin, du moins pas sans y passer une enorme énergie.
Boris Beaulant je vois l'idée, ce serait très pertinent ce système de collectif ! Les membres qui le souhaiteraient et le voudraient pourraient contribuer à la rédaction du pas à pas, ou dans ce cas présent à sa relecture.
). Une fois cette relecture terminée, on pourrait imaginer que Sylvain la 'valide' afin d'en figer la version 'papier'.
.
!
Pour la question de la 'fusion' entre les mises à jour du pas à pas et les relectures faites sur une version précédente, effectivement ce serait un énorme travail pour Sylvain. À moins qu'on considère qu'il n'y ait pas d'allers retours ? Une version 'figée' d'un des articles du pas à pas, c'est a dire suffisamment 'mature' pour passer à la relecture, au fur et à mesure qu'il s'enrichit. Mais peut-être est-ce irréalisable : dans quelle mesure Sylvain retouche ses articles déjà écrits au fur et à mesure de l'avancement, il faudrait pouvoir y répondre.
Là où je veux en venir, c'est que la solution du collectif est vraiment idéale à mes yeux. Elle permet à la fois la 'co-écriture', mais également la 'relecture'.
Pour le cas de ce pas à pas, peut-être qu'on peut considérer que seul Sylvain est l'auteur (pas de co-auteur, donc de co-ecriture), et qu'une fois qu'il considère un article du pas à pas à minima suffisamment mature à ses yeux, on passe dans une sorte de 'post-traitement' afin d'effectuer la relecture en collaboratif (framapad est également une excellente idée, il faudra que je regarde
Mais je trouve ton idéal vraiment pertinent, celui de pouvoir imaginer des pas à pas collectifs, et donc en constante évolution, amélioration et à plusieurs. Pour ma part la seule chose qu'il me manquerait avec cet idéal, c'est la manière de l'amener sur ma planche à tracer ou sur mon établi. Je n'ai pas d'autre idée que le papier... Ou la liseuse / tablette
Bref, à réfléchir et voir ce qu'en pensent les autres
Merci pour ces idées très riches !
sylvainlefrancomtois pour créer des cours à longueur d'année, je sais ce que cela représente... Énorme investissement de ta part, bravo ! Pour ce qui est de mon avis personnel, les livres que les amateurs peuvent s'acheter afin de découvrir, apprendre et progresser n'ont bien souvent pas de pas à pas avec des illustrations précises comme les tiennes.. Il faudrait bien sûr développer avec un côté plus pédagogique chaque phase et revérifier les parties dactylographiées mais ce serait une vraie mine d'or pour l'apprentissage ! Cela représente un boulot monstre mais tu pourrais vendre tes livres et avoir un juste retour de ton travail (même si l'idée à la base est le partage et l'entraide sur l'air du bois comme nous le faisons toujours). Je suis sorti un peu du principe de cette plate-forme mais c'est vrai que je me rends compte qu'un ouvrage avec des réalisations décortiquées, bien illustrées et avec des explications pertinentes sur chaque phase serait un support incontournable pour énormément de boiseux en devenir
.
Bonne continuation et encore félicitations !
Ardennais
Boris Beaulant, la possibilité d'apporter des correctifs serait en effet idéale pour les petites corrections. Ca serait donc une très bonne première étape ! Normalement, pour la syntaxe, les choses sont claires, donc il n'est pas forcément utile d'avoir un système de validation.
Pour les plus grosses révisions que mentionne Ardennais (tournure de phrases, etc.), ça devient un vrai travail d'édition, et ca serait sûrement bien plus lourd et délicat à gérer. Peut-être à réfléchir dans un deuxième temps ?
ourea oui là je parle d'un ouvrage officiel bien sûr et non de la plate-forme.. C'était directement adressé à Sylvain
Développer un outil de co-écriture n'est en effet pas envisageable simplement.
Cette notion de collectif a pour but d'apporter une solution globale simplifiée à plusieurs besoins de je vois sur la plateforme. Mais forcément au cas par cas cette solution ne sera pas parfaite. Et en même temps créer une usine à gaz, ça ne serait pas parfait non plus :)
En premier lieu sur un exemple comme ce pas à pas, ce qu'il faut bien comprendre c'est que dans le cas de l'utilisation des collectifs l'auteur ne serait plus sylvainlefrancomtois, mais le collectif qui pourrait être créé pour l'occasion par Sylvain.
C'est pas forcément un changement anodin.
Ardennais Bien reçu. C'était également ce que je voulais dire dans la deuxième partie. Bien sûr, c'est à Sylvain de voir...
Pour le reste, c'est donc par ici.
j'ai fais l'exercice je l'ai filmé et j'ai raté mon CAP flut alors les choses les plus simple sont souvent les plus compliqué.
j'ai un bug au montage faut que je recommence quand ca veut pas ca veut pas
ben alors !! on a perdu son latin !
Ben j'arrive a la lire mais je n'arrive pas à la publier
Ça y est c’est publié et on peut voir de belles séquences.Bon t’es recalé mais il te reste le rattrapage de septembre!
Bonjour,
Votre idée de commencer par les bases vient à point nommé. Elle remet en perspective tous les petits films de menuiserie publiés sur YouTube, qui nous font souvent prendre de très mauvaises habitudes ou sont incompréhensibles pour qui n'est pas du métier. Comme tous mes prédécesseurs dans les commentaires, je vous en suis très reconnaissant.
merci , et dis moi tu !!
pfff .. j'en suis encore à essayer de scier droit
y a d'autres métiers !! poète par exemple !!

Après cet article tu ne peux que réussir !
Je me vois pas trop poète
Je vais y arriver !
J'ai fait de nouveaux essais. Soit je suis pas doué, soit ma scie a un problème.
Je trace au tranchet mon trait sur le dessus et devant pour tronçonner une petite chute de chêne. J'utilise ma scie normalement la plus précise, une dozuki. Je suis nikel sur mon trait, mais sur l'arrière, la scie part à droite systématiquement...
Mauvais geste ? Mauvaise posture ? Mauvaise scie ?
titimaster en fait le truc c'est de couper bien en ligne ta scie ne doit pas entrée en vibration sur l’arrière ton bras doit être constamment dans l'alignement
J'ai jamais utilisé de japonaise, il doit y avoir un geste précis !
executionbois ce serait intéressant les gestes de sciages aux différentes scies française et autre ? avantages inconvénients etc ..
c'est une video que tu souhaite???
executionbois pourquoi pas , scies différentes, bois dur /bois tendre , ......
une idée a potasser !
titimaster Les paroles de la chanson
« Le menuisier » tu vois ça existe les poètes !
Allons, menuisier mon ami
Termine ton ouvrage
Un fils m’est venu cette nuit
C’est un bel héritage
Mais si nous avons le trousseau
Je viens, ne t’en déplaise,
Chercher bien vite le berceau
De bon bois de mélèze
Je suis compagnon,
Tiens, pour ton garçon
Il y dormira bien à l’aise
Je suis compagnon
Et chaque tenon
Ne quittera pas sa mortaise.
Allons, menuisier mon ami
Termine ton ouvrage
Mon fils a vingt ans aujourd’hui
Et c’est son mariage
Je viens chercher en ce beau jour
Pour lui et Madeleine
Le repos, le rêve, l’amour
Façonnés dans le chêne.
Je suis compagnon,
Tiens, pour ton garçon
Il y dormira bien à l’aise
Je suis compagnon
Et chaque tenon
Ne quittera pas sa mortaise.
Allons, menuisier mon ami
Termine ton ouvrage
Ma mère est morte cette nuit
Je n’ai plus de courage
Je dois meurtrir mon âme en deuil
Et redoubler ma peine
Mais je viens chercher le cercueil
Raboté dans le chêne.
Je suis compagnon
Mon pauvre garçon
Elle y dormira bien à l’aise
Je suis compagnon
Et chaque tenon
Ne quittera pas sa mortaise.
Allons, menuisier mon ami
Termine ton ouvrage
Ce soir nos filles et nos fils
Danseront au village.
Multiplie au loin les échos
Que ton marteau fait naître
Et donne vite à nos sabots
Un bon plancher de hêtre.
Je suis compagnon,
Filles et garçons
S’y esbaudiront bien à l’aise
Je suis compagnon
Les couples seront
Plus forts que tenon et mortaise.
sylvainlefrancomtois je vais voir je n'aurais qu'une scie japonaise a tester et je suis très mauvais j'arrive a la plier.
titimaster j'vais peut-être dire une connerie mais est-ce que tu utilises bien la scie pour ce pourquoi elle est prévue ? Si tu as une denture à tronçonner (ou soi disant mixte), c'est presque impossible de scier droit dans le sens du fil. Sinon elle n'est plus bien affûtée, sinon c'est toi, il faut être détendu mais normalement ce n'est pas insurmontable, surtout que tu as l'air d'un mettre du tien
titimaster j'ai toujours entendu"y a pas de mauvais outils, y a que des mauvais ouvriers !"
Sans rire, la dozuki est bien faite pour tronçonner et en plus, elle a un dos qui la rigidifie bien, il ne faut pas forcer et laisser la scie travailler, c'est pas normal que tu aies deux faces nickel et la troisième qui part en vrac...
titimaster Avec la dozuki et après plein d'essais et en m’appliquant je n'ai jamais réussi à obtenir un sciage parfaitement sur le trait à l'arrière. j'ai toujours eu le même problème que toi ça dévie sur la droite.
Du coup je sciais un côté puis je retournais la pièce et là j'arrivais à suivre le trait mais au final ma coupe avait systématiquement un bombé.
J'en ai conclu une chose : je suis pas japonais !!!
Avec mes scies à dos j'ai une super précision!
Alors, après une 20ene d'essais, toujours le même problème.
Inspection de la lame. Il manque une dent, la lame n'est pas complètement droite, l'avoyage ne semble pas top partout. Pour une scie pour laquelle j'ai pris grand soin, je ne comprends pas.
Vu le prix des lames de rechange, on va regarder du côté de chez PAX à ce rythme. Mais avant ça, j'ai repéré des scies à cadre d'occasion pour une bouchée de pain à côté de chez moi
Perso, je scie plus doit avec une ryoba (sans dos donc) qu'une dozuki.
Mais les scies occidentales, c'est quand même bien !
trente six seb c'est quand même fou ça. La dozuki est censée être ultra précise. Peut-être lié à la faible épaisseur de la lame.
titimaster D'après ce que j'ai pu observer sur la dozuki c'est que alors qu'on croit que l'effort en tirant tend la lame et donc permet un sciage droit, le manche est en haut de la lame et l'effort en tirant tend le haut de lame et qui plus est le dos renforcé. Le bas de la lame lui est très souple et la tension du tirant n'a aucun effet sur lui. Le bas de lame aura donc tendance à suivre ce que le bois la forcera à faire. C'est ce qu'il m'a semblé en tout cas.
La rigidité des scies à dos (comme les pax!) ne souffre pas de ce problème.
Comme trente six seb je n'ai pas ce problème avec les ryobas.
Intrigué par cette discussion, j'ai essayé.
Alors avec un tracé au crayon, 3 tentatives, 3 déviations à droite.
Puis, avec un tracé au tranché, 2 esais réussis :)
Didier avec une dozuki ?
titimaster attention avec l'occase, il faut pas avoir peur d'affuter, sinon il y a de grandes chances qu'elle ne coupe pas droit quelque soit la bonne volonté que tu y mettes.
A mon sens, le secret pour scier droit avec une scie c'est d'avoir une scie bien affutée (le truc c'est que ces petites bêtes continuent à "couper" pendant longtemps alors même qu'elles ne sont plus affutées), avec une voie correcte et homogène.Le souci que j'ai avec les scies japonaise trempées, c'est que tout ça est gravé dans le marbre et on peut toucher à rien. Avec une scie réaffutable, un coup de pierre sur la face qui "tire" sur le coté pour égaliser la voie est on en reparlerait plus.
dependancesbois Mon ressenti est un peu différent, J'ai l'impression qu'une dozuki pas trop usée scie droit, seulement elle est peu contrôlable, la lame est tellement flexible que quand je fais "tourner" le devant pour suivre le trait (parce que je ne pars pas à 90° pile poil du premier coup, suis pas pas une machine) l'arrière du trait de scie mène sa propre vie indépendamment du devant et continue dans sa lancée, ce qui donne un écart plus ou moins grand en fonction de l'écart de départ/
titimaster
Oui, c'est une dosuki achetée chez Fine Tools.
Elle est quasi neuve.
J'essaierai avec celle que j'avais achetée chez HMDiffusion et qui a perdu des dents...
Je pense que tout simplement la dosuki n'est faite ni pour les bois durs, ni pour les entailles trop profondes.
Didier sympas le retour !
Essai avec la même scie, mais qui a vécu. Je m'en sers encore pour des découpes "à l'arrache". Les dents qui manquent, c'est dans les premières heures d'utilisation sans expérience.
Résultat : idem
Comment je m'y prends :
Je surveille le reflet de l'arête pour l'aligner.
Je tiens très peu la scie : quand elle se blocait dans les dents cassées, elle glissait dans ma main.
trente six seb Sans certitude absolue mais je pense comme toi.
tu peux aussi retourner ta pièce pour te laisser guider par la première coupe en diagonale (si réussie bien sur) !
Tes traits de scies sont pas si mal pour du sapin! essaye du hêtre ou similaire tu seras surpris !
Elle a souffert cette scie !
executionbois
Moi oui!
Jean-Paul
sylvainlefrancomtois
La chanson "Le Menuisier" en musique ici : youtube.com/wa...h?v=24gnj4SoRvw
Merci de m'avoir fait découvrir cette belle chanson de métier d'André Claveau.
C'est très beau tout ça, je ne dis pas beaucoup de choses mais tu fait un gros travail comme toujours!
et a la main , sur le logiciel !! merci Jacky
Toujours au top Sylvain, comme dit kaj ,gros travail derrière tout ça !!! Tu fais partie de ceux qui sont passionnés par leur métier et qui aiment le retransmettre sans compter leur temps... On peut donc dire que tu es "une belle personne". Tes modélisations sont vraiment top et compréhensibles pour tous les niveaux.
Chapeau bas
+1!!
+2!!!
quand on aime !! c'est un plaisir , pas un boulot !
Excellent pas à pas merci Sylvain
J’apprends beaucoup ...même si je n’ai pas tout intégré !
Jean-Paul
merci !
Si tu édites tes cours je suis preneur !
JP
JPM merci
Pour la taille de mortaise et la logique de faire la mortaise avant le tenon : précise qu'on fait une mortaise de la largeur de l'outil (bédane manuel ou motorisé) et que pour le tenon, on peut faire des réglages (scie ou tenonneuse)...
Sinon, c'est très clair !
hello tu n'as pas bien lu , mais tout y est décrit et illustré au début de l'article !
sylvainlefrancomtois
Il y a-t-il une essence qui va bien pour s'entraîner et faire les exercices que tu proposes ?
Ayant que du frêne sous la main, je me dit que c'est peut être pas idéal.
L'idéal c'est le hêtre, le platane ,le tilleul ! grains très homogènes
le frêne bien droit et sans défaut vas bien aussi pour le bois dur ! De toutes façons les anciens travaillaient à la main tous les bois même retors !
essaye la première pièce d’entaille, et tu verra bien !
Les pièces d'apprentissage sont généralement en hêtre, mais il est arrivé que le prof nous fasse refaire la même en sapin et là on comprend vraiment l'importance de l'affûtage!
kaj +1
Document exceptionnel, c'est une vraie mine d'or ! Merci sylvainlefrancomtois pour ta patience et ta pédagogie. J'imprime l'ensemble et m'y attaque !
Edit: Je me rends compte qu'il n'y a pas moyen d'imprimer facilement un article...
J'ai attaqué la mise en page sous Word de cet article, mais sylvainlefrancomtois l'écrit plus vite que je ne le remets en forme
Mine de rien pour le moment ca fait 117pages... et il faut reprendre toutes les illustrations et un peu la mise en forme, j'en ai fait une 20aine de pages pour le moment.
Je fournirai le document a Sylvain une fois fait, et il décidera de le mettre en ligne ou non...
Eric25 Si ça peut être utile, j'ai réalisé la mise en forme sous word depuis le début, et je le fais maintenant au fur et à mesure des parutions. Si cela intéresse quelqu'un de récupérer ce doc, faîtes-le moi savoir.
Je suis preneur.
Ce serait peut être bien de mutualismes le travail.
Jean-Paul
Moi aussi je pensais mettre le pas à pas en forme, vous m'avez devancé.
Est-ce que ça pourrait être partagé comme un plan ?
Eric25 Bonjour,
Je suis aussi très preneur de ce genre de document !
Et un grand merci au courageux.
Manuela Merci beaucoup, je suis très intéressé ! Je réalise également des documents, j'en ai publié un ici (mémento d'ébénisterie) et j'en publierai d'autres... mais je n'arrive pas à trouver le temps pour le moment.
Herlem Oui, c'est ce que j'ai fait pour mon doc :
Merci pour le partage. C'est super
Aussi, Eric25, je suis très intéressé pour ton offre de reprendre le document sur Word. je suis preneur, merci.
Bonne journée à tous
Figy
Je dirais qu’un minimum de courtoisie consisterai à demander l’autorisation à l’auteur avant de publier. Il a mentionné qu’il souhaitait peut être en tirer un livre publié chez tout en bois, donc une publication individuelle n’est pas forcément la meilleure manière de le remercier de son travail.
Olivier80 +1
Olivier80 Entièrement d'accord avec toi. Et si Sylvain décide d'en faire un livre, je serai le premier à l'acheter. Quand quelqu'un prépare des documents de cette valeur et n'est jamais avare en conseils, une juste rétribution est bien méritée (tout comme ce site d'ailleurs).
Olivier80 Tout à fait d'accord, j'attendrais donc de savoir quelle est la volonté de l'auteur avant de partager mon doc reprenant son travail.
Euh, amis moralistes, il me semble pourtant que mon 1er post est clair.
Je ne compte pas le diffuser sans le consentement de Sylvain (que j'ai tagé pour le prevenir de ce que je fais).
Et ce même si la licence CC appliquée a ce Pas a Pas permet la diffusion et la modification de ce document sous certaines conditions.
Je prefere juste lire sur du papier (avec les illustrations d'ou le passage sous word) que sur un ecran devant lequel je passe deja plus de 8h par jour.
Et une feuille a plus sa place dans mon garelier...
Olivier80 juste une précision sur ton propos (par ailleurs très bien!) les éditions, c'est pas Toutenbois (Samuel Mamias), c'est Le Bouvet ou BLB bois (qui a aussi édité le livre de Samuel sur son établi, notamment...
Eric25 bonjour,
Si Sylvain est OK pour la diffusion du document Word, je suis preneur, car je préfère lire sur papier que sur ordinateur. Encore merci a vous deux pour cet excellent partage
Hello tous, je vous écoute depuis un moment sans rien dire !
Alors , mon but est évidemment de transmettre et de préserver les choses ancestrales! Ici je "revisite" l’apprentissage traditionnel de façon logique et ludique !
Beaucoup retranscrivent mes travaux sur papier(même des profs) , mais dans un usage personnel (ce qui ne me dérange absolument pas ).
Par contre un doc word qui circule pourrait tomber dans de mauvaises mains !
Pour finir, un apprentissage digne de ce nom, est de retranscrire "manuellement" mon texte (ou des parties pratique) , et en association de dessiner les pièces en orthogonal sur petit carreaux, afin d'intégrer plus aisément des fondamentaux en faisant chacun son propre cahier d'atelier !
J'aimerais que les personnes qui expérimentent cette approche d'apprentissages, me fassent des retours avec photos sur ma boite privé (même pièces ratées avec explications des galères) , afin que je puisse intégrer de vraies images et expériences à mes textes . Et à ceux ci le choix d’être nommés ou pas !
En tout cas le débat reste ouvert ! bons copeaux à tous
Supers exercices, je n'ai que des superlatifs pour ton travail! Mais pour l'escalier tu t'es planté

je me disais aussi !
Nononon, c'est un escalier révolutionnaire pour marcher sur les murs !!
Je n'ai pas eu encore l'occasion de me pencher sur tes pièces d exercices mais ton travail m' impressionne et je ne dis pas ça parceque tu es mon papa,mais parceque c'est la réalité ... continu a nous transmettre



PS le projet cage chinchilla avance
Marion, tu es comme ton père, tu as de la sève dans les veines et tu as la rage. Ça ne peut donner que de belles choses!
kaj merci

c'est top,où peut on acheter le livre?


Boris Beaulant a quand la publication des 10 meilleurs pas à pas?
sylvainlefrancomtois merci pour le temps passé...
mick
tout à fait d'accord avec vous. J arrive pas a suivre ce pas à pas sur mon portable, je suis de la vieille école un livre papier c est beaucoup mieux pour moi.
Alors à quand une édition de ces pas à pas=> Boris Beaulant
sylvainlefrancomtois encore merci à toi pour tout.
Sur un ordinateur, c’est déjà bien plus facile à suivre ;)
Boris Beaulant
Oui je sais mais je préfère un livre papier , je sais c est pas trop ecolo mais le papier c est plus parlant pour moi et beaucoup de distraction autour que sur un ordi
Oui nous sommes plusieurs dans ce cas....
top ce boulot mais pas beaucoup de participants pour le premier challenge!
c'est très timide.
Hello sylvainlefrancomtois

J'ai enfin reçu mon riflard de chez Stanley et me suis trouvé une varlope.
Je bosse sur le corroyage d'une planche, ou l'art de transformer une planche de 27 mm en feuille de placage avant d'arriver à la mettre d'équerre
Le geste commence à venir après avoir compris comment régler les lames pour ne pas prendre trop de bois et faire de fins copeaux sans défoncer la planche.
Qui de moi ou des copeaux aura le dernier mot, vous le saurez dans le prochain épisode !!!
Fais gaffe t'attaque l'établi

Olivier Vernhettes attention à la position de ta main gauche à l'avant de la varlope. Petit doigt vers l'avant, pouce vers toi, paume sur le dessus.

youtube.com/wa...h?v=CzxhfTQDNaQ
dneis m'enfin c'est clairement pas une varlope sur ta vidéo
Pas forcément facile comme posture cela dit
benjams oui, plutôt un riflard, ou jack plane.
Non, avec un fût assez étroit, ça va comme préhension je trouve.
Ouais j'y ai repensé, ça dois être parce que je bosse assi en poussant le fut devant que ça n'est pas super confortable.
dneis merci du conseil, je vais essayer comme ça. En plus j'ai tendance à vouloir faire mes passages sur toute la longueur de la pièce (un peu comme avec une dégau).
Arrêtes tu fais des vagues...
Merci sylvainlefrancomtois pour ce pas-à-pas énorme !
J’ai une question concernant l’aboutage des pièces lors du corroyage, doit-on uniquement scier l’about ou peut-on finir au rabot? J’ai essayé les deux sur les photos jointes.
Un about raboté ne nous permettrait-il pas d’avoir des assemblages plus précis par la suite ?
bien sur que tu peux finir au recalage rabot rien ne t'en empêche , le but de laisser brut c'est de voir l'avancement du geste acquis !
Le recalage fera de toutes façons partie de la suite des exercices !
Salut sylvainlefrancomtois
Je viens de finir de numériser une série de livrets sur l'introduction au travail manuel du bois. C'est un bon complément je pense.
Scies, sciage, rabots, rabotage, ciseaux, assemblages, vilebrequins et mèches sont notamment traités.
Par ici pour le premier:
Toute la série: lairdubois.fr/.../?q=portee tous
Le lien vers les pdf est dans les fiches (le revoici).
Bonne lecture à tous
oui j'ai vu , chouette recherche !
Ouah, merci beaucoup pour ce travail qui devrait bien compléter celui de Sylvain. Je suis pour l'instant en plein dans les épreuves de cap (même si je sais que je ne le validerais pas), mais dès que tout cela est fini, je m'atèle au pas à pas et à cette lecture enrichissante.
Amicalement,
Manuela
Manuela pourquoi ne serait il pas validé ??
Oui pourquoi ?
Nous, on croit en toi !
C'est gentil, mais je ne suis tout simplement pas encore au niveau. Je vais valider les matières générales mais pas le reste. Même pour les matières théoriques je ne suis pas prête. L'exam était annulé pour cause de Covid dans un premier temps et devenait un contrôle continu (donc foutu pour les candidats libres). Et finalement il y a 3 semaines, on nous a annoncé que les épreuves seraient en septembre. Sauf qu'entre temps je n'ai pas bossé les cours. J'ai reçu la convocation il y 4 jours et la première épreuve était hier. Je vais quand même me présenter à toutes, ça me servira toujours.
Manuela ah oui dommage que tu ne l'ai pas su plus tôt. Pour ma part, j'avais eu l'information en mai ou juin. Ara, je crois, avait eu l'information assez tôt.
C'est dommage, mais ce n'est pas très grave en soi. Je bosse en speed pour valider les matières générales et tenter te valider aussi certaines matières théoriques. Puis j'aviserais en fonction des résultats pour décider si je repasse les épreuves en juin ou si j'opte plutôt pour le cap de tournage sur bois l'année d'après. J'ai la chance de prendre des cours en tournage depuis quelques temps. Mon objectif c'est d'avoir un diplôme pour pouvoir noter artisanat d'art sur les documents de promotion de mon activité. Pour le reste, en soi, j'apprends toute seule depuis des années, la validation de mes acquis par un diplôme ne change pas grand chose à mes yeux.
Bon courage à vous et à Ara pour les épreuves
Manuela
Oui en effet j'avais été prévenu assez rapidement que les épreuves étaient décalées en septembre (mais c'est vrai, les convocations sont arrivées tardivement).
En tout cas tu as raison : vas-y et prend ce qu'il y a à prendre, c'est toujours une expérience intéressante et ça te donnera un "état des lieux" de ton niveau. Et sait-on jamais... les notes sont parfois meilleures qu'on ne pense !
Bon courage et bonne chance !
En fait, je ne vais pas aller au CAP : je suis en stage (donc en train d'apprendre des trucs) et j'ai déjà validé mon BEP.
Donc, ça n'a plus trop de sens. J'aurais été disponible, je m'y serais toutefois présenté.
Manuela Si l'utilité du diplôme est plutôt administrative ou en terme de communication, ça relativise effectivement.
Tout ce que tu risques, c'est de l'avoir. Bonne chance !
Oui ça relativise pas mal en effet. J'apprends toute seule depuis des années et en soi, je pense que les connaissances et les compétences sont plus importantes que le titre en lui-même. Mais il faut avouer que ça fait un peu plus sérieux de pouvoir marquer artisanat d'art sur sa com plutôt que fabrication à la main.
C'est quand même un peu dommage, parce qu'obtenir ce diplôme est dans mes cordes. Si je reprends les épreuves, j'ai Français, Histoire-Géo et Math et Physiques-Chimie, ça c'est une simple formalité. Prévention santé & environnement, de ce que j'ai vu des annales, ça ne semble pas bien sorcier à valider. Ensuite, histoire de l'ameublement (j'ai trouvé ça passionnant), mais cela nécessiterait un peu plus de boulot surtout s'ils attendent des connaissances brutes (du par coeur en quelque sorte), cette épreuve s'accompagnent des arts appliqués (là je sèche, je n'ai pas trouvé d'infos pour savoir à quoi ça correspond exactement (je saurais ça demain :)). Puis il y a Analyse d'ouvrage & Prépa fabrication, alors là c'est un peu plus compliqué pour moi, je pense que je vais pas mal galérer. Et pour finir l'épreuve pratique, je ne sais pas trop, cela dépendra beaucoup du sujet, je ne connais pas exactement la teneur du programme donc difficile à dire. Mais quoiquu'il en soit, j'aime travailler le bois et là, on va me proposer de bosser dans un atelier équipé comme jamais ne sera le mien et en prime, je n'ai pas à payer le bois. En gros, quoiqu'il se passe, je vais me faire plaisir au frais de l'état alors pourquoi se priver :)
Bon courage à vous Ara et bon stage pour vous seb.
Désolée pour le pavé
Sacré travail...
Merci
Vraiment super dneis !
J'ai bien entamé la lecture mais je vais les imprimer car sur l'ordi j'ai du mal.
Et vivement le petit fascicule !
Merci a toi.
que ne me suis je inscrit plus tôt à l'ADB!!! j'aurais gagné bien du temps à ne pas réinventer l'eau tiède


et grand merci à tous pour le partage et pour l'esprit de l'ADB
merci !
Merci pour ce superbe pas à pas. Décidément, cette plate forme est vraiment une perle rare que, personnellement, je vais soutenir.
merci !
Bonjour,
sylvainlefrancomtois un très très grand MERCI pour cette synthèse partagée qui a certainement généré pas mal d'heures de travail notamment par le nombre d'illustrations. Si l'on peut trouver des références plus ou moins anciennes (Heurtematte, Lemonon par exemple) les approches des techniques fondamentales restent, à ma connaissance, finalement assez peu nombreuses en français dans des ouvrages récents. Disposer d'une consolidation telle que celle-ci sur un sujet spécifique est donc précieuse. Ta fille a raison d'être fière!!!
Je rejoins favorablement l'idée d'une publication sous une forme à préciser mais le plus important à mes yeux c'est d'avoir d'ores et déjà à disposition le contenu de ton expérience sur ce site.
Si je peux me permettre je suis fortement intéressé par une suite....
Amicalement
hello , merci de ces compliments c'est encourageant ! La suite est programmée mais je suis un peu surbooké en ce moment ! bons copeaux
sylvainlefrancomtois Super la suite sur les assemblages en queue d'aronde et droites
merci encore pour le partage de tes connaissances
de rien !
Piouf, mais toutes ces illustration, ces détails. T'es incroyable sylvainlefrancomtois !
C'est un boulot de fou. Merci, merci, merci !
faut bien trouver le moyen de bosser autrement !
C'est exactement ce qui m'ai venu à l'esprit, c'est dingue le boulot abattu !
C'est super d'avoir une base de référence comme ça à disposition !
Enfin, ça tourne à l'encyclopédie, ce n'est plus le Bouvet qui va t'éditer, mais la librairie du Compagnonnage !
trente six seb Et pourtant c'est comme cela que l'apprentissage devrait être !
sylvainlefrancomtois malheureusement ce n'est plus le cas.
et cela depuis au moins 20 ans.
C'est clair, on est très loin. Si l'apprenti n'est pas curieux de lui même, autonome et motivé, il n'arrivera jamais à acquérir ces bases.
En même temps, ce n'est pas ce qu'on demande à un poseur ou un pousse moulure.
trente six seb je ne vois pas de propos désobligeant dans ton commentaire. Poseur pour moi est pratiquement un autre métier. Pour poser mes escaliers à mon dernier emploi j'ai toujours été content d'être accompagné par un vrai poseur qui m'a souvent résolu quelques problèmes de pose (c'est rarement tout comme sur le plan ). Les pousse-bout-de-bois n'existent malheureusement plus ils ont rejoint pôle emploi, les temps évoluent (en bien ou en mal?)
kaj ah non ce n'était pas désobligeant, j'espère que ça ne sera pas perçu comme ça.
Je voulais juste imager que ce qu'on apprend est également plus ou moins commandité par le marché de l'emploi en aval. Et dans les ateliers, il n'y a peut être plus beaucoup de pousse bout de bois mais le travail s'étant industrialisé en fabrication, c'est moins complet qu'avant. Et le gros de l'emploi disponible en menuiserie, c'est dans la pose.
Sinon, effectivement, poseur, c'est un vrai métier qui requiert beaucoup d'expérience et d'être très "démerde". Mais les savoirs nécessaires ne sont plus les mêmes et il y a quelques boites où il faut faire de l'abattage et aller vite, à tout prix.
trente six seb et que dire de la révolution informatique, je fais partie des vieux qui ont commencé leur métier sans. Au début un jeune qui utilisait une calculette était un paresseux ( il ne savent même plus compter) . Ensuite j'ai su tracer mon premier escalier ensuite débillardé. La conception par ordi est arrivée, ensuite les cn (exit les épures). J'ai conduit une 5 axes pendant quatre ans ( pas le même métier). Heureusement j'ai toujours réussi à faire les pièces spéciales. Finalement le savoir-faire initial est toujours utile, mais on as toujours adapté les ouvrages à la machine et non l'inverse.
kaj : ça c'est vrai dans énormément de métiers et ça fait partie des raisons qui m'ont poussé à me reconvertir. On va vivre dans un monde ou l'intelligence artificielle va prendre la main et où l'expérience non seulement ne sera plus valorisée mais deviendra même un handicap.
Je vais peut être me faire rattraper par ça dans ma nouvelle vie.
C'est vrai que la ligne droite est devenue petit à petit la norme au fur et à mesure de la mécanisation du travail. Quand on regarde l'évolution du mobilier, c'est flagrant.
On nous dit que la ligne droite c'est moderne. c'est surtout moins cher et les industriels n'ont pas envie de faire autre chose.
trente six seb je ne m'en fait pas tant que ça sur ce fait il y a toujours des réfractaires à trop de modernité.
Il y a par exemple de plus en plus de charpentier qui reviennent au travail a la hache, il y a un engouement vers la décroissance. J'étais hier soir a une conférence sur l'habitat réversible et il y a énormément de gens qui se réoriente vers une forme de sobriété et les savoirs faire redeviennent nécessaire et indispensable à ce niveau.
Oui, c'est ce que je me dis aussi.
Je n'envisage pas travailler qu'à la main comme toi. Mais s'il le faut je suis équipé pour. Et je saurai me contenter de ce que j'aurai.
Il y des mouvements contradictoires dans la société actuelle.
sylvainlefrancomtois super travail ! la quantité d'informations est impressionnante, une véritable formation !! Il y a peu d'endroit où trouver des contenus d'apprentissage aussi détaillés sans faire une véritable formation !!! Bravo et merci !
y en a un maintenant ! (c’était un peu le but) je pensais la même chose .
Waouh merci sylvain ! Dès que je recois mon kit d'affutage je commence depuis le début ;)
hâte de voir des retours !
sylvainlefrancomtois rho, c’est vrai ça, il faut que je m’y mette, mais bon pour l’instant je suis en train de faire la caisse à outils à la dependancesbois ...
Merci Sylvain
)
Je ne sais pas si je suis le seul mais avant de passer à la pratique il faut que je comprenne...ce n’est pas le cas pour le moment.Pour les QD pas de souci...c’est le tracé des QA qui me pose problème.
Je vais tranquillement me mettre au bureau avec paire et crayon ( gomme certainement
Jean-Paul
tu as raison, tout passe par le dessin !
Merci sylvain mais que dire a par Bravo !!!!!!!
merci !
Je ne peux que paraphraser! BRAVO de nouveau pour cet énorme boulot. Maintenant comme l'indique JPM faut lire attentivement et .... transmettre les photos
Du grand Sylvain, du très grand!
Tu vas trop vite Sylvain
, j'arrive pas à suivre. 
Mille merci
Pourtant je met le temps !
Oui mais quand tu publies c’est du dense!!!
Jean-Paul
Quel talent !
ben oui c'est pas de l'anglais !
Superbe Sylvain,

ça semble si facile quand on te lit....
Après devant ma planche avec ma scie c'est autre chose, rien ne va
J'ai encore du boulot pour que ça jointe parfaitement
Encore merci pour ton aide
si c'est efficace 24h, c'est déjà pas mal, la colle a le temps de séché!! ;o)
Olivier Vernhettes c'est en forgeant que................
Bonjour Sylvain le Francomtois,
Merci pour tout ce travail. C'est aussi comme ça que j'ai appris à réaliser mes queues.
En école puis sur le tour.
Savez vous que l'institution nationale de l'éducation ne nous donne que 14h voir 12h par semaine pour apprendre le métier en CAP ébéniste? En BMA Ils n'ont que 8H/semaine.
Depuis que je suis enseignant je ne fais que de supprimer les compétences qui me sembles moins essentiel. La dernière fois que j'ai fait faire une mortaise à la main, remonte à loin.
Oui c'est bien le constat !!! Nous avions 24 h semaine sur 40 h d'atelier (tout à la main) en première année , puis 28 h d'atelier sur des travaux vendus en 2 eme et 3eme années (pour ma part de 1978 à 1981)
et en plus 4 h de dessin, 2 h de techno , et 6 h pour math ,français, législation, morale, et sport!
Ajouté à 1h d'étude obligatoire pour les devoirs tout les soir de 18h à 19h
Et svp dis moi tu !
Même constat, étant souvent correcteur d'examens dans mon secteur j'ai vus les compétences baisser, sous peu que le prof n'est pas non plus suffisamment de métier et là c'est mort.
a savoir qu'a notre époque, on étaient pas tous des lumière non plus, j'avais dans ma section des gens qui n'avais rien as faire là, il ne faut donc pas tout mettre sur le dos de l'éducation nationale.
on étaient pas tous des lumière non plus, j'avais dans ma section des gens qui n'avais rien as faire là, il ne faut donc pas tout mettre sur le dos de l'éducation nationale.
Oui bien sur !!
L'un des problèmes est qu'on a amplifié le phénomène en voulant à tout prix que 80% d'une génération ait le bac. Du coup, il y a plus de monde en filière générale et ceux qui sont "orientés" en professionnel sont ceux qui restent. Et on prend de plus en plus ce qu'on trouve à quelques exceptions près.
Pfiouuuuuu !

Monsieur sylvainlefrancomtois !
Je ne vais pas être original mais chapeau bas pour tout ce travail inestimable !!!!
Je plussoie sur le fait qu'il n'y a qu'ici que ça existe !
Ce que je trouve encore plus extraordinaire c'est que d'un point de vue perso j'ai énormément de mal à me concentrer sur les textes (trop de choses en tête en même temps !) Et qu'un simple coup d'œil à tes superbes schémas éclaire tout !
Une pédagogie hors pair !
Une transmission vraiment énorme pour des gars comme moi désireux de retravailler a la main mais sans connaissance ou formation.
Ok je te tutoie mais je t'appelle Maître !
quelques décimètres suffiront !!! En tout cas ces louanges m'aident à ne rien lacher , merci !
encore un +1 de ma part : sur les dessins !
Un exemple : je n'avais pas trop regardé ton pas à pas sur l'escalier et j'en ai eu besoin récemment.
Ce dessin notamment m'a espanté !
Il est à la fois très clair, très pédago et très beau.
je voudrai revenir sur un point qui me semble important qui est le traçage des queues.
J'ai appris comme toi Sylvain en utilisant le théorème de Thalès.
Pour les queues droites c'est pas trop dur mais pour les queues d'aronde c'est un peu plus compliqué.
Et je comprend JPM quand il dit qu'il va avoir besoin de temps pour comprendre le tracé.
C'est pareil pour mes étudiants.
J'ai constaté qu'ils passent beaucoup de temps sur le traçage des queues. Parfois jusqu'à 1h30 pour tracer les cotés. Alors que c'est le temps qu'il faut pour faire un tiroir. j'ai même vu une fois un de mes patrons faire Deux tiroir en 1H10. Départ dégau fini dans le meuble! avec cette technique
A l'époque, si nos anciens avaient une calculette pas sûr qu'ils utiliseraient Thales.
La calculette ou l'élastique est un moyen rapide pour que mes étudiants ne passent plus autant de temps sur ce traçage. Comme je le dis dans ce même mon tuto sur les tiroirs "Il faut démystifier la queue d'aronde. C'est pas compliqué les queues d'arondes, c'est juste des entailles les une à coté des autres. On scie et on enlève le bois qui est hachuré. C'est tout!
José Das Neves
Je partage ton avis Thalès c'est un peu compliqué pour les queues d'aronde.
Mais pour l'apprentissage je pense que c'est souhaitable .Pourquoi d'abord une fois assimilé Thalès s'applique dans de nombreux cas, à l'embauche on ne va pas juger la vitesse d'exécution d'un jeune mais son implication , son soins etc.
Moi j'attend de la formation d'un jeune des bases solides à partir de là on peut progresser.
Les techniques ne se perdent pas mais disons se diluent; de mon temps les pots à colle de luxe Traçait les queues au diviseur ( outil similaire au mpower de chez gaignard et millon mais exclusivement pour les queues, mon fils fait son tour avec mon vieux diviseur et un targette en à refait quelque un ). Temps presque instantané , les queues cachés était tombées au racloir .
Mais ces techniques n'ont pas trop d'intérêt pour débuter , à la limite on ne sait pas tracer avec.
Le pas à pas de sylvainlefrancomtois donne une base solide de l'apprentissage manuel tel qu'il était dans les années 1975.
Il était un peu différent pour les menuisiers des générations précédentes.
Et chose amusante il est encore un peu différent pour les générations actuelles, par exemple je suis sidéré par certaines techniques mis en œuvre par les pots à colle aux olympiades des métiers. A noter par exemple qu'ils font les mortaises de la même façon que nos anciens .
Bonbonveronbi
Oui d’accord sur tout évidement et tes tutos sont des docs !! A mon humble avis c'est complémentaire d'apprendre l'ancestral pour appréhender le contemporain et la boucle est bouclée !
Comme un pâtissier qui fait sa première pâte feuilletée à la main réussie ne peut que s'obliger à faire toujours de son mieux même avec des moyens modernes !
Je disais à mes apprentis en observant des beaux ouvrages anciens sur les chantiers "et quand tu penses qu'ils n'avaient que leurs caisses à outils pour faire ça !!!!!!!!!" cela permet facilement d'exprimer le fait de se remettre toujours en question .
Mais bon ce n'est que ma façon de penser !
Bonjour, je viens de rentrer en tant que formateur en menuiserie agencement au centre fcmb de nantes et vos tuto en images sont une pepite pedagogique pour moi. Merci, merci, et je vous encourage dans cette démarche qui est trés clair pour mes futurs stagiaires
uses en, abuses en !!! les jeunes sont ma priorité !
et dis moi tu svp .
sylvainlefrancomtois svp => stp
Olivier Vernhettes oui stp
Bonjour Sylvain toutes et tous,
Je viens de mettre en pratique ce que tu nous as appris : le buchage!
Le châtaignier n’est pas le bois idéal ( beaucoup de fibres).
J’ai réalisé une petite boîte ( sans prétention) mais qui pour moi était un chalenge.
Je ne sais pas si j’aurais eu mon CAP...
Je suis assez content de mon apprentissage.
Jean-Paul
faut un début a tout ! on voit l'envie c'est bien continues ! tout s'améliore à mesure et on a tous été débutant un jour !
Merci beaucoup, je devais terminer le dessin d’un assemblage en QA de menuisier pour lundi et je n’avais pas compris la méthode pendant le cours. Ton pas à pas tombe a point nommé et me sauve la mise.
Super , entraînes toi sur plusieurs mesures !
C’est chose faite en dessin ainsi qu’a l’atelier. Leçon de la journée après 16 QA : la scie à cadre ça prend du temps à manier avec précision.
La quantité d’informations dans cet apprentissage est incroyable ! Que dire à part bravo et surtout merci.
de rien !
Merci encore Sylvain. Tu parles de boîte à recaler. Je pense en avoir récupéré une mais ne m'en suis jamais servi (voir photo). J'avoue même ne pas savoir comment la fixer ? Est-ce à recalage vertical ou horizontal ? Dois-le la fixer dans la presse avant ou à l'aide d'un valet ? Merci d'avance pour tes précisions.
si tu veux t'en servir pense a coller un carton a chaussure sur la zone a 45° cela évite d'entamer la presse, enfin c'est une astuce que m'a filé un ancien ébéniste.
Et alors, on se sert de la boîte avec un rabot ou alors uniquement avec la scie qui va avec ? Ou les deux ?
archive.org/de...age/n7/mode/2up
Je n'ai pas de boîte à recaler, et je me demande à quel point c'est utile... Surtout que j'en ai repéré une !
dneis AMHA (à confirmer donc), c'est pour fignoler au rabot après sciage.
Merci pour les conseils. Et quel type de rabot utiliseriez-vous ? Sur le lien de sylvain, une varlope est mentionnée ??!! J'aimerais vraiment voir une vidéo où on utilise une telle boîte à 45 et 90° !
J'ai fait des ravancement d'onglets récemment; une telle boîte est-elle adaptée pour fignoler une telle réalisation ?
trente six seb +1
Olistan non , pour des ravancements et coupes d'onglets, on prend une demi boite à coupe !
sur l'etabli pour des coupes a 45° flickr.com/pho...20431/lightbox/
Logiquement il y a un côté pour les coupes à 45° et l'autre à 90°.
trente six seb oui exact ! je l'ai pas précisé ! il y a aussi celle ci petitoutil.wor...e-de-menuisier/
merci Sylvain, c'est vraiment fabuleux, tout ton savoir, ce vocabulaire précis, qui m'enchante, et ce don de tes connaissances! plein de bises!
coucou Mari-Anne
« Scier au trait, scier au trait » qu’il disait Sylvain... bon mais quand on a deux traits, on fait comment ? :-)
Refente en cours... j’ai combien de points prof?
ben comme ça entre deux trait ou un seul décalé !
Que de dévouement à l'instruction et au travail du bois.... Merci. Le matin quand je survol ces articles, de vous comme ceux de José das Neves, arrivés par mail, je me dis quand tu seras au calme tu lieras cet article par respect au travail que vous fournissez à la communauté. J'ai du mal çà trouver un moment alors je crois que je vais les lire dans la hâte...quel dommage. Merci beaucoup j'adore vos enseignements et j'allais dire surtout, votre démarche. Merci au moins à tous les deux et à tout ceux qui prennent la peine de nous apprendre.
merci !! c'est un devoir ! je le fais et j'aime cela !
C’est la période, c’est le moment, mais il y a des profs qui donnent envie de faire, qui donne l’espoir d’y arriver, et qui font voir les choses autrement.... Vous en faites partie, Bravo et grand merci.
de rien !! profite
Sylvain,
Merci pour tout!
Quel travail de pédagogie, j’adore...
Je ne suis pas arrivé aussi loin mais je prends beaucoup de plaisir.
Jean-Paul
avec le temps, on y arrive un jour !
Moi, ce qui m'impressionne c'est autant la quantité de travail que j'ai pour espérer réaliser tout ça de manière juste correcte.
Que la quantité de travail que tu as mis pour nous transmettre ce que tu sait.
On est dans une démarche de partage et de transmission tout simplement admirable.
Comme tout le monde je ne peut que dire merci.
merci !
Encore un article au top !
deux fois !!
). Pour mes prochaines je suivrais ta méthode !
Je me suis essayé à des entures pour voir il y a pas longtemps avec quelques déboires (erreur de sens!
Encore merci Sylvain !
de rien , c'est en forgeant que........................
Oui oui Sylvain on continue...même pour le cancre que je suis!!!
Jean-Paul
merci !
Intéressant ça, avec le point de vue historique en prime.
merci ! 36 seb
Avec plaisir !
Génial, je me régale...
Super encore une fois Sylvain !
Merci d'avoir démystifier ce point qui me semblait complexe.
C'est tellement plus abordable comme ça.
J'avais vu une vidéo de Mr.Chicadee où il fabrique une fenêtre
youtu.be/KWpi8sqjxdM très sympa à regarder.
merci , c'est un régal de démystifier !!
Bonjour Sylvain
Ce qui est bien avec toi, c'est tu associes historique du travail du bois, savoir faire et la pédagogie pour nous présenter tout cela, enrobé dans une modestie qui t'honore.
Je te cire pas les pompes, je le pense.
non ce n'est que moi et mes convictions de ce qui devrait être la norme !
Mon papa tu m impressionne je vais en avoir de la lecture a faire là

je continue mon dossier professionnel je pense que je pourrais utiliser tout ton savoir à bon echiant ... à bientôt bisous 
bon et chiant ???
essaye plutôt à bon escient c'est plus profitable ! 
Mon correcteur automatique a encore frappé lol il a changé mon mot ...

hâte de te montrer mes avancées
Marion68320 hâte de les voir ! bisouss
sylvainlefrancomtois dimanche studieux, j'ai besoin d'une caisse à outils, quelle bonne raison de reprendre les queues d'aronde en suivant les consignes !!!


Je laisserai les tracés.
Donc droite, menuisier, ébéniste et le dernier côté j'ai pas compris ! Sûrement un coup de mon jumeau diabolique.
Pour les recouvertes ce sera sur du massif.
Merci encore !
wahou l'éclate totale !!!!!!!!!!
Ce serait-y pas un peu de fayotage???
Beaux exercices quand même félicitations.
Perso j’ai encore des soucis ( faut dire que j’ai pas de scie adaptée)
Jean-Paul
Vue la finesse de la base de certaines queues, je serais surpris que tu n'en casse aucune à l'assemblage
En principe on peut se permettre de faire des contres-queue fines car elles sont de section constante, ce qui n'est pas les cas pour les queues qui sont évasées...
Cela dit avec suffisamment de soin c'est possible
mais j'aime tellement qu'elles rentrent du premier coup 
dependancesbois c'est du CP peuplier ?
sylvainlefrancomtois oui l'éclate totale!
! 
JPM
dneis oui c'est du cp peuplier de 18mm qu'il me restait de l'aménagement de caravane.
benjams c'est rentré ! Par contre j'en ai ch... ! Il a fallu frapper fort, je n'ai pas coller et surtout pas d'essai à blanc ici.
dependancesbois belle couture!
kaj hello Jacky , oui comme tu dis c'est un beau résultat!
Question pour toi , aurait tu encore les polycopiés d’apprentissage sur les sections de fenêtres à la Française normalisée 32/51 et 37/61 ??
Bonjour chez vous !!
Sylvain, j'ai retrouvé quelques documents ils sont en plan.
Le bonjour à vous deux
Bravo Sylvain.... j'ai tout lu ton dernier article super détaillé et concis ! Ça me rappelle pas mal de souvenirs.... et encore ls c'est des bois equarris, rabotées.
En Charpente, au début, toutes les maquettes étaient en bois brut de sciage !..... et sur Epures, il fallait trouver les bonnes méthodes de placements sur cette dernière et surtout bien piquer les bois !! De plus à la notation, 2 notes : montée sur Epure et... démontée pour voir tous les Assemblages.
Bons souvenirs de mes débuts à 15 ans.
Pour le ravancement de moulure une face, j'aurai mis le même arasement de tenon sur les deux faces et fais ma coupé d'onglet sur toute l'épaisseur, c'est plus simple, non?
hello c'est ce que l'on fait quand on a deux faces moulurées !
Pour une seule face, on évite car en cas de retrait on voit à travers , et traditionnellement on laisse le max de bois . ex ici antiqbrocdelat...cienne-r31.html
Salut,
Tu as raison, ça n’empêche que c'est souvent ce que l'on fait pour être plus efficace à l'atelier. Les coupes d'onglet sur les montants et traverses à la scie à format c'est autrement plus rapide que s'il y a un ravancement. J'ai appris aujourd'hui que nos ancien appelaient ça une barbe. Merci sylvainlefrancomtois !
Bien entendu, pour du meuble l'interieur n'est pas mouluré mais c'est pas grave, c'est pas vilain.
Pour le retrait, je ne vois pas bien pourquoi c'est mieux avec un seul ravancement?
José Das Neves Bêtement c'est ce que j'ai appris en apprentissage ! surtout si les coupes sont larges (risque de retrait plus important donc jour traversant) !
chez Roubo ici books.google.f...gee&f=false
Par contre, moi aussi je suis passé le plus souvent au coupes d'onglets deux faces pour de la série (à la scie , ou avec le champignon à 45°, à la toupie en bout d'arbre )! D'ailleurs je vais aborder le problème dans le prochain chapitre .
Je ne faisais à l'ancienne que dans la restauration ou de la copie! (longs ébarbements dégrossis à la toupie avec une fraise à feuillure)
Merci à vous deux pour ces compléments. En effet, a la machine, c'est pas les mêmes configurations, ni les mêmes contraintes... En l'occurrence, je les fais au champignons (enfin, ça sera mes premières en début de semaine prochaine)
sylvainlefrancomtois + 1 avec toi toujours privilégier le ravancement cela évite de voir au travers de l'assemblage CQFD et +1 pour la barbe aprés j'avoue je les réalise a la format également.
Bonjour
Petite Réflexion sur le ravancement.
Le travail machine nous fait réaliser les coupes de ravancement à la format par voie de commodité.
Or nos anciens faisaient un ravancement simple face ou en cas de double parement ne faisait l'épaulement du tenon que sur la profondeur de rainure.
Pour boucher l'éventuel Jour dû au retrait du bois il faut faire l'épaulement que de la profondeur de la rainure ce qui n'est pas possible à la format, ou au champignon.
On arrive à la conclusion que si la moulure est égale à la profondeur de rainure il y a pas de grand risque de voir le jour le panneau le bouchant derrière.
Pour le cas ou la moulure est plus grande que la rainure, si vous voulez vous rapprocher de la technique de nos anciens L'exécution des coupes sur les traverses se fait à la tenonneuse.
exécution des arasements droit , puis exécution des coupes avec le guide incliné à la valeur de la coupe et butée en arasement.
Si votre guide ne s'incline pas dans les deux sens, il faudra peut être faire un gabarit d'usinage, ou dérégler la hauteur si le tenon est décentré.
Avec un peu d'entrainement le travail est aussi rapide et permet de faire remonter le tenon dans la coupe
Topissime encore !
Pfiou, ces "F" me rappellent des souvenirs... vieux de plus de... 300 jours
Je suis content d'avoir pu les garder, ça permet de bien visualiser.
Par contre dernièrement, j'ai fait un cadre en rainures avec panneaux, aux machines par contre. J'ai trouvé plus simple d'arrêter ma rainure au moment où! elle tombe dans la mortaise et d'éviter ainsi la barbette.
A la main, la barbette me semble plus simple que la rainure arrétée.
Mais je suis curieux de savoir comment font les aguerris en cas de rainure : barbette ou pas ?
oui bien sur , mois aussi j’arretais mes rainures (machines) , par contre "à la main" (bouvet) pas le choix , les outils sont en passes linéaires ! barbette obligatoire !
sylvainlefrancomtois merci, tu confirmes ma position
Pour une porte il vaut mieux faire une barbette . A la machine tu fait une barbette de l'épaisseur de ton tenon donc tu l'usine à la mortaiseuse en intercalant une petit cale sur le réglage de profondeur de la mortaise.
Ensuite tu coupe l'épaulement de la barbette avec une légère pente pour qu'il s'encastre bien et évite si elle est trop longue que l'arasement déjointe.
+1
C'est pas con.
Mais je n'ai (pour l'instant) qu'une mortaise à mèche.
Ca va pas être facile, ou alors en la faisant avant le tenon.
Bon, en l'occurrence, ce n'était pas une porte mais un coffre, donc châssis fixe, à part le couvercle.
Alors là trente six seb J'ai du mal à te suivre
l'utilité de la barbette est un prolongement du tenon pour éviter à la traverse de vriller à son extrémité.
Elle va trouver toute son utilité pour des traverses un peu larges.
Pour un coffre elle n'a pas forcément une utilité primordiale c'est la largeur de la traverse qui commande.
En tout état de cause avec une mortaiseuse à mèche c'est pareil cela change rien, j'ai du mal à comprendre pourquoi tu veux faire le tenon avant.
Enfin compte tu fait une mortaise avec deux profondeurs.
Il y a des cas ou on fait une rainure de l'épaisseur du tenon et dans ce cas la barbette fait la profondeur de la rainure.
Ah ? toi aussi ? On est 2 alors !
Non, j'ai écris de faire la barbette avant le tenon, pas le tenon avant la mortaise.
J'imagine que c'est compliqué d'usiner la largeur du tenon avec une mortaiseuse à mèche.
Pour moi la barbette, c'est le petit bout qui dépasse sur le tenon.
J'ai l'impression que tu me dis que la barbette est sur le montant alors que je la vois sur la traverse.
En l'occurrence, effectivement, la rainure fait la même largeur que la mortaise.
Non cela n'est pas compliqué de faire la largeur du tenon avec une mortaiseuse cela est fait pour cela . Non la barbette est bien sur la traverse son logement est sur le montant . C 'est pourquoi nous usinons la mortaise et le logement de la barbette dans la même opération à l'aide d'une mortaiseuse quel que soit son type seul la profondeur change.
Avec une mortaiseuse à chaine oui j'imagine, mais à meche je doute de pouvoir usiner la tranche du tenon.
Pour le logement, à la mortaiseuse , oui, sauf si le logement est égal à la rainure qu'il suffit de pousser. Non ?
non je m'explique mal :
A la mortaiseuse on usine que le logement de la barbette c'est pourquoi je dit que c'est la même opération que la mortaise car on l'usine dans la continuité de la mortaise en ajoutant une cale à la butée de profondeur de la machine si celle ci n'est pas muni d'une butée à barillet.
La barbette son usinage peut se réaliser manuellement à la scie ruban, circulaire, toupie, tenonneuse le choix étant guidé par le nombres de pièces et tes habitudes.
Bonbonveronbi yes, merci, j'ai tout compris
Bonbonveronbi +1 D'ailleurs pas d'inquiétude, je vais détailler cela dans le prochain chapitre
sylvainlefrancomtois Ah mais quand on discute avec vous (toi et Bonbonveronbi -entre autres) on n'est pas inquiet !!!
Bravo pour ce travail titanesque!!
merci
Je suis « surlecuté », quel travail!
Belle pédagogie !
Intellectuellement j’arrive à suivre mais pour les TP c’est une autre histoire!
Merci de nous régaler!!!!
Jean-Paul
de rien !
Merci Sylvain pour ce magnifique travail! Une petite remarque toutefois: te serait-il possible de détailler un peu plus l'étape"Dégauchir un plat"? (le positionnement de la pièce, les différentes étapes, les différents rabots à utiliser,...). Merci!!
Tu évalue ta piece,(gauche et fil du bois à coucher) puis tu bloques ta pièce (griffe) , et avec une varlope bien affûtée (ou au rabot pour des petites pièces) , et tu dresses ta face !
Comme un métallier te dirais tu met ta pièce à l'étau , tu prend la lime et tu dresse ta face !
D'ailleurs pour de la pratique, il y a deux liens video dans le chapitre non ?
Je ne peux te dire mieux !
Merci! je n'avais pas vu le lien vers la deuxième vidéo. désolé...
bonjour
le lien boispassionset...-etabli-atelier est mort, par contre j'ai trouvé celui là:
boispassionset...-etabli-atelier
Merci pour cette article fantastique !
super belle infos et puis j'adore de voir qu'il y a des personne aussi passionné
vandamme66
Bonjour,
ce lien est mort : la-varlope.fr/...ire-son-etabli/
Wahou, ces cours sont d'une qualité.
En apprentissage de menuiserie en ce moment, je comble les frustrations liées à ma formation en m'essayant à quelques exercices.
Un énorme merci pour ce partage !
Hello
Je n’ose imaginer le temps qu’il a dû te falloir pour rédiger mettre en page et illustrer ce pas à pas !
Sacré boulot.
Merci.